一文读懂深圳南山绿景白石洲能不能买?深入解析绿景白石洲优缺点!
扫描到手机,新闻随时看
扫一扫,用手机看文章
更加方便分享给朋友
深圳旧改巨无霸绿景白石洲璟庭项目概况及户型简介
项目概况
项目名称:绿景白石洲
位置:位于深圳市南山区沙河街道白石洲片区,深南大道与大沙河科创走廊十字交汇处,是深圳城市发展主轴上的重要节点。
开发商:深圳市绿景天盛实业有限公司
物业公司:深圳市绿景物业管理有限公司
占地面积:约30568.31㎡至48万㎡
建筑面积:约461830.21㎡至500万㎡(因项目规模和分期开发而有所差异)。
容积率:10.3
绿化率:30%
产权年限:70年
交房时间:预计2025年12月31日交房(具体交房时间可能因工程进度等因素而有所调整)
>>预约看房,赠送品牌家电大礼包,获取更多「绿景白石洲」资料数据和优惠
「绿景白石洲」折后价清单。需要高清表格的朋友可以预约热线:400-992-0669
配套设施:
交通:项目周边交通网络四通八达,地铁1号线白石洲站距离项目仅约800米,未来还将有地铁20号线和29号线在此交汇。同时,项目周边还有多条公交线路和出租车停靠点,自驾出行也极为便利。
商业:项目自身配建了接近40万平方米的商业,未来将成为区域内的商业地标。同时,周边还有万象天地、益田假日广场等超大型商圈,满足居民的购物、餐饮、娱乐等多元化需求。
教育:项目周边有多所优质学校,如南外沙河小学、南外第二实验学校等。此外,项目还规划有幼儿园和九年一贯制学校,满足居民的子女教育需求。
医疗:项目周边有多家医疗机构,如香港大学深圳医院、华侨城医院等,为居民提供了便捷的医疗保障。
休闲:项目内部规划有健身设施、游泳池等休闲设施,同时周边还有多个市政公园、绿地和体育场馆等,为居民提供了丰富的休闲娱乐选择。
最新消息:加推1栋3单元楼王单位,推售面积为110-125-187㎡的3-4房,在售110-118-125㎡3房、187㎡4房以及280-400㎡的顶复产品,单价8字头,均价10万/㎡,总价不到900万上车!去年9月份开盘卖的是1栋4单元和5单元。
回顾一下:第一批首推826套房,i登记1036批,意向入围756批,开发商给出的数据是开盘当天认购527套。去化率达63.4%,数据上看这个成绩还是相当不错的。
项目去年9月份首开,推出了1栋4/5单元,户型建面为108-406㎡,折后单价8.5万起,目前还有少量房源在售中!
如需了解更多详情,欢迎咨询绿景白石洲售楼处咨询/预约电话:400-992-0669 中介请勿扰,过来我们营销中心看房务必记得提前来电预约,预约看房的话最终的价格还能更加优惠。
户型简介
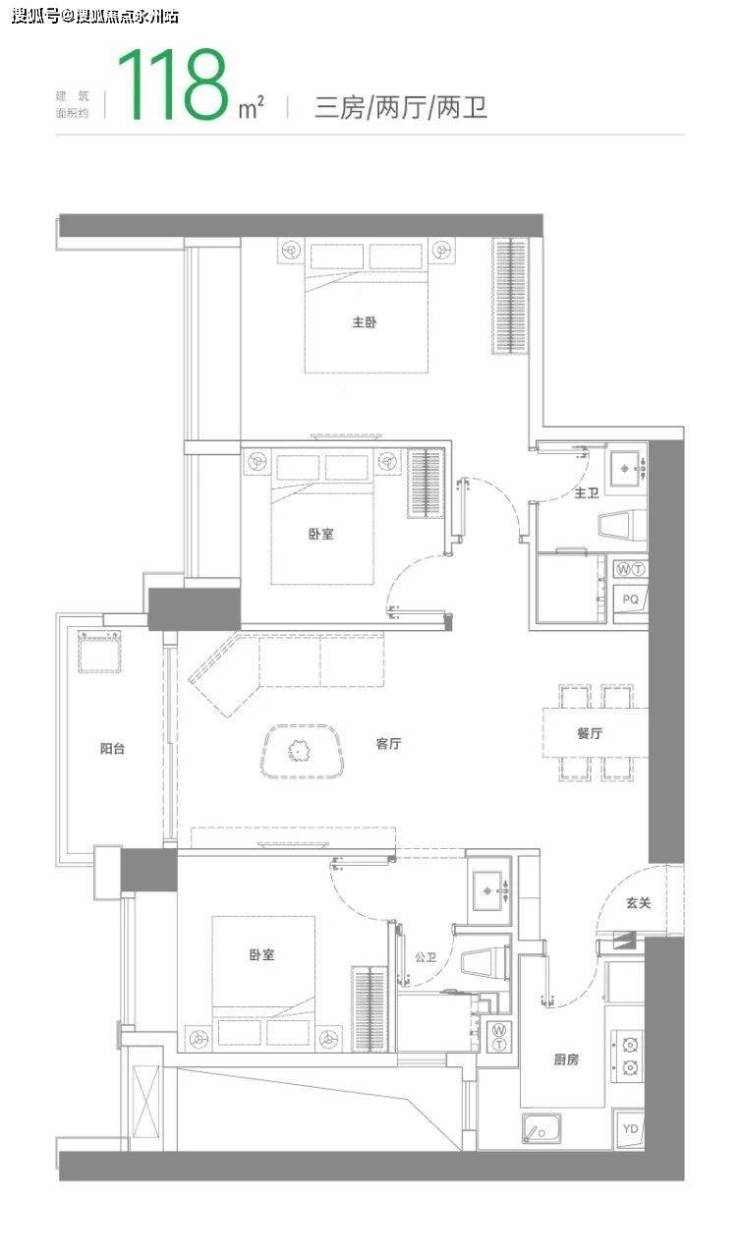
在售户型:主要为110㎡、118㎡、125㎡的三房两厅两卫,以及187㎡的四房两厅两卫。部分资料还提及了280~400㎡的奢阔顶复户型。
价格区间:单价备案价区间为约92640元/㎡至129290元/㎡,也有资料提及参考均价为100000元/㎡。总价根据户型大小在约895万/套至2600万/套之间。实际价格可能因市场变化、购房优惠等因素而有所调整。
户型特色:
110㎡户型:瞰景三房,卧室标配飘窗,观景阳台展开风景画卷。餐客一体化,连通阳台,畅享全家欢聚时刻。动静分区舒适化营造,休憩与家庭活动互不干扰。
118㎡户型:采用了双龙抱珠设计,客厅卧室同一朝向且都朝西南,采光面非常足。
125㎡户型:A户型为瞰景三房,飘窗、阳台拉开居住视野;B户型总体和118平格局类似,放大了部分功能区的面积,且增加了一个生活阳台;C户型也采用了双龙抱珠设计,但位于端头位且东南朝向,三面采光。
187㎡户型:横向创新户型,超宽向阳尺度,吸纳阳光新风。主卧私享化,独立卫浴、衣帽间,自在天地一隅。四开间朝南,卧室大飘窗,在阳光中享受美好栖居。南北双阳台,一面晾晒收纳,一面休闲享受。
项目占地面积30568.31㎡,建筑面积461830.21㎡,容积率10.3,是深圳大体量的城市旧改项目。由6座建筑组成,1栋1-2单元为26/59层塔楼商务公寓,1栋3-5单元为74层塔楼住宅;小区底部为3层裙楼商业,商业顶部是架空花园,1楼与12楼分别设置有通往“天悦花园”的连廊,与“天悦”商业及塔楼互通
1栋3-5单元电梯分高低区,48以下为低区,以上为高区;3/4单元低区4梯7户,高区3梯6户,5单元低区3梯6户,高区3梯6户;标准层高3m,部分层高3.15m
想了解更多我们项目近期动态、剩余楼层、底价信息与保留房源,请认准我们售楼处电话/预约热线:400-855-2986(官方)中介勿扰
自带超40万m²城市旗舰级商圈,涵盖国际购物中心、立体生态街区、地下步行街、高端社区 Mall 等全业态、全场景,一条1.2公里中央绿轴串联各业态空间,形成集购物、旅游、文娱为一体的城市新潮打卡地。
超级商务群再造湾区新地标
约400米双子塔国际超甲写字楼群,汇聚国际高奢酒店群(拟引进)、国际酒店服务式公寓,商务之旅一站即享。(深圳绿景白石洲售楼处电话:400-992-0669)
轨道交通——四线二站两枢纽,地铁1号线、2号线、20号线(建设中) 、29号线石洲北站(建设中),无缝覆盖更新片区。
道路交通——项目自身三纵三横路网,对外连接深南大道、北环大道、沙河东路等城市干道。
全球交通——快速畅达西丽高铁站(规划中)、福田高铁站、深圳北站、太子湾邮轮母港、宝安国际机场等,多枢纽立体交通,海陆空无界链接。
白石洲1公里范围内,聚集了5所初中,7所小学。项目所处片区已纳入南山外国语集团教学,现在周边有沙河小学,南山第二实验学校,且项目自身带4所幼儿园共57班,3所九年一贯制学校共90班,学校都会在一期建成时共同交付。
绿景白石洲璟庭的每一处细节,都凝聚着设计师和建筑师的匠心独运。
立体之城七重立体交通:创新打造地上地下七重结构立体化交通系统,不同交通系统分层互联,人行系统、城市公共道路系统、地下轨交系统快速接驳,最大程度实现人车分流,科学化疏解交通压力。
多维共享空间系统:约1.2公里中央绿轴,打开生活场域,从商业消费、休闲漫步到艺术观赏,成为深圳一条可逛、可玩、可互动的24h开放潮流街区;
架空层空中花园及泛会所成为业主私享休闲娱乐空间;
更首创50米空中连廊(规划中),创想无限可能。
想了解更多我们项目近期动态、剩余楼层、底价信息与保留房源,请认准我们售楼处电话/预约热线:400-992-0669中介勿扰
艺术大城:国际顶级艺术机构 UAP 规划,构建深圳公共艺术社区,艺术大师作品步履之间相逢。
健康大城:(已申请)深圳首个国际 Fitwel 健康社区三星级认证。绿景智慧健康人居系统提供健康设施与服务,涉及超5600项健康指标,关怀生命质感,突破边界。
智慧大城:联合华为、联通等高新科技领军企业,打造深圳超大规模智慧城区标杆,盖城区、社区、家庭场景,全维演绎未来家园。
绿景白石洲璟庭作为深圳南山区的一个高端住宅项目,具有显著的地理和配套优势。项目采用现代简约的建筑设计风格,配以法式Art Deco外立面,高贵典雅。户型多样,得房率高,满足了不同购房者的需求。开发商实力强,配套设施完善,投资价值较高。然而,购房者也需关注项目的价格、交房时间等风险因素,做出明智的投资决策。
绿景白石洲最新介绍:备案价、折扣、学区、地铁、交通、户型图、特价房、优缺点、得房率、优惠活动、小区图片、开盘时间、交房时间、周边配套、最新详情等咨询。
深圳绿景白石洲售楼处电话: 400-992-0669 预约来访下定当天更享折上折!!
(营销中心 | 欢迎来电咨询 | 请提前预约登记看房 | 1:1销售专业讲解)
南山绿景白石洲售楼中心热线: 400-992-0669(售楼处)【VIP贵宾专线】
本广告仅为邀约邀请,图片及文字等仅供参考,项目周边配套、市政设施等最终以政府部门规划建设为准;买卖双方的权力与义务以最终签署的《商品房买卖合同》及补充协议约定为准
声明:本文由入驻焦点开放平台的作者撰写,除焦点官方账号外,观点仅代表作者本人,不代表焦点立场。
