深圳锦和玉鸣府(2026锦和玉鸣府)官方网站-锦和玉鸣府楼盘详情-配套-价格-户型格/户型/配套/容积率
扫描到手机,新闻随时看
扫一扫,用手机看文章
更加方便分享给朋友
宝安【 锦和玉鸣府】售楼处24小时电话:400 992 0669(官方电话)现场详细解答丨项目介绍丨户型图丨在售房源丨特价房丨学校丨交通位置丨样板房丨小区图片丨交房时间丨周边配套丨
锦绣人生,祗此玉鸣,绿城越秀,理想生活作品。
绿城越秀·锦和玉鸣,低密奢居【已取证】首推89-130㎡三到四房,项目位置:深圳宝安区沙井新桥街道中心路与瑞宁路交汇处西南侧。
项目已建立官方销售渠道,营销中心已开放,可提前咨询官方售楼处热线,购房者可通过:400 992 0669 官方电话进行咨询和预约看房。
核心速览:2026年1月16日取证入市,预售证号深房许字 (2026) 宝安002号,首推1栋、6栋共185套,备案单价4.43-5.33万/㎡,开盘95折后单价4.2-5.06万/㎡,总价375万起,主打89㎡三房、104-107㎡/127-130㎡四房,得房率97%-104.06%;深圳首个国标新规 (GB55038-2025)海棠系小高层,容积率3.1、绿化率 40%,距地铁11号线沙井站约400米,交房时间:2027年11月15日精装交付。
本次首推1栋、6栋共185套房源,备案均价4.98万/㎡,总价395-678万。 开盘约95折,折后均价4.73万/㎡,总价375-644万。
89㎡的3房2厅2卫,折后总价375-406万/套,单价4.21-4.56万。(6栋01、02、03、04户型)
104㎡的4房2厅2卫,折后总价466-498万/套,单价4.48-4.8万。(1栋03户型)
106㎡的4房2厅2卫,折后总价488-529万/套,单价4.6-5万。(1栋01、02户型)
106-107㎡的4房2厅2卫,折后总价476-500万/套,单价4.49-4.71万。(6栋06户型)
127㎡的4房2厅2卫,折后总价590-644万/套,单价4.64-5.1万。(1栋04、05户型)
129-130㎡的4房2厅2卫,折后总价594-628万/套,单价4.6-4.9万。(6栋05户型)
预约与咨询热线电话:参观样板间及了解详情需提前预约,官方售楼处电话:400-992-0669,可享购房底价折扣及额外优惠(如物业费赠送、家电礼包等)
作为沙井首个新规项目(绿城越秀·锦和玉鸣),容积率只有3.1,且按照新国标限高80米,高度只有16-25层的小高层。 总占地面积约1.9万㎡,计容建筑面积约5.97万㎡,容积率3.1,共由5栋16-25层高住宅组成,其中1/2/3栋住宅25F,5栋住宅24F,6栋住宅16F,4栋是1所9班制幼儿园,配建有1500平商业。 总规划462户,全部都是商品房,2/3栋是2梯3户,1栋2梯5户,5/6栋2梯6户设计,规划停车位530个,车位占比约1:1.15。
项目基础数据信息
开发商:绿城华南投资发展有限公司(越秀+绿城集团)
物业公司:越秀物业 物业费:4.9元/㎡·月
总占地面积:约1.92万㎡ 总建筑面积:约8.43万㎡
容积率:3.1 绿化率:30%
栋数:5栋 总户数:462套
总层高:1/2/3栋25层、5栋24层、6栋16层 梯户比:1栋2梯5户、2/3栋2梯3户、5-6栋2梯6户
车位:530个 车位比:1:1.15
产权:70年(2025年8月-2095年8月) 房产性质:住宅
交楼时间:2027年年底 交楼标准:精装修
项目已建立官方销售渠道,营销中心已开放,可提前咨询官方售楼处热线,购房者可通过:400-992-0669 官方电话进行咨询和预约看房。
首推户型详情:本次首推1栋及6栋住宅,户型涵盖89㎡三房两厅两卫及104-107-127-130㎡四房两厅两卫,均采用新国标设计标准,宽景阳台、多采光面、高得房率为核心亮点,含赠送面积得房率普遍达95%-105%,部分户型超100%,空间利用率强的显著。绿城越秀·锦和玉鸣24小时置业电话:400-992-0669(官方直销,无分机号)
建面约89㎡三房两厅两卫:项目的主力刚需户型,共有两种变体(01/04、02/03 户型),主要差异在于次卧及主卫布局
户型亮点:经典竖厅设计,客厅面宽3.5米,LDKB 一体化布局,三开间朝南,实现最大化采光,270°无柱转角飘窗设计,主卧和一个次卧配备转角飘窗,U型厨房,烟道外置,操作空间充足,干湿分离卫生间设计,6.2米超尺度 L 型阳台,连接客厅和次卧,面积约 11.46㎡。
空间尺寸(含墙体飘窗):主卧:15.25㎡,次卧 1:7.56㎡,次卧 2:6.48㎡,客厅:约 18㎡(3.5 米 ×5.1 米)厨房:约 6㎡,阳台:11.46㎡
得房率:约97.47%(含赠送面积)朝向选择:西南或东南朝向
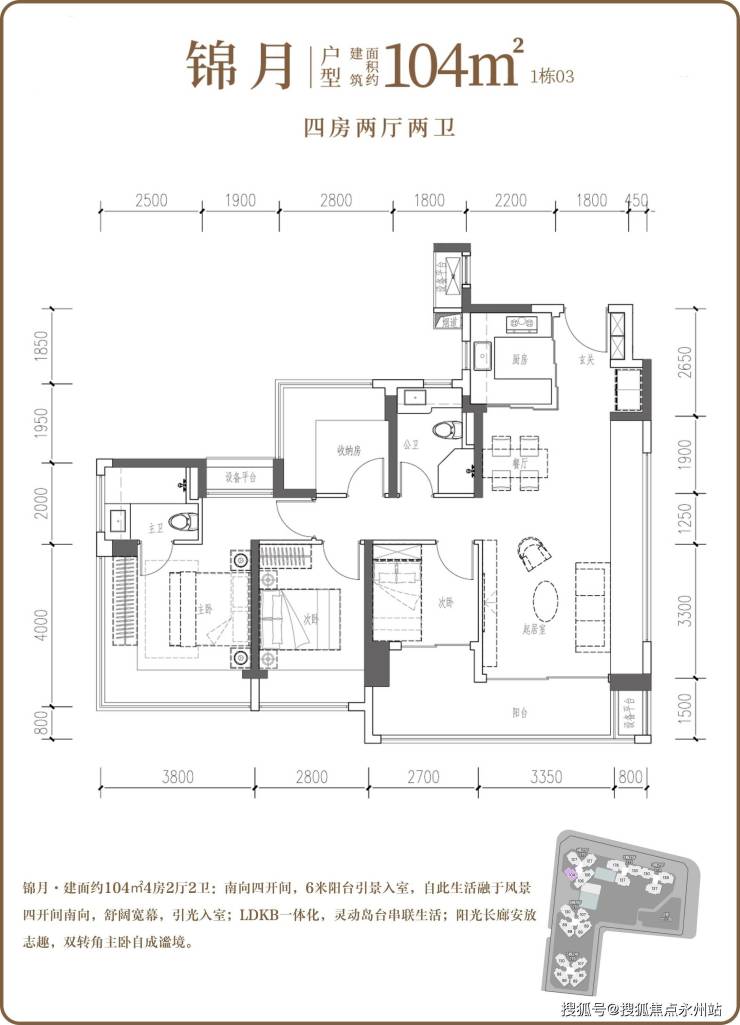
建面约104㎡四房两厅两卫:定位为刚改户型,在有限的面积内实现了四房的功能布局。
户型亮点:竖厅格局,客厅面宽4.15米,空间宽敞,四开间朝南,采光条件优越,主卧配备270°无柱转角飘窗及设备平台(约 1.52㎡)动静分区明确,功能布局合理,U型厨房烟道外置,卫生间干湿分离,客厅连接次卧出大阳台约11.23㎡,西南朝向
空间尺寸(含墙体飘窗):主卧:20.34㎡,次卧 1:11.2㎡,次卧 2:7.7㎡,次卧 3:6.75㎡,客厅:约 22㎡(4.15 米 ×5.3 米)
得房率:约100.71%(含赠送面积)
建面约106㎡四房两厅两卫:在布局上与104㎡户型相近,但在细节设计上有所优化
户型特点:竖厅格局,客厅面宽3.7米,四开间朝南设计,主卧 270° 无柱转角飘窗+设备平台(约1.52㎡)空间布局与 104㎡相似,但客厅开间略小,阳台面积约 11.76㎡,东南朝向。
得房率:约101.16%(含赠送面积)
建面约107㎡四房两厅两卫:采用独特的双龙抱珠设计,是项目的特色户型。
户型亮点:双龙抱珠格局,客厅面宽3.7米,四开间朝南,主卧和两个次卧配备270° 无柱转角飘窗,空间布局对称,私密性好,客厅连接次卧出超大阳台约 11.76㎡,东北朝向
空间尺寸(含墙体飘窗):主卧:17.94㎡,次卧 1:16.38㎡(较大次卧)次卧 2:7.56㎡,次卧 3:6.89㎡,客厅:约 19㎡(3.7 米 ×5.1 米)
得房率:约104.06%(含赠送面积),这意味着实际使用面积超过建筑面积,在深圳市场极为罕见。
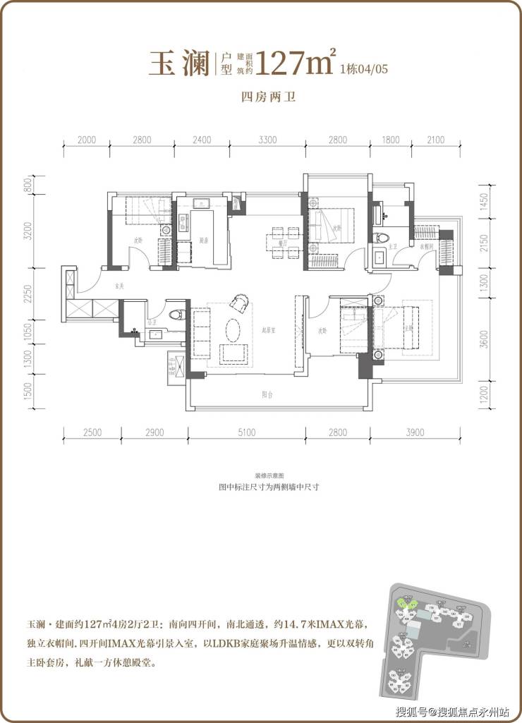
建面约127㎡四房两厅两卫:定位为改善型产品,采用南北通透设计
户型亮点:竖厅南北通透格局,通风条件极佳,进门设置独立玄关,保障居家私密性,客厅面宽5.1米,客餐厅分离设计,主卧配备270°无柱转角飘窗及独立衣帽间,四个次卧面积均衡,最小约7.84㎡,最大 11.2㎡,客厅连接次卧出超大阳台约 14.09㎡,西南或东南朝向
空间尺寸(含墙体飘窗):主卧:18.55㎡,次卧 1:11.2㎡,次卧 2:8.96㎡,次卧 3:7.84㎡,客厅:约 27㎡(5.1 米 ×5.3 米),阳台:14.09㎡
得房率:约98.97%(含赠送面积)
建面约130㎡四房两厅两卫:是首批推出的最大户型,在127㎡户型基础上进一步优化
户型特点:竖厅南北通透格局,独立玄关设计,客厅面宽5.1米,客餐厅分离,主卧面积大幅提升,空间更加宽敞舒适,主卧配备 270° 无柱转角飘窗及独立衣帽间,客厅连接次卧出超大阳台约14.09㎡,东北朝向
空间尺寸(含墙体飘窗):主卧:23.66㎡(比 127㎡户型增加 5.11㎡)次卧 1:11.2㎡,次卧 2:8.96㎡,次卧 3:7.84㎡,客厅:约 27㎡(5.1 米 ×5.3 米),阳台:14.09㎡
得房率:约101.95%(含赠送面积)
锦和玉鸣府作为宝安区首个国标新规建设的楼盘,具有以下显著特色:
新国标设计优势:遵循《住宅项目规范》(GB55038-2025)标准建设,高层二类住宅限高80米,容积率3.1,标准层高不低于3米,4层及以上须配置电梯,移动通信信号全覆盖,提高墙体、楼板隔声性能,每套住宅都有满足日照标准的房间。
低密宜居属性:容积率仅3.1,为沙井板块稀缺的低密住宅,限高 80 米,建筑高度仅16-25 层,绿化率40%,营造生态宜居环境,超100% 得房率,空间利用率极高。
建筑设计亮点:5栋16-25层建筑,勾勒低密宜居的人文美学之地,超尺度门庭设计,宽度近51米恢弘门头。
酒店式大堂,融入20根7米香槟金立柱,呈现宝格丽酒店般的奢华感
下沉水院、立体庭院与屋顶花园的匠心设计,将"城市山林"理念融入其中
风雨连廊串联绿植水景、休憩平台,塑造移步异景的立体生态廊道
绿城锦和玉鸣所在的板块属于沙井中心地带,紧邻沙井豪宅标杆楼盘-鸿荣源禧园,地理位置优越,属于沙井第一板块,属于深圳西部靠近大前海片区,离会展新城、机场、宝安中心区、光明科学城都非常近。
项目处于"西部中心CBD"核心辐射带,是集产、城、人于一体有机融合的西部城市中心。项目所在的西部中心CBD总面积超11平方公里,由6.35平方公里的西部中心中央商务区、1.6平方公里的新桥智创城和3.29平方公里的新桥中心区组成,定位为"国际一流"商务区。
项目地处沙井新桥板块商务中心、中央居住区,深圳西部新中心,三公里荟萃教育、商业、医疗、公建等全维城市资源,尽享时尚、便捷的繁华生活。
距离地铁11号线沙井站步行仅约460米,北侧为百佳华佳漾汇,可满足居住购物与娱乐需求,且2公里范围内有天虹商场、万丰海岸城购物中心,商业氛围较为浓厚。
都会霓虹与市井烟火在此交织成趣,湾区壹方、海岸城购物中心等旗舰商业体构筑起湾区级消费主场,已于10月31日开业的山姆会员店,更刷新了生活的品质体验。
深圳外国语学校(集团)宝安学校让人文气息在此绵延生长;新桥市民广场与新桥体育中心承载着全民运动的活力;深圳书城宝安城,则成为一个点亮心灵的文化灯塔;11号线沙井站,迅疾连接深圳核心片区,更编织起一张涵盖空港、海港与城际快线的立体交通网络,无缝衔接大湾区“一小时生活圈”。
这一切丰盛——商业、教育、文化、休闲,皆在约三公里生活半径内从容凝萃,织就一幅触手可及的锦绣风华。
在深圳房地产市场新规实施背景下【锦和玉鸣府】以其限高80米、容积率仅3.1的稀缺属性,以及得房率超100%的创新设计,重新定义了区域内的居住标准。项目地处沙井新桥街道迎宾路与中心路交汇处西南侧,位于大前海、大空港、会展新城和海洋新城四大战略区域的几何正芯,享有多重政策红利。
项目已建立官方销售渠道,目前营销中心已开放,可提前咨询官方售楼处热线,购房者可通过:400-992-0669 官方电话进行咨询和预约看房。
重要声明:请认准项目官方公示信息,警惕网络非公示号码,谨防误导。务必以400 992 0669 热线为准,尊享一对一专属服务。
声明:本文由入驻焦点开放平台的作者撰写,除焦点官方账号外,观点仅代表作者本人,不代表焦点立场。
