荔源雅苑(营销中心)荔源雅苑楼盘详情/地铁/学校/最新房价
扫描到手机,新闻随时看
扫一扫,用手机看文章
更加方便分享给朋友
项目于2024年6月28日取证入市,推出251套房源,面积50㎡的1房1卫,89㎡的3房2卫,117㎡的4房2卫户型,主要还是以小户型为主,备案均价7.26万/㎡,备案单价6.81-7.95万/㎡,总价343-929万/套,折后均价6.54万/㎡,折后单价6.13-7.15万/㎡,总价309-836万/套,并且还赠送全屋空调+品牌冰箱+厨房大礼包,2024年12月底前精装交付,目前已经是准现房。
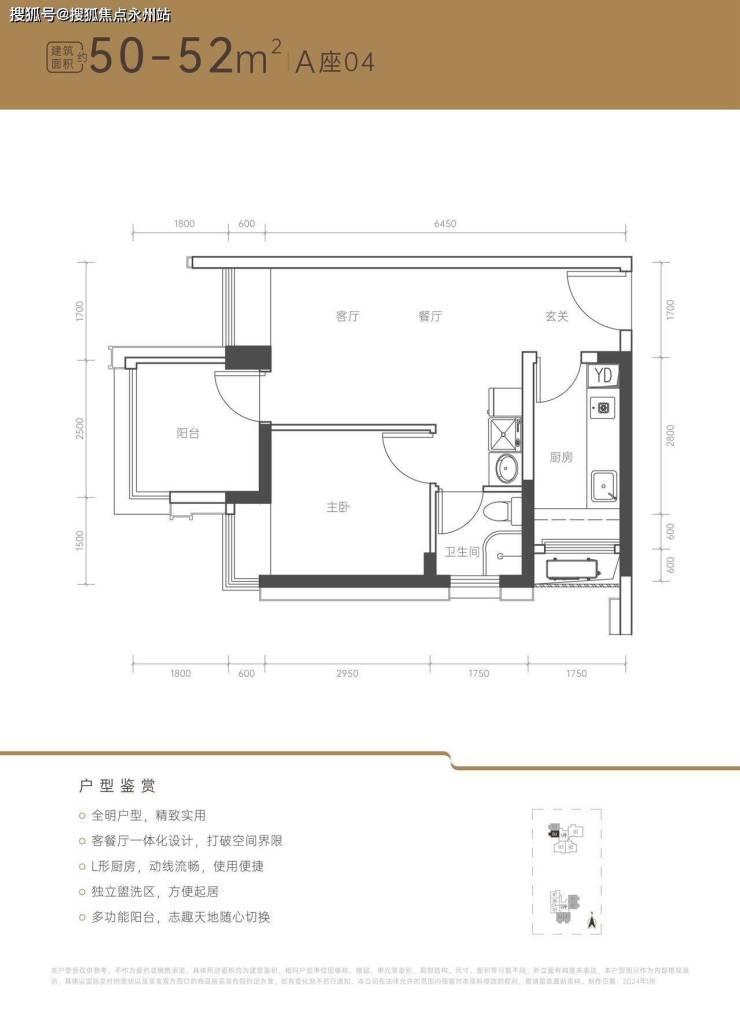
50㎡的1房1厅1卫,折后总价309-335万/套,单价6.21-6.73万/㎡。
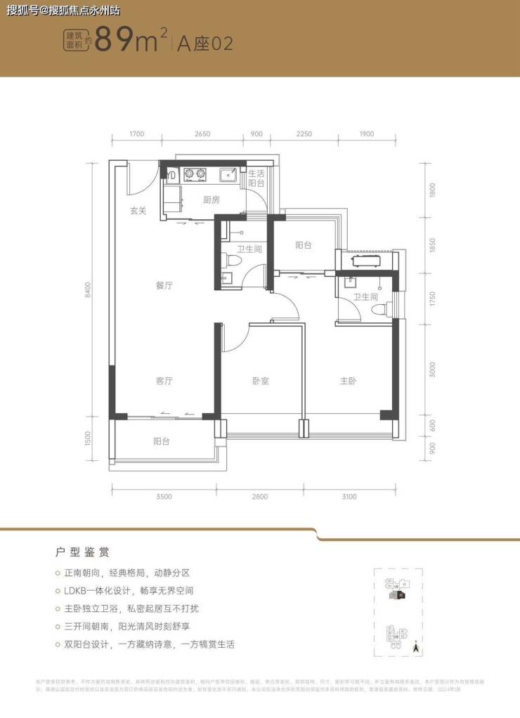
89㎡的3房2厅2卫,折后总价589-636万/套,单价6.58-7.08万/㎡。
114㎡的4房2厅2卫,折后总价741-836万/套,单价6.44-7.15万/㎡。
欢迎咨询荔源雅苑开发商售楼处咨询/预约电话:400-992-0669(中介勿扰),过来我们营销中心看房提前来电预约,而且最终的价格还能享受更多优惠。
南山精装准现房小区—荔源雅苑50-117㎡2-4房正在热销中......
项目主要以小户型为主,6月30日开盘推出251套50-117㎡2-4房,其中50㎡2房2厅1卫169套,89㎡3房2厅2卫54套,117㎡4房2厅2卫28套。
仅开盘当天,成功售出146套,去化57.6%,项目目前是准现房状态,所见即所得,是南山十分稀缺的低密住区。
折后单价5.95万/㎡起!588万就可以买到标准三房两卫!使用率近93%的南山新盘,现可直接认购....最低总价310万起,首付仅需62万就能上车南山中心区50㎡两房。
正式实现龙华价格买南山中心现楼新盘,且该区域为南山科技园&宝中&前海很近的位置,租金回报率非常客观!目前50㎡小两房预计在6500-7000左右!
荔源雅苑:位于南山区南头同乐片区中山园路与铁二路交汇处,项目东侧紧挨着同乐实验学校,西侧是同乐物联网产业综合基地,南侧是近期入市的安居房同乐馨苑。
项目基本信息
占地面积:约6249.71㎡ 建筑面积:约34182.59㎡
物业类型:住宅 售楼热线:400-855-2986
容积率:约3.52 绿化率:约34.33%
套数:322套(可售251套) 产品类型:约50-117㎡学府现楼
产权年限:70年 物业公司:深圳万家好物业服务有限公司
项目地址:南山·科技园·教科院同乐实验学校旁

「建面约50-89-117㎡准现楼」容积率约3.52,南山稀缺低密住区,准现楼呈现,实景兑现。建面约50-52㎡南山稀缺小户型,89㎡南向园景户型,臻稀117㎡南北通透品质户型。
A座2梯5户全可售,两条50㎡两房朝西,两条89㎡三房朝南、一条117㎡四房南北通透客厅朝北。
B座2梯7户一半可售,全为50㎡左右两房,其中01、02、03以回迁为主6套可售,04、05、06、07共计110套可售
及A座04、05户型改造后客厅采光两房无阳台,B座05-07户型为改造后两房客厅无采光带厨房小阳台。
50-52㎡两房户型:全明户型,精致实用;客餐厅一体化设计,打破空间界限;L形厨房,动线流畅,使用便捷;独立盥洗区,方便起居;多功能阳台,志趣天地随心切换。
89平三房两卫户型:正南朝向,经典格局,动静分区;LDKB一体化设计,畅享无界空间;主卧独立卫浴,私密起居互不打扰;三开间朝南,阳光清风时刻舒享;双阳台设计,一方藏纳诗意,一方犒赏生活。
117平四房两卫户型:格局方正,南北通透,采光通风俱佳,双卧朝南,阳光倾泻而入,卧室均带飘窗,风景尽在眼底,主卧大套房,独立卫浴,私密尊享,创意多功能阳台,私藏一方志趣天地。
区域介绍
荔源雅苑东面是南山科技园,西面是前海,南面是后海、深圳湾,北面是西丽留仙洞。
科技园:整个中国高新技术企业最多、地均产值最高的科创中心,多个技术领域达到世界先进水平,培育出了腾讯、华为、中兴、大疆等众多高科技龙头企业,并孵育出柔宇科技、菜鸟网络等一批独角兽企业,被誉为“中国硅谷”。
是带动南山成为深圳最强中心的核心力量,更为深圳GDP反超香港,晋升一线大都市立下了汗马功劳。
前海:国家级自贸区,已有359家世界500强落户;后海-深圳湾区域,中国总部企业最为密集的地方之一,聚集了腾讯、阿里、百度等互联网巨头;西丽留仙洞,深圳蓄势待发的新晋总部基地,未来将形成超3000亿元的产业集群。
项目北向约2.5km是留仙洞总部基地,是集战略性新兴产业特征和企业总部特征为一体的科技产业CBD,已吸引了大疆、光峰光电、天珑移动、乐普医疗等头部企业总部入驻,未来将形成超3000亿元的产业集群,成为深圳引领高端发展的创新高地。
留仙洞总部基地规划约60万高端就业人口,10万高素质居住人群。
被实力如此强大的5大总部基地环绕,荔源雅苑所在的区域,不仅能享受后海、深圳湾、科技园非常成熟的产业、配套红利,还能享受前海、西丽进一步起飞的发展红利,这种地段的楼盘卖一个少一个,稀缺性非常明显。
荔源雅苑_售楼处_Vip Tel:400-992-0669 中介勿扰

项目配套信息介绍
直线距离约100m九年一贯制区属公办教科院同乐实验学校,作为南山区首个教科院系实验学校,以区教科院为智库,为儿女成长提供优质教育平台。
近邻“深圳十强、广东省二十强”博纳学校、公办18班华泰幼儿园,人文优教荟萃,护航孩子成长。
教科院:曾创办南山第二外国语学校,现已发展为南山第一梯队名校。教科院同乐实验学校是教科院成立以来的第一所实验学校,预计承袭南二外的成功经验和成果。
地铁:12号线同乐南站(直线约800m),4站到宝中和科技园,5站到前海和后海;15号线(建设中)同乐关站(直线约1.5km),2站到西丽高铁站,贯穿前海、后海、南山、宝安等重要片区,环经济发展核心区域,另有13号线(建设中)等多轨交汇,高效出行。
立体交通:邻近未来深圳最大高铁站一一西丽高铁枢纽(在建中);享南坪快速等“四横两纵”交通路网。

【近在掌握】双中芯黄金生活圈 醇熟生活配套环伺:畅享全维高端醇熟配套,丰盈资源汇聚,尽揽中芯繁华,定义城市理想人居范本。
商业配套:一路之隔约1万㎡隆尚Minitown(开业在即),云城万科里、海雅缤纷城及壹方城环绕近享,万象天地、深圳湾万象城、海岸城、万象前海四大商圈辐射,集萃南山、宝中双区成熟商圈,尽揽一城璀璨繁华。
医疗配套:南山区人民医院、宝安区人民医院、宝安中医院等三甲医院以及南山区中医院(在建),优渥医疗资源,护航健康生活。
生态配套:周边规划约2.5万㎡公园绿地,近享铁路文化公园、中山公园、新安公园,城市绿氧触手可及。
人文配套:荷兰花卉小镇、南头古城、南山文体中心、南山博物馆、南山图书馆以及宝中重点配套,全配阵容艺术生活,涵养人文气韵。

装配信息介绍
【境在低密】纯居社区 入住南山高阶格调生活
秉承奢居美学基因,甄选铝板及干挂石材为主要用材匠筑外立面,建筑颜值历久弥新。
以“轻氧森居、活力社交”为核心理念,打造全龄社交空间,兼具美学颜值与低密舒居,敬呈一城所向的理想生活。
【仅在当下】实景低密现楼 见证你所预见
容积率约3.52墅级低密住区,准现楼呈现,幸福无需久侯。
南山难得中小户型,以品质、人性化理念,匠造建面约50-52㎡南山稀缺小户型、89㎡南向园景户型、臻稀117㎡南北通透品质户型,敬献科技园菁英。
【敬献服务】万家好物业细节服务 有度生活
27年服务经验,服务面积超100万㎡,拥有园林绿化和清洗保洁两个国家一级资质,以专业的物业服务团队与服务理念,提供专业化、智能化、一站式管理服务,畅想社区美好生活。
位于深圳南山区南头同乐片区中山园路与铁二路交汇处项目最终定名「荔源雅苑」推售户型为50㎡2房2厅1卫、89㎡3房2厅2卫、117㎡4房2厅2卫。89㎡南向看园景,117㎡四房南北通透。
如需了解更多本项目信息,请拨打售楼处电话,现场销售会为您详细介绍楼盘。
荔源雅苑_开发商售楼处_Vip Tel:400-992-0669 (中介勿扰)
(更多项目动态| 欢迎来电咨询 | 请提前预约登记看房 | 1:1销售专业讲解)置业顾问一对一对接,来电尊享受额外优惠
*特别提示:本宣传资料所涉宣传内容,仅作为项目宣传推广使用,不在任何意义上构成开发商的承诺与要约,具体以政府部门审定的规划设计文件及商品房买卖合同的约定为准。本公司有权对宣传内容进行修改、调整,敬请留意最新宣传资料。
声明:本文由入驻焦点开放平台的作者撰写,除焦点官方账号外,观点仅代表作者本人,不代表焦点立场。
