深圳中粮悦章凤凰里(宝安)首页丨中粮悦章凤凰里楼盘详情_房价_户型_详情
扫描到手机,新闻随时看
扫一扫,用手机看文章
更加方便分享给朋友
福永中粮凤凰里二期中粮悦章·凤凰里,本次将推出84-98-114-128㎡三到五房,容积率4.62,使用率78%,目前全套带尺寸户型图首次曝光,临时展厅已开放,即将开放样板间,目前进度在建设中
温馨提示:看房请提前来电预约,感谢配合!预约来访成功,即享现场当天优惠折扣,可预约现场指定销售专员
中粮悦章凤凰里开发商售楼处咨询/预约热线:400-992-0669(中介勿扰)
(更多项目动态| 欢迎来电咨询 | 请提前预约登记看房 | 1:1销售专业讲解)置业顾问一对一对接,来电尊享受额外优惠
中粮悦章·凤凰里位于11号线桥头站附近,毗邻立新湖公园,2015年一期开盘便受到刚需买家追捧,中粮整体品质在业界口碑相对不多。
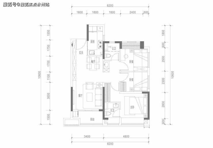
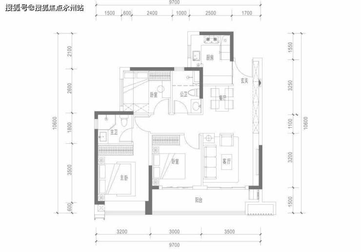
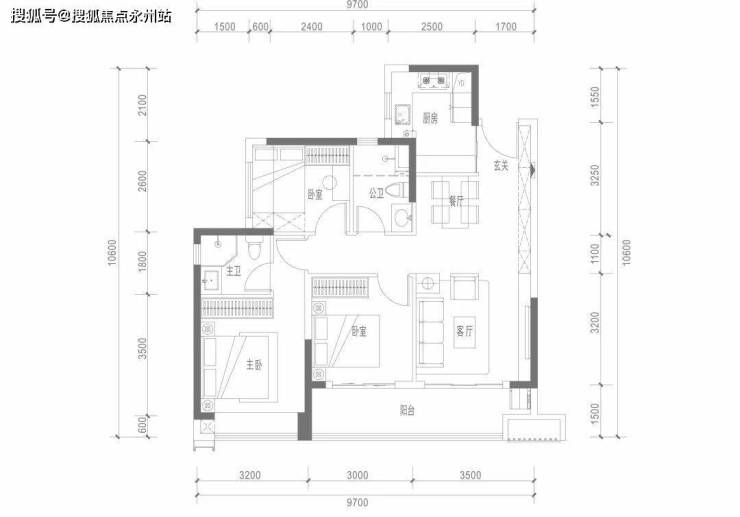
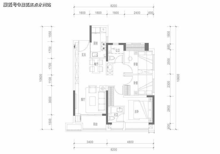
平面图和户型图
约84㎡三房两厅1.5卫
约98㎡三房两厅两卫
约128㎡四房两厅两卫
约128㎡四房两厅两卫
项目简介
悦章凤凰里位于宝安大洋路与塘新路交汇处西侧,项目毗邻立新湖公园,距离地铁11号线 “桥头站” 的周围,用地类型为 教育用地+公共绿地+R2二类居住用地。
中粮立新湖旧改将围绕整个立新湖打造近70万㎡城市综合体,以“一湖四带多节点”的景观结构,集中粮国际科技创新中心、低密生态住区、国际文化商务广场、地铁接驳商贸中心四大功能区。
中粮凤凰里一期整体占地约4.7万㎡, 总建筑面积约17万㎡,全南向7栋围合布局,包括住宅、8600㎡特色社区商业及12班幼儿园配套,项目2.69容积率,主力产品为78-144㎡ 3-5房单位,一期于2015年底首推,现二手房指导价4.77万/㎡。
二期由7栋塔楼围合而成,4栋商品房、3栋保障房,33-34层其中住宅共计758套,项目自带 一所12班幼儿园和一所36班九年制学校 及公交首末站 3200㎡。
除中粮凤凰里项目外,周边还聚集了鸿荣源奥莱、华强城、万丰区域规划这几个大型旧改项目,都是超级综合体项目,业态齐全,届时将给沙井带来大范围和高规格的市容巨变。
配套情况
交通:项目距离11号线桥头站D2出口约600米,属于地铁盘,邻近宝安大道与广深公路,可自驾前往深圳各区,无论是乘坐轨道出行还是自驾,都相对便利;
教育:根据相关规划,项目配建有一所12班幼儿园,旁边还有一所36班九年一贯制学校,周边有桥头学校,立新湖外国语学校,南方科技大学附属中学等,片区学校办学相对普通。
商业:项目会有部分底商,后期大规划会有商业。北侧有30万㎡鸿荣源奥特莱斯商业(在建),14万㎡万丰海岸城商圈,立新湖南侧即是福永商业中心,吃喝玩乐购家附近就能解决。
休闲:距离立新湖公园直线距离约400米,3公里范围内凤凰山森林公园、万丰湖湿地公园等绿境环绕。
立新湖公园实景
价格参考:中粮凤凰里一期二手房指导价4.77万/㎡,距离较近的华强城三期2020年8月开盘均价也是4.77万/㎡,更远些到塘尾和马安山地铁附近,万丰海岸城历年开盘价在5.75万/㎡,不过学区划分在宝安外国语分校内,中粮二期预计价格在5万左右。
中粮悦章凤凰里【中粮悦章凤凰里】中粮悦章凤凰里开发商售楼处电话:400-992-0669(中介勿扰)
来电可了解楼盘最新动态、房价、在售房源、交楼时间等信息!让你买的放心,住的舒心!
中粮悦章凤凰里开发商售楼处直销_欢迎来电预约享受内部折扣_恭迎品鉴
◆提前来电-预约登记尊享售楼处销售专业讲解〢一对一热情服务〢◆
中粮悦章凤凰里开发商售楼中心〢预约可享内部优惠〢匠心钜制-恭迎品鉴〢
温馨提示:项目没有所谓的“分机号”注意保护个人隐私!谨防上当!看房请务必提前预约,避免临时无人接待,感谢您的配合!
注:本广告/宣传资料所涉及对项目周边环境、交通、商业、学校、规划设计及其他公共设施等介绍旨在提供相关信息,不构成开发企业的任何要约和承诺,买卖双方的权利义务以政府的最终批准文件及买卖合同所载内容及实际交付为准
声明:本文由入驻焦点开放平台的作者撰写,除焦点官方账号外,观点仅代表作者本人,不代表焦点立场。
