2025言成云祥公馆首页网站-(言成云祥公馆)楼盘详情-最新房价-户型配套-容积率-停车位

搜狐焦点永州站 2025-10-07 12:09:00
用手机看
扫描到手机,新闻随时看

扫一扫,用手机看文章
更加方便分享给朋友

宝安石岩「言成云祥公馆」推出1栋C/D座,共172套房源,面积有72㎡的2房1卫,86-88㎡的3房1卫,99㎡的3+1房2卫,140㎡的4+1房2卫户型,据传本次备案均价会在5万/㎡,折后均价可能在4万/㎡…

✨ 言成云祥公馆认证通道,安全无忧咨询热线 ✨

✅言成云祥公馆售楼处丨开发商丨营销中心统一热线:400-992-0669(全程认证,无分机号)

✅ 通话自动隐藏号码,保护个人隐私,谨防非渠道诈骗

言成云祥公馆营销中心24小时电话:400-992-0669(售楼中心接待处)项目最新动态:房价、价格、折扣、学区、学校、地铁、交通、户型图、备案价、特价房、优缺点、得房率、优惠活动、小区图片、开盘时间、交房时间、周边配套、位置、最新详情,请来电咨询我们售楼处热线:400-992-0669 中介勿扰

『言成云祥公馆』位于宝安区石岩街道长山塘路和园华路交会处东南侧,位于石岩科创城板块,石岩是宝安工业最强街道,国家自主创新示范区、国家高新区优势叠加,半导体与集成电路、超高清视频两大千亿级产业集群强势崛起,科创城将承担起为宝安“补芯强链”、解决“卡脖子问题”的历史责任,“宝安制造看石岩”必将响彻湾区(深圳宝安石岩言成云祥公馆售楼处电话:400-992-0669)

宝安石岩「言成云祥公馆」推出1栋C/D座,共172套房源,面积有72㎡的2房1卫,86-88㎡的3房1卫,99㎡的3+1房2卫,140㎡的4+1房2卫户型,据传本次备案均价会在5万/㎡,折后均价可能在4万/㎡出头,总价在2字头起,计划在2026年9月底前带精装交房。(深圳宝安石岩言成云祥公馆售楼处电话:400-992-0669)

云祥公馆也是嘉信云峰公馆二期项目,当时云峰公馆在2019年10月26日首推337套房源,销售均价5万/㎡,毛坯交房,当天去化就达到了83%,在石岩上屋这个板块是很少有新盘入市的,可以对比的商品房小区也非常少,基本没什么选择。

如果对我们楼盘感兴趣,售楼处预约热线,来电预约可享内部优惠与保留房源(物 业 管 理 费 家 电 礼 包 赠 送 和 购 房 补 贴)请认准我们售楼中心电话/预约热线:400-992-0669 中介勿扰

72㎡的2房2厅1卫,设计的是竖厅格局,客厅3.5米开间,LDKB一体化设计,2个卧室分别做到了3.1米/2.7米的宽度,L型厨房,卫生间干湿分离,得房率约90%(包含赠送),东北朝向。

86㎡的3房2厅1卫,设计的是竖厅格局,客厅3.5米开间,LDKB一体化设计,3个卧室分别做到了3.2米/2.85米/2.65米的宽度,L型厨房,卫生间干湿分离,得房率约90%(包含赠送),东北或西南朝向

88㎡的3房2厅1卫,设计的是竖厅格局,客厅3.5米开间,LDKB一体化设计,3个卧室分别做到了3.1米/2.9米/2.3米的宽度,L型厨房还带1个小生活阳台,卫生间三段式分离,得房率约90%(包含赠送),西南朝向。

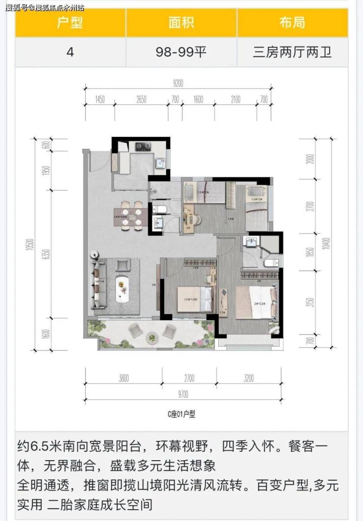
98-99㎡的3房2厅2卫,设计的是竖厅格局,客厅3.8米开间,LDKB一体化设计,三开间朝南,3个卧室分别做到了3.2米/2.7米/2.7米的宽度,其中1个次卧可以做多1个房中房,客厅连接次卧出6.5米长的大阳台,U型厨房,卫生间干湿分离,得房率约90%(包含赠送),东南朝向。

140㎡的4房2厅2卫,设计的是竖厅南北通透格局,客厅3.8米开间,LDKB一体化设计,四开间朝南,4个卧室分别做到了3.5米/3米/2.8米/2.7米的宽度,另外还有1个小储物间,客厅连接次卧出6.6米长的大阳台,L型厨房,卫生间干湿分离,得房率约90%(包含赠送),阳台主朝东南向。

云祥公馆,由言成集团打造,总占地面积约1.03万㎡,总建筑面积约6.7万㎡,计容建筑面积约4.33万㎡,容积率4.05,绿化率40%,共由2栋总高31层的住宅组成,其中1栋C座住宅31F,1栋D座住宅31F,另外1栋A座办公+1栋B座商业,配建有公交首末站。(深圳宝安石岩言成云祥公馆售楼处电话:400-992-0669)

总规划317户,其中可售商品房172套,保障性住房44套,回迁房101套,2梯5户/2梯6户的设计,地下室有3层,规划停车位610个,其中带充电桩车位183个,其它有预留充电设施安装条件。

项目距离约440米就是6/13号地铁线“上屋站”,步行5分钟可到达,目前6号线已经在开通运营,5站到红山,6站到深圳北站,也可以1站到石岩中心换乘深大城际,2站可到机场东。

13号线据深圳交通局官网称将在2025年年底开通,该线路也是深圳3条快线之一,号称“深圳科技核心大动脉”,从南到北,串联深圳湾总部基地、后海中心、南山科技园、西丽高铁枢纽、留仙洞总部基地、白芒科研机构、宝安石岩科创城等多个重要片区。沿线华为、中国电子、腾讯、阿里等500强汇集,大批高新人才聚集,形成科创阵地,势必引领片区经济崛起。全程时速120公里,4站到南山百旺港大站,7站到南山西丽高铁站,8站到高新北。

项目家门口的湖东小学:湖东小学在2024年的录取积分是70.4分,上屋小学录取积分是86.8分,官田学校小一录取积分72.7分,初一录取积分是82.9分

按照宝安区教育局公布的入学积分政策,只要是非深户+学区购房基础分有75分,深户其其它区户籍+学区购房基础分有100分,另外还有加分项,学位相对没这么紧张。

小学学区划分在宝安区实验学校(集团)官田学校(小学部)、宝安中学(集团)石岩外国语学校(小学部)、湖光学校(小学部)、天骄小学(集团)、湖东小学、新安中学(集团)、龙田学校(小学部)组成的共享学区;

初中学区划分在宝安中学(集团)石岩外国语学校(初中部)、宝安区实验学校(集团)官田学校(初中部)、湖光学校(初中部)、新安中学(集团)龙田学校(初中部)组成的共享学区。另外家门口也有上屋初级中学在建设中。

附近200米有规划集中商业体,目前还没开业,距离约1.4公里有星城购物中心,算得上是石岩比较好的购物中心了,里面有华润万家乐购、星巴克、优衣库、肯德基等等,也可以乘坐地铁2站到光明凤凰城这边逛万科广场、蓝鲸世界购物中心。

云祥公馆目前主体已经出地面15层左右,现场施工车辆还是一直有看到进出,进度还是可以的,预计在今年年底之前就会封顶。

项目总高只有31层,4.05的容积率对比当下深圳大多数的新房,还是相当不错的。

言成云祥公馆最新介绍:备案价、折扣、学区、地铁、交通、户型图、特价房、优缺点、得房率、优惠活动、小区图片、开盘时间、交房时间、周边配套、最新详情等咨询。

深圳言成云祥公馆售楼处电话: 400-992-0669 预约来访下定当天更享折上折!!

(售楼中心 | 欢迎来电咨询 | 请提前预约登记看房 | 1:1销售专业讲解)

宝安言成云祥公馆售楼中心热线: 400-992-0669(售楼处)【VIP贵宾专线】

本广告仅为邀约邀请,图片及文字等仅供参考,项目周边配套、市政设施等最终以政府部门规划建设为准;买卖双方的权力与义务以最终签署的《商品房买卖合同》及补充协议约定为准

声明:本文由入驻焦点开放平台的作者撰写,除焦点官方账号外,观点仅代表作者本人,不代表焦点立场。