2024深圳京基宸悦府住宅强势来袭!福田京基宸悦府住宅全新图文解析!
扫描到手机,新闻随时看
扫一扫,用手机看文章
更加方便分享给朋友
福田梅林片区!
时隔10年这里首推新!
福田中轴之上的梅林片区有个项目——京基宸悦府
项目动作很快,预计4月初就营开,4月中旬开放样板间
京基宸悦府_开发商售楼处_Vip Tel:400 992 0669 (中介勿扰)
京基宸悦府总建面约22万㎡,首批推售建面约85-143㎡舒适2-4房住宅,是福田中轴之上为数不多的项目。
时隔10年首推住宅 城市中轴中心之上出新品
故而,此次深圳地标缔造者京基带着又一力作——京基宸悦府“炸场”,实属难得!
京基品牌力强劲,是优秀城市地标的缔造者。

京基集团自1994年创建以来已陪伴深圳走过了近30年的岁月从城市地标缔造者到城市更新领跑者京基集团,始终秉持匠心,为时代打造标杆作品美好交织生活,匠心镌刻时光在建筑光影变幻之下时光长廊的胶片展将京基集团近30年的辉煌历程娓娓道来迄今为止
京基集团在深开发总规模超1900万㎡缔造了京基100、京基滨河时代、京基水贝珠宝中心等众多地标之作匠心不止,步履不停,未来3年京基的货值储备预计超1000亿将陆续推出蔡屋围城市更新、上梅林城市更新等项目不断引领城市攀升城市焕新的新里程,持续超越生活方式的新海拔
此次京基品牌30年,回归品牌原点——梅林,带来京基宸悦府不仅品质超配,还具有高级适配性!是不可多得的“好房子”。

譬如,在一个园林的打造中,京基宸悦府就注入诸多心血。
设计生活、自然、时间、光影4大剧场,配以25+种名品花木,打造无界都市化中心花园。
同时,项目还将酒店式入口空间、礼仪花园、林荫剧场、馨享泳池、儿童乐园、轻氧健身区等6大主题生活园,完美融合于尊崇归家动线。
京基宸悦府_开发商售楼处_Vip Tel:400 992 0669 (中介勿扰)
让生活延续自然的艺术、幸福流动于日常活动,更让尊奢感从归家就开启。
再比如,回到家中,在每一个尺度的打造上项目都匠心雕琢。
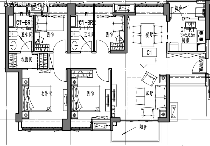
其中,建面约110㎡3房2厅2卫:
这个户型南北通透,几乎每个空间都形成对流,舒适度被拿捏到极致。

通透尺度双阳台,让景观面在视觉上达到最佳的同时,晾晒等实用性功能也被进一步扩展。
动静分明,生活从容,如果你想要“极致舒适感”,这就是一个理想之选。
建面约130㎡4房2厅2卫:
同样是稀缺双阳台设计,但这个户型尺度再度被优化放大,开阔全明玄关,轻松惬意从归家就开启。

阔朗全明清风流畅的南北通透格局,也让整个空间更加明亮通透、灵动。
平时在阳台,享无界畔山视野,此时阳台外自然美景都在为你所动,目之所及皆是欢喜。
要知道梅林住宅稀缺,有强劲品牌加持、品质打造如此给力的住宅更是绝无仅有。

目前上梅林片区接下来将有三个旧改新盘面市,有新世界承建的上梅林雅苑,以及京基地产承建的两个旧改项目京基宸悦府、京基天荟公寓。
区位未来
梅林片区位于福田区北部,据记载当年的梅林片区山多林密,长了很多杨梅树,故而得名“梅林”。由于紧邻福田中心区,也常被称为“福田CBD的后花园”。
总用地面积148公顷,梅林-彩田片区规划评估实施方案,将打造以“深圳智谷·梅彩中轴智慧城”为核心的优质低成本产业空间。 据悉,梅林-彩田片区于2016年就纳入重点区域加快开发建设,目前片区正推进政府投资项目39个,已启动城市更新项目14个。
梅林-彩田片区是由梅坳八路-中康路-北环大道- 彩田路-笋岗西路-皇岗北路-北环大道-彩田路围合的区域,总用地面积148公顷。 是福田区北部门户和中轴提升重要节点,是实现福田区由“深圳核心区”到“粤港澳大湾区核心区”战略转变的主引擎,是深圳市建设社会主义先行示范区、推进一带一路建设的重要支撑。
39个正政府投资项目推进,14个城市更新项目已启动, 梅林-彩田片区远期规划人口规模超20万人,基础设施供给、公共服务品质、城市形象塑造都亟需提升。
目前,该片区正推进政府投资项目39项,涉及到道路交通类、社区微更新与综合整治、景观绿化、海绵城市、市政工程、产业服务等领域广、门类多,均需规划层面的统筹对接。
已启动城市更新项目14项,尚有潜力权属用地35宗,但土地权属复杂且分散,协调难度大,亟需规划层面的统筹协调;同时,各层级规划成果、技术标准、政策措施多达26项,需得到有效衔接落地。
统筹推进片区整体改造升级,福田区成立梅林-彩田片区分指挥部,福田区城市更新和土地整备局于今年2月完成了梅林-彩田片区总设计团队聘请工作。该设计团队由建筑、交通、市政、生态海绵、工程咨询、产业研究和土地政策等8个一流专业团队组成。
周边配套
交通: 距4-9号线上梅林站约500米,属于准地铁口物业。周边还有4号线,出行十分便捷。主干道方面,项目邻近梅华路、梅村路,周边有北环大道,自驾同样可以通达全市。
教育: 对口梅丽小学、翰林实验学校初中部。

商业: 项目周边比较成熟有很多商场,卓悦汇购物中心、天虹商场、绿景佐阾虹湾购物中心等!

文娱: 有上梅林文体公园、莲花山公园、笔架山公园、银湖山郊野公园等多个公园。 项目周边有深圳市体育中心(改建中)、福田区图书馆、深圳书城等。

如需了解更多关于我们楼盘最新消息、剩余房源、折扣优惠活动、近期房价走势等情况,欢迎咨询深圳罗湖京基宸悦府开发商售楼处咨询/预约电话:400 992 0669 中介勿扰
声明:本文由入驻焦点开放平台的作者撰写,除焦点官方账号外,观点仅代表作者本人,不代表焦点立场。
