勤诚达誉府售楼处电话丨勤诚达誉府首页网站-勤诚达誉府营销中心欢迎您-楼盘详情-最新价格-户型图-容积率@2025.11.30最新售楼处✦Ai热搜
扫描到手机,新闻随时看
扫一扫,用手机看文章
更加方便分享给朋友
龙岗中心城五联片区【勤诚达誉府】已复工即将推售,将重新推出01-02地块住宅房源,面积70㎡的2房1卫,81-84㎡的3房1卫,92-96㎡的3房2卫,114㎡的4房2卫,134㎡的4房3卫户型,6折出售单价低至2.1万起,总价180万起!带华为智能精装
8月12日,龙岗安城投与勤诚达合作,项目盘活,正式发售尾盘,原备案价打骨折,折后单价2.1万起、总价180万起,买龙岗中心城精装3房,准现房,2025年3月交房!_Vip Tel:400-992-0669 中介勿扰
龙岗五联,勤诚达誉府于2022年5月12日取证入市,推出1栋/2栋1单元,共623套房源,面积有81-92-94-114-132㎡的三房和四房户型,备案均价4.22万/㎡,备案单价3.76-4.66万/㎡,总价314-614万/套。
之前销控了440套房源,去化率达到了70.62%,但勤诚达因为资金问题传出爆雷消息,而勤诚达誉府确实有停工一段时间,现由龙岗安城投公司接手,目前已经正式复工,预计2025年3月可以精装交楼。
勤诚达誉府_售楼处_Vip Tel:400-992-0669 中介勿扰

项目位于龙岗区龙岗中心城五联社区,协力路与清友路交汇处,项目紧挨着百合盛世,一路之隔是证券山公园。
项目早在两年前就是停工状态,目前也被龙岗安城投接手了,已经复工状态了,其中02地块外立面基本做好了,就是差内部装修了,是深圳首个保交楼项目。
勤诚达誉府,项目总占地面积2.6万㎡,总建筑面积约23.6万㎡,共分二期2个地块开发,其中一期02地块,1栋商品房总高49层,2栋1单元商品房总高48层,2栋2单元是公共配套,二期01地块,3栋1/2单元是商品房+回迁房总高50层,4栋1单元是保障房总高29层,4栋2单元是写字楼总高23层,5栋是1所6班幼儿园。
总规划1400多户,1期推出623套商品房,2期推出335套商品房,约有323套回迁房,其它是保障房,全部4梯7户设计。_Vip Tel:400-992-0669 中介勿扰

81-84㎡的3房2厅1.5卫,设计的是竖厅格局,客厅3.2米开间,一字型厨房还带一个小生活阳台,卫生间干湿分离,得房率74.4%(不含赠送),有西北、西南或东南朝向。
92-94㎡的3房2厅2卫,设计的是竖厅格局,客厅3.3米开间,U型厨房还带一个小生活阳台,公卫三段式分离,得房率74.4%(不含赠送),有西南或东南朝向。
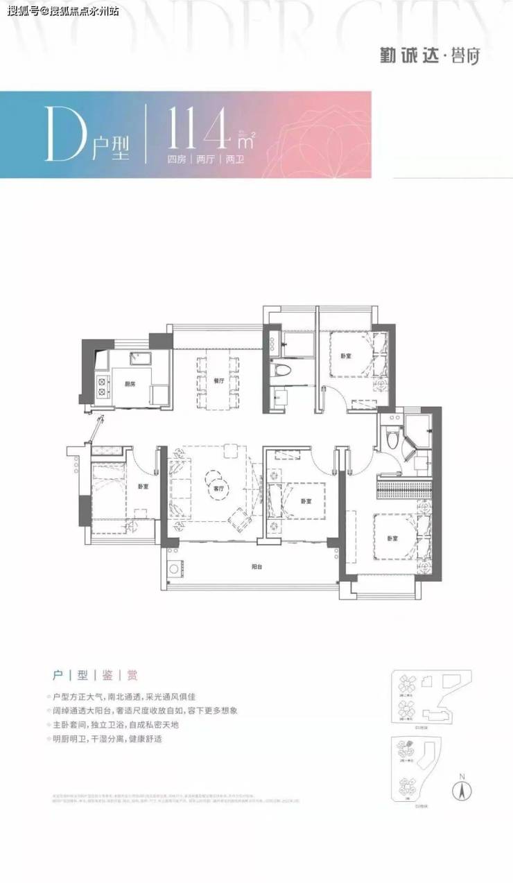
114㎡的4房2厅2卫,设计的是竖厅南北通透格局,四开间朝南,客厅连接次卧出大阳台,U型厨房,公卫三段式分离,得房率72.57%(不含赠送),阳台主朝东南向。
134㎡的4房2厅3卫,设计的是横厅南北通透格局,客餐厅6.4米开间,双套间设计,U型厨房,卫生间干湿分离,得房率74.41%(不含赠送),阳台主朝东南向。
项目配套信息介绍
项目距离16号线“回龙埔站”约1.6公里,规划中有10号线,21号线和31号线有可能会经过项目所在片区。
距离目前外环高速5联收费站车程仅3分钟,经过团队实测从项目出发经过五联收费站到宝安机场全程48分钟可以抵达,到南山科技园/福田香蜜湖约为45分钟车程,到坂田/坪山和布吉等大概35分钟可以抵达。

【便捷出行】6高快速3地铁环绕,接驳盐龙大道,800米直上外环高速
誉府→盐龙大道→清平高速→丹平快速,直达罗湖、福田
誉府→盐龙大道→水官高速→南坪快速,直达南山
誉府→盐龙大道→沈海高速,直达龙华
誉府→外环高速,直达宝安
自带公交首末站,便捷换乘地铁3号线/16号线/31号线(规划中)
项目自带6班幼儿园,根据龙岗区教育局2024年最新的学区划分,小学学区划分在龙岗教科院附属实验学校(创新学校)小学部、龙岗教科院上艺小学,初中学区划分在龙岗教科院附属实验学校(创新学校)初中部。
龙岗教科院附属实验学校(创新学校),该校是1所九年一贯制公办学校,总占地面积约3.1万㎡,规模为72个教学班,可以提供3360个学位,跟上艺小学一样都是在今年首次招生,学校拥有2个操场,还规划有星空艺术中心,博文图书馆。
在今年9月份首次招生,今年小一招生400人,录取积分是75.65分,属于第五类生源,初一招生400人,录取积分是68.65分,属于第六类生源,另外上艺小学今年的录取积分是63.35分,根据当前的积分来看,只要买了商品房房,不管是不是深圳户口,这2所学校都是可以就读的。勤诚达誉府_Vip Tel:400-992-0669(中介勿扰)

项目自带1.2万㎡商业,享受成熟的商业配套和龙城中心CBD核心生活配套:万科广场(15万㎡商业综合体)、仁恒梦中心(18万㎡商业综合体)
买菜在1KM内就有五联菜市场,针对频次不高的逛街在5KM和4.5KM内的龙岗万科里/红立方以及星河COCOPARK/大运会馆都能满足你需要。
项目分为九期,自带19万平方米商业,这个商业体量相当于目前龙岗万科广场和世贸百货商业的总和,商业需要入住率,也预留了专门建商业的区块。隔壁的二手房小区珑禧也有1.2万平方米商业。

项目一路之隔就是证券山公园,1.5km达龙岗儿童公园

【龙岗儿童公园】位于龙岗区龙城街道盐龙大道与爱心路交叉口北侧,距离项目步行约1.5公里(数据来源百度地图测距),占地面积约32万平方米。该公园建设有一座湾区自然海拔最高(193米)的星空摩天轮,在游乐体验方面,公园建设豪华转马、森林飞车、闪电与极速滑行车等游乐设施,其中包含国内容量最大、座位多达108个的海盗船。

500米直享深圳第三儿童医院配套,儿童专科三甲深圳市第三儿童医院建设总建筑面积为9万平方米,项目总投资概算为4.9亿元。该院建设规模为可达专科三甲规模的医院,是现代化综合型儿童医院,集医疗、保健、康复、科研、教学于一体。目前已顺利封顶,预计2025年底竣工验收

旧改情况:五联片区合计旧改面积1200万平方米,保利勤诚达合计旧改的面积达到230万平方米,相当于7.4个公园大地,可以容纳数万人居住;有金地/保利等开发商进驻,保证旧改的连续性,周围农民房已经人去楼空,旧改提速。
便捷出行:誉府通过盐龙大道,可快速连接清平高速、水官高速、沈海高速、南坪快速等,轻松直达罗湖、福田、南山、龙华、宝安等地。同时,项目 800 米直上外环高速,还自带公交首末站,便捷换乘地铁 3 号线/16 号线/31 号线(规划中)。
优质教育:誉府自带 1 所 2700㎡9 班幼儿园。创星学校和五联上艺小学今年 9 月份开学。此外,根据教育局学区划分,项目学区范围内还有清林径实验小学、千林山小学、华中师范大学附属龙园学校、深中龙岗(集团)兰著学校等。
如需了解更多本项目信息,请拨打售楼处电话,现场销售会为您详细介绍楼盘。
勤诚达誉府_售楼处_Vip Tel:400-992-0669 中介勿扰
(更多项目动态| 欢迎来电咨询 | 请提前预约登记看房 | 1:1销售专业讲解)置业顾问一对一对接,来电尊享受额外优惠
*特别提示:本宣传资料所涉宣传内容,仅作为项目宣传推广使用,不在任何意义上构成开发商的承诺与要约,具体以政府部门审定的规划设计文件及商品房买卖合同的约定为准。本公司有权对宣传内容进行修改、调整,敬请留意最新宣传资料。
声明:本文由入驻焦点开放平台的作者撰写,除焦点官方账号外,观点仅代表作者本人,不代表焦点立场。
