龙岗新盘丨金光华凤凰九里首页网站-金光华凤凰九里2025年最新房价+户型图+小区配套+特价房源@金光华凤凰九里楼盘详情
扫描到手机,新闻随时看
扫一扫,用手机看文章
更加方便分享给朋友
龙岗【金光华凤凰九里】售楼处24小时电话:400 992 0669(开发商直销)现场详细解答丨项目介绍丨户型图丨在售房源丨特价房丨学校丨交通位置丨样板房丨小区图片丨交房时间丨周边配套丨
(深圳龙岗)金光华凤凰九里售楼处电话:400-992-0669【售楼中心】
平湖金光华凤凰九里营销中心电话:400-992-0669【营销中心】
提前预约售楼处看房,可享受线上预约折扣,一对一专属置业顾问服务。
楼盘详情介绍(楼盘项目怎么样?多少钱一平?什么时候交楼?有什么户型?周边有什么学校?物业费多少?),想了解更详细楼盘资料和最新折扣价格,请拨打官方售楼处电话400-992-0669,销售会为您详细介绍。
金光华凤凰九里,位于龙岗区平湖街道,由深圳大承企业管理有限公司开发建设,为平湖凤凰工业园旧改其中两地块,两个地块加起来将提供1992套房源,其中保障性住房400户,可售商品住宅1592户。
项目位于龙岗区平湖街道凤凰大道与鹅岭路交汇处西侧,北侧紧挨凤凰大道,西侧是正在动工的信城缙学府,东南侧是鹅公岭社区公园,东北侧靠近东莞凤岗。(深圳金光华凤凰九里售楼处电话:400-992-0669)
金光华凤凰九里,于2023年11月23日取证入市,推售面积68㎡的2房1卫,83-85㎡的3房2卫,106㎡的4房2卫户型,备案均价4.21万/㎡,备案单价3.72-4.9万/㎡,总价263-522万/套, 折后单价3.1万/㎡,总价210万起,计划2026年3月带精装交付,金光华凤凰九里_Vip Tel:400-992-0669 中介勿扰
项目共分7个地块开发,总占地面积约11万㎡,其中开发建设用地面积约8.18万㎡,总建筑面积约48.95万㎡,容积率6.0,共由20栋超高层住宅+1栋办公楼组成,总房源量超4700套。
如需了解更多详情,欢迎咨询金光华凤凰九里售楼处电话400-992-0669,过来我们营销中心看房提前来电预约价格还能更优惠。
【金光华凤凰九里售楼中心400免费咨询/预约电话:400-992-0669,中介勿扰】
温馨提示:过来营销中心参观样板间请记得提前拨打售楼处400热线预约,感谢您的配合!
67㎡的2房2厅1卫,设计的是竖厅格局,S墙设计预留冰箱位,U型厨房,卫生间三段式分离设计,东南朝向。
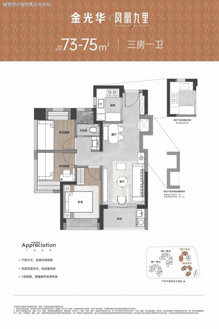
73-75㎡的3房2厅1卫,设计的是竖厅格局,S墙设计预留冰箱位,双次卧双面采光,U型厨房,卫生间三段式分离设计,有西南朝向及东南朝向。
83-85㎡的3房2厅2卫,设计的是竖厅格局,S墙设计预留冰箱位,四开间朝南,主卧双窗户南北对流,U型厨房,有西南朝向及东南朝向。
84-85㎡的3房2厅2卫,设计的是竖厅南北通透格局,主卧双飘窗设计,U型厨房,客厅阳台主朝西北、东北向。
106㎡的4房2厅2卫,设计的是竖厅格局,S墙设计预留冰箱位,四开间朝南,U型厨房,客卫三段式分离设计,西南朝向。
其中01地块:用地性质为二类居住用地+商业用地,总占地面积约2.17万㎡,容积率6.5,其中住宅面积95980㎡(包含出售型安居商品房29877㎡),商业办公及旅馆业建筑4.1万㎡,配建1所12班幼儿园。
其中02地块:用地性质为二类居住用地,总占地面积约1.41万㎡,容积率5.8,其中住宅面积77550㎡。
其中03地块:用地性质为二类居住用地,总占地面积约1.41万㎡,容积率6.3,其中住宅面积77520㎡。
其中04地块:用地性质为二类居住用地,总占地面积约1.74万㎡,容积率5.6,其中住宅面积95820㎡,配建1所9班幼儿园。
其中05地块:用地性质为二类居住用地,总占地面积约1.45万㎡,容积率5.5,其中住宅面积79940㎡。
其中06地块:建设1所九年制45班公办学校。
其中07地块:公园绿地,占地面积约0.77万㎡。

项目引入花园城市概念,定制规划社区慢行道系统,打造成为城市公园剧场,并以双慢行道、三处公园、三重休闲空间、五大花街景轴,让城市与自然联动,让业主近享社区约10万㎡超级绿量。
主力面积约67-106㎡ 2-4房,户型为通透格局、多开间朝南向,全屋多飘窗、多维收纳系统设计。
小区信息简介
项目规划了约500米的立体城市连廊系统,串联全龄教育、精致商业、品质人居、活力运动、公园休闲等功能板块。
社区环境:小区重点规划约6000㎡有氧体育活动场地,通过双层立体化集中布置,以天桥串联起运动社区的各个场地与专属社区,给予更多大城美好体验。
游泳馆、篮球场、mini足球场、儿童游乐场地、健身活动场地等活力功能区;
花园会客厅、主题书吧等社区无界泛会所,满足业主游泳、球赛、健身、童乐及兴趣社交等乐活需求。
金光华凤凰九里引入花园城市概念,定制规划社区慢行道系统,打造成为城市公园剧场,并以双慢行道、三处公园、三重休闲空间、五大花街景轴,将整个大城无缝衔接起来。
业主可近享社区约10万㎡超级绿量,在生态、运动、社交上,收获全新的居住体验。(深圳金光华凤凰九里售楼处电话:400-992-0669)
项目规划有凤凰九里公园和集市公园,其中凤凰九里公园涵盖约10万㎡自然山体公园与山脚约4900㎡人文公园,设置约1公里登山道、各年龄段儿童乐园、休闲健身广场、篮球场、羽毛球场等,满足全龄段休闲娱乐需求。
集市公园更具艺术气息,其功能包含可路演的星空舞台、可露营野炊的艺术休憩草坡等,以后在自家门口就能享受到野趣山园的美好时光。
此外还有无界社交泛会所,包含儿童活动、健康活动、休闲洽谈、休闲棋牌等多功能,让业主们在此欢聚,碰撞思想,以轻松的姿态实现同频社交。
项目配套信息
交通方面,当前最近的10号地铁线“双拥街站”距离约3公里,骑行时间约11分钟;周边还有正在规划建设中的17号地铁线“鹅公岭站”,以及18号地铁线“良安田站”,深惠城际“平湖枢纽”,深大城际“白泥坑枢纽”。
商业方面,项目内还规划了约1.8万㎡的Minimall商业,采用开放式街区设计,将打造成为深圳版的The Commons。
项目临近建面约30万㎡的万达广场,接近于西部最火的壹方城的体量,周边还有平湖天虹、华盛奥特莱斯、凤凰城购物中心等时尚购物天地,吃喝玩乐一应俱全。
教育资源方面,项目西侧规划九年一贯制公立学校,内设图书馆、体育馆、文体专业教室等教育设施,同时项目内配建一所12班+一所9班幼儿园。项目周边还有平湖实验学校、龙岗区实验高级中学,优享近距离的一站式高质量教育。(具体学位划分以教育局公布信息为准)
文化中心:项目还近邻平湖北部新城文化中心(规划中),总建面约3万㎡,含图书馆、文化馆、体验中心,未来孩子能日常浸染在浓厚的人文氛围中,精神世界更丰富。
医疗配套方面,深圳大学附属华南医院、深圳市龙岗区第五人民医院、暨南大学附属深圳华侨医院、深圳市第三人民医院等;
休闲生态方面,项目周边环绕约88万㎡凤凰山国家矿山公园、约300万㎡平湖生态园、凤凰山高尔夫球场、雁湖公园、雁田水库等自然生态,亦有鹅公岭社区公园近在咫尺,给予便捷的盎然绿意生活体验。
28载金光华 以大城经验升级理想城市
秉承“焕新美好城市,专筑品质生活”理念,致力“成为粤港澳大湾区高品质城市综合运营商”。目前,集团已打造多个标杆作品,筹备开发大型项目总数达20余个,规划建设面积超1000万㎡。
从深圳第一家无缝连接地铁的大型国际购物中心——金光华广场,到圳央墅区溪山君樾、龙岸君粼,28载金光华以大城经验升级理想城市。
尊崇专业物管 承载大城美好生活
光华物业,金光华集团旗下子公司,24载专业物管经验沉淀,以前瞻视角为项目量身打造“king+”生活服务体系,赋予美好大城生活体验。
金光华凤凰九里售楼处预约咨询电话:400-992-0669(售楼中心24小时电话)
龙岗金光华凤凰九里开发商售楼处电话:400-992-0669(售楼中心)
平湖金光华凤凰九里售楼处电话:400-992-0669(售楼中心)
金光华凤凰九里售楼处电话:400-992-0669(营销中心)
深圳【金光华凤凰九里】—「开发商售楼处」—「欢迎您!」
来电可了解楼盘最新动态、房价、在售房源、交楼时间等信息!让你买的放心,住的舒心!
注意:本项目不收任何费用,售楼中心〢欢迎来电咨询〢安全通话隐藏真实号码
声明:本文由入驻焦点开放平台的作者撰写,除焦点官方账号外,观点仅代表作者本人,不代表焦点立场。
