壹湾府(售楼处)首页网站-壹湾府展示中心(营销中心)-壹湾府楼盘欢迎您-小区环境-户型-价格-地址-周边配套-楼盘详情
扫描到手机,新闻随时看
扫一扫,用手机看文章
更加方便分享给朋友
项目于2023年12月15日取证入市,推出215套房源,面积86㎡的3房1卫,96㎡的3房2卫,118㎡的4房2卫户型,备案均价6.6万/㎡,备案单价6.13-7.23万/㎡,总价525-861万/套!计划2025年12月底精装交房。
最新消息:目前该楼盘推出了限量单位房源,85折优惠,折后均价5.62万/㎡,折后单价5.21-6.15万/㎡,总价在446-731万/套区间,并且还送购房者豪车钜惠(奔驰E300,具体细节可来电咨询)最终成交价格还会有惊喜。

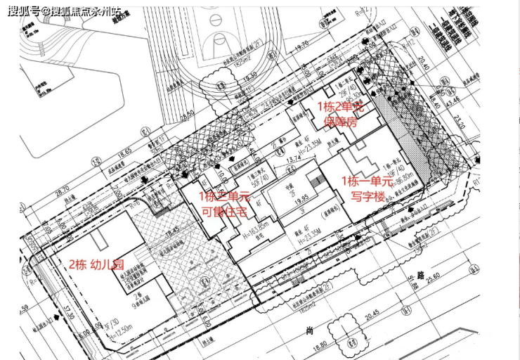
壹湾府,由星时代开发商操刀,总占地面积约0.8万㎡,总建筑面积约7.46万㎡,计容建筑面积约5万㎡,容积率5.76,绿化率40.04%,共由1栋3个单元+1所9班幼儿园组成,其中1栋1单元商业办公19层,1栋2单元保障房29层,1栋3单元商品房50层。
总规划335户,其中商品房215户,保障房120户,地下4层,停车位494个(车位比1:1.47)壹湾府_Vip Tel:400-992-0669 中介勿扰

壹湾府推出建面约86-96-118㎡住宅,三房至四房,均为南向户型,无论是刚需还是改善型需求都能满足。
B1户型,建面约86㎡,三房两厅两卫,传统竖厅,动静分区结构,客厅进深有点短,最小的那个卧室狭长有点不太好利用,其它功能间倒还好,空间尺度对得起这个建面,86㎡做三房两卫本身也算不易了。
B2户型,建面约96㎡,三房两厅两卫,传统竖厅,动静分区结构,这个户型是86㎡户型的plus版,最直观的感受就是客厅进深更长,公区部分空间感较为舒适,
B3户型,建面约118㎡,四房两厅两卫,横厅隐性过道,动静分区结构,动区空间尺度较为舒适,搭配宽景阳台很讨人喜欢。静区主卧通透且具备做套间的条件,几个次卧即使摆1.8米的床也不会觉得紧凑
项目所在的龙华超级商圈总面积16.83平方公里,包括壹方天地,龙华海岸城,龙华区商业中心,天虹等等,现在人气十分旺盛,未来这里将成为市级核心商圈和世界级未来消费体验中心。
龙华国际商圈是深圳重点发展的区域之一,具有无可复制的中芯地段优势。未来将有更多购物、文化、休闲、国际商务等功能聚集,成为与国际接轨的商业中心。
项目所处的龙华中心大区,是深圳地理位置上的中心区域,也是粤港澳大湾区发展中轴。“十四五”期间,龙华中心区被纳入都市核心区范围,并且区域南面与福田相邻,可以吸纳福田外溢的资源,使得片区发展迎来很大契机。
壹湾府_营销中心_Vip Tel:400-992-0669(中介勿扰)
周边最近的地铁是25号线(在建)【景龙站】,步行距离大约400多米,地铁通勤非常方便。
到地铁4号线【龙华站】步行距离大约700多米,也非常方便。
另外,还有一条22号线(在建)【油松站】,步行距离1.4公里。
自驾开车,靠近工业路、龙华大道、龙华和平路等多条城市主干道,快速接驳福龙路、新彩隧道、沈海高速、梅观高速等直达深圳各个重点区域。

超300万㎡商业体量,下楼即享万般繁华
项目自带约4800㎡商业配套,旁边是约60万㎡壹方天地商业,即买即享繁华商业,沉浸式体验吃喝玩乐购。
壹方天地超过1000家品牌商家,其中,娱乐潮玩超20家、网红轻奢餐饮超50家、潮流服饰超300家、品牌美食超90家、国际一线美妆超20家。
周边还有红山6979、华南首家Costco旗舰店、壹方系商圈、星河coco city,纵享繁华与便利,从此精彩无界限。
项目配套建设2400㎡幼儿园,配备足球场、环形跑道、滑梯等活动设施,家门口教育,目送孩子安全往返。
紧挨着公办九年一贯制龙华区创新实验学校,是一所新学校,在龙华属于第二梯队学校。
学校注重科教融合,聘任美国医学与生物工程院院士、深圳理工大学(筹)计算机科学与控制工程学院院长潘毅出任学校科学副校长。
壹湾府_Vip Tel:400-992-0669 中介勿扰
龙华壹湾府售楼处电话:400-992-0669 (1对1专线)欢迎咨询最新动态、房价、在售房源、交楼时间等信息,“请务必注意”甄别,我们营销中心只有一个号码,不需要转换分机。
看房请务必提前预约,避免临时无人接待, 感谢您的配合!
龙华中心区·壹湾府欢迎您-预约看房,置业顾问一对一对接在售户型图丨项目介绍丨房源丨_周边配套丨详细解答
温馨提示:项目没有所谓的“分机号”注意保护个人隐私!谨防上当!看房请务必提前预约,避免临时无人接待,感谢您的配合!
声明:本文由入驻焦点开放平台的作者撰写,除焦点官方账号外,观点仅代表作者本人,不代表焦点立场。
