南山湾啟紫荆府-湾啟紫荆府(营销中心)首页网站-湾啟紫荆府售楼中心-欢迎您-楼盘详情-最新房价@售楼处电话

搜狐焦点永州站 2025-10-04 11:43:00
用手机看
扫描到手机,新闻随时看

扫一扫,用手机看文章
更加方便分享给朋友

深圳前海【自贸·湾啟紫荆府】前海新房目前非常紧俏,特别是妈湾这个板块,是前海密度最低的区域,旁边的前海湾花园也是单身公寓性质的房子,项目是前海核心区域第一个新规后的产品,得房率最高达到100%!【自贸·湾啟紫…

深圳前海【自贸·湾啟紫荆府】前海新房目前非常紧俏,特别是妈湾这个板块,是前海密度最低的区域,旁边的前海湾花园也是单身公寓性质的房子,项目是前海核心区域第一个新规后的产品,得房率最高达到100%!且是纯商品房小区!计划在2027年3月30日带智能精装交付。

如需了解本楼盘更多详情,欢迎来电咨询自贸湾啟紫荆府开发商售楼处免费400咨询/预约电话:400-992-0669(开发商直销,中介勿扰),因近期参观的人员太多,本项目营销中心暂不接受临时到访,为不耽误您的行程,过来楼盘现场参观样板房请务必记得提前来电预约,预约看房的话最终房价还能更加优惠,包您满意!

【自贸·湾啟紫荆府】2栋已取证加推,于6月20号开盘选房,备案均价10.7万/㎡,折后约8.5万起,111平户型折后960-1060万,相比一期便宜了60-100万!

此次加推最后一栋住宅,户型约111-142平3-4房,其中111平三房66套,122平四房33套,142平四房66套。计划在2027年3月30日带智能精装交付。

自贸湾啟紫荆府开发商售楼处_Vip Tel:400-992-0669 (开发商直销,中介勿扰)

项目去年1栋开盘入市,折后均价10.2万,本次开盘价格每平米便宜了几千元。且为最后一栋住宅,已推售的是1栋1单元/2单元还有少量的房源在售,本次推售的2号楼是最后一栋住宅,也是妈湾当前唯一在售的新盘。

2栋距离兴海大道更远一些,更安静。兴海大道大货车很多,受主干道噪音影响相对较小。

景观视野更好,2栋更靠近前湾河,景观视野更好,周边没有高层建筑遮挡,可以看河景,部分高楼层可以看海景。

门槛更高,2栋主要为改善大户型,没有96平的三房产品,最小111平三房,总价960万起,更多是针对改善客户。

纯商品房社区,没有回迁房、保障房、租赁房,居住氛围更加纯粹。

新规设计,得房率约为95%(含赠送)。户户大阳台,4梯5户,独立电梯厅。

【自贸·湾啟紫荆】2栋已取证,备案均价10.71万/㎡,面积111-122-142㎡,共165套!于6月20日开盘选房!

04-05户型111㎡66套,总价区间1003-1123万,单价区间9.14-10.24万/,西南向

03户型122㎡33套,总价区间1237-1390万,单价区间10.25-11.53万/㎡,东南向

01-02户型142㎡66套,总价区间1488-1712万,单价区间10.52-12.08万/㎡,东北/东南两种户型结构

如需了解更多详情,欢迎咨询自贸湾啟紫荆府售楼处电话400-992-0669,过来我们营销中心看房提前来电预约价格还能更优惠。

前海自贸湾啟紫荆府售楼处400免费咨询/预约电话:400-992-0669,中介勿扰

温馨提醒:欢迎致电开发商售楼中心,我们将竭诚为您解答疑问。为确保您的咨询安全,通话时号码将自动隐藏。请提前与销售团队预约,以确保您能顺利进入销售现场,避免不必要的等待。

111㎡的3房2厅2卫,2栋04户型,设计的是竖厅格局,专梯入户有送约8.9㎡的独立公区,客厅5.15米开间,超宽客厅,LDKB一体化设计,动静分区,三开间朝南,主卧大套间无柱弧形270°转角飘窗,3个卧室分别做到了主卧17.64㎡/次卧9.12㎡/次卧8.57㎡(包含墙体飘窗),客厅连接次卧出8米长的观景大阳台,U型厨房,卫生间干湿分离,得房率约76.7%(不含赠送),西南朝向。赠送面积18.56㎡(不含公区),加上赠送后得房率约93.65%。

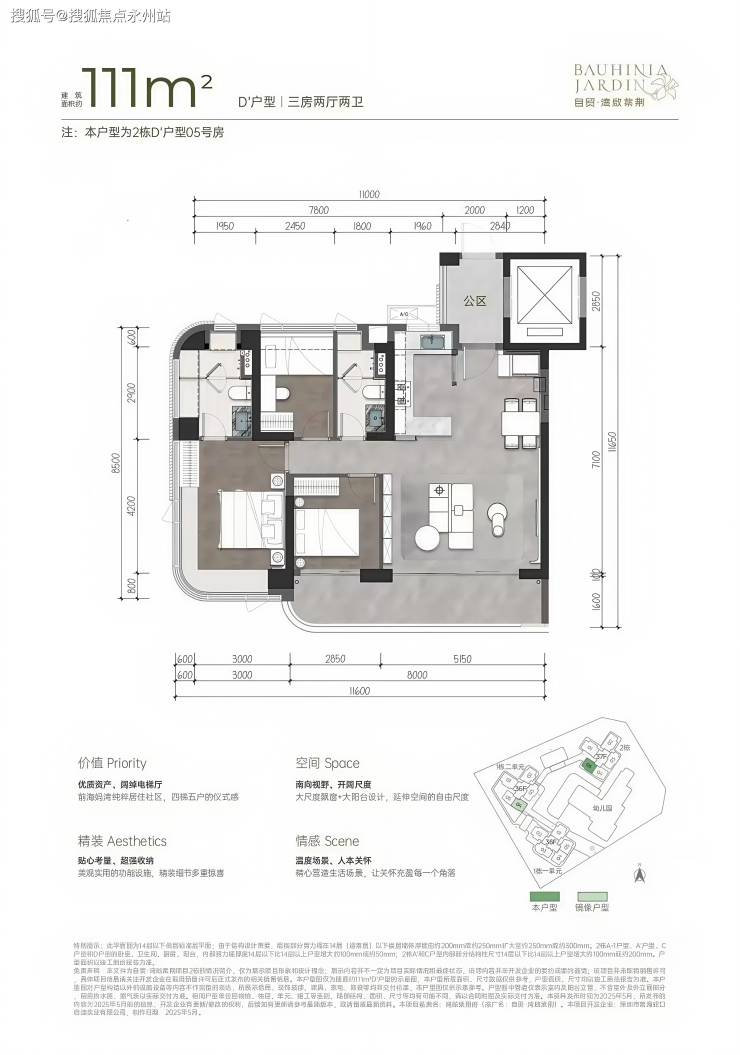
111㎡的3房2厅2卫,2栋05户型,设计的是竖厅格局,专梯入户有送约5.7㎡的独立公区,客厅5.15米开间,超宽客厅,LDKB一体化设计,动静分区,三开间朝南,主卧大套间无柱弧形270°转角飘窗,3个卧室分别做到了主卧17.64㎡/次卧9.12㎡/次卧8.57㎡(包含墙体飘窗),客厅连接次卧出8米长的观景大阳台,U型厨房,卫生间干湿分离,得房率约76.7%(不含赠送),西南朝向。赠送面积18.56㎡(不含公区),加上赠送后得房率约93.65%。

122㎡的4房2厅2卫,设计的是竖厅类双龙抱珠格局,专梯入户送5.7㎡的独立公区,客厅4.1米开间,LDKB一体化设计,五开间朝南,主卧大套间无柱弧形270°转角飘窗,4个卧室分别做到了主卧20.67㎡/次卧11.1㎡/次卧10.6㎡/次卧7.04㎡(包含墙体飘窗),客厅连接次卧出7米长的观景大阳台,U型厨房,卫生间干湿分离,得房率约76.7%(不含赠送),东南朝向。赠送面积20.93㎡(不含公区)),加上赠送后得房率94.09%。

142㎡的4房2厅2卫,2栋01户型,设计的是横厅南北通透格局,专梯入户有送6.86㎡的独立公区,客厅5.15米开间,LDKB一体化设计,五开间朝南,主卧大套间无柱弧形270°转角飘窗,4个卧室分别做到了主卧24.62㎡/次卧11.52㎡/次卧9.4㎡/次卧8.5㎡(包含墙体飘窗),客厅连接次卧出8.5米长的超大观景阳台,U型厨房,卫生间干湿分离,得房率约76.7%(不含赠送),阳台主朝东北向。赠送面积23.86㎡,加上赠送后得房率93.6%。

142㎡的4房2厅2卫,2栋02户型,设计的是横厅南北通透格局,专梯入户有送7.62㎡的独立公区,客厅5.1米开间,LDKB一体化设计,五开间朝南,主卧大套间无柱弧形270°转角飘窗,4个卧室分别做到了主卧22.24㎡/次卧9.9㎡/次卧9.4㎡/次卧9.12㎡(包含墙体飘窗),客厅连接次卧出8.7米长的超大观景阳台,U型厨房,卫生间干湿分离,得房率约76.7%(不含赠送),阳台主朝东南向。赠送面积23.27㎡,加上赠送后得房率93.16%。

【自贸·湾啟紫荆府】整体占地面积约2.9平方公里土地,几乎占据了前海妈湾片区的一半土地,规划7大单元板块,是集办公、居住、商业、酒店、文化娱乐配套设施于一体,建筑面积超500万㎡的恢弘体量。

项目地块隶属于妈湾15单元02街坊,该单元组团原规划以商业设施用地为主。调规后:原02和03街坊合二为一,保留部分办公、商业指标的同时,增加了住宅、九年教育用地等功能指标。

自此,湾啟紫荆府所属规划单元从单一的生产功能向多元功能转化,办公、公寓、商业、住宅等规划地块环绕。且相应布局了36班九年制学校、18班幼儿园、门诊部、公园绿地等配套服务设施及市政设施,满足新增住宅的就近配套需求。

新的02街坊整体打包,统一规划。湾啟紫荆府坐落其中,相当于商住综合体的一环。首开区建设用地总面积约9.27万㎡,规划总建筑面积约33.45万㎡。其中,居住约5.84万㎡,公寓约9.8万㎡,办公约6.5万㎡,商业约1.46万㎡。

项目配套设施介绍

(交通)项目距离5号线妈湾站步行约550米,乘坐地铁1站可在铁路公园站换乘15号线、在前海湾枢纽换乘1号、11号线,北邻听海大道、西邻兴海大道,还有月亮湾大道、广深沿江高速等主干道,自驾和地铁出行都是比较便捷的。

(教育)项目自身配建有一所18班幼儿园,南侧紧邻一所36班九年制学校,东侧是哈罗国际学校,周边1公里范围内还分布有南二外妈湾学校、南二外前湾学校、荟同国际学校等。

(商业)毗邻自贸时代中心商业(建设中),项目周边共配套1个商业综合体、6大商业中心和建面约67.5万㎡滨海活力商业,满足日常生活所需。

(医疗)南山区蛇口人民医院、南山区妇幼保健院、南方医科大学深圳医院等多家三甲医院。

(文体)汇集文化艺术中心(规划中)、前海博物馆(建设中)等国际人文配套,赛艇、帆船、戏剧、音乐节等国际范活动持续进行。

(公园)项目旁边即是河边公园,周边一个地铁站距离有月亮湾花园、青青世界、大南山公园等,也可快速抵达宝中滨海公园等。

湾启紫荆府是一个结合了优越地理位置和高品质住宅设计的项目,适合追求生活品质和便利交通的购房者。项目采用的国内最高标准绿建三星建设,貌似前海首个绿建三星标准建设的楼盘,外墙采用玻璃幕墙+铝板打造,颜值非常高,也采用了星级酒店式车库+星级酒店式入户大堂,日常生活方面也更有保障。

如需了解更多详情,欢迎咨询自贸湾啟紫荆府售楼处电话400-992-0669,过来我们营销中心看房提前来电预约价格还能更优惠。

前海自贸湾啟紫荆府售楼处400免费咨询/预约电话:400-992-0669,中介勿扰

温馨提醒:欢迎致电开发商售楼中心,我们将竭诚为您解答疑问。为确保您的咨询安全,通话时号码将自动隐藏。请提前与销售团队预约,以确保您能顺利进入销售现场,避免不必要的等待。

声明:本文由入驻焦点开放平台的作者撰写,除焦点官方账号外,观点仅代表作者本人,不代表焦点立场。