玖玖颂阁售楼处电话→售楼中心首页网站→楼盘百科详情→24小时热线电话
扫描到手机,新闻随时看
扫一扫,用手机看文章
更加方便分享给朋友
深圳玖玖颂阁开发商售楼处咨询/预约电话:400-992-0669(中介勿扰)
来电可了解楼盘最新动态、房价、在售房源、交楼时间等信息!让你买的放心,住的舒心!

深圳宝安【玖玖颂阁】楼盘详情介绍
中煕·玖玖颂阁位于深圳市宝安区道的均价为9.21万/㎡,
在售户型为:83-132㎡3-4房,推售379套,
单价区间:8.98万-9.53万/㎡,总价区间:748万-2347万。

基础信息:
开发商:深圳市俊弘星实业有限公司
物业公司:中熙物业
栋数:5栋
总占地:约1.4万m²
总建筑:约10.41万m²
在售户型:83--89--128--133m²3-4房
开发商售楼处电话:400-880-9772
价格:8.9万
梯户比:A-C座2梯4户,D座2梯5户
容积率:5.04
总房源:379套
车位:752
产权年限:70年
物业费:住宅6元
交楼标准:精装交付


玖玖颂阁位于深圳市宝安区新安街道新安四路与建安一路交汇处,与招商臻府相邻。
属于新安老城区,距离在建地铁12号线上川站约有500米的距离,
与5号线灵芝站、15号线(在建中)流塘站距离较近,可一站换乘。
玖玖颂阁和招商臻府原属于宝城34-2片区城市更新,该旧改于2015年被纳入城市更新单元第三批计划,
原拆除用地范围4万㎡,开发建设用地3.4万㎡,计容积率总建面16.9万㎡。

项目含保障性住宅3.06万㎡),商业、办公及酒店建筑面积8000㎡,公共配套设施建筑面积8750㎡,
不过从用地面积看,项目的体量比较小,是一个小型综合体社区。

另距离项目约500米左右的位置规划有12号线{暂未开通}地铁口,目前灵芝地铁站,
约1.9公里,3站即可抵达南山,并于多条轨道线路交汇,未来交通出行便利。

实景图

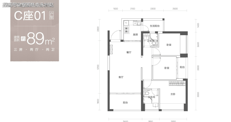
玖玖颂阁规划图/户型图品鉴





玖玖颂阁展厅与样板房已经开放,推出住宅379套,其中83㎡(3房1卫)4套、89㎡(3房2卫)318套、128-130㎡57套,均为精装交房,预计单价在9万左右。

中熙玖玖颂阁的开放商为深圳市俊弘星实业有限公司,是中熙地产旗下全资子公司。
中熙地产成立于1994年,是一家以住宅地产、商业地产、工业地产为支柱,以金融投资、科技开发和物业管理为羽翼的综合性企业集团。
其在深圳开发过中熙君南山、中熙香缤山、中熙香莎公馆 、中熙香缇公馆、中熙·美域等住宅项目,大部分位于宝安。
区位发展
西乡街道位于粤港澳大湾区的地理核心,地处“一核一带一区”重要位置,前海“扩区”之后,西乡与前海关系更加密切,“你中有我、我中有你”,迎来了前所未有的发展机遇。
选择西乡,就是选择成功;投资西乡,就是投资未来,成为了越来越多投资者的共识。在高质量发展的征程中,西乡街道把握新机遇、拥抱新经济,以一流的营商环境,助力企业家在新时代浪潮中奋勇搏击、纵横驰骋,取得了令人可喜的发展成果。
近年来,西乡街道落实宝安区委区政府工作部署,实施腾笼换鸟,十大产业项目将提供近1000万平方米的产业空间。
腾讯“互联网+”未来科技城落地大铲湾、铁仔山片区纳入国家高新区……一个“云联数算用”全要素的发展格局正加快形成。
不仅如此,西乡历史悠久,人文积淀深厚,教育、医疗、居住条件、城市环境等日臻完善,不断吸引着有梦想、有行动的人。明年将投入使用的春晖苑,拥有1000张高品质养老床位,将是全市最大的公办养老院;宝安纯中医治疗医院已成为深圳的中医治疗名片。

站在粤港澳大湾区、深圳先行示范区、综合改革试点新的历史起点上,西乡街道迎来了都市核心区、国家高新区、现代化城市新中心的全新发展机遇。
西乡街道将对标世界一流湾区,用好西乡特色资源,建设高品质城区,为宝安建设世界级先进制造城的目标作出强有力的表达。
交通配套:
项目距离在建的地铁12号线上川站步行距离仅约830米,步行12分钟,且地铁12号线计划2022年通车,通车后可3站抵达南山,并与多条地铁交汇,未来轨道交通出行较为便利。
商业配套:
项目所在地商业配套相对完善,不仅自带8000㎡商业,且对面有宝立方、沃尔玛超市、天虹以及中州购物中心等中小型商业,驱车前往壹方城购物中心以及海雅缤纷城也不算太远,基本能够满足居住在这里人的购物、吃饭和娱乐需求的。
教育配套:
项目的学区划分,小学属于弘雅小学;中学划分到文汇学校。查阅资料,项目的小学所属学校弘雅小学,距离项目312米;
中学所属学校文汇学校,距离项目421米。居住在这里的业主,小孩上下学走路都可以,不用乘车或开车上下学接送,走路15分钟内可以到达。

深圳玖玖颂阁开发商售楼处咨询/预约电话:400-992-0669(中介勿扰)
来电可了解楼盘最新动态、房价、在售房源、交楼时间等信息!让你买的放心,住的舒心!
温馨提示:项目没有所谓的“分机号”注意保护个人隐私!谨防上当!看房请务必提前预约,避免临时无人接待,感谢您的配合!
免责声明🔉:
1、本宣传资料仅作为客户邀约邀请,不作为要约或者承诺,对本楼盘配套、交通、学校(建设)规划或者产品介绍,旨在提供相关信息,不意味着本公司对此作出承诺,相关内容不排除因政府相关规划、规定及开发商未能控制原因而发生变化,最终以政府相关部门审批文件为准。
2、户型图与样板间实拍图所示平面仅供参考,具体因楼栋、楼层的差别,局部结构、面积等存在不同,不构成要约内容。户型图与样板间内部实拍图所示家具和电器配置仅供参考,不作为交付标准,最终以买卖合同为准。
3、双方权利义务以双方签订的相关合同为准。
4、相关公共配套设施及规划条件以政府审批的文件为准
声明:本文由入驻焦点开放平台的作者撰写,除焦点官方账号外,观点仅代表作者本人,不代表焦点立场。
