深圳金信中心(宝安)首页网站丨金信中心楼盘详情_房价_户型_详情
扫描到手机,新闻随时看
扫一扫,用手机看文章
更加方便分享给朋友
宝安【金信中心】金信中心开发商售楼处电话:400-992-0669(中介勿扰)
来电可了解楼盘最新动态、房价、在售房源、交楼时间等信息!让你买的放心,住的舒心!
金信中心开发商售楼处直销_欢迎来电预约享受内部折扣_恭迎品鉴
◆提前来电-预约登记尊享售楼处销售专业讲解〢一对一热情服务〢◆
金信中心开发商售楼中心〢预约可享内部优惠〢匠心钜制-恭迎品鉴〢
项目没有所谓的“分机号”注意保护个人隐私!谨防上当!看房请务必提前预约,避免临时无人接待,感谢您的配合!
宝安最笋上车盘,总价️️88万起,约38/48㎡(2-3房,送精装)约3.9米层高,户户独立阳台,通燃气,不限购不限贷!
【项目信息】
「 开发商 」:深圳市金信联投资有限公司
「占地面积」:约2.2万㎡ 「建筑面积」:约20万㎡
「项目业态」:生态办公、智美人居、瞰景阔宅、独栋总部、配套商业
【产品信息】
「金信·云尚」:建面约38-48㎡智美人居
「金信中心」:建面约430-1800㎡生态办公
「金信·云立方」:总部企业独栋 尊享独立冠名权
项目:金信中心科技大厦
宗地号:A418-0473
用地面积:13,177㎡
建筑面积:121630.68㎡
车位:715个(含充电桩72)
绿化:30%
最高:161.2米,35/3高
产业研发:51690㎡
无污染厂房:6420㎡
宿舍:16820㎡
商业:1000㎡
宗地编号:A418-0472(金信润府)
宗地编号:A418-0473 (金信中心科技大厦)
土地面积(公顷)0.876939
出让年限70年
成交价(万元)3324.7643
受让单位深圳弘明辉纸品有限公司
【高快速路网】
地铁:11号线后亭站、6号线松岗站、26号线潭头站(规划中)便捷出行
陆路:G107大道、宝安大道、京港澳高速、外环高速、沿江高速
高铁:机场东高铁站,打造陆空一体化综合枢纽
城际:深莞穗城际铁路、深大城际(建设中)、深茂铁路(建设中)打通城际干线
海路:现有福永码头及规划新增宝安综合港区,未来实现空海联运贯通
空港:深圳宝安国际机场,满足精英人士高效商旅
【西部城市中心 地标综合体典范】
金信中心倾力巨作,建面约20万㎡地标综合体
“筑精品,立标杆”品质理念铸造中心综合体著作
集生态办公、智美人居、瞰景阔宅、独栋总部、配套商业等多元业态于一体
【160米智慧商务 生态高效办公楼宇】
超160米智慧商务办公,以塔尖高度屹立城市天际
“宝石”型建筑立面,LOW--E玻璃幕墙,绿色低碳环保
双大堂设计,主大堂约15米挑高,1+11部三菱进口电梯
约4.5米层高商务空间,为办公创造灵感,赋能企业发展
【总部企业独栋 尊享独立冠名权】
总部办公标准打造6层独栋商务中心,气宇非凡的商务殿堂,4部高速电梯,首层约6米层高,标准层高约5.1米;塑造入驻企业的高端形象,拥有专属独立冠名权,满足私密性总部办公需求。
【臻装智美人居 户户燃气带阳台】
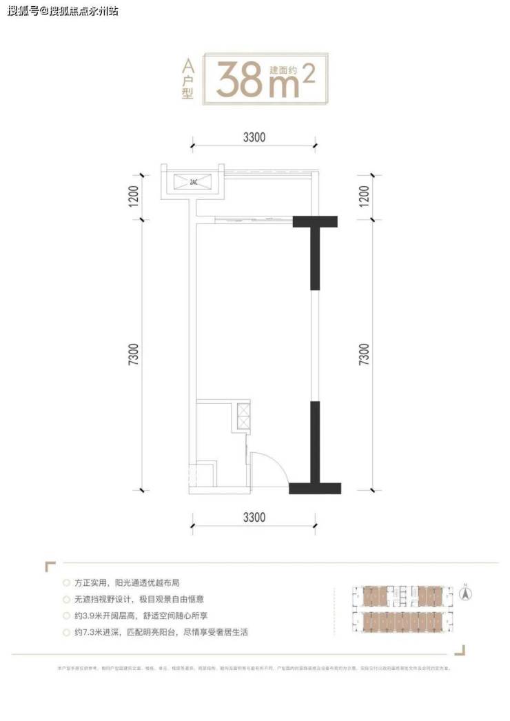
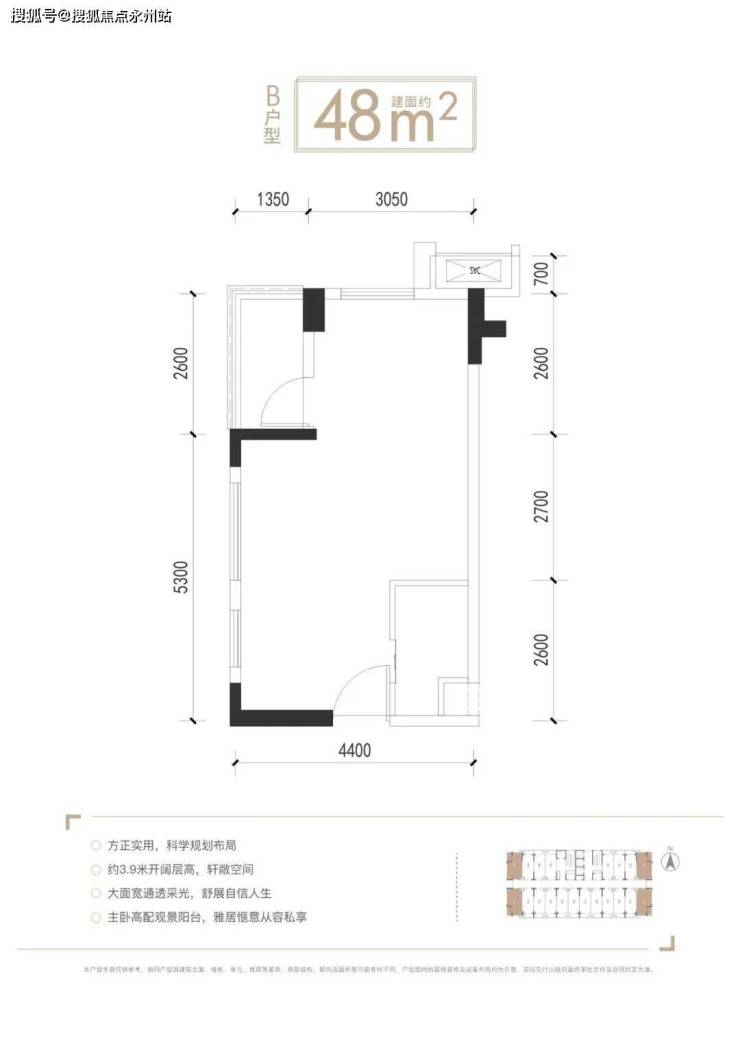
建面约38/48㎡智美人居,约3.9米优越层高,户型方正通透,户户独立阳台,通燃气到阳台;配备4部电梯高速往来,定制打造城市精英人士生活空间。
【匠心品质精琢 引领人居峯范】
建面约99-133㎡瞰景阔宅,户型方正,3梯4户超低梯户比,尊享舒适生活;阔绰户型尺度,多功能空间,承载全龄段居住需求,致献峯层人物。
【开放式园林 生态艺术会客厅】
八大主题,多重生态会客厅——社区艺术花园、城市台地景观、沿街城市客厅,开放式艺术生态园林,于此踱步休闲,洽谈会客,尽享美好时光。
【缤纷主题商业 下楼即享购物】
项目自带精致商业,打造集购物、娱乐、餐饮、社交等于一体的生活主场,由国内首创“珠宝文化+商业地产”的全新商业,罗湖水贝IBC MALL统一运营。目前,肯德基、宝生壹号月子中心、华润万家、国大药房等品牌商家签约进驻。
【携手华润物业,领航高端服务】
金钥匙国际联盟成员、国家一级资质、世界500强华润集团旗下品牌物业——华润物业,打造领先于行业的高端服务,360°全情景贴心呵护业主尊崇生活。
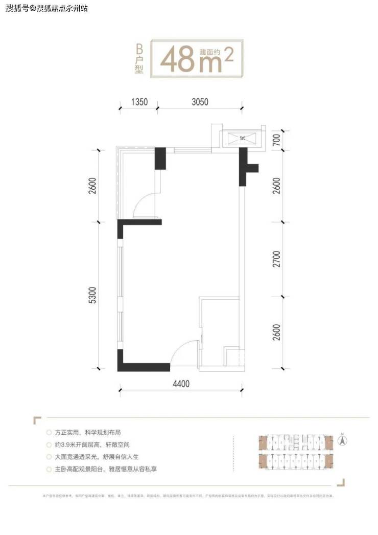
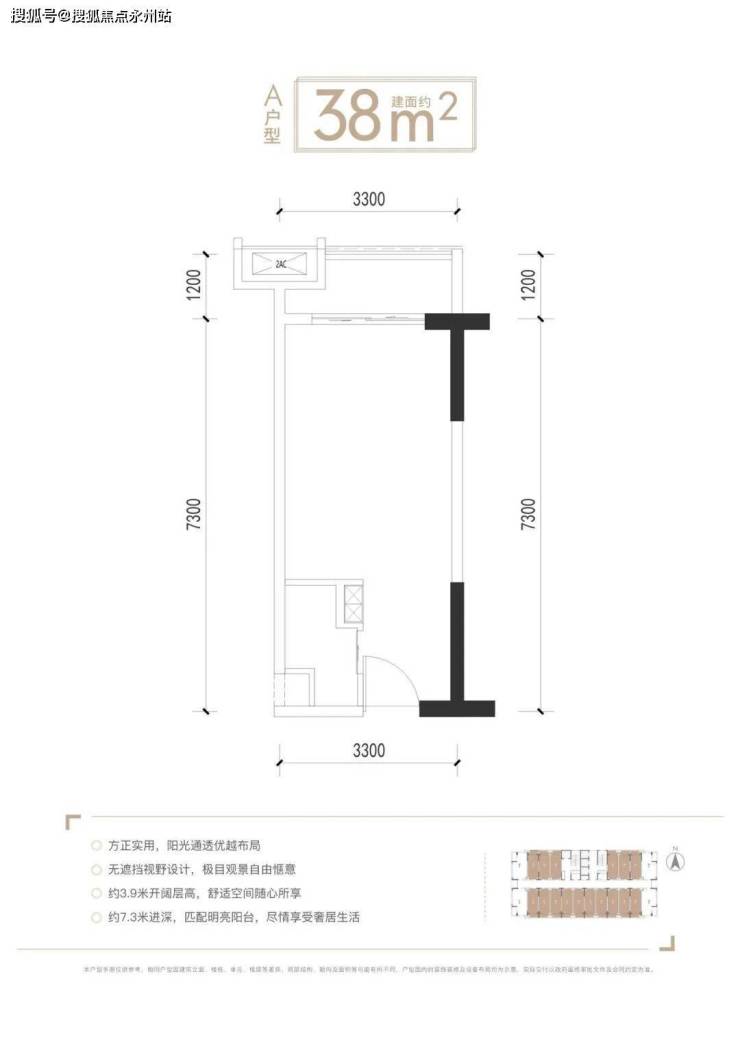
金信中心·智美人居户型图
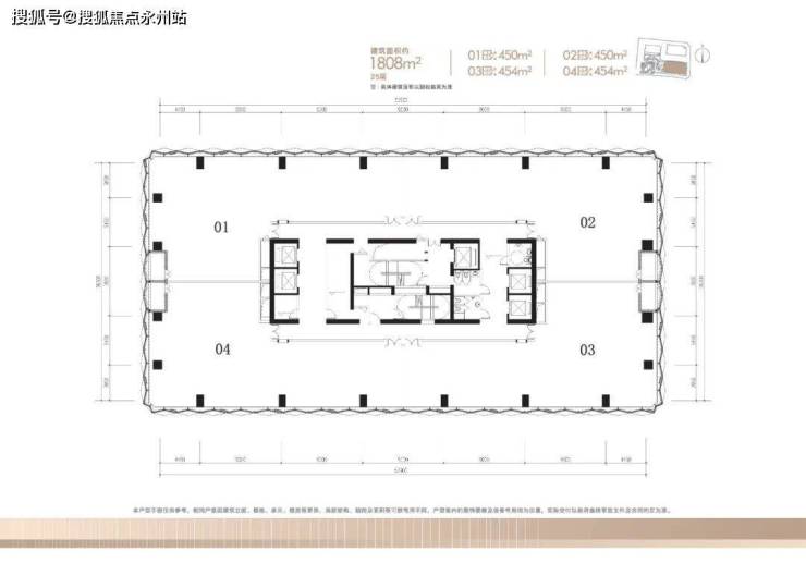
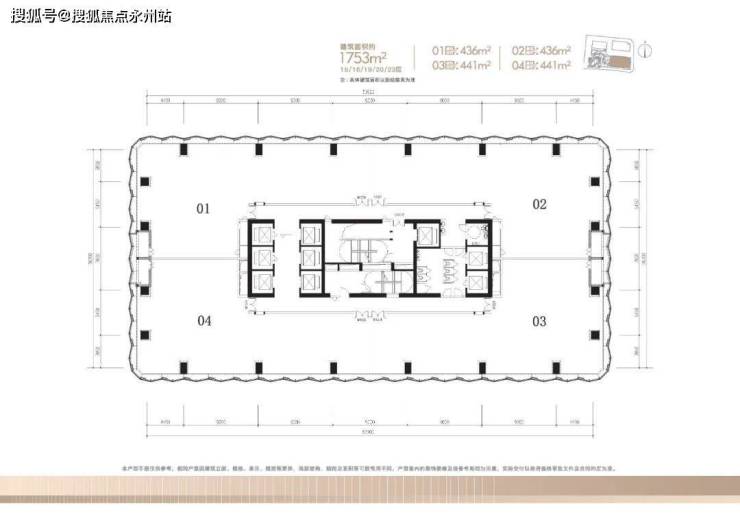
金信中心·商务办公标准层户型图
金信中心·企业独栋标准层户型图
金信中心,107国道之上建面约20万㎡都会综合体,多元产品涵括超160米总部办公标准写字楼、智美人居、瞰景阔宅、企业独栋、精致商业,丰富业态,宜商宜业宜居!
领衔107国道沿线品质,建面约430-1800㎡智慧商务,约15米挑高大堂,1+11部进口三菱电梯,约4.5米层高办公空间,以总部商务形象彰显企业实力。
建面约38/48㎡智美人居,约3.9米优越层高,户型方正通透,户户独立阳台,通燃气到阳台,定制城市精英人士品质居住。
宝安【金信中心】金信中心开发商售楼处电话:400-992-0669(中介勿扰)
来电可了解楼盘最新动态、房价、在售房源、交楼时间等信息!让你买的放心,住的舒心!
金信中心开发商售楼处直销_欢迎来电预约享受内部折扣_恭迎品鉴
◆提前来电-预约登记尊享售楼处销售专业讲解〢一对一热情服务〢◆
金信中心开发商售楼中心〢预约可享内部优惠〢匠心钜制-恭迎品鉴〢
温馨提示:项目没有所谓的“分机号”注意保护个人隐私!谨防上当!看房请务必提前预约,避免临时无人接待,感谢您的配合!
免责声明🔉:以上所发布的楼盘相关信息仅供参考,所有图文资料及说明请以最终批文及双方在楼盘现场签署的买卖合同为准;本图文内容如无意中侵犯某方权益,请联系我们将会及时处理
声明:本文由入驻焦点开放平台的作者撰写,除焦点官方账号外,观点仅代表作者本人,不代表焦点立场。
