一文读懂深圳福田君临天下·君临芯公馆能不能买?深入解析君临天下·君临芯公馆优缺点!
扫描到手机,新闻随时看
扫一扫,用手机看文章
更加方便分享给朋友
✨ 君临天下·君临芯公馆官方售楼中心预约通道开启,安全无忧咨询热线 ✨
✅君临天下·君临芯公馆售楼处/营销中心统一热线电话:400-992-0669(官方认证,无分机号)
通话自动隐藏号码,保护个人隐私,谨防非渠道诈骗
2026【福田】君临天下·君临芯公馆官方最新价格、在售户型介绍,配套及交付信息详情解析!
君临天下·君临芯公馆售楼处位置在福田区新沙路与新沙街交汇处,旁边有富通九曜公馆、高都高尔夫花园、新光活力小区、嘉洲华苑等小区。项目营销中心电话是400 992 0669
君临天下·君临芯公馆项目位于滨河大道与新洲路交汇口附近,位置是非常适合居住的,无论是在福田CBD上班或者南山科技园上班通勤都是很方便的,项目高楼层还可以看福田高尔夫的景观,项目户型使用率更是约95%左右,目前已经拿证,可以随时认购,样板也已经开放,推出住宅约66套,公寓198套,面积36-76㎡!君临天下·君临芯公馆_营销中心_Vip Tel:400 992 0669(中介勿扰)

项目是一栋住宅、公寓混合式的高层建筑,分为A座、B座,17楼以上是大户型住宅。
这批要买的房源有住宅和公寓,其中,66套住宅分布在15-17楼,公寓则分布至6-14楼,6梯22户。
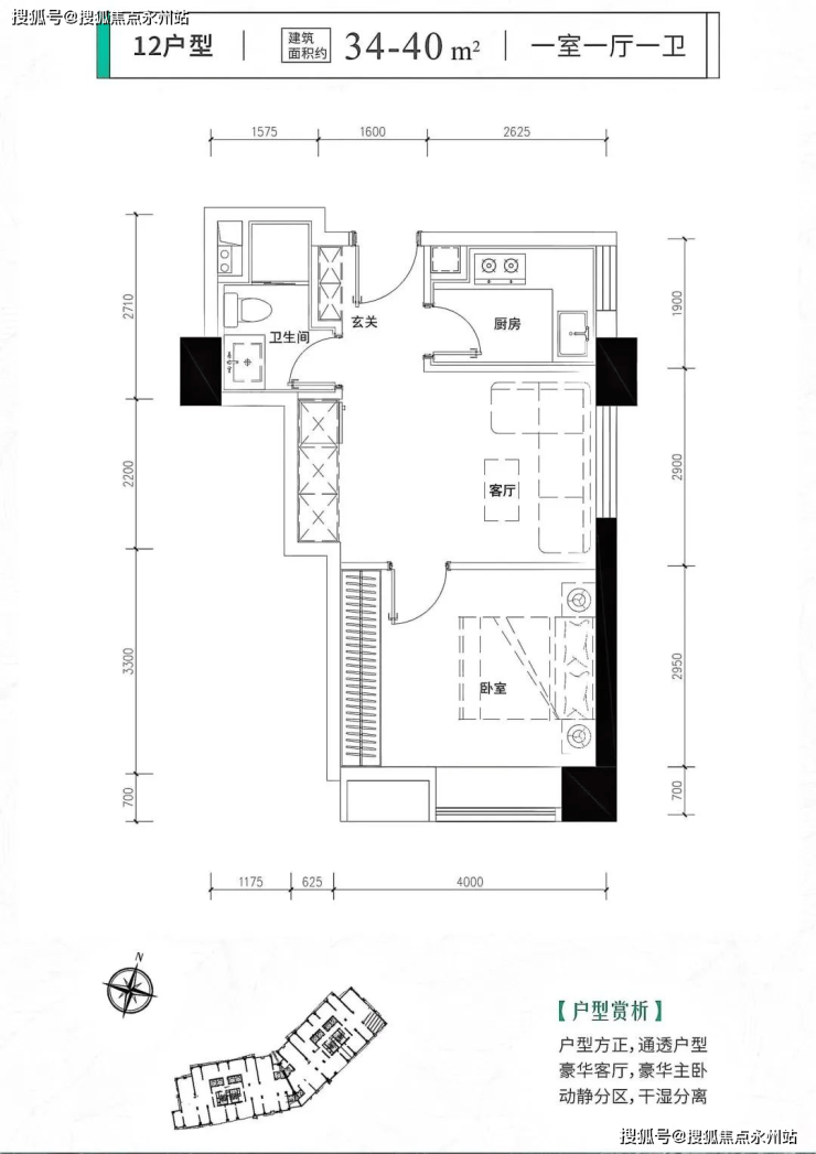
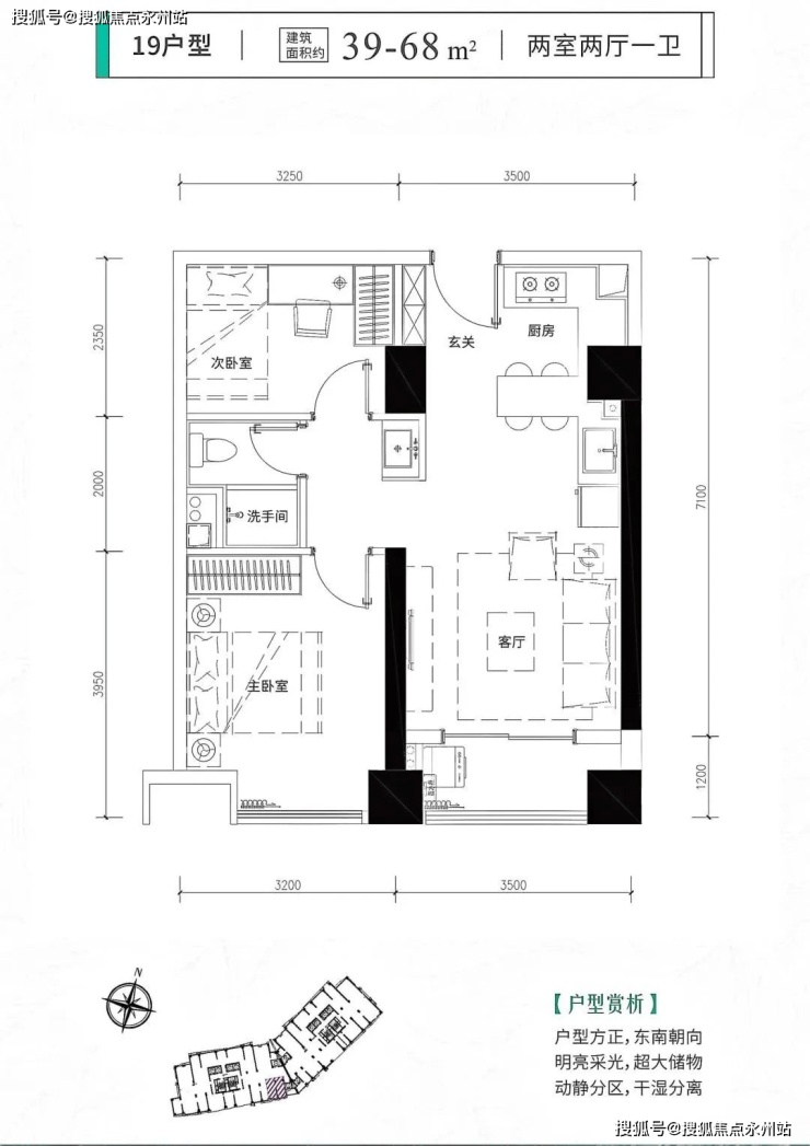
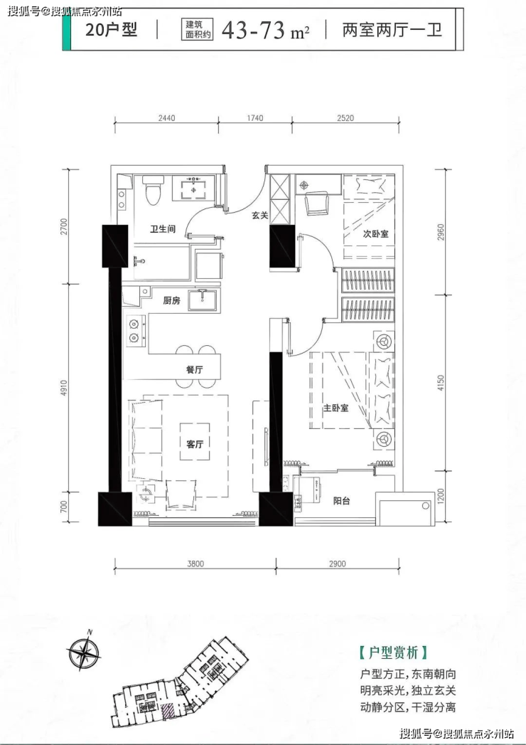
产品建面约36-76㎡,最大的一个卖点就是使用率高。

项目位于福田中心区,户型为36-76平1-3房,住宅66套,公寓198套,户型面积都一样,只是产权性质不一样。6-14层为公寓,15-17层为住宅,6梯22户。

项目基本可做到100%的使用率,胜过了目前市面上的很多新房
如果诚心买,还有折扣优惠。个别使用率很高的户型,已经被客户选走了。
建面42平做到了两房,折后总价4字头起,就可以上车福田。门槛友好,适合在福田工作的人群购买。
高层住宅部分户型,还可以看高尔夫景观。






君临天下的地理位置是很不错的,离福田CBD近。
目前旁边距离最近的地铁是1/3号线的购物公园站,步行需要11-13分钟(数据参考自高德地图)。不想走路的话,出地铁站有接驳的小巴可到达项目。
自驾出行的话比较方便,项目离滨河大道近,由新洲路还可以前往深南大道等城市主干道,不过项目门口的路是一条双向单车道,高峰期很容易堵车。
在商业配套方面,项目楼下就有底商,加上周边都是成熟小区,沿街有商铺、小超市等,能满足日常生活所需。
项目1公里开外,有星河COCO Park、购物公园、京基KK one等商圈,相对来说,娱乐、购物还蛮方便。
君临天下旁边就是明德实验五洲校区,该校正在建设中,预计未来可提供24个班级,1080个小学学位。(具体入学政策以教育局公布为准)
每个户型根据实用程度不同,价格也存在差异,公寓单价7-9万/㎡,总价260万起,住宅单价8-10万/㎡。总价300万起,住宅预计毛坯交付,公寓是精装。
他透露,拥有绝佳使用率、建面约42㎡的住宅房源,预计总价要在4字头。几乎都超过100%,其中42㎡的户型更是近130%,以至于不仅做了两房,连次卧都有8个平方。
目前价格表已经出炉可以直接认购,项目开盘有折扣,具体折扣可咨询开发商售楼处热线:400 992 0669(中介勿扰)

君临天下·君临芯公馆售楼处电话:400-992-0669 售楼中心,项目全面介绍,包含楼盘简介、售楼电话、小区户型图片、营销中心位置、区位优势、交通、周边商业配套、户型图等楼盘详情以上全文就是【君临天下·君临芯公馆】楼盘详情,这篇文章的详细分析和点评,感谢您的阅读,希望为您的购房置业选择上提供帮助,开盘预售动态、价格走势资讯、项目最新消息,待定更新发布,敬请持续关注订阅。
君临天下·君临芯公馆开发商售楼处咨询电话/预约热线:400-992-0669(中介勿扰)
(更多项目动态| 欢迎来电咨询 | 请提前预约登记看房 | 1:1销售专业讲解)置业顾问一对一对接,来电尊享受额外优惠
温馨提示:看房请提前来电预约,感谢配合!预约来访成功,即享现场当天优惠折扣,可预约现场指定销售专员(中介勿扰)
声明:本文由入驻焦点开放平台的作者撰写,除焦点官方账号外,观点仅代表作者本人,不代表焦点立场。
