重磅!龙华荣超新时代广场官方最新消息曝光!在售面积/价格信息/户型介绍,速看!
扫描到手机,新闻随时看
扫一扫,用手机看文章
更加方便分享给朋友
✨ 荣超新时代广场官方售楼中心预约通道开启,安全无忧咨询热线 ✨
✅ 荣超新时代广场售楼处/营销中心统一热线电话:400-992-0669(官方认证,无分机号)
通话自动隐藏号码,保护个人隐私,谨防非渠道诈骗
龙华 荣超新时代广场官方最新价格、户型信息,配套及交付信息,楼盘详情介绍!
荣超新时代广场,观澜唯一可售商业写字楼,龙华北部新中心,鹭湖中心城新地标,观澜未来唯一可售商业办公准现楼,
唯一专业写字楼开发商,荣超打造面积:约123-1035㎡ 热销中!地铁口•购物中心上•带阳台/上下水(深圳荣超新时代广场售楼处电话:400-992-0669)
龙华产核——鹭湖中心城地处龙华万亿级数字经济圈、梅观创新走廊的交汇中心,亦是龙华六大重点片区的核心枢纽
城市新核——鹭湖中心城定位为深圳北部新中心,龙华区“行政+科技+文化+生活”综合服务中心,城市精华配套、产业要素完善。作为区政府所在地,其低密度生态环境、文体设施齐全[鹭湖四馆:龙华区图书馆、群艺馆、大剧院和科技馆]、豪宅小区聚集,非常宜居宜业,价格抗跌
总部中心,科创集群引领区域价值腾飞:观澜高新园——鹭湖中心城定位最前沿、发展最成熟、实力最强劲区域:上市企业数量占龙华区50%,占鹭湖中心城70%,是龙华上市公司最密集区域
观澜高新园将构建 “BT+IT” (生物技术和信息技术)融合发展示范区,并依托上述龙头企业,吸引龙头企业及上下游企业,持续提升商务氛围与区域价值(深圳荣超新时代广场售楼处电话:400-992-0669)
枢纽中心 立体交通加速商务通勤效率:鹭湖枢纽——2地铁1城际1电车交汇,与深圳北站形成一南一北双枢纽
时代中心,首排封面助力企业屹立前沿:观澜高新园主入口首排,标准商务综合体 大气双塔,360度无遮挡昭示 视野开阔舒心
商务中心 纯粹甲级营造舒适高效办公:全玻璃幕墙 彰显不凡气魄,两层挑高大堂 大气通透 企业尊崇会客厅
10部三菱电梯,配比3000:1 引领高效商务,50:1超高车位配比 畅享无忧出行,带双阳台+开启扇 24小时鲜氧环绕
稀缺商办,鹭湖唯一可售商业写字楼:鹭湖中心城唯一可售商业写字楼/准现楼,可个人名义购买,转让灵活,持有期间无需缴纳房产税
顶尖配套,鹭湖唯一大型购物中心:片区唯一大型购物中心,建面约3.1万㎡,提升整体形象的同时,可满足企业商务接待与员工就餐等一站式需求
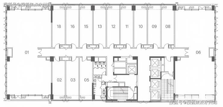
轻松进阶,鹭湖唯一1035㎡享整层权益:建面1035㎡区域内最低整层门槛,独立整层,不受外部干扰,办公形象高端且实用率高达75%,14个独立红本单位,单套41㎡起,户型方正可任意组合,融资变现更灵活
特色配置,鹭湖唯一带上下水办公产品:带上下水,[ 办公+ ] 组合更丰富多元
荣超新时代广场(深圳龙华)
荣超新时代广场售楼处电话:400-992-0669【营销中心】(24小时电话)
预约看房,置业顾问一对一对接,享受额外优惠!
在售户型图丨项目介绍丨房源丨周边配套丨详细解答
开发商售楼处直销_欢迎来电预约享受内部折扣_恭迎品鉴!!
注意:本项目不收任何费用,售楼中心〢欢迎来电咨询〢安全通话隐藏真实号码
声明:本文由入驻焦点开放平台的作者撰写,除焦点官方账号外,观点仅代表作者本人,不代表焦点立场。
