深业世纪山谷售楼处电话【首页网站】深业世纪山谷营销中心-深业世纪山谷欢迎您-楼盘详情-价格-户型-环境-容积率@售楼处400电话

搜狐焦点永州站 2025-10-17 00:32:00
用手机看
扫描到手机,新闻随时看

扫一扫,用手机看文章
更加方便分享给朋友

深业世纪山谷,作为深圳南山区的一颗璀璨明珠,由深业沙河世纪山谷(深圳)投资有限公司倾力打造。【深业世纪山谷】建面约67-87㎡公寓产品湾岸资产【深业世纪山谷】大平层住宅,八梯三户,建筑面积约240-280-3…

✨ 深业世纪山谷预约通道开启,已认证,安全无忧咨询热线 ✨

✅深业世纪山谷售楼处丨开发商丨营销中心统一热线:400-992-0669(全程认证,无分机号)

✅ 通话自动隐藏号码,保护个人隐私,谨防非渠道诈骗

南山深业世纪山谷最新价格、户型信息,配套及交付信息,楼盘详情解析!

深业世纪山谷一期项目已于2023年12月31日交房,二期项目预计将于2024年6月交房,项目的售楼处位于南山区沙河东路218号

目前项目在售户型面积涵盖67-193㎡,备案均价为8.3万元/㎡,但折后单价仅为6.1万元/㎡起,折后总价区间为480-1350万。这一价格策略不仅为购房者提供了更多选择空间,也体现了开发商对市场的深刻洞察和精准把握。深业世纪山谷_售楼处_Vip Tel:400-992-0669 中介勿扰

深业世纪山谷,作为深圳南山区的一颗璀璨明珠,由深业沙河世纪山谷(深圳)投资有限公司倾力打造。这一实力雄厚的开发商,凭借对品质的坚持和创新的追求,为深圳市民带来了众多高品质住宅项目。

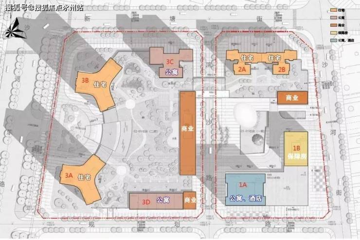
项目占地约52356.4平方米,总建筑面积约337000平方米,分为两期进行开发。项目位于南山区沙河街道,南濒深南大道,北靠新塘路,东邻沙河东路,西邻沙河街,地理位置得天独厚。

深业世纪山谷地处南山核心地段,周边交通配套醇熟。项目紧邻沙河东路,自北向南串联起京港澳高速、北环大道、深南大道、滨海大道等主干道,纵向由沙河西路、科苑路共同构成四横三纵的一体快速路网,构筑了中心枢纽的便捷交通体系。此外,项目周边1km范围内有1个地铁站和15个公交站,五轨环绕的交通布局使得出行更加方便快捷。

项目所在的沙河街道是南山区的重要组成部分,拥有丰富的商业资源和浓厚的文化氛围。周边3km商业生活圈涵盖了华润万象天地、京基百纳广场、益田假日广场等知名购物中心,满足了一站式生活购物和娱乐需求。此外,项目紧临大沙河生态长廊、名商高尔夫、大沙河高尔夫等自然景观,为居民提供了优美的休闲环境。_Vip Tel:400-992-0669 中介勿扰

整体分两期开发建设,其中:项目一期东地块包含1栋酒店+商务公寓、1栋保障房、2栋包含一、二单元的住宅,其中,1栋A座42层,结构高度149.5米高;1栋B座28层92.5米高;2栋1单元41层,结构高度137.65米高;2栋2单元41层,结构高度137.65米高。

西地块包含2栋高约250米的超高层住宅,另有1栋约50层高的商务公寓,其中,3栋A座69层,结构高度243.55米高(装饰高度252米),3栋B座69层,结构高度243.55米高装饰高度252米)未来将成为南山最高的住宅建筑,3栋C座50层,结构高度172.10米高,3栋D座4层16.9米高,二期(3A楼)作为中国最高的装配式住宅建筑,2024年春节前夕该楼成功封顶。

深业世纪山谷_售楼处_Vip Tel:400-992-0669 中介勿扰

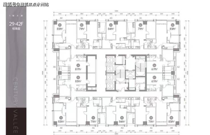
深业世纪山谷】建面约67-87㎡ 公寓产品 湾岸资产

深业世纪山谷】大平层住宅,八梯三户,建筑面积约240-280-380㎡的3-5房户型

约240㎡3+1房3卫(3栋AB座A户型)横厅格局,阔绰3房+1保姆间,厨房带1个生活阳台,户型设计非常奢侈,但最小次卧在这户型里显得略小,西北朝向。

约280㎡3+2房4卫(3栋AB座B户型)横厅格局,阔绰3房+1小书房+1保姆间,厨房带1个生活阳台,户型设计非常奢侈,西南朝向。

约380㎡4+1房4卫(3栋AB座C户型)小区里最大的户型,豪华四梯设计,横厅格局,三面采光,景观无敌,厨房带1个生活阳台,双景观阳台设计,只做了4+1房,户型设计非常奢侈,西朝向。

【深业世纪山谷】二期131-190㎡新品单价仅6字头起

建面约 131㎡3.7米超大开间+双阳台设计

此户型为3.3m 层高经典竖厅双套房设计,主卧 270°大空间宽视野,可享首排高尔夫景观,客厅/主卧景观视野俯瞰双高尔夫一线果岭景观,在华侨城片区为绿视率最高产品。

景观面上,拥有3.7m 开间、生活双阳台,且所有功能空间无任何暗空间(卧室/卫生间/厨房全名可采光)

建面约 153 ㎡4.1米开间+7.1米客餐厅

此户型为坐北朝南,3.3m 层高经典竖厅 3 房 2 卫设计,主卧步入式鞋帽间;三面宽南向(客厅/主卧/次卧),景观视野俯瞰深圳湾海景。

所有功能空间无任何暗空间(卧室/卫生间/厨房全名可采光),景观面上,拥有4.1m 开间尺寸、生活双阳台,优于市面 95%以上公寓项目,进深 达到了7.1m大尺度客餐厅。

建面约 190 ㎡ 3.3米层高+7.3米生活双阳台

此户型为南北通透端头位,仅 45 套 拥有3.3m层高 并且为8.8m 大横厅设计。

奢阔 3 房两卫主卧 270°大空间设计,步入式鞋帽间,卫浴,景观(7.3m)、生活双阳台,俯瞰深湾湾景观。

深业世纪山谷是一座位于深圳的城市综合体,为白石洲旧改单元,位于南山区沙河东路218号,占地面积约4.2万㎡,总建筑面积约38.9万㎡,容积率高达5.78。该综合体集住宅、公寓、酒店、商业和办公等多种功能于一体,具备了完善的生活配套和商业服务。

看完以上介绍,如需了解更多关于我们南山深业世纪山谷楼盘最新消息、剩余楼层、房价优惠活动、户型结构等情况,欢迎来电咨询我们深业世纪山谷开发商售楼处电话/预约热线:400-992-0669 中介请勿扰。

在此感谢您的认真阅读,希望为您的购房置业选择上提供帮助。想咨询了解深圳深业世纪山谷认购优惠、按时签约优惠、贷款优惠、一次性优惠、团购折扣等信息,欢迎联系南山深业世纪山谷开发商售楼处400免费服务热线:400-992-0669 (中介请勿扰),另外温馨提醒一下,因近期营销中心看房人数较多,参观样板间采取了预约制,为了不影响您的行程,过来实地看房请记得提前拨打开发商400热线进行预约,预约看房的话还可以尊享楼盘内部额外优惠,最终价格包您满意!

声明:本文由入驻焦点开放平台的作者撰写,除焦点官方账号外,观点仅代表作者本人,不代表焦点立场。