金地明峰府售楼处(欢迎您)深圳金地明峰府首页网站_售楼处|楼盘详情
扫描到手机,新闻随时看
扫一扫,用手机看文章
更加方便分享给朋友
➢ ➢深圳光明【 金地明峰府】开发商售楼处电话:400-992-0669中介勿扰
➢ ➢深圳光明【 金地明峰府】—「售楼处」—「欢迎您!」
➢ ➢来电可了解楼盘最新动态、房价、在售房源、交楼时间等信息!让你买的放心,住的舒心!
空港新城&光明科学城双芯—地铁口100米·近公园—建面约81-116㎡精装美宅—均价4.1万/㎡ 带精装交付

首付100万起买光明区地铁口
均价:4.1万左右(带装修)
82㎡三房 总价:340万-360万
93㎡三房 总价:390万-420万
116㎡四房 总价:530万-560万
️导航地址:导航地铁6号线薯田埔站B出口
金地明峰府 距离6号线薯田埔站B出口最近处仅有100米!
向东2站

到公明广场站

一出地铁站就来到光明最大的商业之一---“大仟里”
地铁13号线也经过公明广场站,未来从这里换乘13号线可以直达留仙洞、科技园、后海、蛇口等地!
13号线全线预计2025年通车
向东5、6站

到科学公园和光明站
科学公园及四周是未来光明最核心、最繁华、最现代的区域
科学公园↓
往东8站

来到凤凰城站

凤凰城站东侧是去年底才开业的光明最大的商业“蓝鲸世界”

凤凰城西侧是深圳第二家万达广场
万达广场已开业!
往西4站

来到松岗站,在这里可以换乘11号线

11号线去宝中、前海、后海、车公庙都很方便!

松岗站往西未来还可以换乘12号线(二期工程预计2025年通车)


该线经过由华润主导的深圳最大的城市更新项目,占地达3平方公里的“沙井金蚝小镇"
前两天评选出了设计第一名,效果图如下
建成后,这里将会是一个非常适合旅游、休闲的的地方!
终于进入到正题了!
金地明峰府 分为东西两区,“一”字排开,包含5栋住宅、1栋保障房和一所幼儿园
项目基础资料
项目总建面:约17.8万㎡
计容建面:约12.1万㎡
占地面积:约2.9万㎡
使用年限:70年(从2021年10月29日起至2091年10月28日止)
首推套数:576套
梯户比:2梯6户/ 3梯7户
物业管理费:3.90元/平方米·月
层高:住宅2.85米
开发商:金地
现在楼盘竞争激烈,品质打造是吸引客户的一大因素
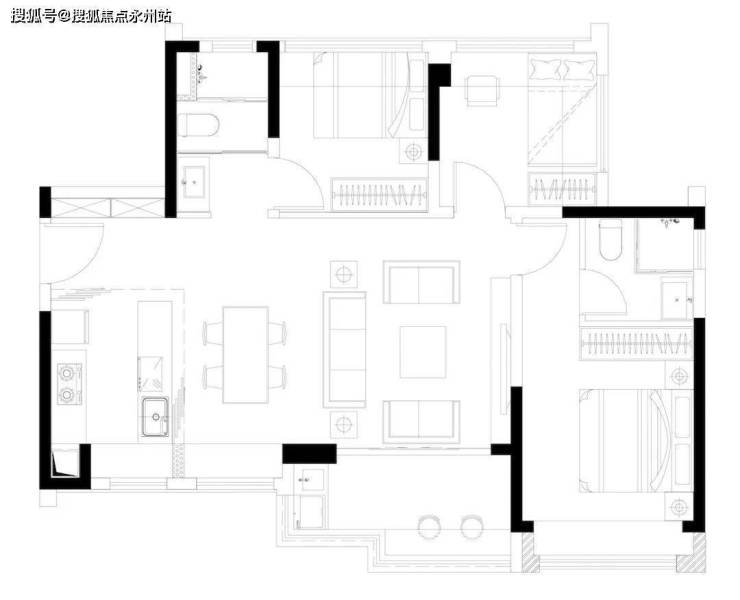
光明金明峰府户型图:
项目的另一大亮点是户型设计
82㎡,居然做到了三房1.9卫
93㎡,横厅三房两卫

82㎡以上户型的阳台是这样L型的,这样做的目的同样是节省空间

同样的阳台面积,做成L型,那么洗衣机旁边减少一个没有什么用的红色区域,但阳台的进深却增加了!
93㎡,竖厅三房两卫
116㎡,横厅南北通四房两卫
周边
项目往北400米是裕湖公园

光明金地明峰府开发商售楼处电话:400-992-0669(中介勿扰)
来电可了解楼盘最新动态、房价、在售房源、交楼时间等信息!让你买的放心,住的舒心!
温馨提示:看房请务必提前预约,避免临时无人接待, 感谢您的配合!
免责声明🔉:以上所发布的楼盘相关信息仅供参考,所有图文资料及说明请以最终批文及双方在楼盘现场签署的买卖合同为准;本图文内容如无意中侵犯某方权益,请联系我们将会及时处理
声明:本文由入驻焦点开放平台的作者撰写,除焦点官方账号外,观点仅代表作者本人,不代表焦点立场。
