深圳松茂御城二期-光明松茂御城二期楼盘详情/地铁/学校/最新房价
扫描到手机,新闻随时看
扫一扫,用手机看文章
更加方便分享给朋友
光明【松茂御城二期】售楼处24小时电话:400 992 0669(开发商直销)现场详细解答丨项目介绍丨户型图丨在售房源丨特价房丨学校丨交通位置丨样板房丨小区图片丨交房时间丨周边配套丨
松茂御城项目位置:深圳市光明区·13号线月亮路站西侧
光明凤凰塘尾【松茂御城二期】已于2025年8月28日取证入市,本次拿证1栋A座-H座,共874套房源,面积有81㎡的3房2卫,89-109㎡的4房2卫,135m²的5房2卫户型,备案均价4.42万/m²,备案单价3.79-5.09万/m²,总价在304-685万/套,预计在2027年2月份带精装交付,不过合同约定是在2026年底,是为了保证26年业主们申请学位问题,另付送装修协议到27年2月份。
到访预约优惠:提前通过开发商售楼处电话预约看房(400 992 0669),可享专车接送+折上98折+额外家电礼包(限量房源先到先得)
预售证取得时间:二期(雅苑)已于2025年8月27日取得预售许可证,8月28日开放实体样板房,8月28日启动认筹,计划9月初正式开盘入市。
备案价格:备案均价约4.44万/㎡,但实际销售折扣力度显著,折后单价低至3.2万/㎡起,总价280万起即可入手精装三房。
81㎡三房两厅两卫:折后总价280万起,单价3.2万 /㎡起(原备案价约4.44万/㎡,折扣率约7.2折)。
89㎡四房两厅两卫:折后总价317万起,单价3.56万/㎡起。
135㎡五房两厅两卫:折后总价420万起,单价3.11万/㎡起(备案价约4.44万/㎡,折扣率约7折)
松茂御城位于深圳市光明区公明街道松白路与碧塘路交汇处,由深圳市松茂房地产集团有限公司开发,是集住宅、公寓、商业于一体的综合体项目。(深圳光明松茂御城售楼处电话:400 992 0669)
项目总占地面积约4.53万㎡,总建筑面积约29.78万㎡,分两期开发,共规划13栋高层建筑,容积率4.67,绿化率40%,总户数2130户,车位比约1:1.09。
二期为纯商品房社区(无回迁房),由8栋31-32层住宅组成,总规划1225 户,得房率高达100%,是光明区目前得房率最高的楼。
松茂御城二期以“光明户型天花板”为核心竞争力,通过极致空间设计与实用功能的结合,打造了覆盖全生命周期的居住方案。
首推1栋B/G/H/E 座共333套房源,主力户型为81-135㎡三至五房,涵盖81㎡三房(280万起)、89㎡四房(317万起)、135㎡五房(420万起)
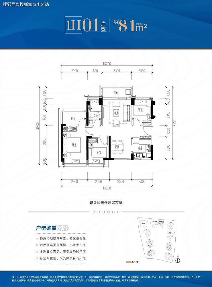
建面约81㎡三房两厅两卫(实用率93.49%)
空间设计亮点:零公摊魔法,通过凸窗全赠送(约4.29-5.61㎡)与阳台半赠送设计,实际使用面积与建面相等。以1H栋01户型为例,套内面积64.48㎡+ 赠送 11.25㎡,实用面积达75.73㎡,相当于同区域传统户型的95㎡空间。
南北通透版:竖厅设计,三开间朝南,主卧套房带独立卫浴,客卫干湿分离,阳台东北向直面社区园林,采光通风俱佳。厨房采用 U 型布局,预留双开门冰箱位,动线流畅。
经典竖厅版:东南向阳台俯瞰花园,玄关可增设家政柜提升收纳效率。适合首次置业的年轻家庭,总价280万起即可入手。
细节优化:次卧飘窗可拓展为书桌,主卧 L 型飘窗增加采光面,部分房源通过改造可实现“3+1”房功能。
建面约89㎡四房两厅两卫(实用率96.48%)
功能革命突破:四房格局创新,突破常规89㎡三房设计,通过赠送阳台(约6.43㎡)与设备平台,实现四房布局。以1B栋01户型为例,套内70.85㎡+赠送15.02㎡,实用面积达85.87㎡,可灵活改造为“3+1”房,满足二孩家庭或三代同堂需求。
双阳台配置:生活阳台连通厨房,可放置洗衣机与杂物柜;景观阳台开间3.5米,可改造成阳光书房或榻榻米茶室。主卧套房带步入式衣帽间与独立卫浴,L 型飘窗设计提升居住私密性。
对比优势:较同区域华润润臻园 89㎡三房,多出 1 间房且总价低约 20 万,性价比显著。
建面约109㎡四房两厅两卫(实用率94.67%)
改善型全能户型:南北通透格局,客厅开间3.9米,双阳台设计实现“生活+景观”分离,主卧套房带270°转角飘窗,可将园林景观尽收眼底。套内86.77㎡+赠送16.43㎡,实用面积达103.2㎡,相当于传统户型的120㎡空间。
动线优化:入户玄关预留鞋柜空间,厨房与餐厅一体化设计,家政柜与储物间隐藏于过道,空间利用率最大化。适合多孩家庭或需要独立书房的改善客群。
建面约135㎡五房两厅两卫(实用率95.78%)
终极改善之选:楼王级配置,作为1E栋03户型,四开间朝南,客厅开间4.2米,南北双阳台设计,正南向直面约2万㎡中央园林与明湖城市公园,景观视野无遮挡。套内107.5㎡+赠送21.81㎡,实用面积达129.31㎡,主卧套房面积达25㎡,带独立衣帽间与卫浴,可定制双台盆与浴缸。
功能分区:次卧均配备全景飘窗,其中两间可打通为儿童活动区;中西双厨设计,西厨岛台可作家庭聚餐中心,适合多孩家庭或高端改善客群。
价值亮点:备案价约4.44万/㎡,折后单价3.11万/㎡起,较一期降幅30%,成为光明西部唯一总价400万级五房新盘。
备案得房率vs实际使用面积:
项目备案得房率约77-79%(套内面积/建面),但通过凸窗全赠送、阳台半赠送等设计,实际使用面积普遍提升20% 以上。例如81㎡户型备案得房率79.6%,实际加上赠送后实用率达93.49%。
赠送空间合规性:所有赠送空间均符合《深圳市建筑设计规范》,凸窗进深≤0.6米、阳台进深≤1.8米,不存在违建风险。
得房率碾压:较华润润臻园(备案得房率75%)、特发观月台(78%)高出5-8个百分点,实际使用面积多出10-15㎡。
价格洼地:折后单价3.2万/㎡起,较同地段深业颐瑞府(4.1万/㎡)低22%,且为纯商品房社区。
松茂御城所在的光明区塘尾片区,正处于深圳「科学 + 城市」双轮驱动的核心发展轴上。作为大湾区综合性国家科学中心核心承载区,光明科学城已形成 「基础研究 - 中试转化 - 产业应用」全链条创新生态。
截至2025年,中国散裂中子源、合成生物研究设施等首批重大科技基础设施已启动运行,鹏城云脑 Ⅲ(算力规模16000PFLOPS)和超算二期加速建设,这些「国之重器」不仅吸引中科院深圳先进院、深圳湾实验室等顶尖科研机构入驻,更催生了合成生物(估值360亿元)、人工智能(集聚1063家专精特新企业)等千亿级产业集。(深圳光明松茂御城售楼处电话:400-992-0669)
项目占据光明西部交通枢纽核心位置,形成「双地铁 + 三高速」立体路网:
地铁13号线:月亮路站(在建)距项目仅600米,2025年底通车后1站达凤凰城站(光明行政中心),9站直达南山科技园,通勤时间缩短至45分钟。远期规划北延至东莞松山湖,29号线(规划中)将连接深莞惠,强化跨城通勤能力。
高速路网:南光、龙大、外环高速环绕,30分钟可达福田CBD、宝安机场,1小时覆盖东莞松山湖、惠州潼湖等大湾区科创节点。
项目周边3公里范围内汇聚光明区TOP3教育资源:
深圳中学光明科学城学校:2024年中考十大率达40%,理科竞赛成绩位居全区第一,初中部距项目仅800米。
深圳实验学校塘尾第一学校:54 班九年制公办学校(2026年开学),由深圳实验教育集团直接管理,将引入「院士课堂」「科创实验室」等特色课程。
全龄段覆盖:自带9班幼儿园,小学学区涵盖教科院实验小学(光明区排名前三),初中学区可共享深圳中学、实验双名校资源,形成「家门口的 15 年优质教育链」。
项目以「生态 + 健康」为核心理念,打造光明西部稀缺的低密住区:
外部生态资源丨明湖城市公园(58万㎡):深圳西部最大市政公园,规划环湖跑道、湿地科普馆、儿童乐园等设施,步行5分钟可达。
鹅颈水湿地公园:依托茅洲河碧道建设,集生态修复、休闲观光于一体,2025年完成升级改造。
社区内部环境:采用围合式布局,中央园林面积超2万㎡,种植300+种本土植物,获国家绿色建筑二星级认证,隔音降噪效果优于区域竞品15%,配备全龄活动空间(儿童游乐区、老年康体区、青年健身区)、24小时健康跑道,打造「公园里的家」。
项目自建约1.75万㎡的商业街,规划为集购物、餐饮、休闲于一体的社区商业中心 ,满足日常便利需求。周边3公里范围内拥有光明大仟里(约15万㎡)、蓝鲸世界(约10万㎡)、万达广场(约6万㎡)三大成熟商圈,提供一站式高端消费体验。
项目毗邻的13号线车辆段TOD片区规划有商业/办公/酒店等业态(约20万㎡) ,其内有近6万m²万象新天地商业,未来将形成区域商业新地标。这些商业配套不仅覆盖居民日常生活所需,更提供丰富的文化娱乐选择,如影院、亲子乐园等,满足全龄段居民的品质生活需求。科学城人才的消费力与项目周边商业的高品质相结合,将打造光明区最具活力的商业生态圈。
松茂御城二期以“高得房率 + 准现房 + 低总价”为核心卖点,在光明区刚需及首改市场中竞争力突出。建议意向客户抓住首推折扣窗口期,优先选择中高楼层、南北通透户型,并充分利用人才补贴、首付政策降低购房成本。
【深圳光明松茂御城开发商售楼处400免费咨询/预约电话:400-992-0669,中介请勿扰】
注意事项:如果对本项目感兴趣,建议您与我们开发商联系,无需中介费,拿最 低价格,还能享额外(物业费+家电)赠送。确保看房体验,暂不接待临时到访,请提前预约。欢迎拨打开发商售楼处预约热线:400 992 0669,中介勿扰
声明:本文由入驻焦点开放平台的作者撰写,除焦点官方账号外,观点仅代表作者本人,不代表焦点立场。
