深圳中粮福田大悦广场-中粮福田大悦广场楼盘详情-房价-在售户型-容积率-小区环境
扫描到手机,新闻随时看
扫一扫,用手机看文章
更加方便分享给朋友
福田【中粮福田大悦广场】售楼处24小时电话:400 992 0669(开发商直销)现场详细解答丨项目介绍丨户型图丨在售房源丨特价房丨学校丨交通位置丨样板房丨小区图片丨交房时间丨周边配套丨
欢迎访问中粮福田大悦广场最新信息
作为福田核心地段的标杆商务综合体,中粮福田大悦广场由央企中粮集团开发,项目集高端办公、总部基地、商业配套于一体,现以现楼交付,助力企业即买即用。
项目户型与产品细节
配套宿舍:1室1厅1卫:建面约 49-51㎡,户型方正,动静分离,3.1 米层高,带阳台。
2室1厅1卫:建面约 78㎡,双卧朝南,明厨明卫,预留燃气管道。
研发办公:标准层面积约 2099㎡,可分割为 486-562㎡单元,4.2 米层高,满足企业定制需求。
空间设计:围合式布局保障采光与景观,高层可俯瞰莲花山、塘朗山。
办公空间配备1500㎡大堂、高速电梯、双路供电系统,提升商务效率。
如需了解更多详情,欢迎咨询中粮·福田大悦广场售楼处电话400-992-0669,过来我们营销中心看房提前来电预约价格还能更优惠。
中粮·福田大悦广场售楼处400免费咨询/预约电话:400-992-0669,中介勿扰
温馨提示:过来营销中心参观样板间请记得提前拨打售楼处400热线预约,感谢您的配合!
中粮·福田大悦广场综合信息
区域位置:项目位于深圳市福田区梅林梅彩智谷片区,具体地址为梅华路与梅秀路交汇处,紧邻北环大道,属于福田CBD北延核心区域。
交通优势:地铁:距离9号线下梅林站约900米,规划中的22号线梅丰站(建设中)位于附近,可快速换乘2、4、10号线。
公路:毗邻北环大道、新洲干道,自驾便捷;福田站、深圳北站双高铁枢纽,联动福田、皇岗双口岸,通达深港及湾区。
周边配套:商业:4公里范围内覆盖卓悦汇、皇庭广场、领展中心城等超百万商圈,15分钟车程可达CBD北区繁华商业。
教育:幼儿园梅林小学附属幼儿园、深圳市莲花北幼儿园、深圳市福田区小太阳幼儿园、深圳市第九幼儿园
生态:被塘朗山、梅林山、银湖山环绕,近梅林水库、莲花山公园等,自然景观资源丰富
项目由中粮集团开发,定位为高端商务综合体,总建筑面积约20万㎡,涵盖研发办公、菁英公寓、商业街区多元业态。
建筑规划:
3栋主体:T1(41层)、T2(23层)为研发办公,T3(30层)为配套公寓,含2-3层商业配套。
产权年限:公寓50年(2019年起算),办公物业产权同属工改性质。
产品类型:
公寓:精装交付,建面约49-78㎡,主力为1-2房,层高3.1米,使用率72%,总价区间186-296万。
写字楼:T2栋整栋出售(总建面3.2万㎡,总价约13亿),毛坯交付,标准层面积1829㎡,层高4.2米,适合企业总部。
物业配套:
物业费:公寓6.6元/㎡·月,写字楼19元/㎡·月。
车位:共1400个(公寓600个,办公800个)
如需了解更多详情,欢迎咨询中粮·福田大悦广场售楼处电话400-992-0669,过来我们营销中心看房提前来电预约价格还能更优惠。
中粮·福田大悦广场售楼处400免费咨询/预约电话:400-992-0669,中介勿扰
温馨提示:过来营销中心参观样板间请记得提前拨打售楼处400热线预约,感谢您的配合!
项目公寓户型详情
面积与布局:主推49-50㎡一房及78㎡两房户型,均为精装修交付。户型设计方正,部分带阳台,明厨明卫,兼顾实用性与舒适性。
基础参数
层高:3.1米,空间通透性较好。
梯户比:6梯20户,兼顾效率与私密性。
使用率:约70%-72%,高于市场平均水平。
交付时间:现楼即买即用。
配套优势:公寓位于T3栋,为商办综合体配套宿舍,周边1公里内覆盖地铁9号线、22号线(规划中)及北环大道等交通枢纽,同时毗邻卓悦汇、皇庭广场等商圈,生活便利,中粮福田大悦广场_Vip Tel:400-992-0669 中介勿扰。
A户型:户型布局方正典雅,彰显格调生活,明厨明卫设计,带阳台望城市山林,俯瞰楼下商街繁华,缤纷乐活场景。
B户型:户型布局方正典雅,彰显格调生活,明厨明卫设计,双飘窗带阳台配备,俯瞰楼下商街繁华,缤纷乐活场景。
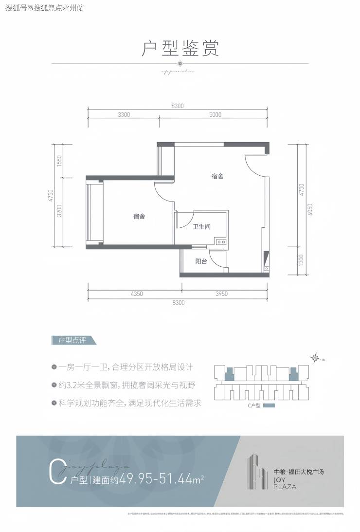
C户型:整体格局类住宅设计,彰显尊贵感,明厨明卫设计,超大阳台俯瞰万千,空间百变随心,更多美好想象可能。
项目写字楼详情
T1栋研发办公(云端总部)
基础信息
高度:187米,为片区地标建筑。
标准层面积:约2099㎡,主力面积段为486-2107㎡,可灵活分割。
层高:4.2米,空间开阔;柱距达9米,便于布局。
使用率:约66%-70%,高于市场同类产品。
配套设施
大堂:15米挑高设计,面积约1500㎡,彰显企业形象。
电梯:18部高速电梯分区运行,提升通行效率。
生态景观:北向可览梅林山、莲花山等自然景观,南向俯瞰福田CBD。
T2栋独栋总部(整栋出售)
基础信息
总建面:约3.26万㎡,总价约13亿元。
标准层面积:1829㎡,可分割为4本产权证/层。
层高:4.2米,大堂挑高10.8米,面积650㎡。
使用率:71%,配备11部迅达电梯。
核心价值
企业定制:支持楼体冠名、独立大堂及电梯,满足总部形象需求。
融资优势:独栋资产可作为优质抵押物,降低企业融资成本。
交付时间:现楼实景呈现
如需了解更多详情,欢迎咨询中粮·福田大悦广场售楼处电话400-992-0669,过来我们营销中心看房提前来电预约价格还能更优惠。
中粮·福田大悦广场售楼处400免费咨询/预约电话:400-992-0669,中介勿扰
温馨提示:过来营销中心参观样板间请记得提前拨打售楼处400热线预约,感谢您的配合!
中粮福田大悦广场核心卖点
地段与交通
福田CBD北门户:紧邻北环大道,双地铁(9号线梅村站+规划22号线梅丰站),10分钟直达福田CBD、深圳北站及河套深港科创区。
配套资源:步行10分钟覆盖卓悦汇、佐阾虹湾等六大商圈,莲花山、梅林水库环绕,商务与生态兼具。
产品硬实力
甲级地标:T1栋高187米,配备15米挑高大堂、LOW-E玻璃幕墙及71%-75%超高使用率。
智能办公:预装13厘米网络架空地板、18部迅达电梯、24小时中央空调,满足科技企业高效需求。
央企保障
开发实力:中粮集团操盘,物业费19元/㎡(含24小时空调),低于周边30%。
现楼交付:2023年竣工,企业可零等待入驻,产权50年
限时优惠与福利
额外折扣:通过开发商直购可享折上折+内部保留房源,免中介费。
企业补贴:整层购买可申请政府重点企业补贴,并附赠专属车位。
现楼红利:对比周边5万+/㎡二手写字楼,价差红利显著,资产配置性价比高
如需了解更多详情,欢迎咨询中粮福田大悦广场售楼处电话400-992-0669,过来我们营销中心看房提前来电预约价格还能更优惠。
中粮·福田大悦广场售楼处400免费咨询/预约电话:400-992-0669,中介勿扰
温馨提示:过来营销中心参观样板间请记得提前拨打售楼处400热线预约,感谢您的配合!
声明:本文由入驻焦点开放平台的作者撰写,除焦点官方账号外,观点仅代表作者本人,不代表焦点立场。
