拾悦城楠园(宝安)拾悦城楠园欢迎您丨拾悦城楠园楼盘详情丨房价
扫描到手机,新闻随时看
扫一扫,用手机看文章
更加方便分享给朋友
宝安沙井拾悦城二期本次推出520套住宅,建面约86-140平3-5房,折后单价约4.08万起,总价350万起,价格优势明显,据说开盘还有大惊喜!
拾悦城二期可售房源共约1300套,靠近11号线沙井站,传言规划的九年一贯制学校会引进宝中集团办分校,商业均可依靠周边。
Vip Line: 400-992-0669

户型资料
项目可售房源约1300套,首推房源约530套,建面约86-140㎡三至四房,改善产品为主,86㎡户型货量较少,94㎡户型只有三房一卫,总体来说户型结构、功能间布局、朝向、采光啥的没啥大问题。

本次推的户型位于1B栋、1E栋,约530套。
约86㎡三房一卫,竖厅,动静分区结构,整体比较传统,功能间偏紧凑了一些,实用性还是不错的,B座和E座的两个户型结构及功能间布局是一样的,E座的玄关和厨房面积稍大一点,其它一致。
约94㎡三房一卫,横厅,近似双龙抱珠的结构,厨房只能依靠通风井进光,卫生间与次卧一间距较小,开窗存在对视问题,这个面积做三房一卫实用性欠缺。
除101㎡与103㎡的入户位置有明显结构差异外,其它部分从结构到功能间布局都是一样的,区别是个别功能间大小略有差异。
其中103㎡户型得房率明显要高一些,厨房面积大于其它四个户型。
四房两卫有约115㎡、118㎡、120㎡(有两种)、126㎡五个户型图。
其中115㎡与126㎡外形结构与内部功能间布局基本一致,126㎡户型可看作是115㎡户型的放大版,都是竖厅、动静分区的,居住舒适性、实用性、通透性、静溢性各方面都比较好。
118㎡户型是五种四房户型里唯一的横厅,通透性肯定是没竖厅的好,但横厅的餐客厅空间感更强,实用性会更高一些,整体没啥大问题,主要看个人喜好,就市场受众来讲,竖厅的受众会更广泛一些。
120㎡户型,是货量最多的四房,也是竖厅通透格局,它的外形结构会比115㎡和126㎡的更高方正一些,该户型入户门口有一个房间,功能间的布局没有115㎡和126㎡的好。
140㎡户型,是该项目建面最大的产品,格局与120㎡户型一致,可看作120㎡户型的放大版,居住舒适性更佳,预算充足且对居住舒适性追求比较高的可以侧重考虑这个户型。
朝向方面,拾悦城楠园总体是优势朝向为主,除1栋B座06/07户,1栋E座06/07户是东北朝向,其它要么是西南、东南,要么是通透格局。
拾悦城二期占地约3.54万㎡,总建面约17万㎡,共规划了14栋30-48层超高层住宅、4栋26-33F高端写字楼及部分商业配套组成,还规划了一所36班九年一贯制学校、一所18班幼儿园。
拾悦城项目整体分3期开发,此次入市的楠园、沁园属于项目2期,具体户型图将会在近期公布。
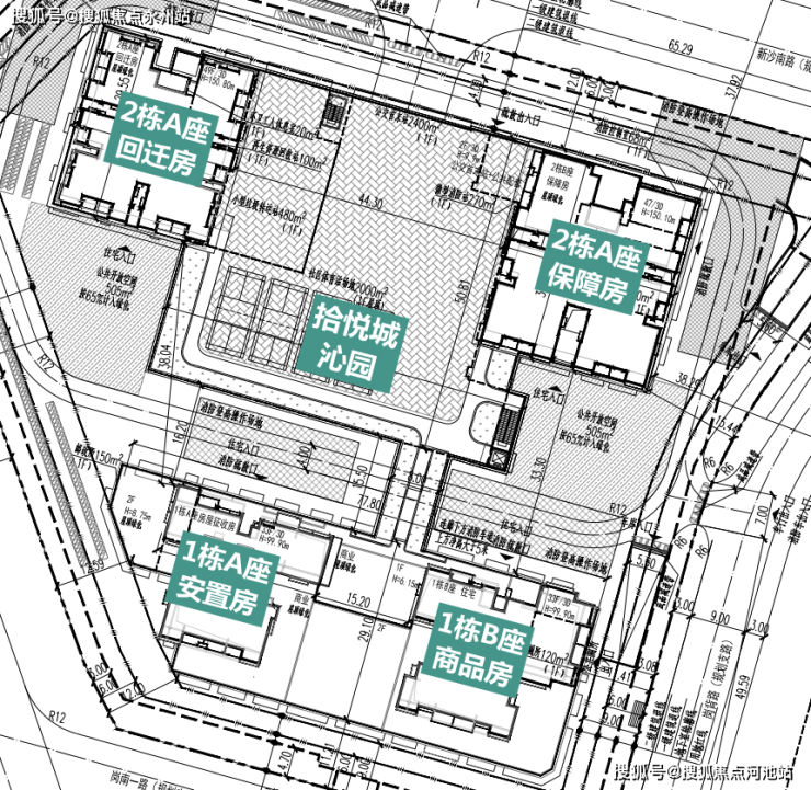
资料显示,沁园建设用地面积14301.2㎡,总建面130245.74㎡,计容建面92960.58㎡,其中住宅建面82810㎡,商业建面3000㎡,容积率6.50,机动车位981个。
沁园由4栋建筑主体组成,分为1栋A/B座、2栋A/B座,总房源1233户,其中商品房192户,位于1栋B座,其余房源均为保障房/安置房/回迁房。

拾悦城楠园由8栋建筑主体组成,分为1栋、2栋,其中1栋由A-G座组成,总房源1682套,其中商品房有1202户,回迁房480户。
资料显示,楠园建设用地面积35412.81㎡,总建面322995.68㎡,计容建面235495.45㎡,其中住宅建面207970㎡,商业建面4500㎡,幼儿园建面5940㎡,容积率6.66,机动车位2396个。

配套情况
交通:项目紧邻11号线沙井站约650米,前往宝中、南山和福田相对缘,到达科技园需要约1小时,自驾走宝安大道、广深公路或京港澳高速,到达宝中和南山需要约四五十分钟。
教育:项目自带一所18班幼儿园,项目规划的九年一贯制学校教育用地,有传闻将引进宝中集团俩办分校(最终以教育局公示为准),周边学校有壆岗小学、拾悦小学、万丰小学,整体教育质量一般。
深圳拾悦城楠园开发商售楼处电话:400-992-0669(中介勿扰)
过来本项目营销中心看房,记得提前来电预约,感谢你的配合!
提前预约享受楼盘内场优惠折扣,并安排现场销售一对一服务!
来电可了解楼盘最新动态、房价、在售房源、交楼时间等信息!
免责声明🔉:以上所发布的楼盘相关信息仅供参考,所有图文资料及说明请以最终批文及双方在楼盘现场签署的买卖合同为准;本图文内容如无意中侵犯某方权益,请联系我们将会及时处理。
声明:本文由入驻焦点开放平台的作者撰写,除焦点官方账号外,观点仅代表作者本人,不代表焦点立场。
