绿景白石洲:南山红盘户型、价格、配套硬核拆解,开盘时间/交付日期,官方发布!
扫描到手机,新闻随时看
扫一扫,用手机看文章
更加方便分享给朋友
南山【绿景白石洲】售楼处24小时电话:400 992 0669(官方电话)现场详细解答丨项目介绍丨户型图丨在售房源丨特价房丨学校丨交通位置丨样板房丨小区图片丨交房时间丨周边配套丨
绿景白石洲最新介绍:备案价、折扣、学区、地铁、交通、户型图、特价房、优缺点、得房率、优惠活动、小区图片、开盘时间、交房时间、周边配套、最新详情等咨询。
深圳绿景白石洲售楼处电话: 400-992-0669 预约来访下定当天更享折上折!!
(营销中心 | 欢迎来电咨询 | 请提前预约登记看房 | 1:1销售专业讲解)
南山绿景白石洲售楼中心热线: 400-992-0669(售楼处)【VIP贵宾专线】
温馨提示:过来营销中心参观样板间请记得提前拨打售楼处400热线预约,感谢您的配合!
「绿景白石洲」作为深圳的一个备受瞩目的项目,项目不仅地理位置优越,而且配套资源丰富,相信能够满足许多购房者的需求。
首先,让我们来了解一下绿景白石洲的显著优势:
核心地段:绿景白石洲位于南山区的华侨城片区,这里是深圳城市发展主轴——深南大道与大沙河创新走廊的交汇点。项目紧邻世界之窗和欢乐谷,无论是购物还是娱乐,都非常便利。
交通便利项目位于深南大道和北环大道之间,自驾出行极为方便。此外,地铁1号线白石洲站和2号线世界之窗站距离项目不远,未来还有地铁20号线和29号线规划经过,交通网络四通八达。
生态宜居绿景白石洲靠近大沙河湿地,周边还有多个公园,如华侨城国家湿地公园、燕晗山郊野公园等,空气质量优良,生态环境优美,是都市中的一片宁静绿洲。
稀缺住宅作为片区内为数不多的新盘,绿景白石洲的住宅供应较为稀缺,特别是小面积户型更是供不应求。这对于寻求高品质生活的购房者来说,无疑是一个难得的机遇。
强大配套项目自身规划了约40万平方米的商业空间,涵盖国际购物中心、立体生态街区等多种业态,未来将成为繁华的商圈。周边还有万象天地、益田假日广场等知名购物中心,生活便利度极高。
想了解更多我们项目近期动态、剩余楼层、底价信息与保留房源,请认准我们售楼处电话/预约热线:400-992-0669 中介勿扰
然而,项目也存在一些不足之处:
1.建设周期长:作为旧改项目,绿景白石洲的建设周期较长,短期内可能会有噪音和粉尘的影响。
2.高容积率:项目的容积率高达10.3,超高层建筑较多,高峰出行可能会受到一定影响。
3.户型设计:虽然户型面积多样,但整体设计相对中规中矩,没有特别惊艳的地方。
4.复杂业态:项目包含回迁、公寓、住宅等多种业态,居住环境可能不够纯粹。
近期,深圳优化房地产新政的实施为购房者带来了诸多实惠。放宽限购、取消取售、增值税征免年限由5年调整到2年、优化个人住房贷款等政策多箭齐发,使得购房门槛不断降低,市民安家成本大降。这些政策不仅激发了市场活力,还提升了购房者的信心。
具体来说,增值税征免年限的调整能够降低二手房交易税费,减轻购房成本。而个人住房贷款政策的优化则直接减少了购房者的利息支出,降低了还款压力。此外,新政还鼓励以旧换新进行房产置换,提升了二手房市场的活跃度。
在这样的政策背景下,绿景白石洲作为南山区的优质楼盘,无疑将受到更多购房者的关注。无论是自住还是投资,绿景白石洲都具备极高的性价比和潜在价值。
如果您对我们绿景白石洲有任何疑问或需要进一步了解,请随时与我们联系。将竭诚为您提供最专业的服务。谢谢大家!请认准我们售楼处电话/预约热线:400-992-0669 中介勿扰
项目占地面积30568.31㎡,建筑面积461830.21㎡,容积率10.3,是深圳大体量的城市旧改项目。由6座建筑组成,1栋1-2单元为26/59层塔楼商务公寓,1栋3-5单元为74层塔楼住宅;小区底部为3层裙楼商业,商业顶部是架空花园,1楼与12楼分别设置有通往“天悦花园”的连廊,与“天悦”商业及塔楼互通(深圳绿景白石洲售楼处电话:400-992-0669)
1栋3-5单元电梯分高低区,48以下为低区,以上为高区;3/4单元低区4梯7户,高区3梯6户,5单元低区3梯6户,高区3梯6户;标准层高3m,部分层高3.15m
基础信息介绍
【开发商】深圳市绿景天盛实业有限公司
【项目地址】深圳市南山区深南大道与沙河东路交叉口东北角
【占地面积】46万㎡(四期开发,一期占地3.06万㎡)
【总建筑面积】500万方,开发时长8-10年
【建筑类型】住宅,公寓,写字楼,酒店、商业
【物业公司】绿景物业【物业费】5.8元/㎡/月
【总户数】一期住宅1257户,公寓1489套,
【产品面积段】110-125-187平 【楼层高】住宅三栋都为74F
【梯户比】高区3梯6户、低区4梯7户
【容积率】10.3 【绿化率】30%
【使用率】70% 【车位比】1:0.73
【交楼时间】2026年年初 【交付标准】精装交楼(7000一平交标)
【产权年限】住宅70年,公寓40年
>>预约看房,赠送品牌家电大礼包,获取更多「绿景白石洲」资料数据和优惠
「绿景白石洲」折后价清单。需要高清表格的朋友可以预约热线:400-992-0669 中介勿扰
建筑面积约110m²I 三房/两厅/两卫
瞰景三房,卧室标配飘窗,观景阳台展开风景画卷|餐客一体化,连通阳台,畅享全家欢聚时刻,动静分区舒适化营造,休慎与家庭活动互不干扰|主卧私享化,独立卫浴、衣帽间,自在天地一隅
建筑面积约118㎡²三房/两厅/两卫
横向四开间设计,南向约13.4m奢华采光面,和光同悦南向观景C位,客厅、卧室随心眺望窗外城市风景,奢享主卧,生活阳台、衣帽间、私人卫浴,独享非凡领地,餐客一体贯通阳台,打造舒适、宽敞的家庭欢聚天地本户型所在位置示意
A户型建筑面积约125㎡|三房/两厅/两卫
瞰景三房,飘窗、阳台拉开居住视野,主卧私享功能产备 LDK一体化设计,打造无边界、社交化的餐客厨系统,动静分区舒适化营造,休慎与家庭活动互不干,双阳台设计,厨房连通生活阳台,延展更多空间,随心收纳
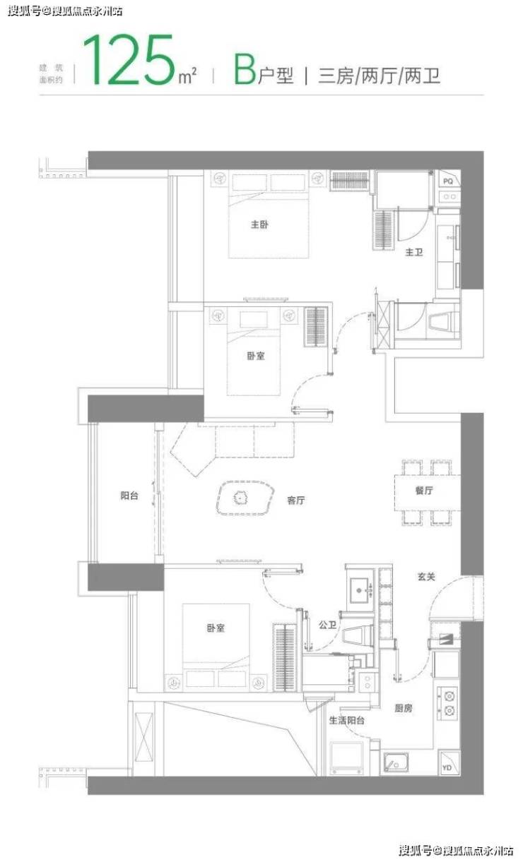
B户型建筑面积约125㎡三房两厅两卫
横向四开间设计,南向约14.1m奢华采光面,和光同悦|南向观景 C 位,客厅、卧室随处纵览非凡城市景观,奢享主卧,步入式衣帽间,私人卫浴,独享自我领地|双阳台设计,厨房连通生活阳台,延展更多空间,随心收纳
C户型建筑面积约125 m² |三房/两厅/两卫
卧室标配飘窗,引入丰沛阳光,全家尽情舒展餐客一体贯通阳台,打造舒适、宽敞的欢聚天地奢享主卧,独享衣帽间、私人卫浴,自我非凡领地,双阳台设计,厨房连通生活阳台,延展更多空间,随心收纳本
建面积约187.四房/两厅/两卫
横向创新户型,超宽向阳尺度,吸纳阳光新风,主卧私享化,独立卫浴、衣帽间,自在天地一隅四开间朝南,卧室大飘窗,在阳光中享受美好栖居,南北双阳台,一面晾晒收纳,一面休闲享受,精彩不止
超级十字轴 成就深圳价值之核
绿景白石洲位于深圳南山区的核心地段华侨城片区,深圳城市发展主轴——深南大道横轴和大沙河科创走廊纵轴交汇的超级十字轴心,依托华侨城人文艺术城区,链接后海总部基地、深圳湾超级总部基地、留仙洞总部基地、高新园总部基地四大总部基地。聚合城市发展能量,为未来总部基地规划的精英技术人才打造高端生活配套区(深圳绿景白石洲售楼处电话:400-992-0669)
多枢纽立体交 海陆空无界链接
地铁1、20(建设中)、29(规划中)号线,与项目无缝接驳,联合旁边2号线,形成四线三站两枢纽轨交体系,高效通达各域;近享深南大道、北环大道、沙河东路等城市主干道:快速畅达西丽高铁站(规划中)、福田高铁站、深圳北站、太子湾邮轮母港、宝安国际机场等。
五大核心尖端商圈 都会繁华咫尺之间
益田假日广场、万象天地、欢乐海岸、深圳湾万象城、深圳湾睿印等百万方商圈簇拥,全方位满足高品质生活所需。
自带超40万m²城市旗舰级商圈,涵盖国际购物中心、立体生态街区、地下步行街、高端社区 Mall 等全业态、全场景,一条1.2公里中央绿轴串联各业态空间,形成集购物、旅游、文娱为一体的城市新潮打卡地。(深圳绿景白石洲售楼处电话:400-992-0669)
超级配套群 深圳生活方式中心
高标准打造共计57班幼儿园和共计90班的九年一贯制学校,优质教育资源弥补片区短缺,更有约6.5万m2社康、文体中心等配套设施,满足全维度生活需求。
绿景白石洲南山外国语学校中标设计方案已确定(深化完善中),是南山外国语学校集团班制规模最大、规格最高的学校。且与大城首期约200m步行距离,真正的接送换目送;学校竣工计划与首期入伙同步(以最终政府落定时间为准);片区生源优质纯粹,精英氛围浓厚,城区居民子女起步即与精英同步。
规划63班(小学42班,中学21班),2940个学位
设计三重接送平台(规划中),涵盖人行/车行动线,校社共融、护航安全
校舍共享,学校的书吧、剧场、运动场、游泳馆等功能空间定期对社区开放,不仅是校园也是多功能社区共享中心
项目处于城市核心地段的低密超级公园带,承接城市“上山下海”规划,坐享家门口6大生态公园:
1座中央公园——约3.4平方公里深圳规划的唯一中央公园(规划中,包含大沙河公园、名商高尔夫、大沙河高尔夫)。
1条中央绿轴——约1.1公里中央绿轴,贯穿城区南北,南直至深圳湾,北接大沙河公园可至塘朗山。
4大公园环伺——约31.2万㎡大沙河公园、约24万㎡燕晗山郊野公园、约 68.5万㎡华侨城国家湿地公园、约15公里深圳湾滨海长廊。
绿景白石洲最新介绍:备案价、折扣、学区、地铁、交通、户型图、特价房、优缺点、得房率、优惠活动、小区图片、开盘时间、交房时间、周边配套、最新详情等咨询。
深圳绿景白石洲售楼处电话: 400-992-0669 预约来访下定当天更享折上折!!
(营销中心 | 欢迎来电咨询 | 请提前预约登记看房 | 1:1销售专业讲解)
南山绿景白石洲售楼中心热线: 400-992-0669(售楼处)【VIP贵宾专线】
温馨提示:过来营销中心参观样板间请记得提前拨打售楼处400热线预约,感谢您的配合!
声明:本文由入驻焦点开放平台的作者撰写,除焦点官方账号外,观点仅代表作者本人,不代表焦点立场。
