龙华鸿荣源尚云优缺点分析,是否值得买?(一文读懂)
扫描到手机,新闻随时看
扫一扫,用手机看文章
更加方便分享给朋友
最新消息:龙华中心区,鸿荣源尚云花园正式加推北区2栋1/2单元,共612套房源,面积82㎡的3房2厅1卫,89㎡的3房2厅2卫户型,折后均价在432-503万区间,89㎡的3房,折后总价在487-566万区间,在2025年12月之前带精装交房。
再回顾下鸿荣源尚云花园南区,在2023年7月21日首次获批预售,面积段有82-89-90-109-120㎡的住宅3-4房,备案均价6.8万/㎡,备案单价6.26-8.07万/㎡,总价在516-900万/套。
当时打出的是93折优惠,折后下来均价6.32万/㎡,折后单价5.82-7.42万/㎡,总价480-837万/套,相对于南区,这次推出来的北区整体价格下调了近50万/套。
鸿荣源尚云花园采用的是直接在售楼处进行销售,并且通过网络平台进行推广。
龙华鸿荣源尚云花园开发商售楼处咨询/营销中心预约热线:400-992-0669(中介勿扰)
鸿荣源尚云本次推售北区住宅,北区规划有2栋商品住宅、1栋公共租赁住房,和一栋写字楼。商品住宅的户型为82㎡的3房2厅1卫和89㎡的3房2厅2卫,户型方正,大部分南向,通风采光好。
2栋二单元折后价格区间:
82平3房2卫:总价432-468万
89平3房2卫:总价487-551万
2栋一单元折后价格区间:
82平3房2卫:总价467-503万
89平3房2卫:总价514-566万
总的来看,首付432万起即可购买全能3房,看得出开发商是真正在为购房者考虑了!
随着政策利好的逐步释放,市场正在逐步回暖,想趁着初期买房的开始行动了。
今年开年以来,房地产层面出了不少利好政策,2月7日限购“松绑”后,坊间保守预计将释放250万房票;2月20号LPR的调整,深圳房贷利率首套降低至3.85%,进一步降低了购房人的门槛。
鸿荣源尚云花园_售楼处_Vip Tel:400 992 0669 (中介勿扰)
(更多项目动态| 欢迎来电咨询 | 请提前预约登记看房 | 1:1销售专业讲解)置业顾问一对一对接,来电尊享受额外优惠

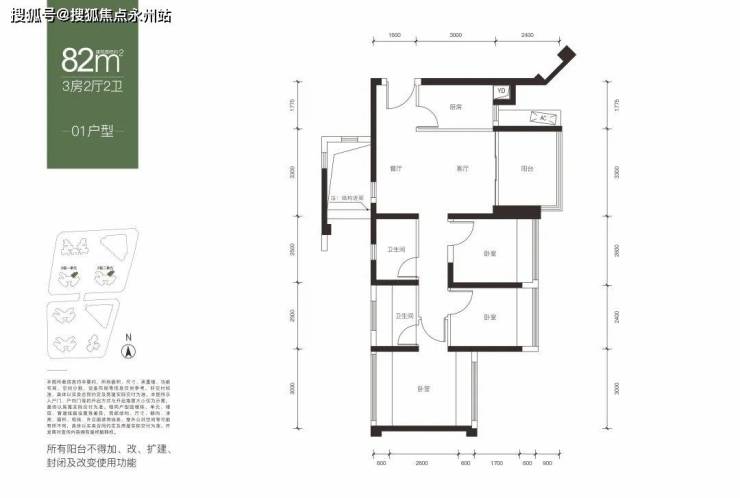
项目有2种户型,82平米的3房2厅2卫,89平米3房2厅2卫,纯刚需户型。
建面82平米:3房2厅2卫,传统的竖厅动静分区格局;南北通透户型,虽说不是完全通透,这种户型在深圳还是很受欢迎的,深圳夏长冬短,通透户型居住起来舒适很多;82平米做到3房2卫,功能间的大小还比较适中,产品设计没有任何吐槽的;主卧是双面采光,其中一定有一面朝东南或者西南,不用担心采光问题;项目是精装交房,阳台宽带2.4米,交楼时会往前推90公分,保留阳台1.5米的宽度;卧室所有的飘窗都会优化,交房的时候开发商改造好,鸿荣源的特色。
82平米户型2栋一单元和2栋二单元都有分布,两个单元01户型主阳台都是西北朝向,西北+东南通透,07户型主阳台都是东北朝向,东北+西南通透,具体加入如下图。

建面89平米:3房2厅2卫,传统的竖厅动静分区格局;客厅开间3.4米,中规中矩,厨房没有承重墙,可以按照自己喜欢的方式做一些变动;同样,客厅的阳台以及卧室的飘窗,在交房的时候开发商会优化好,在精装交楼的范围内;主卧不包括卫生间可利用面积是大概11平米,次卧面积大概是9.8平米,最小的房间大概7.5平米左右
2栋一单元和2栋二单元均有分布,主要朝向是东南朝向和西南朝西,具体朝向和价格分布如下。

户型总结:所有的户型都没有特别大的缺点,82平米紧凑的3房2卫,功能间稍小但是齐全;89的3房2卫房间面积比较优秀;所有的户型客厅的阳台和卧室的飘窗都可以优化
鸿荣源尚云花园总占地面积约2.68万㎡,总建筑面积约23.6万㎡,计容建筑面积约20.87万㎡,容积率7.78,绿化率40.01%,整体分为一期和二期南北两个地块开发,共由6栋18-57F住宅+2栋27-31F写字楼组成,南北区有风雨连廊连接,总规划1878户(可售商品房1278套),停车位1521个(占比1:0.81)。
其中A823-0919地块(北地块),总占地面积约1.53万㎡,总建筑面积约11.3万㎡,计容建筑面积约10.87万㎡,容积率7.1,共由3栋住宅组成。
A823-0920地块(南地块),总占地面积约1.15万㎡,总建筑面积约14.3万㎡,计容建筑面积约9.97万㎡,容积率8.67,共由3栋住宅组成。

项目拥有优越的地理位置和交通条件,距离4号地铁线“龙华站”约1.2公里,深大城际“民治北站”约2公里,未来25号地铁线“景龙站”约500米。无论是前往罗湖、福田、南山等核心商圈,还是到达深圳北站、机场等交通枢纽,都十分便捷。项目周边还有多条公交线路和自行车道,为出行提供多元选择。

项目一路之隔即为九年一贯制公立学校,目送式上下学。定位示范性国际化学校,全校可提供学位2520个,2023年已开始招生。
家门口的龙华艺术高中民治学校(在建),该校是一所54班学校,小学36班,初中18班,将提供2520个学位,小学1620个,初中900个,未来也将划入尚云花园学区范围内。
「 15min醇熟生活圈,路网纵横,一站式生活体验」龙华对标福田南山,各项市政配套、高端生活配套、生态配套及交通配套等目前均处在成果兑现期,未来将打造成为全新的城市级服务中心。
3km内,包含红山四馆、深圳书城、龙华文体中心、文化艺术中心、简上体育馆、龙华文化广场、文化馆新馆等多元文体配套环伺。
通过福龙路、新彩隧道、沈海高速、梅观高速等城市主干道,可直达福田、罗湖、南山以及关外各个区域,已形成醇熟便捷的深圳生活圈。

鸿荣源尚云花园是由鸿荣源开发商建造,品质是值得保障的,包括鸿荣源的物业服务还是很受认可的。
尚云花园的户型得房率加上赠送均在88%左右,对比龙华大多数新盘,整体得房率还是很占优势,最重要的一点是尚云花园的卧室飘窗交付的时候全是落地飘窗,大大增加了空间可塑性。
目前龙华核心区域内的新盘,能作为对比的楼盘还是少之又少的,比如82㎡的3房,红山跟北站的起步价都在480万以上,旁边的鸿荣源十区基本都是550万以上的起步价。
龙华明治街道·鸿荣源尚云花园开发商售楼处电话:400-992-0669【营销中心】售楼处最新详情/地址/户型/价格
在售户型图丨项目介绍丨房源丨_周边配套丨详细解答—开发商售楼处电话_欢迎来电预约享受内部折扣_恭迎品鉴〢
声明:本文由入驻焦点开放平台的作者撰写,除焦点官方账号外,观点仅代表作者本人,不代表焦点立场。
