福田紫元元大厦怎么样_深圳紫元元大厦价格_紫元元大厦售楼处电话
扫描到手机,新闻随时看
扫一扫,用手机看文章
更加方便分享给朋友

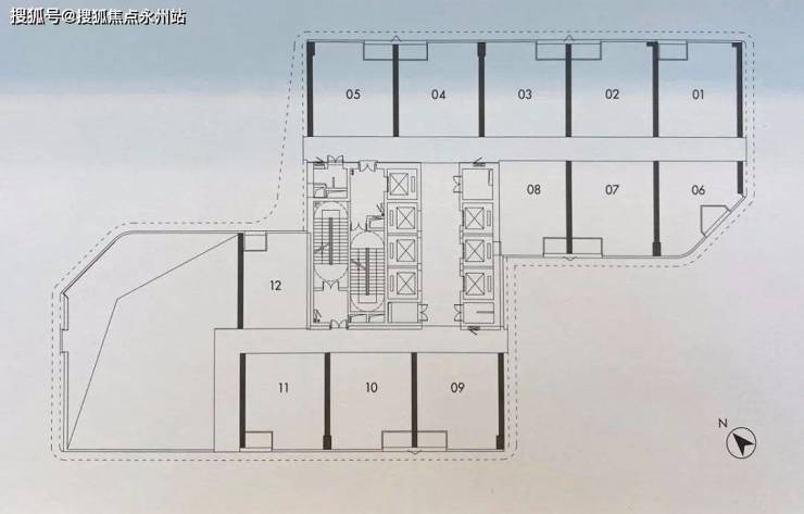
【紫元元大厦】7-29层是商办房(4.5米层高,LOFT形式精装交房),一层12户,53㎡两房,54㎡两房,68㎡两房,31-47层是公寓产品(3.3米层高),一层8户,4种户型。4梯8户(公寓)4梯12/13户 (商办)。一共7部电梯,其中1部是消防电梯,另外6部分高低区,高区3部、低区3部。所有的户型都是民水民电!这在商业项目中非常非常少见!(商水商电的费用平均是民水民电的2倍)所有的户型都通燃气!而且所有户型的厨房都很大
公寓产品价格:7.5-8.7万/平米;商办产品低楼层均价8万左右,高楼层均价9万左右
商办产品每平另加3000元/㎡的装修费,最低首付5成,贷款最长10年,公寓产品每平另加6000元/㎡的装修费,最低首付4.5成,贷款最长10年;可以做20年的气球贷(前9年零11个月 按照贷款20年付月供,最后一个月把剩余本息一次性付清);东北向看公园,所以单价比西南向高1000-2000元/㎡;

站在湾区发展,先行示范区高歌猛进的当下,紫元元大厦的诞生,作为站在巨人肩上的先行资产,将为福田、为湾区,带来更多的价值内涵,成为湾区封面历史上一个划时代的新标志。
约200米天际地标,屹立滨河大道首排,以简约利落的现代风格外立面,搭配单体式幕墙和铝板包裹的组合,打造出湾区极致的宽景玻璃幕墙,匠心雕琢波动的滨海曲线造型,以美学立面彰显首排占位的地标性,塑造湾区形象级封面。
站在窗边,城市的繁华与繁忙尽收眼底,200米云端视角,在一朝一夕间阅尽时间与空间交汇的每一个历史节点,运筹帷幄,人生尽在掌控之中说的便是如此感受了吧。

紫元元大厦,择址深圳核心区——福田CBD中轴,荟聚世界级优质配套,塑造出独一无二的世界中心圈层生活封面:工作之余,可以选择参加顶级的潮流盛会,亦可以与世界音乐大师一同探讨音乐的魅力,闲暇时再来一场友谊的比赛,无论是生意的伙伴还是人生的知己,总能在这里发现一个适合彼此的空间。

凭栏阅尽灯火阑珊,推窗一睹绿意盎然,去阅繁华,更悦自然。在紫元元大厦向东北方向俯瞰,映入眼帘的便是约147公顷的深圳中心公园,比肩纽约中央公园的极致绿暮,为灯火璀璨的城市增添了一抹清新。
游走其间,木的沉稳,水的活力、花的娇艳,一一入目,时间缓缓流动,在此,以身心对话自然,悠然惬意,邂逅离尘不离城的绿色生活。

紫元元大厦咫尺约1800万㎡科创圈超体,随着深港科创圈规划和河套规划的逐步落地,以及皇岗口岸和福田口岸的加持,片区经济将迎来新的腾飞,而紫元元将成为区域价值跃升的第一受益者,价值红利可期。
紫元元大厦,作为湾区划时代的作品,它推开的,是城市顶级资产的“未来之门”,将领衔湾区资产的发展。世界中心磁聚世界财富,全球资本云集中心地标。存量时代,紫元元大厦,致敬财富时代塔尖阶层。
开发商:深圳市苏豪投资有限公司
售楼处电话:400-992-0669
项目位置:深圳市福田区滨河大道与皇岗路交界西南处
项目占地面积:约5108.68㎡
总建筑面积:60222.21㎡
地上建筑面积:44191.34㎡
产权年限:40年 楼层:共47层
楼层区间(7-29层)
产品:约50-58-68-70㎡的4.5米层高灵动空间
平层产品:112-132㎡天际公寓
车位比:1:0.8(共380个车位数,其中智能车库214个)
梯户比:4梯12/13户 物业管理费:9元/平
7-29层是商办产品(4.5米层高,LOFT形式精装交房),一层12户
06户型:53㎡两房
08、12户型:54㎡两房
其余户型全部为68㎡的两房
31-47层是公寓产品(3.3米层高),一层8户,4种户型
深圳紫元元大厦开发商售楼处电话:400-992-0669(中介勿扰)
过来本项目营销中心看房,记得提前来电预约,感谢你的配合!
提前预约享受楼盘内场优惠折扣,并安排现场销售一对一服务!
来电可了解楼盘最新动态、房价、在售房源、交楼时间等信息!
免责声明🔉:以上所发布的楼盘相关信息仅供参考,所有图文资料及说明请以最终批文及双方在楼盘现场签署的买卖合同为准;本图文内容如无意中侵犯某方权益,请联系我们将会及时处理。
声明:本文由入驻焦点开放平台的作者撰写,除焦点官方账号外,观点仅代表作者本人,不代表焦点立场。
