天时大厦售楼处(深圳龙岗)天时大厦欢迎您丨天时大厦@楼盘详情

搜狐焦点永州站 2025-10-11 08:11:00
用手机看
扫描到手机,新闻随时看

扫一扫,用手机看文章
更加方便分享给朋友

龙岗布吉关,珑逸府(备案名:天时大厦)推售面积有42㎡的1房,76-77-78㎡的2房1卫户型,现房带精装交付龙岗珑逸府售楼处电话:400-992-0669(1对1专线)欢迎来电咨询我们最新动态、房价、在售房…

✨ 天时大厦预约通道开启,已认证,安全无忧咨询热线 ✨

✅天时大厦售楼处丨开发商丨营销中心统一热线:400-992-0669(全程认证,无分机号)

✅ 通话自动隐藏号码,保护个人隐私,谨防非渠道诈骗

龙岗天时大厦最新价格、户型信息,配套及交付信息,楼盘详情解析!

龙岗布吉关,珑逸府(备案名:天时大厦)推售面积有42㎡的1房,76-77-78㎡的2房1卫户型,现房带精装交付

天时大厦全名为“天时印刷公司布吉天时大厦”,用地单位为天时印刷(深圳)有限公司地块沿龙岗大道布局,呈现南北长,东西窄的长条状。由此,仅规划有1栋30层约百米高的住宅,位于地块的南侧;地块北侧为4层高的商业裙房。总建筑面积约3.5万平方米。计容建面约3万平方米,其中住宅建面约2万平方米,商业6120平方米。规划住宅总户数312户,沿着龙岗大道300米左右开外,布局有多个大型城市更新项目,包括佳兆业南门墩旧改、信义木棉湾入口片区旧改、京基木棉湾片区旧改等,天时大厦在布吉地铁站D1口旁,靠近龙岗大道,目前已经是现楼状态。Vip Tel:400-992-0669(中介勿扰)

现在已经连外立面都已经完成。项目似乎将住宅命名为“珑逸府”。

根据规划,项目占地近5000㎡,总建面约3.5万㎡,容积率约5.4。

项目基本为底商+独栋建筑,带来约6000㎡商业、312套住宅。将带来42-78㎡精致1-2房。Vip Tel:400-992-0669 中介勿扰

42㎡的1房1卫,设计的是竖厅格局,卧室3.3米开间,阳台1.6米宽度,一字型厨房,还带1个小生活阳台,有西北或东南朝向。

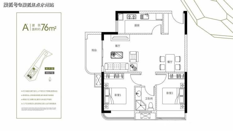
76㎡的2房2厅1卫,设计的是竖厅格局,客厅3.4米开间,LDKB一体化设计,2个卧室分别做到了2.7米/2.6米的宽度,阳台1.5米宽度,L型厨房,有东北或西南朝向。

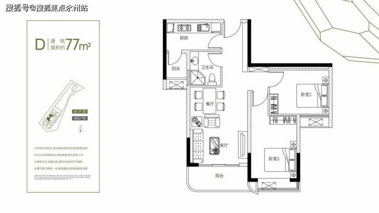
77㎡的2房2厅1卫,设计的是竖厅格局,客厅3.6米开间,LDK一体化设计,2个卧室分别做到了3米/2.9米的宽度,阳台1.6米宽度,一字型厨房,还带1个小生活阳台,都是西北朝向。

78㎡的2房2厅1卫,设计的是竖厅格局,客厅3.6米开间,LDK一体化设计,2个卧室分别做到了3.1米/2.9米的宽度,阳台1.5米宽度,一字型厨房,还带1个小生活阳台,都是东南朝向。

天时大厦(推广名:珑逸府),位于龙岗区布吉罗岗社区龙岗大道与百鸽路交汇处东侧,项目地处布吉枢纽核心圈内,3号地铁线布吉站E1出口即达,周边多为布吉关的住宅小区,整体居住氛围浓厚。

项目周边配套

学校配套:根据2023年龙岗区教育局学区划分,珑逸府小中学区都是划分在文理学校,该校总占地面积约1.2万㎡,是1所九年一贯制公办学校,在2023年首次招生入学,总设计规模36个班,可以提供1680个学位。

另外在项目500米处是百合外国语学校,已经连续多年稳坐深圳中考第一宝座。

交通配套:珑逸府出门就是龙岗大道,家门口100米的布吉枢纽站,有3/5/14号地铁线在此交汇,1站罗湖,2站福田,还有17号线“罗岗站”在建,距离约600米,该线路是从平湖开往罗湖的一条慢线。

另外布吉深圳东站,在今年1月,还迎来了全新的D148次列车,设计时速最高可达160公里,对比之前的列车大大缩短了运行时间。

商业配套:珑逸府自带6000平底商,在约1公里范围内还有天虹商场龙珠商城国都购物商城凯旋荟购物中心万科红生活广场布吉最大的商业体-布吉万象汇

作为布吉首个大体量综合性购物中心,总建面超12万㎡旗舰级商业MALL,常驻品牌超300+,最高日均人流量超12万+,万象汇集潮流时尚、亲子趣玩、轻奢体验、美食寻觅等多元业态为一体,引进了大型生活超市华润万家、华润置地首家自营影院万象影城及圣丰城、H&M,Uniqlo、GAP、URBAN REVIVO、OCE等八大主力店。

龙岗珑逸府售楼处电话:400-992-0669 (1对1专线)欢迎来电咨询我们最新动态、房价、在售房源、交楼时间等信息,“请务必注意”甄别,我们营销中心只有一个号码,不需要转换分机。

看房请务必提前预约,避免临时无人接待, 感谢您的配合!

龙岗布吉·珑逸府欢迎您-预约看房,置业顾问一对一对接在售户型图丨项目介绍丨房源丨_周边配套丨详细解答

温馨提示:项目没有所谓的“分机号”注意保护个人隐私!谨防上当!看房请务必提前预约,避免临时无人接待,感谢您的配合!

声明:本文由入驻焦点开放平台的作者撰写,除焦点官方账号外,观点仅代表作者本人,不代表焦点立场。