泰富安御景华府-(2025年泰富安御景华府)首页网站-最新房价-容积率-周边配套
扫描到手机,新闻随时看
扫一扫,用手机看文章
更加方便分享给朋友
龙华【泰富安御景华府】售楼处24小时电话:400 992 0669(开发商直销)现场详细解答丨项目介绍丨户型图丨在售房源丨特价房丨学校丨交通位置丨样板房丨小区图片丨交房时间丨周边配套丨
「泰富安▪御景华府」位于深圳龙华区观澜街道樟坑径下围村,是由泰富安集团开发的低密度纯住宅,目前处于现房销售阶段,价格保持稳定,户型涵盖 67-112㎡的二至四房,适合刚需及改善型家庭。(深圳龙华泰富安御景华府售楼处官方电话:400-855-2986)
67-70㎡两房一卫:折后总价 320 万 - 340 万,单价约 4.7 万 - 4.9 万 /㎡。
73-84㎡三房一卫:折后总价 367 万 - 390 万,单价约 5 万 - 5.3 万 /㎡。
89-91㎡三房两卫:折后总价 375 万 - 446 万,单价约 4.2 万 - 4.8 万 /㎡。
104-119㎡四房两卫:折后总价 440 万 - 540 万,单价约 4.2 万 - 4.7 万 /㎡。
备案均价为5.2万/㎡,当前折后单价4.2万-4.9万/㎡,较备案价直降约13%-19%。以最小户型67㎡为例,首付仅需48万起(按首套首付15% 计算),低于同片区其他新盘。
如需了解更多详情,欢迎咨询泰富安▪御景华府售楼处电话:400-992-0669,过来我们营销中心看房提前来电预约价格还能更优惠。
泰富安御景华府售楼处400免费咨询/预约电话:400-992-0669,中介勿扰
温馨提醒:欢迎致电开发商售楼中心,我们将竭诚为您解答疑问。为确保您的咨询安全,通话时号码将自动隐藏。请提前与销售团队预约,以确保您能顺利进入销售现场,避免不必要的等待。
项目位于深圳市龙华区观湖街道,是鹭湖中心城的一个阔景生态住区。该项目由深圳市泰富安投资有限公司开发,占地面积约18462㎡,建筑面积约104994㎡。项目规划有1栋、2栋、3栋、5栋为住宅楼,4栋为幼儿园,共提供约530户可售住宅,配备763个停车位,满足居民的停车需求。(深圳龙华泰富安御景华府售楼处电话:400-992-0669)
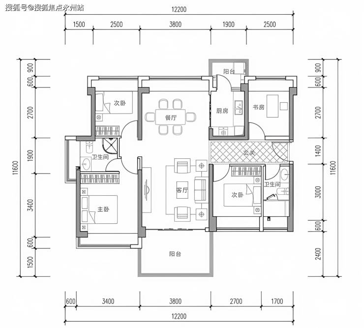
项目提供67-112㎡二至四房共 8 种户型选择,覆盖单身、新婚、二孩家庭及三代同堂等全生命周期需求。具体户型分布如下:
精致两房(67-70㎡)主力户型:68㎡(1 栋 02 户型)、70㎡(2 栋 05 户型)
空间布局:方正户型,动静分区明确,主卧朝南带飘窗,次卧北向采光,卫生间干湿分离。
得房率:约 78%,阳台进深 2.3 米,可改造为书房或儿童活动区。
价格参考:总价 338 万起,单价约 4.98 万 /㎡。
实用三房(73-91㎡)73㎡(1 栋 01 户型)、89㎡(1 栋 03 户型)
73㎡:三开间朝南,U 型厨房带生活阳台,主卧套间设计。
89㎡:双卫配置,南北双阳台,主卧 270° 转角飘窗。
得房率:约 80%,89㎡户型可实现三代同住互不干扰。
价格参考:73㎡总价 353 万起,89㎡总价 364 万起。
改善四房(104-112㎡)明星户型:112㎡(2A 栋 01 户型)
南北通透,四开间朝南,主卧独立衣帽间 + 卫浴。
横厅设计,客厅开间 4.2 米,连接 2.4 米进深阔景阳台。
保姆房独立入户,保障隐私。
得房率:约 82%,实际使用面积达 92㎡。
价格参考:总价540万起,单价约4.82万/㎡。
户型设计信息介绍
项目整体得房率 75%-82%,高于市场同期类型产品5%-8%。通过动静分区优化,减少空间浪费。以112㎡四房为例,走道面积仅1.2㎡,较传统户型节省3㎡。
采光通风系统:所有房间均配置飘窗或阳台,采光面宽达9.8-12.6米,生活阳台(1.5米进深)与景观阳台(2.4米进深)形成对流,夏季室内换气效率提升40%。L 型厨房,73㎡及以上户型采用 L 型操作台,动线流畅,操作面长度达 3.8 米。
人性化细节:89㎡及以上户型主卧面积 18-22㎡,配备独立卫浴和衣帽间,预留2.5米书桌位,满足学习需求,入户玄关柜(1.8米高)、厨房吊柜(70cm深)、卫浴镜柜(40cm厚),人均储物空间达3.2㎡。
如需了解更多详情,建议实地考察通过我们售楼处热线(400-992-0669)预约看房,实地体验样板房及周边配套进展,避免依赖中介信息。
项目位于龙华区北中心,是龙华十四五规划中的湾区中轴新城核心区域。项目周边交通便捷,规划有“北站+鹭湖”双枢纽,包括深广中轴城际线、地铁18号线和22号线、有轨电车(已开通)以及梅观高速等,未来1小时可通达全城,连接广深莞惠港,大湾区生活圈已渐成熟。此外,项目距离龙华有轨电车高新区东站直线距离约500米,连接地铁4号线,出行方便快捷。(深圳龙华泰富安御景华府售楼处电话:400-992-0669)
项目周边商业资源丰富,咫尺即达鸿荣源运营的三一云都4万㎡大型商业,约500米抵达伟禄雅苑3万㎡先施购物中心,荣超新时代广场约3.1万㎡购物中心等。此外,还可尽享周边观澜湖新城mall、龙华山姆会员店、观澜天虹等配套商业资源,满足一站式生活需求。
项目自带约2000㎡幼儿园,与深圳外国语学校(高中部)一路之隔,北临龙华区外国语学校,周边还拥有新鹭湖外国语、新加坡茵维特中英文学校、教科院附属小学等优质教育资源。此外,项目距离龙华四馆(图书馆、群艺馆、科技馆、大剧院)直线约2公里,是龙华区最大的规划文化设施建筑群,未来将成为龙华区的文化地标。(深圳龙华泰富安御景华府售楼处电话:400-992-0669)
项目毗邻六大公园,包括樟坑径社区公园、鹭湖滨水公园、樟坑径城市公园、白鸽湖文化公园、中心公园和新田公园,以城市绿肺之姿,执掌天赋生态资源,缔造品质生活家。
如需了解更多详情,欢迎咨询泰富安▪御景华府售楼处电话:400-992-0669,过来我们营销中心看房提前来电预约价格还能更优惠。
泰富安御景华府售楼处400免费咨询/预约电话:400-992-0669,中介勿扰
温馨提醒:欢迎致电开发商售楼中心,我们将竭诚为您解答疑问。为确保您的咨询安全,通话时号码将自动隐藏。请提前与销售团队预约,以确保您能顺利进入销售现场,避免不必要的等待。
声明:本文由入驻焦点开放平台的作者撰写,除焦点官方账号外,观点仅代表作者本人,不代表焦点立场。
