深圳招商锦尚公馆实用面积,得房率多少,规划图,土地性质,户型图,楼栋分布图
扫描到手机,新闻随时看
扫一扫,用手机看文章
更加方便分享给朋友
项目基本信息
【项目名称】锦尚公馆
【项目地址】南山区前海路前海妈湾15单元
【占地面积】0.93万㎡
【建筑面积】3.44万㎡
【容积率】2.33
【产权年限】40年,2015年-2055年
【交付时间】现房(精装)
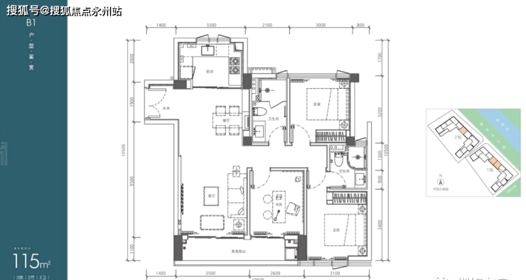
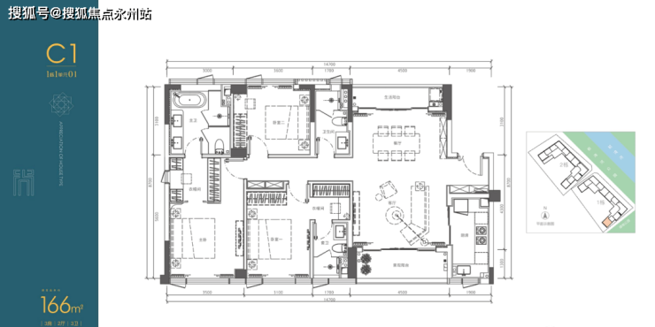
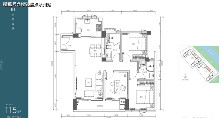
目前在售产品:78-115-166平米,总价610万-1450万
所有户型均通燃气,客厅出阳台,民用水,后期申请民用电,
居住非常舒适,投资适宜,前海低门槛

锦尚公馆价值分析:
1、地段,绝对核心:前海妈湾,城市新中心,
地处前海妈湾,作为湾区城市新中心,地位与价值不言而喻。妈湾作为前海核心三湾之一,被留白十年,未大规模开发,足见其在城市发展中的重要地位。妈湾背靠大小南山,270度依水、面海、资源禀赋异常。腾讯科技岛在对岸,未来将产生10万高端居住需求。

2、开发商,足够大牌:招商局+前海管理局
招商局继打造蛇口之后,本次与前海管理局强强联手,统一开发运营妈湾2.9平方公里土地,或将再造一个升级版蛇口。央地合作、政企联袂的模式在华侨城、深圳湾、蛇口均已被证明非常成功。据悉,为将妈湾打造为与往不同的理想城市,已云集中规院、深规院、华为、腾讯等19家知名团队参与规划建设。
3、产品,深圳未曾见:10层水岸洋房,楼下即公园
在高密的深圳,洋房属于稀缺产品,原关内已经断供10年以上,在前海、在前湾河旁、在前海石公园旁的洋房公寓,更属稀缺中的稀缺:约2.33超低容积率,仅10层洋房式公寓,带宽景阳台,通燃气,央企精装交付,可申请民电,不限购不限贷。

4、未来,潜力无限:超前规划+首发优势+限价红利
超前规划:规划主要亮点有立体城市、人车分层、全域公园,智慧城市等;锦尚作为大城首发作品,如提前在妈湾购房,即可站上城市发展时代风口;前海目前限价,桂湾胤璞在13-20万/㎡,前湾中集项目11万+/㎡,而招商由政企联袂开发,超额利润不是第一目的,积极响应限价政策,故定价在9.78万,具有限价红利。
5、交通,非常便利:海空口岸+4地铁线5地铁口+1城轨+跨海通道
片区规划有海空口岸,可直达港澳;除已运营5号线外,规划有15/21/28地铁线,共5个站,其中距离妈湾站仅300米;在建的妈湾跨海通道预计2023年底通车,届时将3分钟即达腾讯科技岛;在建深惠城际前保站,可直通全国各地。

6、配套,均顶格配置:国家博物馆+教育资源丰沛+高端商业
妈湾以打造“人文艺术胜地、国际教育高地、世界级湾区商业门户”为目标。已引进国家博物馆、荟同学校、哈罗学校、深圳交响乐团、泰康国际医院等,另规划有2所九年一贯制学校+1所高中+8所幼儿园。更规划打造前海太古里、港滨海演艺中心、国际免税城、游艇俱乐部、七星级酒店等生活美学配套。

项目图册鉴赏:



样板房拍摄:











平面图与户型图鉴赏:




深圳锦尚公馆开发商售楼处电话:400-992-0669(中介勿扰)
过来本项目营销中心看房,记得提前来电预约,感谢你的配合!
提前预约享受楼盘内场优惠折扣,并安排现场销售一对一服务!
来电可了解楼盘最新动态、房价、在售房源、交楼时间等信息!
免责声明🔉:以上所发布的楼盘相关信息仅供参考,所有图文资料及说明请以最终批文及双方在楼盘现场签署的买卖合同为准;本图文内容如无意中侵犯某方权益,请联系我们将会及时处理。
声明:本文由入驻焦点开放平台的作者撰写,除焦点官方账号外,观点仅代表作者本人,不代表焦点立场。
