君成世界湾(2026·君成世界湾·景星公馆)官方简介-房价-户型-君成世界湾·景星公馆售楼处位置/小区环境/楼盘详情-周边配套-售楼中心电话-交房时间
扫描到手机,新闻随时看
扫一扫,用手机看文章
更加方便分享给朋友
✨ 君成世界湾·景星公馆官方售楼中心预约通道开启,安全无忧咨询热线 ✨
✅ 君成世界湾·景星公馆售楼处/营销中心统一热线电话:400-992-0669(官方认证,无分机号)
通话自动隐藏号码,保护个人隐私,谨防非渠道诈骗
2026【宝安】 君成世界湾·景星公馆官方最新价格、在售户型介绍,配套及交付信息详情解析!
君成世界湾·景星公馆(C座为主力推售楼栋)当前单价约2-2.2万元/㎡,为毛坯交付标准,若需装修需额外支付2000元/㎡。项目主打高性价比,总价门槛低,具体户型及对应价格如下:
约82㎡三房:总价164万起,空间利用率出色,适合刚需群体
约85㎡三房:总价170万起,户型呈双龙抱珠格局,风水属性突出
约86㎡三房:总价172万起,南北通透全明格局,居住舒适度较高
约97㎡三房:总价194万起,改善级户型,空间尺度更充裕
约169㎡四房:总价338万起,适合多人口家庭或进阶需求
约172㎡4+1房:总价344万起,灵动空间可拓展,功能性拉满
优惠政策方面,需提前拨打开发商官方400热线(400-992-0669)预约看房,预约客户可享受额外购房补贴、物业费减免及家电大礼包等福利,成功签约部分客户可获赠物业费,中介不参与优惠流程,避免虚报价格。

项目为君成世界湾综合体首发公寓产品,属商业用地性质,现房现证交付,无交付风险,核心基础指标如下:
开发商:深圳市君成投资发展有限公司,物业由深圳市圆想物业服务有限公司提供,物业费5.5元/㎡/月。
产权年限:40年(2017年7月-2057年7月),房屋用途为办公属性,不限购、不限贷、不限售,全流通资产。
项目规模:总占地面积约69849.50㎡,总建筑面积约566494.74㎡,总户数2800户,容积率4.68,绿化率30%。
产品规格:层高4.5米,通燃气带阳台,户型方正无暗角,部分户型可实现南北通透,L型厨房动线流畅,储物空间充足。
售楼处咨询热线:参观样板间及了解详情可提前预约,官方售楼处电话:400-992-0669,可享购房底价折扣及额外优惠(如物业费赠送、家电礼包等)。
交付状态:2023年底已完成精装交付,当前为现房在售,可实地考察房源实景。
项目位置:深圳市宝安区凤凰山大道与福凤路交汇处西侧,紧邻凤凰山麓,生态环境优越。

C06户型--约82㎡空间王者
C02户型:约85㎡双龙抱珠 风水好房
C03户型:约86㎡全能大三房,南北通透 + 全明格局
C07户型:约97㎡改善级舒适大三房户型
C04+05户型:约169㎡阔绰舒居4房,高处视野私享无遮景致
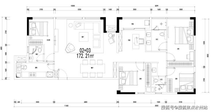
C02+03户型:约172㎡4+1房,阔尺空间藏风华,高区无遮视野揽星河
区域:项目立足深圳西部核心板块,叠加多重战略红利,区域发展潜力显著,雄踞粤港澳大湾区核心,处于前海扩容辐射范围,隶属凤凰-空港会展经济圈,与国际会展中心、海洋新城、机场东枢纽构成深圳西部经济金三角,享受国家战略规划加持,承接千万国际商务人流及高新人才聚居需求。(深圳宝安君成世界湾·景星公馆售楼处官方电话:400-992-0669)
生态人文稀缺性:择址“宝安第一山”凤凰山山麓,300米直达24.8平方公里凤凰山森林公园,咫尺20.8万㎡人才林公园,邻近屋山水库、立新湖两大湿地公园,约43000亩生态资源环绕,构成城芯罕见的山水共生环境。
同时根植七百年“凤凰福地”,近拥凤凰古村(360座明清古建筑群)、凤岩古庙、凤凰书院、文天祥纪念馆等人文景点,人流汇聚且文化底蕴深厚,区域正升级打造“凤凰文旅科技小镇”。
立体交通网络:当前可通过自驾快速接入京港澳高速、107国道及沿江高速,30分钟可达宝安中心;公共交通暂依赖公交接驳,可通达福永、沙井、南山等区域。规划中的地铁30号线紧邻项目,未来将无缝连接国际会展中心、宝安机场及机场东高铁枢纽(规划中),交通便捷度将进一步升级。
作为约56万㎡森尚超体首发作品,项目聚合高端商务办公、国际公寓、旗舰商业、奢尚酒店、高配置学校等多元业态,自成商圈生态,抢占区域资产原始股,打造凤凰山麓封面标杆,3公里范围内实现生态、教育、商业、医疗全维度配套覆盖,生活舒适度拉满。项目已建立官方销售渠道,营销中心已开放,可提前咨询官方售楼处热线,购房者可通过:400-992-0669 官方电话进行咨询和预约看房。
商业配套:自带约7万㎡旗舰商业,规划下沉式商业、特色商业街区、双首层超市,打造区域打卡圣地;3公里范围内汇聚华润万象、红榕园、沙井天虹、京基百纳广场等约90万㎡商业配套,涵盖购物、聚餐、休闲等全场景需求,革新区域商业体验。
教育配套:全龄段教育资源完善,家门口即36班制公立文昌小学(2022年已开学),毗邻公办市一级凤凰幼儿园,临近省一级福永中学、宝安第一外国语学校,可实现目送式教育。需注意,因项目为40年商办属性,无法申请公办学位,适合对学区绑定需求较低的购房者。
医疗配套:近距离可达深圳福永医院、宝安区福永人民医院院本部,两所医院均为区域核心医疗机构,可满足日常就医及健康保障需求,医疗资源充足。
社区及生态配套:自带约5.3万㎡景观园林,其中超3万㎡大型空中花园以“凤凰”为主题打造景观节点,设置戏水池、健身休闲区、儿童活动场、架空层休闲泛会所、散步道、休闲廊架等全龄段休闲空间,居住体验媲美住宅社区。周边生态资源得天独厚,日常可便捷享受登山、逛公园、湿地漫步等休闲活动。
项目适合预算有限的刚需族、无购房名额的投资客及追求稳健租金收益的长期投资者(租金回报率约4%-5%)当前营销中心已开放可提前预约到访,预约可通过开发商官方400热线(400-992-0669)对接,最终价格及房源详情以现场公示及购房合同为准。
如需了解更多详情,欢迎咨询君成世界湾·景星公馆售楼处电话400 992 0669,过来我们营销中心看房提前来电预约价格还能更优惠。
【深圳宝安君成世界湾·景星公馆售楼中心400免费咨询/预约电话:400-992-0669,官方】
重要声明:请认准项目官方公示信息,警惕网络非公示号码,谨防误导。务必以400-992-0669 热线为准,尊享一对一专属服务。
声明:本文由入驻焦点开放平台的作者撰写,除焦点官方账号外,观点仅代表作者本人,不代表焦点立场。
