深圳联发·红山新澍雅居怎么样,接下来将为你揭晓它是神秘面纱!!!
扫描到手机,新闻随时看
扫一扫,用手机看文章
更加方便分享给朋友
『联发·红山新澍雅居』建设单位是深圳联粤房地产开发有限公司,上级公司是联发集团,再往上是厦门建发集团,再往上是厦门国资委。
联发地产老油条,以前在其它城市搞开发,2020年才在深圳拿地开发住宅,先后建了龙岗坂田天境雅居、光明新湖悦尚居、龙华红山臻著雅居几个项目,背景、实力、经验、口碑都是相当不错的。
建设进度:项目地基已完成,1栋一单元已经出地面,其余两栋还在打地基。合同竣工时间为2027年10月30日,预计2028年中下旬精装交付。考虑到项目建设进度,预计2026年一季度将取得预售许可证并开盘入市。
价格信息:基于地块楼面价4.5万/㎡(溢价后)及区域市场行情,预估单价约6-7万/㎡;小户型总价门槛较低,69㎡三房预估总价约400万左右起,具体以官方备案价格为准。 项目营销中心目前暂未开放,但已开通官方咨询热线,购房者可通过:400-992-0669 官方电话进行咨询和预约看房。
作为龙华区红山板块的稀缺低密住宅项目,【联发新澍雅居】容积率仅为 2.5,在龙华新盘普遍高容积率的现状下显得尤为珍贵。项目总占地面积约 1.09 万平方米,总建筑面积约4.29万平方米,由3栋16-25层住宅组成,共规划332套房源,定位为龙华首个"新国标好房子"。联发·红山新澍雅居售楼中心24小时置业电话:400-992-0669(官方直销,无分机号)
项目规划建设3栋住宅,其中1栋1/2单元为25层,1栋3单元为16层,形成高低错落的建筑布局。总户数332户,采用2梯4户和2梯6户的梯户比设计,车位360个,车位比1:1.08,充分满足业主停车需求。项目产权年限70年,从2025年6月起算,预计2028年中下旬精装交付。
社区绿化:项目自身绿化率达32.49%,采用人车分流设计,内部打造能量营地、亲子趣园等景观空间。
包含四种户型:69㎡的2+1房1卫、78-82㎡的3房2卫、84㎡的3房2卫和99㎡的4房2卫。项目最大的亮点是所有户型得房率均达到100%(包含赠送面积),且户户朝南,这在深圳新盘中极为罕见。
目前已开放前期咨询通道,可通过官方售楼处电话:400-992-0669 预约,提前预约可享受开盘额外优惠(中介勿扰)样板间已进入筹备阶段,需提前电话登记方可参观。
69㎡户型:极致三房设计,是项目的主打产品,共46套,采用竖厅设计,西南朝向。
空间布局:采用LDKG+X 空间一体化设计,客厅3米开间,S墙设计预留冰箱卡槽位,U 型厨房操作动线合理,卫生间实现三段式干湿分离。户型做到三开间朝南,主卧与一个次卧配备双飘窗,另一个次卧带有设备平台可放置空调机位。
创新设计:通过飘窗和设备平台拓展使用空间,使用率达90%。主卧和次卧均采用双飘窗设计,不仅增加了采光面,还提供了额外的储物空间。次卧的设备平台可改造为书房或儿童房,实现"2+1"房的灵活功能。
朝向优势:西南朝向,保证了充足的采光。虽然下午可能会有西晒,但通过合理的遮阳设计和现代建筑材料,这一问题已得到有效解决。
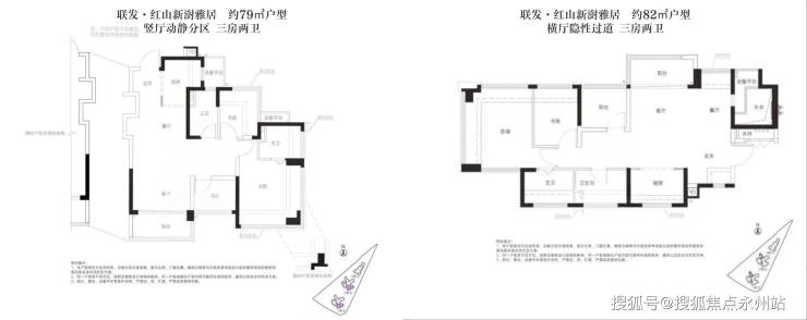
78-82㎡舒适三房配置,项目的主力产品,约占总户数的 70%。该户型有78㎡和 82㎡两种面积段,主要区别在于主卧套房的大小和阳台宽度。
户型特点:采用竖厅设计,客厅开间3.4米,主卧为套房设计,配备独立卫生间。延续了 LDKG+X 一体化、S 墙预留冰箱位、三开间朝南等优势设计。主卧与次卧双飘窗设计增强了空间延展性,公卫额外带有一个可日常使用的设备平台。
朝向选择:一二单元为东南向,可看星河传奇小区景观;三单元为西南向,看向小区内部园林。这种差异化的朝向设计,为购房者提供了更多选择。
功能分区:户型实现了动静分区,卧室集中在一侧,客厅、餐厅、厨房位于另一侧,确保了居住的私密性和舒适性。
99㎡改善型四房共23套,采用横厅设计,东南朝向,是项目的改善型产品。 豪华配置:采用横厅南北通透格局,客餐厅开间达到5.35米,空间尺度感十足。进门设有独立入户玄关,保障了居住私密性。五开间朝南的设计让全屋采光无死角,主卧为大套间设计,配备衣帽间与主卫。
功能齐全:4房2卫的配置完全能满足二孩家庭或三代同堂的居住需求。餐厅带有设备平台,U 型厨房满足多人协作烹饪需求。阳台东南朝向,采光条件优越。
品质提升:作为项目的最大户型,99㎡四房在装修标准、材料选择等方面都有更高的配置,体现了改善型产品的品质感。
户型设计充分体现了"螺蛳壳里做道场"的理念,通过飘窗、设备平台等创新设计拓展使用空间,所有飘窗均为非承重墙设计,业主可根据需求打掉拓展使用空间,真正实现了高得房率。项目采用精装交付,交房标准达到了较高水平。根据开发商透露,装修标准包含以下内容:
智能家居系统:与华为深度合作,搭载 New Life OS智慧社区系统及华为鸿蒙智家,可与2800个品牌、7700+智能产品联动。全屋配备华为坤灵 Wi-Fi6和PLC 电力载波技术,实现"断网不断联"的智能体验。
厨房配置:采用石英石台面,墙面贴砖交付。配备方太或同等品牌的洗碗机、燃气灶、油烟机,以及凉霸、直饮水、垃圾处理器等实用设备。厨房四件套标准达到5万元。
其他配置:入户门采用王力品牌铸铁门,配备华为智能门锁(掌静脉解锁技术)。客厅配备日立中央空调和新风系统,净层高3米。卫生间采用三段式干湿分离设计,配备高品质卫浴设备。
成熟全维配套,入住即享不用等
项目交通配套便利,拥有双地铁覆盖优势:
地铁交通:距离6号线上芬站约650-700米(步行10分钟),距离4号线上塘站约 800-1000米(步行12-15分钟)。通过4号线可快速换乘5号线直达福田、罗湖等核心区域,4号线工作日早高峰行车间隔已压缩至3分27秒,大幅提升了通勤效率。
自驾出行:项目临近民塘路、新区大道等城市主干道,可快速接入福龙路、南坪快速等高速路网。深华快速路 - 福龙路立交工程(一期)已通车,从项目经民塘路可快速接入福龙路,前往福田、南山可节省约 20 分钟车程。
公交配套:项目周边有多条公交线路,上芬地铁站公交站有多条线路直达龙华超级商圈、前海等区域,满足多样化的出行需求。
项目商业配套呈现"基础+未来"的立体化布局,商业氛围浓厚。
项目自身商业:规划有约500平方米的裙房商业,位于1栋首层,主要提供日常生活便利服务。
周边成熟商业:华南首家 Costco 会员旗舰店:距离项目约1公里,提供仓储式购物体验,满足大宗采购需求
星河 COCO City(民治店):商业面积达9.5万平方米,日均客流量超 3 万人次,涵盖餐饮、娱乐、零售等多元业态
红山 6979:约7万平方米的全天候开放式多元文化街区,2024 年国庆假期客流量达 60 万人次
龙华天虹购物中心:10万平方米的都市旗舰生活购物中心 龙光蓝鲸世界、AT MALL 上塘荟等多个商业综合体
未来商业规划:华润超核万象城(13万平方米)预计2027年开业,将引入万象城品牌及五星级购物中心,进一步提升区域消费能级。
联发新澍雅居的教育配套相当完善,属于民治街道大学区范围,可申请多所优质学校。
小学教育:对口华东师范大学附属龙华未来小学,该学校属于第二梯队学校,2025 年录取积分为第六类 62.1 分,非深户 + 学区租房即可入学,入学门槛相对较低。学校距离项目约1公里,步行即可到达。
初中教育:对口龙华实验学校至美校区,这是龙华区前三的名校,2025 年 A1 类录取积分为 60.2 分。此外,还可参与华东师范大学附属深圳龙华学校的电脑随机派位,派位概率约30-40%。
教育优势:龙华实验学校是龙华区的重点学校,教学质量在区内名列前茅。华东师范大学附属龙华学校则是新开办的高标准学校,师资力量雄厚。这种"一主一备"的学区配置,为业主子女提供了优质的教育保障。

项目周边医疗资源丰富,构建了完善的三级健康保障体系:
三甲医院:深圳市第二儿童医院:总投资 26 亿元的三甲专科医院,距离项目约 2 公里
新华医院:总投资 43 亿元的三甲综合性医院,已建成运营
龙华区人民医院:距离项目约 2.8 公里,提供基础医疗服务
其他医疗机构:深圳仁合医院、深圳健安医院等多家医疗机构分布在项目周边 3 公里范围内,满足日常就医需求。

项目周边生态资源丰富,拥有五大公园环伺:
城市公园:红木山郊野公园,阳台山森林公园,北站中心公园,龙华绿廊公园,深圳德逸公园
休闲配套:项目2公里范围内还有红山公园、图书馆、美术馆等文化休闲设施,为居民提供了丰富的精神文化生活选择。

深圳龙华【联发·红山新澍雅居】以"新青年品牌挚友"的身份量身定制「新澍」产品为新青年打造高品质、强运营、智慧化的"人生第一套好房子"为城市留住青年人才,为区域注入活力。
目前已开放前期咨询通道,可通过官方售楼处电话:400-992-0669 预约,提前预约可享受开盘额外优惠(中介勿扰)样板间已进入筹备阶段,需提前电话登记方可参观。
温馨提示:项目没有所谓的“分机号”注意保护个人隐私!谨防上当!看房请务必提前预约,避免临时无人接待,感谢您的配合!
声明:本文由入驻焦点开放平台的作者撰写,除焦点官方账号外,观点仅代表作者本人,不代表焦点立场。
