深圳承翰骏玺首页详情丨承翰骏玺(售楼处欢迎您)丨24小时售楼处电话
扫描到手机,新闻随时看
扫一扫,用手机看文章
更加方便分享给朋友
➢ ➢福田承翰骏玺开发商售楼处电话:400-992-0669(中介勿扰)
➢ ➢深圳福田【承翰骏玺】—「售楼处」—「欢迎您!」
➢ ➢来电可了解楼盘最新动态、房价、在售房源、交楼时间等信息!让你买的放心,住的舒心!

项目别名:承翰湾尚国际庭玺,地址位于深圳福田区,目前已开盘可直接认购,备案单价8.9万/㎡起,均价约11.28万/㎡,精装交付。推出住宅约372套建筑面积119-175㎡住宅产品。
微细鉴匠心,品质筑美好,历经时光淬炼,不负倾城期待!
2022年7月9日,承翰湾尚国际庭玺样板房璀璨绽放,参观宾客们莅临项目展示中心,共同见证了一场人居美学盛宴,自此开启福田人文雅宅的高光时刻。

大师设计 深圳罕见品质展示
作为承翰集团历经多年打造的福田人居标杆作品,承翰湾尚国际庭玺自接待中心开放以来,一直备受社会各界热切关注。此次在万众期待中,由中国现代空间建筑师、真工设计创始人兼总设计师程绍正韬主创,由承翰集团匠心雕琢的展示中心及实景样板房正式开放,吸引了众多宾朋慕名而至。

此次开放的部分园林及泛会所,堪称深圳罕见的顶配品质展示,从设计到用材用料均由由程绍正韬主导,大面积采用多种天然珍贵石材组合,工艺拼接上对纹对路,整体空间的品质展示获得行业人士的一致盛赞。

项目基础信息
项目名称:承翰·湾尚国际庭玺
占地面积:24480.45㎡
建筑面积:240182.20㎡
预售产品:住宅
产权年限:70年
绿 化 率:40.2%
容 积 率:6.36
主推产品:庭玺119-175㎡3-4房
开发商电话:400-992-0669
交付标准:精装交付
可售套数:住宅372套
匠心打造 CBD内心的桃花源
令人惊叹的是,项目停车场的用材做工同样非常讲究。由全球商业设计Top3 J&A杰恩公司设计,以“森林”为理念,负3层停车场高达4.9米层高,远高于普通住宅,让设计更加从容,住宅车行通道吊顶采用木饰面铝格栅,配合7重工艺铸就的浅灰色环氧地坪漆,墙面以米白色肌理漆,营造温馨、舒适的归家氛围。此外,住宅超过1:1的车位比,也让未来的业主免受市区车位紧张的苦恼。

停车场实拍图
同时现场沙盘全面展示了承翰湾尚国际打造的约25万㎡雅贵综合体形象,东方美学人文雅宅、ForC购物中心(拟引进)、万豪AC酒店(拟引进)、雅诗阁盛捷、甲级办公五大业态,共构一座繁华都市中的桃花源,未来优雅从容的生活让大家心动不已。

效果图
项目外观图



美学样板 品鉴东方人文雅宅
来宾步入实景样板房,感受承翰湾尚国际庭玺品质人居的美学气息,纷纷对承翰湾尚国际庭玺精致考究的工艺细节、匠心研磨的美学空间称赞不已。

承翰湾尚国际庭玺开放的样板房是建面约119-127㎡3-4房,采用瑞族、汉斯格雅、高仪、大金MASTER等国际一线精装品牌,配备全屋智能化系统,以极具品质感的国际名品,实现人居美学与人性化功能的越级突破。

值得一提的是,此次亮相的建面约127㎡户型四房,在福田的核芯区更是极其稀缺的产品。方正的格局,承载一家人的生活理想,让三代同堂更舒适。宽景阳台,270°景观面,城市繁华与静谧绿意尽收眼底。套房式主卧,独立卫浴,既惬意又私密,更精心设计了多维收纳空间,生活的品质感与从容度尽在其中。

承翰湾尚庭玺,雄踞城市中轴,享福田天赋资源,以至臻品质带来理想舒居,实景亲鉴大师匠心风范。相约美好,在繁嚣的城市里获得一份悠然的感动,让自己回到向往的生活,期待与您在此相遇。
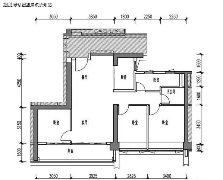
承翰湾尚庭玺户型图欣赏
建面约119-175㎡福田中芯3-4房

119平3房2厅2卫户型,户型通透,1.65m观景阳台

123平3房2厅2卫户型,户型上看设计了1.9米进深阳台

124平4房2厅2卫户型,8m观景阳台

128平4房2厅2卫户型
交通配套
项目距离地铁4、7、10号线福民站850米,步行约12分钟
距离4号线福田口岸站约800米
临近福田口岸,来往香港极其方便,皇岗口岸距离稍远一些
建设中的穗莞深城际轨道直达深圳湾超总、前海、深圳机场
自驾方面,项目东侧是金田路,南面福强路,直连京港澳高速

商业配套
楼下即是时尚个性ForC购物中心
周边商业氛围浓厚,最美水围1368文化街区,满满的怀旧风,已然成为俊男靓女的打卡地,享受繁华慢时光
2公里内8.5万㎡星河COCO Park,深圳唯一公园版情景式购物中心
皇庭广场等超级shopping mall

教育配套
家门口即享一站式12年无忧教育
项目自建9个班的幼儿园
最近的荔园外国语小学(水围校区)、福民小学、皇岗中学

区域价值
福田CBD作为含金量最高的中央商务区+河套深港科技创新合作区—科技创新平台
最牛道路”金田路”号称“黄金一公里”,金田路位于双龙起舞带上,与深南大道相交汇,位置显赫。金田路是深圳CBD最具昭示性,也是最具代表性的一条路。
金田路以金融业主导,高端产业云集,有多家大型集团总部扎堆,比如卓越、平安保险、富德生命人寿、地铁集团、安信证券、五矿证券、凤凰卫视等多家大型集团总部位于金田路上
河套深港科技创新合作区—科技创新平台
深港携手共建的河套深港科技创新合作区已成为促进科技创新合作和创新要素高效便捷流动的重要平台。在香港回归25周年之际,将目光瞄准河套深港科技创新合作区,呈现深港开创的共同发展新局面。
在深港联动发展的背景下,该片区的发展实践更是备受瞩目

承翰湾尚庭玺项目价值
福田CBD土地稀缺,近几年很少有住宅新房入市,承翰湾尚国际住宅的入市一定备受关注
承翰湾尚国际总建面240182.20㎡,涵盖住宅、ForC购物中心、万豪AC酒店、公寓、甲级办公等业态的城市综合体。


项目地块属于旧改,前身是水围村旧改,不属于招拍挂地块(拍地时就确定预售价格),价格可以参考加福华尔登府邸备案价格,预计10万/㎡左右,项目是带精装修交楼,根据深八条新规定,住宅备案价8万-10万/㎡之间的,装修费收费标准不得超过6000元/㎡

园林效果图
承翰湾尚国际庭玺住宅已开盘,精装样板房开放中,119-175㎡3-4房户型!
户型设计更偏向于改善、刚需,精装修交付!
另外注意,本项目周边二手次新房指导价在7.2-7.8万/㎡,真实成交价在8-10万,一二手基本没有价差,同等的价格买了配套更完善、装修标准更高的项目综合体住宅
福田承翰骏玺开发商售楼处电话:400-992-0669(中介勿扰)
来电可了解楼盘最新动态、房价、在售房源、交楼时间等信息!让你买的放心,住的舒心!
温馨提示:项目没有所谓的“分机号”注意保护个人隐私!谨防上当!看房请务必提前预约,避免临时无人接待,感谢您的配合!
免责声明🔉:
以上所发布的关于深圳承翰湾尚国际庭玺楼盘相关图文信息仅供您买房前参考,以上所有关于本楼盘的图文资料及说明请以最终官方批文及双方在楼盘营销中心现场签署的买卖最终合同为准;本图文内容如无意中侵犯到某方权益,请联系我们将会及时处理。
声明:本文由入驻焦点开放平台的作者撰写,除焦点官方账号外,观点仅代表作者本人,不代表焦点立场。
