君临天下·君临芯公馆(售楼处)首页网站-君临天下·君临芯公馆营销中心-君临天下欢迎您丨户型价格-容积率-样板房-配套详情@售楼处
扫描到手机,新闻随时看
扫一扫,用手机看文章
更加方便分享给朋友
福田【君临天下·君临芯公馆】售楼处24小时电话:400 992 0669(开发商直销)现场详细解答丨项目介绍丨户型图丨在售房源丨特价房丨学校丨交通位置丨样板房丨小区图片丨交房时间丨周边配套丨
君临天下·君临芯公馆售楼处位置在福田区新沙路与新沙街交汇处,旁边有富通九曜公馆、高都高尔夫花园、新光活力小区、嘉洲华苑等小区。项目营销中心电话是400 992 0669
君临天下·君临芯公馆项目位于滨河大道与新洲路交汇口附近,位置是非常适合居住的,无论是在福田CBD上班或者南山科技园上班通勤都是很方便的,项目高楼层还可以看福田高尔夫的景观,项目户型使用率更是约95%左右,目前已经拿证,可以随时认购,样板也已经开放,推出住宅约66套,公寓198套,面积36-76㎡!君临天下·君临芯公馆_营销中心_Vip Tel:400 992 0669(中介勿扰)

项目是一栋住宅、公寓混合式的高层建筑,分为A座、B座,17楼以上是大户型住宅。
这批要买的房源有住宅和公寓,其中,66套住宅分布在15-17楼,公寓则分布至6-14楼,6梯22户。
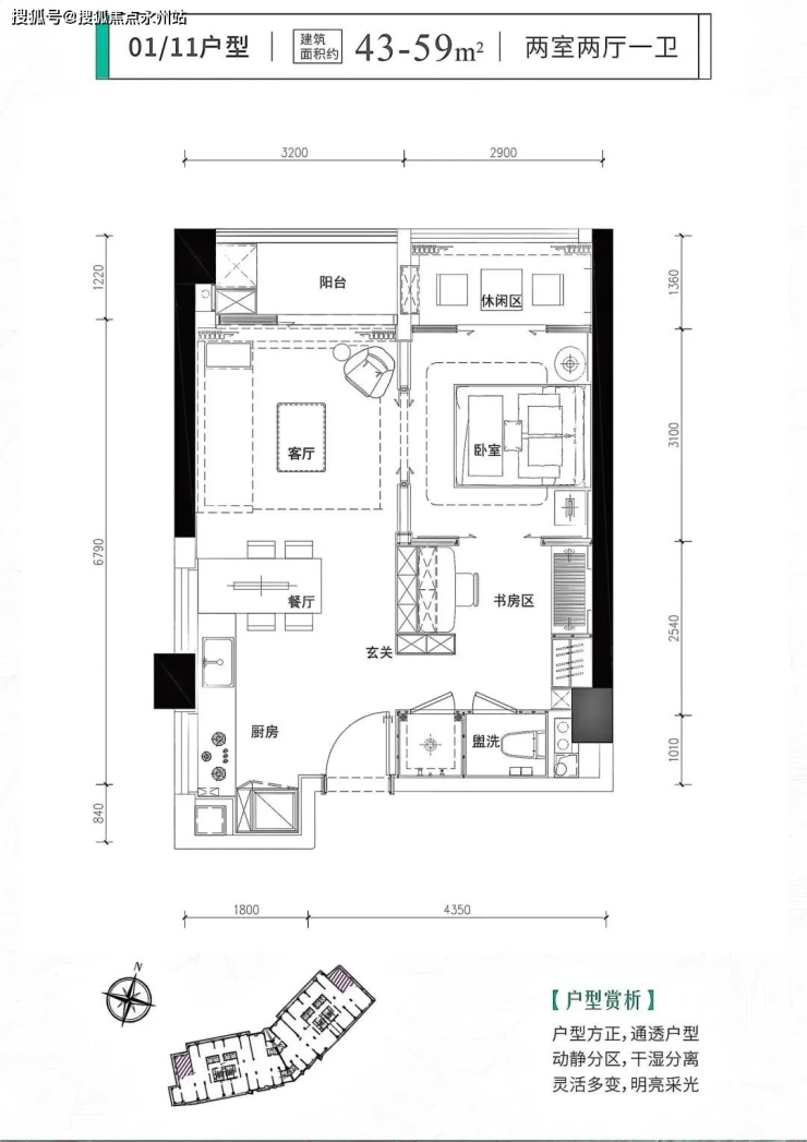
产品建面约36-76㎡,最大的一个卖点就是使用率高。

项目位于福田中心区,户型为36-76平1-3房,住宅66套,公寓198套,户型面积都一样,只是产权性质不一样。6-14层为公寓,15-17层为住宅,6梯22户。

项目基本可做到100%的使用率,胜过了目前市面上的很多新房
如果诚心买,还有折扣优惠。个别使用率很高的户型,已经被客户选走了。
建面42平做到了两房,折后总价4字头起,就可以上车福田。门槛友好,适合在福田工作的人群购买。
高层住宅部分户型,还可以看高尔夫景观。






君临天下的地理位置是很不错的,离福田CBD近。
目前旁边距离最近的地铁是1/3号线的购物公园站,步行需要11-13分钟(数据参考自高德地图)。不想走路的话,出地铁站有接驳的小巴可到达项目。
自驾出行的话比较方便,项目离滨河大道近,由新洲路还可以前往深南大道等城市主干道,不过项目门口的路是一条双向单车道,高峰期很容易堵车。
在商业配套方面,项目楼下就有底商,加上周边都是成熟小区,沿街有商铺、小超市等,能满足日常生活所需。
项目1公里开外,有星河COCO Park、购物公园、京基KK one等商圈,相对来说,娱乐、购物还蛮方便。
君临天下旁边就是明德实验五洲校区,该校正在建设中,预计未来可提供24个班级,1080个小学学位。(具体入学政策以教育局公布为准)
每个户型根据实用程度不同,价格也存在差异,公寓单价7-9万/㎡,总价260万起,住宅单价8-10万/㎡。总价300万起,住宅预计毛坯交付,公寓是精装。
他透露,拥有绝佳使用率、建面约42㎡的住宅房源,预计总价要在4字头。几乎都超过100%,其中42㎡的户型更是近130%,以至于不仅做了两房,连次卧都有8个平方。
目前价格表已经出炉可以直接认购,项目开盘有折扣,具体折扣可咨询开发商售楼处热线:400 992 0669(中介勿扰)

君临天下·君临芯公馆售楼处电话:400-992-0669 售楼中心,项目全面介绍,包含楼盘简介、售楼电话、小区户型图片、营销中心位置、区位优势、交通、周边商业配套、户型图等楼盘详情以上全文就是【君临天下·君临芯公馆】楼盘详情,这篇文章的详细分析和点评,感谢您的阅读,希望为您的购房置业选择上提供帮助,开盘预售动态、价格走势资讯、项目最新消息,待定更新发布,敬请持续关注订阅。
君临天下·君临芯公馆开发商售楼处咨询电话/预约热线:400-992-0669(中介勿扰)
(更多项目动态| 欢迎来电咨询 | 请提前预约登记看房 | 1:1销售专业讲解)置业顾问一对一对接,来电尊享受额外优惠
温馨提示:看房请提前来电预约,感谢配合!预约来访成功,即享现场当天优惠折扣,可预约现场指定销售专员(中介勿扰)
声明:本文由入驻焦点开放平台的作者撰写,除焦点官方账号外,观点仅代表作者本人,不代表焦点立场。
