后海招商玺(售楼处)官方网站-深圳后海招商玺-后海招商玺欢迎您丨@后海招商玺/最新价格/户型图/备案价/样板间/楼盘详情
扫描到手机,新闻随时看
扫一扫,用手机看文章
更加方便分享给朋友
南山【 后海招商玺】售楼处24小时电话:400 992 0669(官方电话)现场详细解答丨项目介绍丨户型图丨在售房源丨特价房丨学校丨交通位置丨样板房丨小区图片丨交房时间丨周边配套丨
后海招商玺(备案名:后海玺家园)由招商蛇口开发,位于南山区招商街道后海大道以西、工业七路以北,原为联合饼干厂旧改项目,2022年由招商蛇口从恒大手中接盘。项目地处深圳湾与蛇口交汇处,紧邻地铁2号线海月站和湾厦站(步行约700米),15分钟可达南山科技园,20分钟覆盖福田、前海等核心区域。目前临时展厅已开放,可通过开发商售楼处热线电话:400-992-0669 预约参观(中介勿扰 无分机号)为保障您的看房体验,建议提前拨打售楼处电话预约,我们将为您预留专属销售顾问及停车位,避免到访等待,高效看房更省心!
营销中心动态|开放时间:临时展厅已在深圳湾1号莱佛士酒店开放,建议通过开发商售楼处热线(400-992-0669)提前预约参观。
地址:南山区深圳湾1号莱佛士酒店(临时展厅),项目现场营销中心预计随开盘同步开放。
首推197-237㎡户型,使用率高达约95%,堪称“空间魔术师”!这意味着买100㎡,实得面积接近95㎡,性价比爆表。
价格预测与市场预期
价格预测|备案均价:参考后海同类顶级项目(如深圳湾澐玺预估均价15-20万/㎡)及周边二手房(如半岛城邦三期挂牌价约18-22万/㎡),预计招商玺备案均价在15-18万/㎡区间,总价约2790万-4446万/套。
性价比亮点:使用率高达95%(含电梯厅),实际得房率显著高于深圳湾同类项目,若按备案价计算,实际单价可折算至13-15万/㎡,形成价格倒挂优势。
对比参考:深圳湾壹号作为区域标杆,当前二手房均价约20万+/㎡,且无新房供应;后海招商玺作为纯大平层社区,定位为招商蛇口“玺”系升级作品,产品力对标湾玺、深圳湾1号,预计开盘后将成为区域价格新标杆。
预约与咨询:参观样板间及了解详情需提前预约,开发商售楼处电话:400 992 0669(中介勿扰 无分机号)
值得关注的是,招商蛇口接手后对项目规划进行了大刀阔斧的调整:容积率从最初的8.9优化至7.43,同时取消了约2.9万平方米的人才住房和保障性住房,可售住宅面积增加约2.68万平方米,增幅达43.39%。这一调整使得项目成为纯粹商品住房,为产品定位升级奠定基础。
调整后的后海招商玺建设用地面积约1.5万㎡,总建面15万㎡,规划住宅户数548户,配备700个地下停车位。
项目由4栋住宅和1栋幼儿园组成,其中有栋是25层板楼,南北通透;2栋T3排布41-42层超高层,一户一梯,南向270°全景舱,还有1栋是46层的小户型产品。这种“7”字形布局既保证了各栋楼的视野通透性,又创造了丰富的空间层次。(深圳南山后海招商玺售楼处电话:400-992-0669)
户型与产品:主力户型为188-247㎡精装大平层,主打T2/T3楼型,专梯专户设计,四房三卫布局,南北通透,部分高区户型可享深圳湾一线海景。
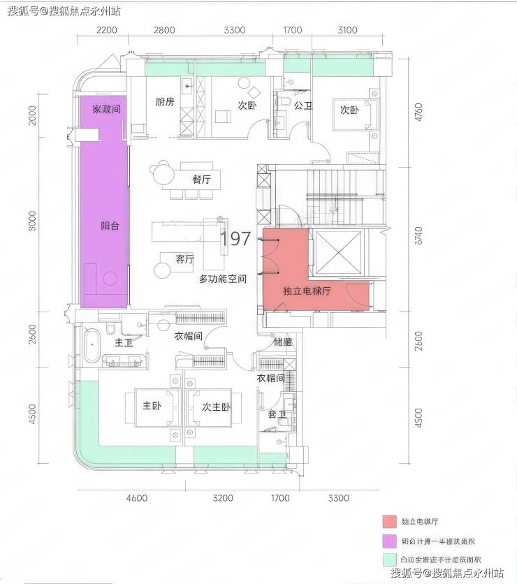
首推1栋小高层住宅(2T2户),约42套房源,户型为197-237㎡四房,使用率达 90%(含电梯厅可达95%),装标升级至10,000 元 /㎡。全部为精装交付,纯粹的大平层社区定位明确,没有7090政策限制,确保了客群圈层的纯粹性和社区的高端质感。
197㎡四房三卫(1栋T2户)空间布局:南北通透,四开间朝南,客餐厅一体化设计,面宽达 7.8 米,连接约 9.5 米景观阳台,可俯瞰社区园林或部分海景。
主卧套房:270° 转角飘窗设计,配备独立衣帽间、双台盆卫浴及浴缸,面积达 35㎡,尊享全景仓视野。
次卧配置:三间次卧均带飘窗,其中两间为套房设计,适合多代同堂家庭。
家政系统:独立家政间连接厨房,可放置洗衣机、烘干机及储物架,动线隐蔽。
装修标准:精装交付,装标升级至 10,000 元 /㎡,包含全屋智能家居(如华为鸿蒙系统)、进口岩板、德系厨电(博世或嘉格纳)及杜拉维特卫浴。
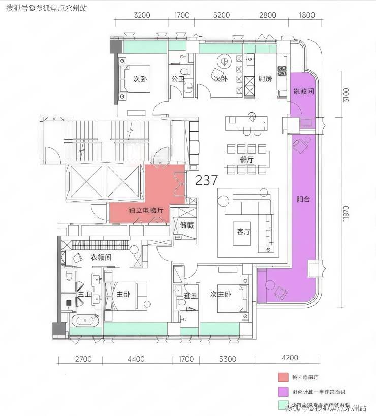
237㎡四房三卫(1栋T2户/2-3栋T3户)超级横厅:客餐厅横向面宽达9.2米,连接约 12 米弧形观景阳台,高区户型可直面深圳湾一线海景,视野无遮挡。
中西双厨:U型中厨+独立西厨岛台设计,配备嘉格纳烤箱、蒸箱及酒柜,满足高端社交需求。
主卧尊享:主卧面积超40㎡,带独立书房及270°转角飘窗,卫浴间采用双台盆+独立淋浴间+浴缸的奢华配置。
空间效率:常规使用率90%,计入电梯厅后达95%,实际得房率相当于传统户型280㎡。
「后海招商玺」作为招商蛇口“玺系”迭代之作,以“浮岛社区”理念打造垂直共生的高端居住范本。
社区规划与建筑设计|立体生态社区:采用“浮岛甲板”策略,四栋住宅坐落于抬升的绿化甲板之上,形成“超级社区底盘”与“浮岛绿化甲板”的垂直共生模式,通过“仪式水轴-艺术庭院-空中浮岛森林”三级景观系统,打造“垂直森林社区”,实现建筑与自然的融合。
归家仪式感:车行入户大门采用殿堂级落客区设计,连接天幕和水景,营造奢华归家体验;每栋独立入户大堂采用无棱角高端石材,风格与大门相呼应,彰显尊贵身份。
全龄段会所空间:会所位于浮岛甲板层,日常营业时间为 9:30-18:30,提供恒温泳池、24小时健身房、私宴厅、室内高尔夫、瑜伽室、儿童娱乐区等高端设施。会所还引入星级主厨团队,提供付费定制私宴服务,满足高端社交需求。
后海-深圳湾商圈被列为中长期重点打造的世界级地标商圈。这意味着未来该区域将集聚国内外顶级消费资源,成为时尚潮流消费引领、标志性城市景观集合的世界顶级商圈。
世界级地标商圈的定位,不仅带来商业能级的跃升,更将推动区域城市形象的全面提升。后海招商玺恰好处在这一核心地带,其地段价值自然水涨船高。(深圳南山后海招商玺售楼处电话:400-992-0669)
随着商圈建设的深入推进,以及深圳湾文化广场、深圳歌剧院、深圳科技生活馆等重大文化设施的落成,区域内的商业配套、公共空间、文化设施将持续升级,为高端居住提供强有力的价值支撑。
项目位于“豪宅地铁线—2号线”海月站和湾厦站之间,步行距离约700米,可通过后海站换乘11号、13号线,4站达福田CBD(车公庙站)、前海合作区(前海湾站)。
此外,项目距离12号线(在建)四海站约1.2公里。周边还有在建的15号线,未来地铁 15 号线将串联妈湾、蛇口、后海、科技园、留仙洞和大铲湾等人口、产业密集片区,带来巨大人口、经济效益。
道路交通方面,项目紧邻后海大道,可快速接驳望海路、滨海大道、东滨路等城市主干道,形成15分钟抵达科技园、30分钟通达前海、福田、宝中的高效交通圈。
在商业配套方面,项目坐享后海与蛇口双商圈辐射。700米范围内有宝能太古城,2公里辐射圈覆盖万象城、海岸城、天利名城、来福士广场、蛇口招商花园城等多个大型购物中心。
另外,得益于蛇口的历史基因,这里藏匿着许多宝藏老字号与特色街市,形成“高端消费+生活体验”的互补格局。
在教育资源上,目前对口育才二小和育才二中,均为南山第一梯队学校。(基于就近入学的原则,学区存在变化的可能,具体以教育局官网输出为准)
育才二小是南山重点公立小学,育才二中则是全市前20%的头部初中,成绩表现亮眼,2024年中考成绩尤为突出:不仅一举包揽南山区前三名,其中587分的高分更是在深圳市高居第三。
加上项目配建的幼儿园和九年一贯制学校(预计引入育才集团化办学),形成全龄段优质教育体系。
项目3公里内覆盖深圳湾公园、人才公园、四海公园等117个公园,项目东侧直面深圳湾海景,西侧规划社区公园,实现“推窗见海、出门入园”的居住体验。
文化新坐标:深圳湾文化广场(MAD 建筑事务所设计)于2025年11月试运营,首期开放区域新增30% 观展空间,包含创意设计馆、科技文化馆等,未来将与深圳湾美术馆、沉浸式剧院等形成文化矩阵。
后海招商玺所在区域在2025年已形成顶级居住 + 国际商务 + 滨海休闲的黄金三角价值体系,其稀缺性体现在核心地段、顶级配套、产品力与圈层壁垒的高度统一。
如需了解更多详情,欢迎来电咨询南山后海招商玺售楼处电话400 992 0669,过来我们营销中心看房提前来电预约价格还能更优惠。
【深圳后海招商玺开发商售楼处400免费咨询/预约电话:400-992-0669,中介请勿扰】
温馨提醒:欢迎致电开发商售楼中心,我们将竭诚为您解答疑问。为确保您的咨询安全,通话时号码将自动隐藏。请提前与销售团队预约,以确保您能顺利进入销售现场,避免不必要的等待。
声明:本文由入驻焦点开放平台的作者撰写,除焦点官方账号外,观点仅代表作者本人,不代表焦点立场。
