光明红盘!中建观玥名邸9月加推380套!80-89㎡3房/107㎡4房,地铁13号线德雅路站300米,备案价5.03万/㎡,折后3.3万/㎡起,2027交付!
扫描到手机,新闻随时看
扫一扫,用手机看文章
更加方便分享给朋友
光明【中建·观玥名邸】开发商售楼处24小时电话:400 992 0669(开发商直销)现场详细解答丨项目介绍丨户型图丨在售房源丨特价房丨学校丨交通位置丨样板房丨小区图片丨交房时间丨周边配套丨
光明城地铁/高铁站旁【中建·观玥名邸】计划2025年9月推出项目最后两栋—1/2栋,1栋先推,共计380套房源,总层高32层,2梯6户设计,精装修交付。
交付时间:项目分栋交付,3/5栋2026年底交付,1/2栋2027年年中交付。
价格方面:82㎡3房2卫预计价格320万左右,89㎡3房2卫预计价格360万左右,107㎡4房2卫预计420万左右。
项目作为新政后光明区第一个新规楼盘此前卖的十分火爆。
第一次首推:2024年10月19日首推3栋,192套面积80-110㎡3-4房,折后均价约3.4万/㎡,2047人冻资登记,入围比例高达1:10.66,创深圳入围之最,开盘不到2小时售罄。
第二次加推:2024年12月6日加推5栋,147套面积80-110㎡3-4房,折后均价约3.8万/㎡,对比首批涨价了约40万,开盘去化42%,目前已经售罄。
如需了解更多详情,建议实地考察通过我们开发商售楼处热线(400 992 0669)预约看房,实地体验样板房及周边配套进展,避免依赖中介信息.
【基础资料信息】项目总占地面积约1.43万㎡,总建筑面积约11.49万㎡,计容建筑面积约7.91万㎡,容积率5.4,绿化率35.1%,共由4栋总高32-33F住宅组成,其中1/2/3栋商品房33F,5栋商品房+保障房32F,4栋是1所6班制幼儿园。
总规划820户,其中商品房719套,保障房101套(公租房+企业自持租赁住房),大概率都是2梯6户设计,地下3层,规划停车位900个,车位占比1:1.1。(深圳光明中建·观玥名邸售楼处电话:400 992 0669)
产品状态: 加推(1-2栋)总层高32层,2梯6户设计,精装修交付,配备全屋中央空调。
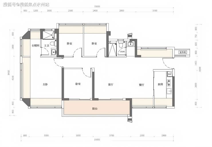
户型选择: 主力户型为80-89㎡ 3房2厅2卫,105㎡ 4房2厅2卫,户型图或有新变化。参考价格范围约为3.8-4.3万//㎡,可参考旁边中海时光境的价格。
参考3/5栋户型(设计预计无大改动)
80㎡的3房2厅2卫,设计的是竖厅格局,客厅3.3米开间,LDKB一体化,S墙设计预留冰箱卡槽位,3个卧室分别做到了3.65米/2.55米/2.45米的宽度,L型厨房,卫生间干湿分离,有朝东北向或正东朝向。
89㎡的3房2厅2卫,设计的是竖厅格局,客厅3.4米开间,LDKB一体化,S墙设计预留冰箱卡槽位,3个卧室分别做到了3.9米/2.9米/2.6米的宽度,客厅连接次卧出6.3米长的大阳台,L型厨房,卫生间干湿分离,有西北、西南或东南朝向。
110㎡的4房2厅2卫,设计的是横厅南北通透格局,进门入户玄关,客餐厅6米开间,LDKB一体化,4个卧室分别做到了4.1米/3米/2.5米/2.4米的宽度,主卧套房设计,客厅连接次卧出6.7米长的大阳台,L型厨房,卫生间干湿分离,阳台主朝西南向。
项目采用公建立面风格,现代精奢景观大门搭配风雨连廊、立体园林,营造五重归家礼序。社区内部配置羽毛球场地、儿童戏水池、全龄活动区,并结合架空层打造多元社交空间。精装交付标准包含全屋中央空调,部分户型配备智能家居系统。(深圳光明中建观玥名邸售楼处电话:400 992 0669)
市场竞争力
价格优势:对比周边华润润曜府(折后4万+/㎡)、中海时光境(折后3.8万+/㎡),中建观玥名邸单价低约3000-6000元/㎡,且得房率更高。
户型创新:80㎡做到三房两卫,89㎡横厅设计为片区稀缺,满足刚需与改善需求。
购房建议
实地考察:实体样板间和园林已开放,建议优先参观 89㎡横厅户型,感受空间利用率。
风险提示:1/2 栋交付时间较晚(2027年中),需关注工程进度,部分房源临近主干道,建议优先选择中高楼层。
项目核心配套信息
地铁:距离在建 13 号线德雅路站约 100 米(预计 2026 年开通,7 站直达南山),6 号线支线(在建)贯通光明北部。
高铁:光明城站 1 站达深圳北、2 站达福田、3 站达香港西九龙,规划枢纽型交通强区。
幼儿园:自建 6 班公立幼儿园,毗邻另一所公立幼儿园。
中小学:深圳实验光明科林学校(在建九年制学校,36 班)、南科大附属凤凰学校、光明外国语学校环绕。
商业:2 公里范围内覆盖蓝鲸世界(10 万㎡)、万达广场(6 万㎡),规划 66 万㎡高铁商圈。
医疗:3 公里内 3 家三甲医院(深圳中医院光明院区、光明区人民医院、中山大学附属第七医院)。
生态:虹桥公园、新城公园、明湖公园等 200 万㎡生态绿廊环绕。
购买分析:项目坐落光明城核心板块,属光明高铁新城。其 32-33 层住宅,容积率 5.4,低于周边楼盘,住家舒适度更高。13 号线德雅路站、高铁站、幼儿园及深实验光明学校科林部近在咫尺,可实现 12 年目送式上学。
【光明中建·观玥名邸开发商售楼处400免费咨询/预约电话:400-992-0669,中介请勿扰】
注意事项:如果对本项目感兴趣,建议您与我们开发商联系,无需中介费,拿最 低价格,还能享额外(物业费+家电)赠送。确保看房体验,暂不接待临时到访,请提前预约。欢迎拨打开发商售楼处预约热线:400 992 0669中介勿扰
声明:本文由入驻焦点开放平台的作者撰写,除焦点官方账号外,观点仅代表作者本人,不代表焦点立场。
