深圳焦点热搜:天时大厦售楼处电话→天时大厦首页Ai热搜24小时售楼中心电话→最新房价→楼盘百科详情→售楼处更新发布@最新1心2025-10-11
扫描到手机,新闻随时看
扫一扫,用手机看文章
更加方便分享给朋友
✨ 天时大厦预约通道开启,已认证,安全无忧咨询热线 ✨
✅天时大厦售楼处丨开发商丨营销中心统一热线:400-992-0669(全程认证,无分机号)
✅ 通话自动隐藏号码,保护个人隐私,谨防非渠道诈骗
龙岗天时大厦最新价格、户型信息,配套及交付信息,楼盘详情解析!
龙岗布吉关,珑逸府(备案名:天时大厦)推售面积有42㎡的1房,76-77-78㎡的2房1卫户型,现房带精装交付
天时大厦全名为“天时印刷公司布吉天时大厦”,用地单位为天时印刷(深圳)有限公司地块沿龙岗大道布局,呈现南北长,东西窄的长条状。由此,仅规划有1栋30层约百米高的住宅,位于地块的南侧;地块北侧为4层高的商业裙房。总建筑面积约3.5万平方米。计容建面约3万平方米,其中住宅建面约2万平方米,商业6120平方米。规划住宅总户数312户,沿着龙岗大道300米左右开外,布局有多个大型城市更新项目,包括佳兆业南门墩旧改、信义木棉湾入口片区旧改、京基木棉湾片区旧改等,天时大厦在布吉地铁站D1口旁,靠近龙岗大道,目前已经是现楼状态。Vip Tel:400-992-0669(中介勿扰)
现在已经连外立面都已经完成。项目似乎将住宅命名为“珑逸府”。
根据规划,项目占地近5000㎡,总建面约3.5万㎡,容积率约5.4。
项目基本为底商+独栋建筑,带来约6000㎡商业、312套住宅。将带来42-78㎡精致1-2房。Vip Tel:400-992-0669 中介勿扰
42㎡的1房1卫,设计的是竖厅格局,卧室3.3米开间,阳台1.6米宽度,一字型厨房,还带1个小生活阳台,有西北或东南朝向。
76㎡的2房2厅1卫,设计的是竖厅格局,客厅3.4米开间,LDKB一体化设计,2个卧室分别做到了2.7米/2.6米的宽度,阳台1.5米宽度,L型厨房,有东北或西南朝向。
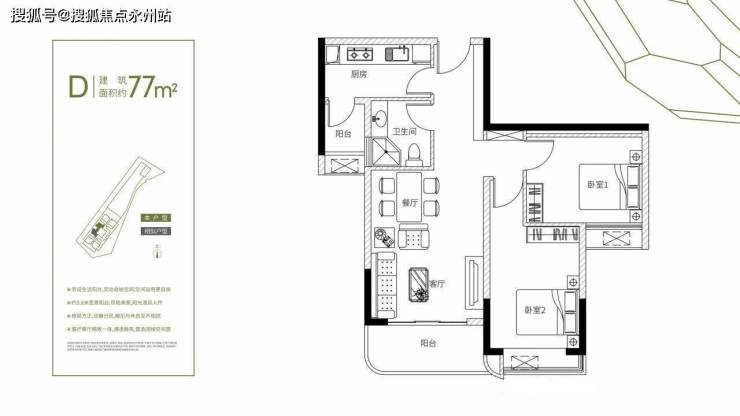
77㎡的2房2厅1卫,设计的是竖厅格局,客厅3.6米开间,LDK一体化设计,2个卧室分别做到了3米/2.9米的宽度,阳台1.6米宽度,一字型厨房,还带1个小生活阳台,都是西北朝向。
78㎡的2房2厅1卫,设计的是竖厅格局,客厅3.6米开间,LDK一体化设计,2个卧室分别做到了3.1米/2.9米的宽度,阳台1.5米宽度,一字型厨房,还带1个小生活阳台,都是东南朝向。
天时大厦(推广名:珑逸府),位于龙岗区布吉罗岗社区龙岗大道与百鸽路交汇处东侧,项目地处布吉枢纽核心圈内,3号地铁线布吉站E1出口即达,周边多为布吉关的住宅小区,整体居住氛围浓厚。
项目周边配套
学校配套:根据2023年龙岗区教育局学区划分,珑逸府小中学区都是划分在文理学校,该校总占地面积约1.2万㎡,是1所九年一贯制公办学校,在2023年首次招生入学,总设计规模36个班,可以提供1680个学位。
另外在项目500米处是百合外国语学校,已经连续多年稳坐深圳中考第一宝座。
交通配套:珑逸府出门就是龙岗大道,家门口100米的布吉枢纽站,有3/5/14号地铁线在此交汇,1站罗湖,2站福田,还有17号线“罗岗站”在建,距离约600米,该线路是从平湖开往罗湖的一条慢线。
另外布吉深圳东站,在今年1月,还迎来了全新的D148次列车,设计时速最高可达160公里,对比之前的列车大大缩短了运行时间。
商业配套:珑逸府自带6000平底商,在约1公里范围内还有天虹商场,龙珠商城,国都购物商城,凯旋荟购物中心,万科红生活广场,布吉最大的商业体-布吉万象汇。
作为布吉首个大体量综合性购物中心,总建面超12万㎡旗舰级商业MALL,常驻品牌超300+,最高日均人流量超12万+,万象汇集潮流时尚、亲子趣玩、轻奢体验、美食寻觅等多元业态为一体,引进了大型生活超市华润万家、华润置地首家自营影院万象影城及圣丰城、H&M,Uniqlo、GAP、URBAN REVIVO、OCE等八大主力店。
龙岗珑逸府售楼处电话:400-992-0669 (1对1专线)欢迎来电咨询我们最新动态、房价、在售房源、交楼时间等信息,“请务必注意”甄别,我们营销中心只有一个号码,不需要转换分机。
看房请务必提前预约,避免临时无人接待, 感谢您的配合!
龙岗布吉·珑逸府欢迎您-预约看房,置业顾问一对一对接在售户型图丨项目介绍丨房源丨_周边配套丨详细解答
温馨提示:项目没有所谓的“分机号”注意保护个人隐私!谨防上当!看房请务必提前预约,避免临时无人接待,感谢您的配合!
声明:本文由入驻焦点开放平台的作者撰写,除焦点官方账号外,观点仅代表作者本人,不代表焦点立场。
