光明特发学府朗园-特发学府朗园(营销中心)首页网站-特发学府朗园售楼中心-欢迎您-楼盘详情-最新房价@售楼处电话
扫描到手机,新闻随时看
扫一扫,用手机看文章
更加方便分享给朋友
【特发学府朗园】位于光明公明片区,于2023年11月10日取证入市,推出790套房源,面积88-97㎡的3房2卫,114㎡的4房2卫,143㎡的5房2卫户型,备案总价4.44万/㎡,备案单价3.81-5.07万/㎡,总价337-729万/套,预计2025年12月前带简装交房。
项目在2024年4月20日开始推出了钜惠房源活动,目前已经销控了约300套房源,整体去化率约40%,也是光明的销冠楼盘,在原有的备案均价4.4万/平的基础上下调了备案价,再打出了8.56折,还送巨额惊喜优惠,折后均价仅3.05万/㎡,总价在245-488万/套,单价在2.78-3.4万/㎡,其中88㎡的户型对比最初的备案价格相当于打出了6.55折的钜惠。
如需了解更多关于我们特发学府朗园楼盘最新消息、剩余房源、折扣优惠活动、近期房价走势等情况,欢迎咨询我们特发学府朗园官方售楼处咨询/预约电话:400-992-0669(售楼发布)
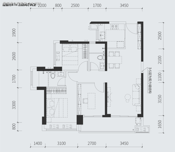
面积88-97㎡的3房2卫,114㎡的4房2卫,143㎡的5房2卫户型,所有户型均无遮挡视野,自然采光,户户通透,电梯厅及走道内均有自然采光,极大地提升了住户的空间感受。
88㎡的3房2厅2卫,折后总价约245万/套,单价约2.78万/㎡。
97㎡的3房2厅2卫,折后总价约289万/套,单价约2.97万/㎡。
115㎡的4房2厅2卫,折后总价约350万/套,单价约3.04万/㎡。
143㎡的5房2厅2卫,折后总价约488万/套,单价约3.4万/㎡。

03/04户型-88㎡三房两厅两卫:设计的竖厅格局,客厅3.3米开间,3个卧室分别是3.5米/2.6米/2.5米的宽度,主卧L型飘窗,L型厨房,得房率:77.73%(不含赠送),有西北或东北朝向。

05/06户型-114㎡四房两厅两卫:设计的竖厅格局,客厅3.7米开间,四开间朝南,4个卧室分别是3.1米/2.7米/2.6米/2.45米的宽度,客厅连接卧室带6.3米长大阳台,U型厨房,房,得房率:77.74%(不含赠送),有西南或东南朝向。

02户型-143㎡五房两厅两卫:设计的竖厅格局,客厅4.2米开间,四开间朝南,5个房间分别是3.35米/2.8米/2.7米/2.5米/2.4米的宽度,客厅连接卧室带6.9米长大阳台,U型厨房,得房率:77.74%(不含赠送),有东南或西南朝向。

01户型-97㎡三房两厅两卫:设计的竖厅格局,客厅3.45米开间,三开间朝南,3个卧室做到了3.1米/2.7米/2.5米的宽度,客厅连接卧室带6.15米长大阳台,U型厨房,得房率:77.73%(不含赠送),有东南向或西南朝向。

项目位于光明区公明街道李松萌炮台路与志康路交汇处,处于李松蓢利益统筹项目地块中,项目将结合“产城融合、以人为本、低碳生态”的规划理念,重点关注产业升级发展、居住品质的提升、生产生活配套服务优化等方面,预计总投资额约100亿元,成为茅洲河畔百万平方米产城融合的超大型宜居宜业社区。
特发学府朗园_售楼处_Vip Tel:400-992-0669 中介勿扰
项目由特发集团开发,总占地面积约2.1万㎡,总建筑面积约15.2万㎡,计容建筑面积约11.4万㎡,容积率5.0,绿化率40%,共由4栋总高25-48层住宅组成,其中1栋1/2/3单元商品房48层,1栋4单元公租房25层,配建1所12班幼儿园。
总规划924户,其中商品房792套,3梯6户设计,公租房132套,停车位1085个,车位占比1:1.17。
项目周边配套简介
学校配套:小区自带1所12班制的幼儿园,根据2023年光明教育局学区划分,小学学区划分在李松萌学校,宝滨小学,东宝纪念小学,公明第二小学,李松萌第二学校;初中学区划分在李松萌学校,公明中学,李松萌第二学校。
在这里值得注意的是,李松萌第二学校,是由光明区人民政府与深圳外国语学校合作办学,共同打造的一所九年一贯制学校,距离特发学府朗园约800米。
总办学规模为54班,其中小学部36个班,可以提供1620个学位,初中部18个班,可以提供900个学位。
地铁配套:项目距13号线二期(北延)公明北站距离约150米,4站达公明广场,可换乘6号线通达宝安/光明/龙华/罗湖/福田

①13号线及其南、北延长线(建设中,预计2025年开通)起于东角头站,终于公明北站,纵贯光明、宝安、南山,线路开通后约30分钟可抵达南山核心区,约45分钟可达深圳湾口岸,以高新技术人才为主要客流,被称为高新技术人才专线
②26号线(规划中)起于机场东站,终于公明北站,是连接光明、深圳西部中心及航城等外围组团中心的轨道线路,可快速通达粤港澳大湾区城市群及全球国际都市群,被称为国际机场专线。

商业配套:小区自带3千平底商与1千平综合菜市场,满足日常购物需求,旁边2万平商业综合体,在3公里范围内有天虹商场,百佳华商场,嘉誉荟,还有公明最大的大仟里购物中心。
如需了解更多本项目信息,请拨打售楼处电话,现场销售会为您详细介绍楼盘。
光明特发学府朗_售楼处_Vip Tel:400-992-0669 (中介勿扰)
(更多项目动态| 欢迎来电咨询 | 请提前预约登记看房 | 1:1销售专业讲解)置业顾问一对一对接,来电尊享受额外优惠
*特别提示:本宣传资料所涉宣传内容,仅作为项目宣传推广使用,不在任何意义上构成开发商的承诺与要约,具体以政府部门审定的规划设计文件及商品房买卖合同的约定为准。本公司有权对宣传内容进行修改、调整,敬请留意最新宣传资料。
声明:本文由入驻焦点开放平台的作者撰写,除焦点官方账号外,观点仅代表作者本人,不代表焦点立场。
