鸿荣源尚云-深圳龙华(鸿荣源尚云)楼盘详情-房价-户型-容积率-小区环境
扫描到手机,新闻随时看
扫一扫,用手机看文章
更加方便分享给朋友
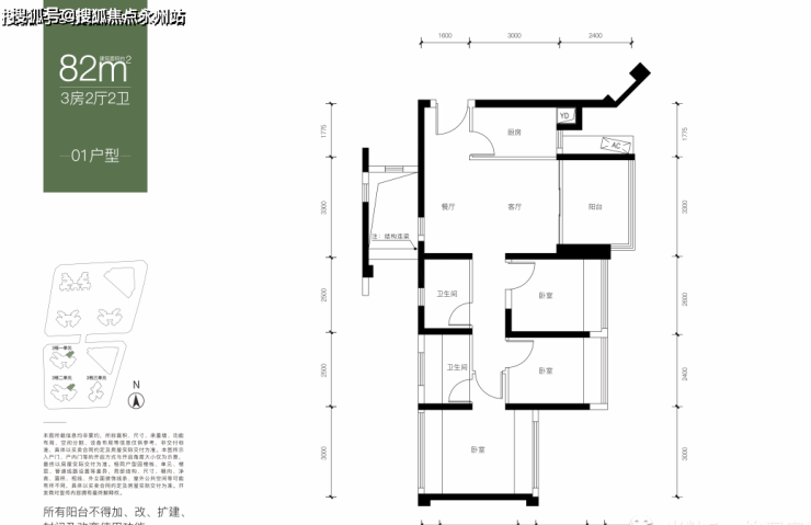
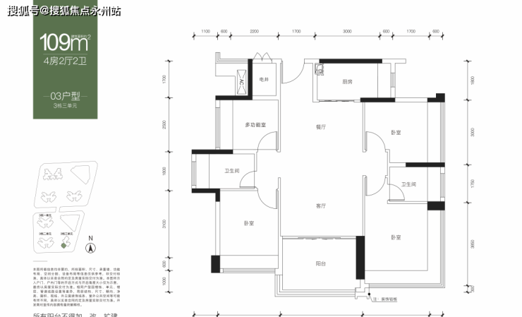
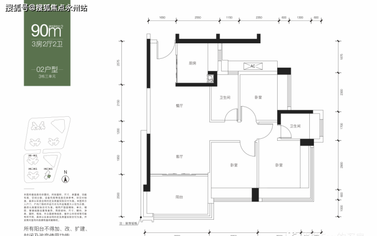
鸿荣源尚云此次推666套住宅,户型为建面约81~120平。1/2单元为55层、56层的超高层,三梯六户,面积段为82㎡-120㎡的三至四房;3单元为18层的小高层,两梯三户,面积段为90-109㎡的三至四房。项目推出一共五个户型,全部都是使用落地窗设计,使用率高达88%以上。
鸿荣源尚云开发商售楼处电话:400-992-0669(中介勿扰)
预约看房,现场销售置业顾问一对一对接,享受额外优惠!
温馨提示:过来看房需提前来电预约销售,感谢您的配合!

「 鸿荣源尚云必买价值点」级商圈蓝图展开,海量旧改蝶变在即 | 四地铁线规划在建,密集路网速达全市
15min醇熟文体圈,省级示范旗舰商业 | 目送式九年一贯制学校,扬帆无忧未来
城市标杆项目缔造专家,百强物业护航 | 鸿荣源品质把关,尚系新作,载誉而来

多维联通,站城一体:通过探索地下+地面+地上多层立体交通网络,打造无界都市生活圈。

基础信息介绍
开发商:深圳市鸿龙达投资有限公司
项目名称:鸿荣源·尚云花园
物业:深圳市鸿荣源物业服务有限公司
项目占地:约2.7万㎡
总建面:约23.6万㎡
主推户型:约82-120㎡3-4房2卫
可售套数:约666套
容积率:约7.78
绿化率:约40%
产权:70年
售楼处电话:400-992-0669

「户型鉴赏」




「 鸿荣源前瞻落子,龙商旧改首发」
百万级旧改蓄势,世界级商圈落位。鸿荣源抢占城市发展先机,率先布局,打造龙华商业中心城市更新单元首发人居臻品。

「 五地铁汇聚,打造全新城市枢纽 」
4号线(已开通):龙华站直线距离约1000m,深圳纵向城市交通中轴。25号线(规划):景龙/油福站直线距离约400m,打通城市东西走向核心动脉。27号线(规划):油福站直线距离约400m,拥抱前海,覆盖各大高新人才聚集地。22号线(规划):油松站直线距离约1km,连接福田-龙华各大核心产业区。

「临近九年一贯制学校,目送式上下学」
项目一路之隔即为深圳市艺术高中民治学校(在建),目送式上下学。定位示范性国际化学校,全校可提供学位2520个,2023年已开始招生。

深圳鸿荣源尚云开发商售楼处电话:400-992-0669(中介勿扰)
过来本项目营销中心看房,记得提前来电预约,感谢你的配合!
提前预约享受楼盘内场优惠折扣,并安排现场销售一对一服务!
来电可了解楼盘最新动态、房价、在售房源、交楼时间等信息!
免责声明🔉:以上所发布的楼盘相关信息仅供参考,所有图文资料及说明请以最终批文及双方在楼盘现场签署的买卖合同为准;本图文内容如无意中侵犯某方权益,请联系我们将会及时处理。
声明:本文由入驻焦点开放平台的作者撰写,除焦点官方账号外,观点仅代表作者本人,不代表焦点立场。
