臻林天汇-售楼处(欢迎您)臻林天汇-首页网站_售楼中心|楼盘房价
扫描到手机,新闻随时看
扫一扫,用手机看文章
更加方便分享给朋友
如果看完以上关于我们南山合景同创·臻林天汇项目的介绍后,您还对如下问题想要深入了解的话:
问题如:最新推出的房源备案价格,小区在售的有多少栋楼,各个楼栋户型具体是什么朝向,每一层楼规划的是几梯几户,这一期卖的房小区里面有多少户,容积率多少,楼栋总共多少层,现在卖的户型具体交楼时间,这几种户型剩下的还有那些,小区门口离地铁近吗,该社区是怎么划分学校的,可以申请哪些小学和初中,交房后物业费怎么收?物业管理费每平米每月多少元,交房是精装修还是毛坯,停车位够吗?停车位有多少个?,小区周边未来有什么规划,楼盘展厅、营销中心在哪里?具体什么时候开盘?开盘多少钱一平米,周边配套,楼盘详情,值得买吗,潜力升值如何,升值空间大不大,营销中心地址怎么导航,坐地铁到哪个站下车过来楼盘比较近,周边近期有什么规划,周边商业配套怎么样,拿地批地时间,这几天楼盘现场最新优惠活动情况等。
建议您可以拨打我们楼盘内场400免费咨询电话与售楼处现场销售直接了解。
深圳【合景同创·臻林天汇】臻林天汇开发商售楼处电话: 400-992-0669(中介勿扰)

1 项目概况
合景同创臻林天汇大厦,总建筑面积约11.6万㎡,是位于49万㎡中山公园之上的品质综合体。项目由两栋超高层塔楼建筑及无缝接驳地铁商业组成,是集高端公寓、办公大平层物业、地铁口商业等业态于一体的城市封面项目。
2 项目亮点
1、项目位于南山核心区,周边有科技园、深圳湾、后海、前海、留仙洞五大龙头高地环绕,可谓众星捧月、熠熠生辉。
2、项目所在片区拥有约185万平方米旧改,有居住、有商业,城市面貌和城市功能将大幅焕新、提升,是南山最后一块最具活力的居住板块,空间很大。
3、项目占据非常稀缺的景观资源,不仅拥有中山公园这个“后花园”,还能眺望大、小南山,前海湾、深圳湾海景,以及摩天轮地标等深圳顶级景观。
4、凝聚设计师团队倾力雕琢,香港DLN、日本景观巨匠小林政彦、英国kelly hoen携手梁志天,以巅峰国际视野,打造时尚视觉盛宴。
3 区域价值
区位介绍
合景同创臻林天汇所在粤港千年文脉起源之地,是未来粤港文化地标所在片区,也是2020年政府重点规划发展的深圳湾文化走廊的重要环节位踞前海深港合作区、高新区、后海、深圳湾及留仙洞总部群黄金原点,承接全市大量高净值人群的居住需求。
交通规划
双地铁上盖,立体交通拥全球未来
无缝接驳地铁12号线(建设中)、21号线(规划中)中山公园站,经深南大道、月亮湾大道,直通前海。前海交通枢纽,海、陆、空、轨四维立体交通,畅达粤港澳大湾区各大城市,连通国内国际生活。
4
配套价值
商业配套:
极速尽享国际都市生活圈
华润万象天地、壹方城购物中心、欢乐海岸、华润深圳湾万象城、万象前海(规划中)从容抵达,邂逅世界前沿潮流。引入MUSTEL酒店,合景泰富旗下又一自持高端时尚潮流酒店,打造高端人居、社交娱乐、办公、酒店综合解决方案。约7000㎡的地铁接驳商业,引进合景泰富集团旗下的著名购物中心品牌--悠方UFUN,将为深圳城市商业一道靓丽的风景线。
文化配套:
千年南头古城,粤港文化新地标
以1700年古城文化,赋予臻林天汇独特人文底蕴。2019年南头古城焕新,将文化、创意、艺术源头引入,孕育区域蝶变的力量。
生态配套:
合景同创臻林天汇立踞中山公园之上,“长在公园里的房子”,占据约49万㎡恒久城市绿肺。
天赋稀缺 ,公园绿地在城市的占位属于不可再生资源,城市开发使得可用性土地减少,也让公园地产倍显弥珍。宜居属性 , 举步即至中山公园,犹如业主休闲、游憩的私家后花园。公园植被造就富氧生活圈,为塔尖人士创造“住在公园”的乐活人生。
5 楼栋分析
合景同创臻林天汇由汉唐街城市更新而来,坐落于南山大道与北环大道交汇处西南侧中山公园旁,是集高端公寓、办公、酒店、商业配套于一体的城市综合体项目。项目占地1.9万㎡,建面11.7万㎡,计容积建面8.4万㎡,其中商业、办公及酒店5.9万㎡,商务公寓2.4万㎡。共2栋,建筑高度140米。
建筑风格
合景同创臻林天汇为更好地融入南头古城的创意文化以及中山公园的天然氧吧,臻林天汇特邀日本景观设计巨匠小林政彦操刀,打造深圳罕有的日式园林,40余年从业生涯中,小林政彦以前瞻性设计想法完成了东京六本木山庄、大阪站前广场、西宫花园等广为传颂的佳品。此次将日本传统经典作庭手法“真、行、草”对应融于各个功能分区空间,通过枯山水、水景、石雕、特色植物、特色铺装造景,营造安静、祥和、归心之地。
6
户型分析
”
外立面是由高定珠宝手工几何切面汲取的灵感,线条俐落有致,一面是繁华璀璨、一面是绿意摇曳。
由全球梦幻顶级室内设计师Kelly Hoppen打造,风格上融合东西方美学,将城市与公园景观进行艺术化融合;
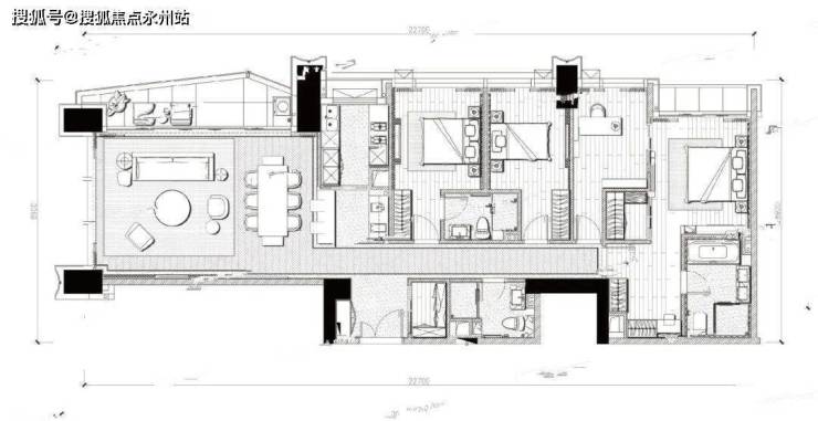
建筑面积约220㎡4房2厅3卫(经典Kelly Hoppen风格)
南山【臻林天汇】臻林天汇开发商售楼处电话:400-992-0669(中介勿扰)
来电可了解楼盘最新动态、房价、在售房源、交楼时间等信息!让你买的放心,住的舒心!
臻林天汇开发商售楼处直销_欢迎来电预约享受内部折扣_恭迎品鉴
◆提前来电-预约登记尊享售楼处销售专业讲解〢一对一热情服务〢◆
臻林天汇开发商售楼中心〢预约可享内部优惠〢匠心钜制-恭迎品鉴〢
温馨提示:项目没有所谓的“分机号”注意保护个人隐私!谨防上当!看房请务必提前预约,避免临时无人接待,感谢您的配合!
【免责声明】
· 本文中所提到的深圳南山臻林天汇项目名称均为本项目的推广名,具体备案名可能存在不同。
· 本宣传资料仅作为要约邀请,相关图文内容不排除因政府相关规划、规定及开发商未能控制的原因而发生变化,本公司保留对宣传资料修改的权利,敬请留意最新资料。
·本资料对项目或户型产品的介绍,旨在提供相关信息,不意味着本公司对此作出了承诺,买卖双方的权利义务以双方签订的《商品房买卖合同》及附件等协议为准。
· 本文部分图片来源于国际互联网,版权归原作者所有,如涉及版权等问题,请立即联系我们,我们会给予更改或相关处理。对使用本网站信息和服务所引起的后果,本网站不作任何承诺。
声明:本文由入驻焦点开放平台的作者撰写,除焦点官方账号外,观点仅代表作者本人,不代表焦点立场。
