京基天韵府开发商售楼处电话(京基天韵府)首页网站-京基天韵府营销中心欢迎您-楼盘详情-最新价格-户型图-容积率@2025.10.15售楼处AI热搜
扫描到手机,新闻随时看
扫一扫,用手机看文章
更加方便分享给朋友
✨ 京基天韵府预约通道开启,已认证,安全无忧咨询热线 ✨
✅京基天韵府售楼处丨开发商丨营销中心统一热线:400-992-0669(全程认证,无分机号)
✅ 通话自动隐藏号码,保护个人隐私,谨防非渠道诈骗
龙华京基天韵府最新价格、户型信息,配套及交付信息,楼盘详情解析!
京基天韵府户型产品_房价介绍:京基天韵府在售面积有70-85㎡的2房1卫,105㎡的3房2卫,120-150-180㎡的4房2卫户型,计划在2024年一季度入市,将推出1栋B座,244套房源!价格方面预计6.6万/㎡均价。
京基天韵府采用的是直接在售楼处进行销售,并且通过网络平台进行推广。
罗湖京基天韵府开发商售楼处咨询/营销中心预约热线:400-992-0669(中介勿扰)
在售户型图丨项目介绍丨房源丨_周边配套丨详细解答—开发商售楼处电话_欢迎来电预约享受内部折扣_恭迎品鉴〢
京基天韵府即将推出的244套住宅,标准层为5梯7户,我们从平面图上看其建筑设计并没有很对称,而且户型面积跨度较大,从70㎡至180㎡分成了不同的7个户型。
建面约70㎡2厅1卫:在深圳主城区新盘中,有这么小面积的2房上车户型比较少见,这个户型也是拉低项目整体单价和总价的产品,自然也是最需要被将就的产品。
设计的是竖厅格局,餐客厅一体化,客厅3米开间,进深9.5米,L型厨房,带一个小生活阳台,得房率:89.65%(包含赠送),主卧阳台都是正南朝向。
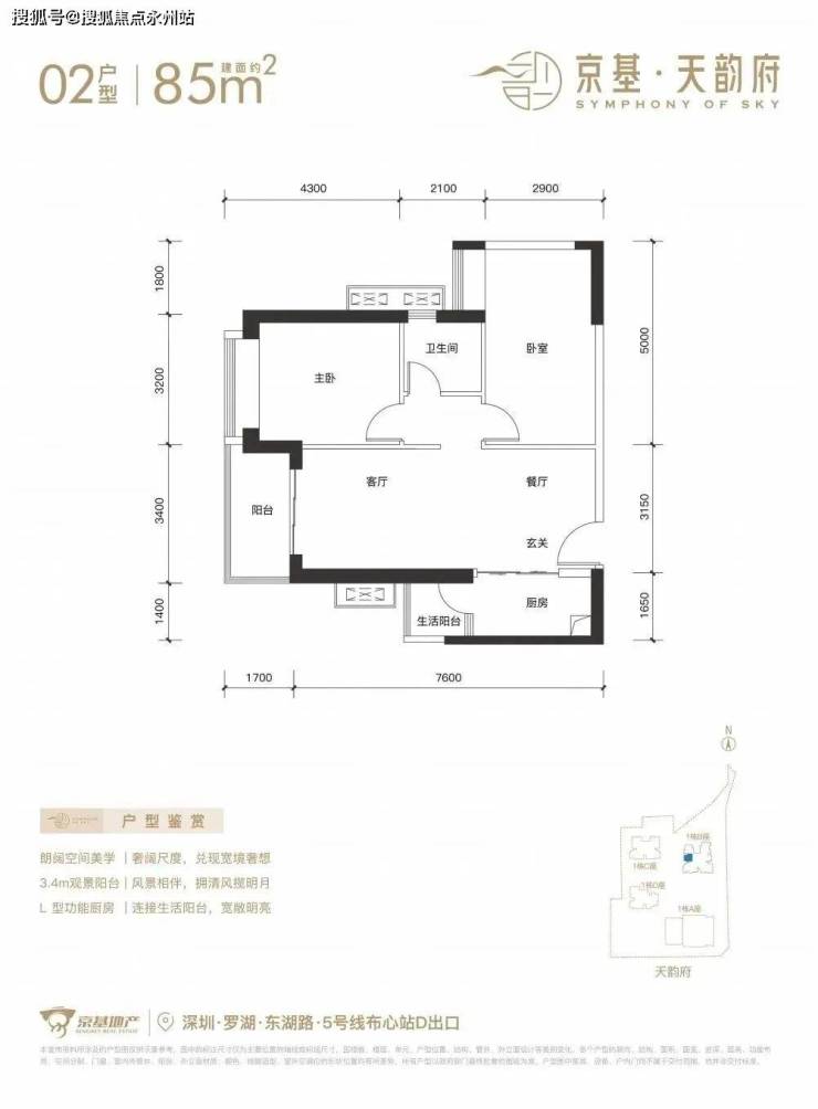
建面约85㎡2房1卫:这批产品中房源最多的一个户型,两个户型基本一致,仅朝向不同。相较70㎡的2房,85㎡的2房开间更大,空间也更加舒适,
建面约105㎡3房2卫:这是本项目3房的门槛户型,也是目前深圳主城区新盘3房2卫的主力户型。
这户型的整体设计和布局相较前面几个2房户型更合理,视野和采光面也更好,
建面约120㎡3房2卫:该户型实际上可以做“3+1”房,多出来的一个房间做卧室比较勉强,但作为多功能房还是可以的。该户型位于南向端头位,多个开间的朝向和采光都比较不错
建面约150㎡4房2卫:实际可以做“4+1”房设计,同样可以多出来一个书房或茶室,整体户型布局相较其他户型更加合理,通透性也更好
建面约180㎡4房2卫:同样可以做“4+1”房设计,空间尺度上比150㎡户型更加舒适,
京基天韵府信息解析
京基天韵府,位于罗湖区东湖街道仁心路与围岭中路交汇处西北侧,项目所处的布心片区,是罗湖老牌居住区,周边公园配套丰富,西侧是围岭公园,北侧是淘金山,东侧是深圳水库,南侧是翠竹公园。
总占地面积约1.95万㎡,总建筑面积约24.6万㎡,计容建筑面积约20万㎡,容积率10.26,绿化率36%,共由3栋62F的超高层住宅+1栋商办公寓组成,其中1栋A座商办公寓52F,1栋B/C/D座住宅62F,2栋是1所9班制幼儿园。
住宅面积116740㎡,折合90㎡/套计算,约1297套房源,其中商品房244套,5梯7户设计,地下4层,停车位995个。
京基天韵府_售楼处_Vip Tel:400 992 0669(中介勿扰)

交通方面,2高铁:深圳站、罗湖北站(规划中)2地铁:双地铁口——距离地铁5号线布心站约250米,距离地铁5、7号线太安站约500米,便捷换乘1/2/9号线。3口岸:罗湖口岸、文锦渡口岸、莲塘口岸。4 快速:临近东湖路、太白路等城市主干道,快速接驳坂银通道,清平高速,瞬达全城。数据来源:高德地图测距。
商业方面,约50万m高端商圈航母,奢享高阶丰盛生活。项目自带:约1.6万m?商业1KM范围内:约12万m?深圳天河城购物中心2KM范围内:约10万m京基KK TIME、约6万m喜荟城购物中心、约15万m华润万象汇、约6万mIBC MALL等商圈;数据来源:百度数据;高德地图测距。
教育方面,周边3所省一级学府为邻(东晓小学、布心小学、布心中学),10所学校环伺,项目(布心+水围)配建两所幼儿园(一所9班幼儿园,一所18班幼儿园),优质教育氛围,孩子自此拥抱未来。
生态方面,拥揽一湖三山五公园自然景观,尽享绿意鲜氧。一湖:约60km?深圳水库三山:梧桐山、围岭山、淘金山绿道五公园:围岭公园、东湖公园、布心山公园、翠湖社区公园、东晓儿童友好公园。

项目综合评测
1.京基天韵府所在的布心片区,周边多为老旧小区,目前整体的居住面貌略显陈旧。
2.该片区内少有的入市新盘,10.27的容积率,62F的超高层建筑,住家舒适度欠佳。
3.买房必备3件套,京基天韵府拥有罗湖区数一数二的翠园东晓小学学区,家门口步行范围内的地铁口,还有周边不远的商业街区,整体评分还是不错的。
4.加上赠送81.47-89.65%的得房率,在当下罗湖区域内的新房市场,包括在62F的超高层建筑规划下,能做到这样的得房率也是难能可贵。
5.在罗湖区域内老生常谈的问题了,停车位不足,按照估算最低1297套的户数,只配比了995个停车位,车位最高配比也是1:0.77。
6.回迁户占比过重,基本占到了82%的住户,整体居住体验感会大打折扣,后续二手房市场流通方面,也会受到很大影响。
京基天韵府楼盘更多心动细节,恭迎您现场品鉴~售楼处预约热线:400-992-0669【营销中心】
一对一热情服务〢可了解楼盘最新动态、房价、在售房源、交楼时间等信息!〢预约可享内部优惠〢匠心钜制-恭迎品鉴
声明:本文由入驻焦点开放平台的作者撰写,除焦点官方账号外,观点仅代表作者本人,不代表焦点立场。
