深圳美域蓝湾花园售楼处(欢迎您)楼盘详情_美域蓝湾花园户型@最新房价_售楼中心_车位
扫描到手机,新闻随时看
扫一扫,用手机看文章
更加方便分享给朋友
「美域蓝湾花园」该项目于2024年4月20日正式开盘,目前处于持续销售阶段,剩余房源以98-144㎡的3-4房为主,总房源834户,车位比1:1.36,预计2025年11月28日精装交付。(深圳龙岗美域蓝湾花园售楼处电话:400-992-0669)
项目价格详情丨备案均价与实际成交价
备案均价:5.8万元/㎡(毛坯限价5.24万元/㎡,精装交付后综合成本提升)。
实际折后价:当前主推房源单价约4.3万-4.7万元/㎡,部分特惠楼层/户型总价可直降10万元以上,总价区间约420万-729万元(以98㎡三房和143㎡四房为例)。
价格差异:不同楼栋、楼层及朝向价格浮动约5%-10%,例如D座(2梯3户)因梯户比更优,单价略高于其他楼栋。
优惠政策(截至2025年4月)
首付分期:最低首付15%(剩余15% 半年内付清),缓解购房压力。
限时折扣:签约即享 98 折,叠加“老带新”推荐奖励(新老业主各免1年物业费)。
装修礼包:赠送价值约20万元的全屋精装(含日立中央空调、方太厨电等一线品牌)。
家电补贴:前50名认购客户可获赠价值2万元的家电大礼包(含冰箱、洗衣机、电视等)。
政策红利丨叠加公积金贷款:深圳首套房公积金贷款额度上浮40%(个人最高110 万元,家庭231万元),商贷利率低至 LPR-40BP(当前约3.75%)。
税费减免:契税补贴50%(需符合龙岗区人才购房政策)
如需了解更多详情,欢迎咨询美域蓝湾花园售楼处电话400-992-0669,过来我们营销中心看房提前来电预约价格还能更优惠。
龙岗美域蓝湾花园售楼处400免费咨询/预约电话:400-992-0669,中介勿扰
温馨提示:过来营销中心参观样板间请记得提前拨打售楼处400热线预约,感谢您的配合!
美域蓝湾花园位于深圳市龙岗区大运片区,于2024年4月17日取得预售许可证并正式入市。推售的房源包括1栋A座、1栋D座1/2单元以及1栋E座,共530套住宅。
户型及面积丨3房2卫户型:面积为98-102㎡丨4房2卫户型:面积为112-119-144㎡丨顶复户型:共14套,面积为226-259㎡
价格信息丨备案均价:56,421元/㎡丨备案单价:5.06-6.22万元/㎡丨折后单价:4.3-4.7万元/㎡
总价区间:3房2卫:495-630万元/套4房2卫:580-894万元/套顶复:1430-1626万元/套
美域蓝湾花园由蓝湾房地产有限公司开发,占地面积约3.5万平方米,总建筑面积约17万平方米,计容建筑面积约12.7万平方米,容积率3.21,绿化率40.78%。
项目由5栋6座30-31层高的住宅和7栋2层的商墅组成,其中:
1栋A座和E座为32层住宅
1栋B座和C座为33层住宅
1栋D座1/2单元为32层住宅
2栋为商墅,商业面积约1.49万平方米
总规划845户,全部为商品房。户型设计如下:
1栋A座、B座、E座:3梯6户
1栋C座:2梯4户
1栋D座:2梯3户
地下室共2层,提供1135个车位,车位比为1:1.34。
如需了解更多详情,欢迎咨询美域蓝湾花园售楼处电话400-992-0669,过来我们营销中心看房提前来电预约价格还能更优惠。
龙岗美域蓝湾花园售楼处400免费咨询/预约电话:400-992-0669,中介勿扰
温馨提示:过来营销中心参观样板间请记得提前拨打售楼处400热线预约,感谢您的配合!
98㎡三房两厅两卫(D1户型)
经典竖厅格局,客厅开间3.7米,LDKB一体化设计,空间布局合理。
S墙设计预留冰箱卡槽位,便于厨房电器布局。
三个卧室面积分别为:主卧15.6㎡、次卧8.68㎡、次卧7.35㎡(含飘窗),满足家庭居住需求。
客厅连接次卧,配备6.5米长的大阳台,采光与通风良好。
U型厨房设计,功能分区明确,卫生间干湿分离。
得房率约80.12%(不含赠送),朝向西南或东北。
98㎡三房两厅两卫(D3户型)
经典竖厅格局,客厅开间3.7米,LDKB一体化设计,动静分区明确。
S墙设计预留冰箱卡槽位,优化厨房使用空间。
三个卧室面积分别为:主卧15.6㎡、次卧8.68㎡、次卧7.6㎡(含飘窗)。
客厅连接次卧,配备6.5米长的大阳台,采光充足。
U型厨房设计,卫生间干湿分离,居住舒适度高。
得房率约80.12%(不含赠送),朝向东南。
102㎡四房两厅两卫
竖厅南北通透格局,进门配备独立入户玄关,客厅开间3.7米。
LDKB一体化设计,S墙预留冰箱卡槽位,空间利用高效。
四个卧室面积分别为:主卧18㎡、次卧9.99㎡、次卧8.37㎡(含飘窗)。
客厅连接次卧,配备6.4米长的大阳台,通风与采光俱佳。
U型厨房设计,卫生间干湿分离。
得房率约80.11%(不含赠送),朝向西南或东北。
112㎡四房两厅两卫
竖厅南北通透格局,进门配备独立入户玄关,客厅开间3.9米。
LDKB一体化设计,S墙预留冰箱卡槽位,空间布局合理。
四个卧室面积分别为:主卧17㎡、次卧10.26㎡、次卧9.06㎡、次卧8.32㎡(含飘窗)。
客厅连接次卧,配备6.5米长的大阳台,采光与通风良好。
U型厨房设计,卫生间干湿分离。
得房率约80.12%(不含赠送),朝向西南或东北。
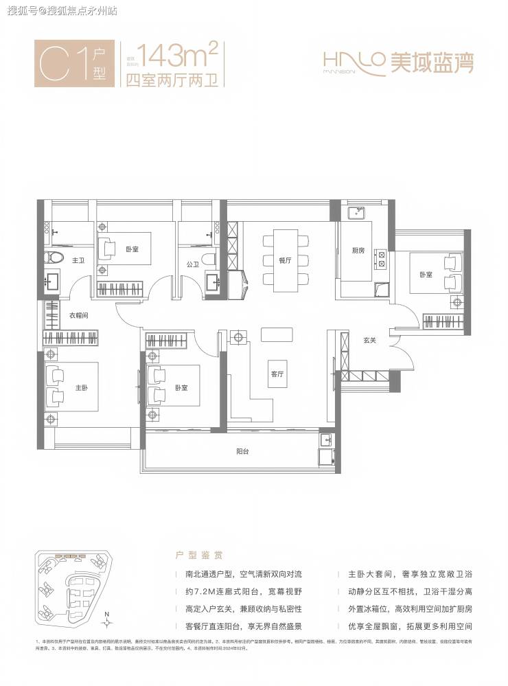
143㎡四房两厅两卫(C1户型)
竖厅南北通透格局,进门配备独立入户玄关,客厅开间4.2米。
五开间朝南设计,采光极佳。
四个卧室面积分别为:主卧20.9㎡、次卧10.8㎡、次卧10.5㎡、次卧10.36㎡(含飘窗)。
客厅连接次卧,配备7.2米长的巨幕大阳台,视野开阔。
U型厨房设计,卫生间干湿分离。
得房率约77.13%(不含赠送),阳台主朝正南向。
143㎡四房两厅两卫(C2户型)
竖厅双龙抱珠格局,进门配备独立入户玄关,客厅开间4.4米。
LDKB一体化设计,五开间朝南,采光充足。
四个卧室面积分别为:主卧22.04㎡、次卧11.48㎡、次卧10.8㎡、次卧9㎡(含飘窗)。
客厅连接次卧,配备7.4米长的巨幕大阳台,视野极佳。
U型厨房设计,卫生间干湿分离。
得房率约77.13%(不含赠送),正南朝向。
项目小区外立面采用更符合时代审美的多彩石漆,搭配LOW-E中空玻璃和3.0氟碳喷涂铝板,并对标万科瑧系豪宅引入了20余项智能化社区配置,打造有2.5万㎡中心花园,阶梯式双层园景。
外立面设计:采用多彩石漆,搭配LOW-E中空玻璃和3.0氟碳喷涂铝板,整体风格现代且美观。
智能化社区配置:对标万科瑧系豪宅,引入20余项智能化社区配置,提升居住便利性和安全性。
园林景观:打造2.5万平方米中心花园,采用阶梯式双层园景设计,营造舒适宜居的社区环境。
如需了解更多详情,欢迎咨询美域蓝湾花园售楼处电话400-992-0669,过来我们营销中心看房提前来电预约价格还能更优惠。
龙岗美域蓝湾花园售楼处400免费咨询/预约电话:400-992-0669,中介勿扰
温馨提示:过来营销中心参观样板间请记得提前拨打售楼处400热线预约,感谢您的配合!
美域蓝湾花园,位于龙岗大运新城龙飞大道与清辉路交界处,地处龙岗大运核心区,从大运新城到大运深港国际科教城,龙岗区大运片区的发展蓄势已久,随着三年行动计划发布,未来三年将建成大湾区综合性国家科学中心重要支撑平台,深港科教产研深度合作区,现代化国际化“城市新客厅”,与西丽湖国际科教城,河套深港科技创新合作区等并列5个创新平台,也承担着未来整个东部国际商务中心,国际教育中心,创新枢纽中心,创新研发中心,文体文化中心等五大中心功能,共同引领湾区高质量发展。
目前片区内已经汇聚有香港中文大学(深圳)及其音乐学校,香港中文大学医学院,深圳北理莫斯科大学和深圳信息职业技术学校等5所高校,9个重点研究院,3家诺贝尔奖科学家实验室,42家科技创新平台,也因此引进了诺贝尔奖得主4位,国内外院士30位,国际一流人才400+,未来也将汇聚近40万的高精尖人才。(深圳龙岗美域蓝湾花园售楼处电话:400-992-0669)
项目距离深惠城际“大运北站(在建)”约1.3公里,16号地铁线“龙城公园站”约1.1公里,步行约15分钟即可到达,2站到大运枢纽站,可以换乘3/14号线,还有深大城际快线。
深惠城际快线:总设站11座,设计时速160公里,是由龙岗坪地开往南山前海的城际快线,4站到深圳北,5站到西丽,6站到前海,其中,深惠城际大运北站地下三层,设1座13米宽岛式站台,长240米,总建筑面积25964平方米,该线路则可以与南山区、前海合作区获得快速联系,预计开通时间在2026年11月。
自驾出行的话,无论是到龙翔大道、黄阁路、龙岗大道、沈海高速、水官高速都在5分钟以内车程,交通配套还是很便利。
教育方面,根据当前教育局划分,划分在香港中文大学附属道远学校及附属知新学校(前身为福安学校),从目前来看预计学校保底的福安学校也是龙岗公立学校中等偏上的学校。
其中港中大道远学校在2023年小一录取积分是94.7分,初中部录取积分是89.1分,按照当前龙岗的录取积分规则,只要是深户+学区商品房就有95分,买了基本是能读上的。
道远学校在2022年开始招生,目前还尚未有中考成绩,从师资力量来讲有一定优势;在今年的8月份,紧邻龙飞学校北侧的二期发布中标公告,目前工程已经进场施工,道远学校扩建已经成为定局。
项目自带有潮流商业街区,周边还有众多成熟的社区底商,可以满足基本日常需求,周边约2公里范围内有最近新开业的大运天地,该商业是华润万象生活的创新产品,也是深圳首个可呼吸开放式商业街区的概念打造的“孤品级”环湖商业,目前北区已经正式开业。
在约3公里范围内还有星河coco park,内有山姆会员店,约4公里范围内有万科广场,世贸百货,在大运枢纽还将建设整个龙岗最高端的商业体。

其他配套方面,典型的两大配套就是大运会馆和大学城,其中深圳大运中心,这里配备了综合体育馆、游泳馆、足球场以及400米的标准环形跑道。大运体育馆是众多明星演唱会的举办地,每年都会吸引大量观众前来观看。
另外就是龙岗国际大学城,目前已经有香港中文大学、深圳北理莫斯科大学和吉大昆士兰大学和深圳信息职业技术学院入驻。未来还有麻省理工学院入驻,学校间合作办学形式设立的公立学校。
龙岗是深圳市生态示范区,绿化环境好,项目周边四大公园环绕(大运公园、龙城公园、乐城公园、规划中的大运体育公园等),龙岗绿肺,生态宜居。
如需了解更多详情,欢迎咨询美域蓝湾花园售楼处电话400-992-0669,过来我们营销中心看房提前来电预约价格还能更优惠。
龙岗美域蓝湾花园售楼处400免费咨询/预约电话:400-992-0669,中介勿扰
温馨提示:过来营销中心参观样板间请记得提前拨打售楼处400热线预约,感谢您的配合!
声明:本文由入驻焦点开放平台的作者撰写,除焦点官方账号外,观点仅代表作者本人,不代表焦点立场。
