河东骏濠园(河东骏濠园)首页网站丨河东骏濠园欢迎您_房价_户型_楼盘详情
扫描到手机,新闻随时看
扫一扫,用手机看文章
更加方便分享给朋友
如果看完以上关于我们宝安河东骏濠园项目的介绍后,您还对如下问题想要深入了解的话:
问题如:最新推出的房源备案价格,小区在售的有多少栋楼,各个楼栋户型具体是什么朝向,每一层楼规划的是几梯几户,这一期卖的房小区里面有多少户,容积率多少,楼栋总共多少层,现在卖的户型具体交楼时间,这几种户型剩下的还有那些,小区门口离地铁近吗,该社区是怎么划分学校的,可以申请哪些小学和初中,交房后物业费怎么收?物业管理费每平米每月多少元,交房是精装修还是毛坯,停车位够吗?停车位有多少个?,小区周边未来有什么规划,楼盘展厅、营销中心在哪里?具体什么时候开盘?开盘多少钱一平米,周边配套,楼盘详情,值得买吗,潜力升值如何,升值空间大不大,营销中心地址怎么导航,坐地铁到哪个站下车过来楼盘比较近,周边近期有什么规划,周边商业配套怎么样,拿地批地时间,这几天楼盘现场最新优惠活动情况等。
建议您可以拨打我们楼盘内场400免费咨询电话与售楼处现场销售直接了解。
河东骏濠国际(别名:河东骏濠园)宝安西乡12号线地铁流塘地铁口物业
约24-45-73平1-2房瑧品公寓 约21-54平/215-265平商务办公
宝安【河东骏濠国际】河东骏濠园开发商售楼处电话:400-992-0669(中介勿扰)
来电可了解楼盘最新动态、房价、在售房源、交楼时间等信息!让你买的放心,住的舒心!
河东骏濠国际开发商售楼处直销_欢迎来电预约享受内部折扣_恭迎品鉴
◆提前来电-预约登记尊享售楼处销售专业讲解〢一对一热情服务〢◆
温馨提示:开发商售楼中心〢预约可享内部优惠〢匠心钜制-恭迎品鉴〢

项目简介
河东骏濠国际项目位居深圳宝安区107国道旁,规划总占地约1.9万㎡,总建面约16万㎡,是涵盖公寓、办公及商业等于一体的城市综合体。项目享受宝中成熟配套资源,主力产品为建面约24-45-73㎡瑧品公寓,构筑美好菁英生活。

河东骏濠国际项目配套
小区内部配套:自带约1.9万㎡商业
中小学:
幼稚园:自带1栋幼儿园
综合商场:港隆城、万达广场、宝立方
医院:宝安中心医院
河东骏濠国际交通状况
陆路枢纽:紧邻107国道,可迅接宝安大道、西乡大道、京港澳高速、沿江高速等城市主干道;
地铁交通:地铁12号线(在建中)流塘站、地铁15号线(规划中)西乡公园站。

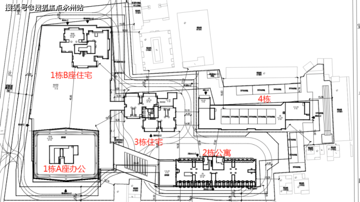
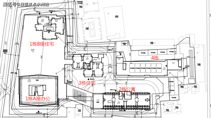
河东骏濠国际(A109-0845)楼栋分布
1栋A座公办32层
1栋B座住宅32层
2栋公办公寓29层
3栋住宅32层
4栋3层幼儿园
“河东骏濠园”(宗地号A109-0845)项目用地位于宝安区西乡街道,用地面积19270.86平方米,容积率5.55,于2019年3月取得《建设工程规划许可证》。
此次主要修改内容如有:

1、地上停车位数量由198个调整为228个,地下停车位数量由837个调整为807个,调整后总车位数不变。
2、根据设计及测绘规范对相关面积指标划归进行微调,并结合预查丈对面积指标进行修正,调整后技术经济指标中地上核增指标减少1596.73㎡,地下核增指标增加862.74㎡,其他相关面积指标作相应调整。
3、2栋(功能为公寓、办公、商业)调整立面装饰线条宽度,取消十一层屋顶花园处曲线线条装饰,总平面图作相应调整。
项目规划为多元的商住综合体,覆含住宅、公寓、办公、商业等产品。总建筑面积160313.25㎡,由一个三层地下室、一栋5层的商业裙房以及地上4栋塔楼组成。其中1栋塔楼A座31层,1栋塔楼B座31层,2栋29层,3栋33层,4栋3层为独立幼儿园。

从主要经济技术指标上看,项目规划住宅约3万㎡,分布于1栋B座、1栋裙房、3栋。公寓约1.3万㎡,办公约4.6万㎡,商业约1.3万㎡。绿化率30%。

河东骏濠国际项目位于宝安区西乡街道河东社区,宝民二路以南,望达二路以东,107国道以北,宝丰路以西。
位置从整体上来看,西南向宝安中心区,东北向尖岗山片区。辐射3公里范围公建配套丰富,生活氛围浓厚。
地铁方面,项目目前周边并无地铁站点,但与在建地铁12号线“流塘站”相临。地铁12号线预计于2022年年底开通。届时,从项目出发,可以通过12号线方便抵达蛇口、南山中心区、机场片区。
周边旧改,项目周边规划旧改项目较多,且以大型城中村社区为主。项目一路之隔,西乡街道107发展带河东片区城市更新单元由佳兆业操盘。据佳兆业方面介绍,未来项目将建成集金融办公、大型现代商业、五星酒店、特色城市主题公园、高尚住宅等功能配套服务完善的标志性城市综合体,河东骏濠园开发商电话4008113080。
其二具有代表性的是107发展带翻身片区城市更新单元,由福昇地产操盘,规划为商住综合体,体量中等。
项目东北方面分布以工改为主的中等体量旧改,改造方向都以商住为主。

周边配套
河东骏豪园项目位于西乡街道河东社区,宝民二路以南,望达二路以东,107国道以北,宝丰路以西。
位置从整体上来看,西南向宝安中心区,东北向尖岗山片区。辐射3公里范围公建配套丰富,生活氛围浓厚。
地铁方面:项目目前周边并无地铁站点,但与在建地铁12号线“流塘站”相临。地铁12号线预计于2022年年底开通(仅供参考,具体开通时间以官方通告为准)。届时,从项目出发,可以通过12号线方便抵达蛇口、南山中心区、机场片区。并方便在坪洲、洪浪北与1、5号线换乘。
另有规划地铁路线15号线设站流塘。未来流塘站将成为小型枢纽站。15号线作为一条南山环线,串联前海、留仙洞总部基地、后海、南山中心区、蛇口、大铲岛等多个南山核心节点与就业中心。
周边旧改:项目周边规划旧改项目较多,且以大型城中村社区为主。项目一路之隔,西乡街道107发展带河东片区城市更新单元由佳兆业操盘。据佳兆业方面介绍,未来项目将建成集金融办公、大型现代商业、五星酒店、特色城市主题公园、高尚住宅等功能配套服务完善的标志性城市综合体。
其二具有代表性的是107发展带翻身片区城市更新单元,由福昇地产操盘,规划为商住综合体,体量中等。
项目东北方面分布以工改为主的中等体量旧改,改造方向都以商住为主。
商业方面:项目周边目前有多家传统的大型零售商业体,如君胜百货、家乐福、天虹商场,可满足生活一般购物需求。

河东骏濠国际户型鉴赏
效果图鉴赏


开发商售楼处实景拍摄
沙盘实景图




45平米户型图以及样板间






73平米户型图和样板间






以上关于我们深圳"宝安西乡『河东骏濠园』楼盘价格-『骏濠国际』户型图-样板房图-开发商介绍"的相关资讯介绍,更多详情欢迎咨询开发商400热线了解!
➢ ➢深圳宝安【河东骏濠国际】开发商售楼处电话:400-992-0669 中介勿扰
➢ ➢深圳宝安【河东骏濠国际】—「开发商售楼处」—「欢迎您!」
➢ ➢来电可了解楼盘最新动态、房价、在售房源、交楼时间等信息!
温馨提示:项目没有所谓的“分机号”注意保护个人隐私!谨防上当!看房请务必提前预约,避免临时无人接待,感谢您的配合!
免责声明🔉:
以上所发布的关于深圳西乡河东骏濠园楼盘信息仅供参考,所有图文资料及说明请以最终批文及双方在楼盘营销中心现场签署的买卖合同为准;本图文内容如无意中侵犯某方权益,请联系我们将会及时处理
声明:本文由入驻焦点开放平台的作者撰写,除焦点官方账号外,观点仅代表作者本人,不代表焦点立场。
