中建鹏宸云筑欢迎您-深圳龙华(中建鹏宸云筑)楼盘详情丨中建鹏宸云筑房价-户型-学区
扫描到手机,新闻随时看
扫一扫,用手机看文章
更加方便分享给朋友
✨ 中建鹏宸云筑预约通道开启,已认证,安全无忧咨询热线 ✨
✅中建鹏宸云筑售楼处丨开发商丨营销中心统一热线:400-992-0669(全程认证,无分机号)
✅ 通话自动隐藏号码,保护个人隐私,谨防非渠道诈骗
龙华中建鹏宸云筑最新价格、户型信息,配套及交付信息,楼盘详情解析!
龙华的日光红盘—中建鹏宸云筑西区已取证,备案均价6.12万/㎡,开盘93折,折后单价5.1万/㎡起(带装修),8月31日(周日)盛大开盘!
项目首推8栋,也是西区景观最好的一栋,总高32层,154套房源,2T5户,户型面积为102-118-139m²3-4房!户型分布和东区的6栋基本一致,预计27年10月份精装交付。
中建鹏宸云筑售楼处_Vip Tel:400-992-0669 中介勿扰,预约看房享受专属优惠大礼包(赠送物业管理费、赠送家电大礼包、额外购房补贴等)可享折上折优惠
这次推出的西区地块8栋,整体户型结构跟层数都是跟东地块的6栋一模一样的,只是西地块的建筑面积低了不少,尺寸方面也会有一些差距。
这次开盘也给出了9.3折的优惠,折后均价5.69万/㎡,折后单价5.13-6.19万/㎡,总价在526-863万/套,另外一套173平的户型折后总价1115万。
102㎡的4房2厅2卫,折后总价526-603万/套,单价约5.14-5.92万/㎡。
118㎡的4房2厅2卫,折后总价603-667万/套,单价约5.13-5.67万/㎡。
139㎡的4房2厅2卫,折后总价755-863万/套,单价5.42-6.19万/㎡。
历史加推回顾
2024年12月6日取证:首推3/5栋368套房源,面积有81平的3房2卫,91-105-124平的4房2卫,备案均价6.01万/㎡,当时开盘打出了88折优惠,折后均价5.32万/㎡,单价4.72-5.8万/㎡,总价在398-673万/套,首开即日光,也是2024年深圳第5个日光盘。
2025年3月21日取证:加推6栋153套房源,面积有104-121-148平的4房2卫,备案均价6.12万/㎡,当时开盘打出了93折优惠,折后均价5.69万/㎡,折后单价5.07-6.1万/㎡,总价在530-905万/套,开盘劲销98%,至今仅剩1套148平户型在售。
2025年4月25日取证:加推1栋250套房源,面积有81平的3房2卫,91-107-126平的4房2卫,备案均价6.13万/㎡,当时开盘打出了9折优惠,折后均价5.51万/㎡,折后单价5-5.84万/㎡,总价在416-736万/套,开盘劲销85%,至今仅剩少量在售。
2025年5月29日取证:加推2栋244套房源,面积有81平的3房2卫,91-107-126平的4房2卫,备案均价6.13万/m²,当时开盘打出了91折优惠,折后均价5.54万/m²,折后单价5-5.84万/m²,总价在425-736万/套。至今还有约30套在售。

中建鹏宸云筑位于龙华民治街道梅林关华南数字谷旁,是由中建壹品、湖北文旅及深圳华展置业联合开发的纯商品房社区,无保障房和回迁房。
项目总建面约31万㎡,容积率5.0,绿化率40%,分东西两区开发,共10栋超高层住宅,总户数2092户,车位比1:1.03,精装交付时间为2027年6月至10月。
8栋楼王:总高32层,2梯5户,共154套,户型为102-118-139㎡三至四房,其中102㎡占91套,118㎡和 139㎡各31套。
景观优势:西区8栋为景观楼王,中高楼层可无遮挡俯瞰民治水库和银湖山景,部分户型直面山景湖景。
8栋楼王共推出103-118-139㎡三种户型,均为纯四房设计,采用深圳建筑新规标准,综合实用率超100%。
得房率高:采用深圳建筑新规设计,综合实用率达 97%-108%,同等面积多1房。
全明设计:户户朝南(东南或西南),低区赏园林,中高区瞰湖山景。
精装标准:配备东芝全屋中央空调,柜体和榻榻米为交付标准,装修成本约3000 元 /㎡。
到访预约优惠:提前通过开发商售楼处电话预约看房(400 992 0669),可享专车接送+折上98折+额外家电礼包(限量房源先到先得)
102㎡四房两厅两卫(竖厅):
布局:四开间朝南,LDKB 一体化设计,客厅连接约 9.6㎡阳台,动静分区明确。
赠送:S 墙设冰箱卡槽,主卧与次卧带 270° 飘窗,得房率约 104.16%
优势:小户型高实用率,适合首次改善家庭,总价门槛低。
118㎡四房两厅两卫(横厅):
布局:南北通透,6.25 米阳台朝东南,玄关赠送 4.6㎡,客餐厅开间 6.35 米。
赠送:主卧与次卧带 270° 飘窗,实际得房率 107.3%。
优势:横厅设计提升空间感,适合三代同堂家庭。
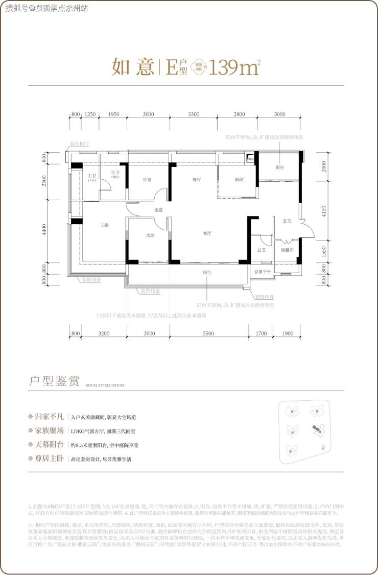
139㎡四房两厅两卫(竖厅):
布局:方厅一体化设计,客厅连接 13.6㎡观景阳台,可改五房。
赠送:玄关赠送 5.2㎡,公卫三段式分离,得房率约 104.01%。
优势:空间尺度阔绰,适合多孩家庭或改善需求。
中建鹏宸云筑,地处龙华七大重点片区之一,北站枢纽城市功能节点,千亿级百万平产业规划跃迁,产学研商住配套,形成对标深超总、腾讯企鹅岛及香蜜湖国际金融中心的四大微城市之一。
世界500强海克斯康落户华南数字谷,集聚35+龙头名企,打造湾区数智产业集群,数字产业集群度达95%,人才流、资金流、信息流、技术流汇聚融合,驱动板块加速蜕变,深圳发展中轴,华南数字超级总部基地、星河world总部基地、坂雪岗科技城、北站产融结合示范区、梅彩新一代信息科技,连成深圳中轴含金量置顶的价值金线。(深圳龙华中建鹏宸云筑售楼处电话:400-992-0669)
项目距离10号线南坑站C出口直线距离约600米,距离光雅站约850米。周边还有5号线民治站,6号线白石龙站,及规划中的22号线,地铁通勤便利。项目周边道路有珠三角环线高速、五和大道、民乐路等,可快速到达深圳各核心区域。
项目自带约3500㎡底商,西侧紧邻星河World商业集群,涵盖办公、零售、餐饮等多业态。此外,深圳北站商圈、坂田万科广场等均在10分钟车程内,形成多层级商业网络。
周边3公里内汇聚超50万㎡商业体量:北侧步行可达8号仓奥特莱斯,直线距离内布局星河COCO Park、COCO City、红山6979、龙华印象汇等大型综合体,满足高端购物与日常消费。

项目自带1所12班制幼儿园,北侧规划有一所广东省一级学校建设标准的九年一贯制72班学校,建成后将提供小学学位2160个,初中学位1200个,也是由中建三局代建,据传是红山中学附属学校进驻,不过暂未明确公布,根据龙华教育局2025年最新的学区划分,小初学区都是划分在华南实验学校。
生态环境方面,坐拥塘朗山、银湖山两大山脉的自然资源,近享民治水库、民乐水库、雅宝水库、南坑水库四大湖景,超核“未来之眸”绿芯公园、民治体育公园、红木山郊野公园等九大生态公园环伺,深圳城芯难得森态胜景,满目盛景尽斑斓。
如需了解更多详情,欢迎咨询龙华中建鹏宸云筑售楼处电话400 992 0669,过来我们营销中心看房提前来电预约价格还能更优惠。
【深圳中建鹏宸云筑开发商售楼处400免费咨询/预约电话:400-992-0669,中介请勿扰】
温馨提醒:欢迎致电开发商售楼中心,我们将竭诚为您解答疑问。为确保您的咨询安全,通话时号码将自动隐藏。请提前与销售团队预约,以确保您能顺利进入销售现场,避免不必要的等待。
声明:本文由入驻焦点开放平台的作者撰写,除焦点官方账号外,观点仅代表作者本人,不代表焦点立场。
