招商锦尚公馆售楼处(欢迎您)深圳招商锦尚公馆首页网站_售楼处|楼盘详情
扫描到手机,新闻随时看
扫一扫,用手机看文章
更加方便分享给朋友
「 招商·锦尚公馆 」位于拥有山、海、园、河资源优势的前海妈湾15单元,妈湾一路以东,梦海大道以北,紧邻前湾河西侧,享先天低密与滨水资源,引入国外滨水公寓生活精粹,营造独具特色的花园式生活美学,放大自然生态资源,打造滨水湾畔,公园里的家。
南山【招商锦尚公馆】招商锦尚公馆开发商售楼处电话:400-992-0669(中介勿扰)
来电可了解楼盘最新动态、房价、在售房源、交楼时间等信息!让你买的放心,住的舒心!
招商锦尚公馆开发商售楼处直销_欢迎来电预约享受内部折扣_恭迎品鉴
◆提前来电-预约登记尊享售楼处销售专业讲解〢一对一热情服务〢◆
招商锦尚公馆开发商售楼中心〢预约可享内部优惠〢匠心钜制-恭迎品鉴〢

核心价值点:
01、前海投资可翻倍的地方
前海18项国家战略叠加,具很高的政治站位,承担着大湾区核心引擎及社会主义先行示范的作用。随着腾讯的搬迁到来,产业集聚,前海将是深圳未来核心中的核心。目前深圳平均房价最贵的是后海,约是前海的两倍多,而未来深圳最贵的房价肯定在前海。故即使房价不再暴涨,现在买入前海,也定有资产大涨机会。
02、目前价值被低估
市场迟早会修正对她的估值,一定会有巨大的升值潜力。她名义是公寓,其实是住宅。从阳台、燃气等产品设计以及梯户比、车位配比等均是住宅配置,公寓的价格,住宅的产品,两者优点兼具,价格是住宅的7-8成,而且不限购不限贷。
03、当前市场无竞品
目前市面上公寓产品大体两类,一类是大面积、阔奢型,类酒店的格局,另一类是小面积、总价低的产品,类宿舍。而锦尚完全不同,是公寓市场的特例,完全的类住宅产品,未来其他公寓二手存在大量竞品,替代性强,而锦尚完全没有竞品,在前海市场独此一家,要买不限购、不限贷的住宅品质产品,只有锦尚。
04、水岸洋房,低密稀缺
在深圳核心区,家门口有河、有公园,而且南北通透,十层楼的洋房,绝无仅有。未来地产一旦企稳,它将涨的最快,万一房价下跌,她也会跌的最慢,而且完全可以自己或家人居住,进可攻、退可守。

项目价值详细解析
01、地段,绝对核心:前海妈湾,城市新中心
地处前海妈湾,作为湾区城市新中心,地位与价值不言而喻。妈湾作为前海核心三湾之一,被留白十年,未大规模开发,足见其在城市发展中的重要地位。妈湾背靠大小南山,270度依水、面海、资源禀赋异常。腾讯科技岛在对岸,未来将产生10万高端居住需求。

02、开发商,足够大牌:招商局+前海管理局
招商局继打造蛇口之后,本次与前海管理局强强联手,统一开发运营妈湾2.9平方公里土地,或将再造一个升级版蛇口。央地合作、政企联袂的模式在华侨城、深圳湾、蛇口均已被证明非常成功。据悉,为将妈湾打造为与往不同的理想城市,已云集中规院、深规院、华为、腾讯等19家知名团队参与规划建设。
03、产品,深圳未曾见:10层水岸洋房,楼下即公园
在高密的深圳,洋房属于稀缺产品,原关内已经断供10年以上,在前海、在前湾河旁、在前海石公园旁的洋房公寓,更属稀缺中的稀缺:约2.33超低容积率,仅10层洋房式公寓,带宽景阳台,通燃气,央企精装交付,可申请民电,不限购不限贷。

04、未来,潜力无限:超前规划+首发优势+限价红利
超前规划:规划主要亮点有立体城市、人车分层、全域公园,智慧城市等;锦尚作为大城首发作品,如提前在妈湾购房,即可站上城市发展时代风口;前海目前限价,桂湾胤璞在13-20万/㎡,前湾中集项目11万+/㎡,而招商由政企联袂开发,超额利润不是第一目的,积极响应限价政策,故定价在9.78万,具有限价红利。
05、交通,非常便利:海空口岸+4地铁线5地铁口+1城轨+跨海通道
片区规划有海空口岸,可直达港澳;除已运营5号线外,规划有15/21/28地铁线,共5个站,其中距离妈湾站仅300米;在建的妈湾跨海通道预计2023年底通车,届时将3分钟即达腾讯科技岛;在建深惠城际前保站,可直通全国各地。

06、配套,均顶格配置:国家博物馆+教育资源丰沛+高端商业
妈湾以打造“人文艺术胜地、国际教育高地、世界级湾区商业门户”为目标。已引进国家博物馆、荟同学校、哈罗学校、深圳交响乐团、泰康国际医院等,另规划有2所九年一贯制学校+1所高中+8所幼儿园。更规划打造前海太古里、港滨海演艺中心、国际免税城、游艇俱乐部、七星级酒店等生活美学配套。
07、现楼,无需等待:即买即住/租,实景呈现,提前交付,央企品牌的责任担当
近年来,在全国各地频现房企暴雷、项目停工、烂尾、延期交付等现象,买房稍有不慎随时都可能面临“翻车”的风险。在这样的市场环境下锦尚公馆做到顺利乃提前9个月交付,从中可以看出操盘开发商央企——招商局的超强实力和责任担当!锦尚公馆不仅做到提前交付,更是高品质交付,不管是小区环境、外立面、还是房屋结构、户型布局,都超高标准交付,每一处细节都彰显着品质。告别口头承诺,看得见的品质更让人放心!


项目基本信息
【项目地址】南山区前海路前海妈湾15单元
【占地面积】0.93万㎡
【建筑面积】3.44万㎡
【容积率】2.33
【产权年限】40年,2015年-2055年
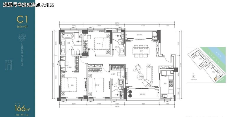
户型图&样板间鉴赏











南山【招商锦尚公馆】招商锦尚公馆开发商售楼处电话:400-992-0669(中介勿扰)
来电可了解楼盘最新动态、房价、在售房源、交楼时间等信息!让你买的放心,住的舒心!
招商锦尚公馆开发商售楼处直销_欢迎来电预约享受内部折扣_恭迎品鉴
◆提前来电-预约登记尊享售楼处销售专业讲解〢一对一热情服务〢◆
招商锦尚公馆开发商售楼中心〢预约可享内部优惠〢匠心钜制-恭迎品鉴〢
温馨提示:项目没有所谓的“分机号”注意保护个人隐私!谨防上当!看房请务必提前预约,避免临时无人接待,感谢您的配合!
免责声明🔉:以上所发布的楼盘相关信息仅供参考,所有图文资料及说明请以最终批文及双方在楼盘现场签署的买卖合同为准;本图文内容如无意中侵犯某方权益,请联系我们将会及时处理
声明:本文由入驻焦点开放平台的作者撰写,除焦点官方账号外,观点仅代表作者本人,不代表焦点立场。
