深圳万科未来之光(宝安)首页网站丨万科未来之光楼盘详情_房价_户型_配套
扫描到手机,新闻随时看
扫一扫,用手机看文章
更加方便分享给朋友
项目板块:宝安-尖岗山
占地面积:74085㎡
建筑面积:215570㎡
规划户数:1700户
产品:约73-125㎡三至四房
容积率:2.91
物业类型:小高层、洋房
装修情况:精装修
售楼处电话:400-992-0669
位置:深圳市宝安区新安街道广盛路与广泰路交汇处
未来之光家园
万科安居共筑未来社区
宝安&南山双核芯·万科未来社区2.0
精研品质三四房
========= 项目基本信息 ==========
总占地面积:约7.4万㎡
总建筑面积:约30万㎡
容积率:2.91
开发商:深圳安万置业有限公司
物业公司:深圳市万科物业服务有限公司
位置:深圳·宝安新安·广盛路与广泰路交汇处(宝安公园旁)
对话世界的深圳高度
·深圳特区&先行示范区&粤港澳大湾区“三区驱动”
·擎领大湾区“9+2”城市群,汇聚时代机遇
宝安&南山双区驱动
·西部湾区城市带,近邻南山科技园、留仙洞总部基地、宝安中心、前海自贸区等片区,集合向西发展带优质城市资源
高新产业集群的未来人居住区
一山两级 国家级产业集聚区,超30万高新人群引领片区新生。
海陆空轨立体交通,高效互联大湾区
2机场:深圳宝安国际机场、香港机场;
3码头:大铲湾码头、深圳机场码头、固戍码头。
3地铁&干道接驳 通勤快人一步
三轨并联:
·步行约1.2.km可达5号线兴东站,4站宝安中心站、2站西丽站;
·12号线(在建中),上川站约1.9km;
·15号线(规划中),宝安公园站约900米。
干道接驳 :
·京港澳高速入口在旁,南光高速、广深公路、创业二路等路网环绕;一局王者通勤南山科技园,工作与生活高效往来!
12年书香环绕 护航闪光未来
片区优质学府云集,全家每天多睡一小时
项目代建幼儿园,3km内南方科技大学附属中学宝安学校(在建中)、宝安中学(集团)实验学校、新安中学(集团)外国语学校、曦城协同学校等学府汇聚。
南方科技大学附属中学宝安学校 9月开学在即
双一流名校品牌背书(南科大:2023年QS世界大学排名中国内地高校第11,位列广东省内第1)
科创教学 名师护航:42班九年一贯制名校,清华/剑桥师资汇聚,焕新片区教育格局
离城不离尘的安家优选胜地
·背靠尖岗山,不见高楼,绿树成荫,私享低密野奢生活
·6山2水4公园环绕,超76%森林覆盖率,富氧更健康
缤纷活力街区,下楼即享城市烟火
·社区自带建面约1万㎡商业,全系配套满足一站式生活需求。
·约3~5km内,中洲购物中心、宝安万达广场\海雅缤纷城、壹方城等多商圈环绕,缤纷生活触手可及!
万科&安居 强强联袂的稳稳幸福
·38载万科,更懂深圳更懂筑家
·深圳市人才安居集团联合开发建设,为人才,建好家
万科物业 三十余载行业领跑者
·32年服务经验沉淀,连续10年蝉联中国物业管理综合第一
·万科物业在深圳,至今服务16万余户家庭,让更多用户体验物业服务之美好
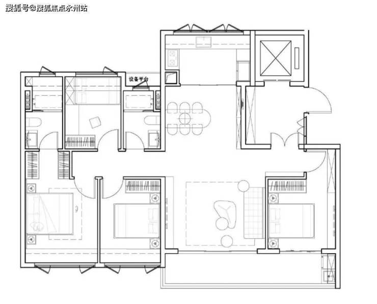
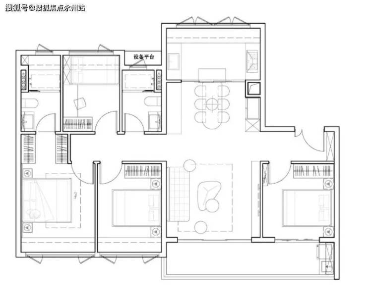
-户型图-
万科凭借多年地产开发经验,再次展现了强大的户型设计能力,73-80㎡做了三房设计,100-115-125㎡四房,小高层、洋房,楼体建筑不高,也为高使用率提供了基础条件
▲73㎡三房两厅一卫
▲80㎡三房两厅两卫
▲100㎡四房两厅两卫
▲115㎡四房两厅两卫
▲125㎡四房两厅两卫
万科未来之光开发商售楼处电话:400-992-0669(中介勿扰)
过来本项目营销中心看房,记得提前来电预约,感谢你的配合!
提前预约享受楼盘内场优惠折扣,并安排现场销售一对一服务!
来电可了解楼盘最新动态、房价、在售房源、交楼时间等信息!
免责声明🔉:以上所发布的楼盘相关信息仅供参考,所有图文资料及说明请以最终批文及双方在楼盘现场签署的买卖合同为准;本图文内容如无意中侵犯某方权益,请联系我们将会及时处理。
声明:本文由入驻焦点开放平台的作者撰写,除焦点官方账号外,观点仅代表作者本人,不代表焦点立场。
