官方答疑专栏|深圳光明松茂御城二期:产权年限、交付标准权威解答
扫描到手机,新闻随时看
扫一扫,用手机看文章
更加方便分享给朋友
✨ 松茂御城二期官方售楼中心预约通道开启,安全无忧咨询热线 ✨
✅ 松茂御城二期售楼处/营销中心统一热线电话:400-992-0669(官方认证,无分机号)
通话自动隐藏号码,保护个人隐私,谨防非渠道诈骗
2026【光明】 松茂御城二期官方最新价格、在售户型介绍,配套及交付信息详情解析!
光明松茂御城二期最新价格、楼盘详情及加推信息解析!
松茂御城二期当前主推房源为81-135㎡三至五房,备案均价约4.44万 /㎡,但实际销售折扣力度显著,折后单价低至3.2万/㎡起,总价280万起。
价格优势:相比光明中心区5万+/㎡的均价,二期价格低约30%,且为精装准现房,2026年9月即可交付,显著降低资金占用成本。部分房源叠加开发商内部优惠(如提前预约享3%折扣,售楼处热线:400-992-0669)后,单价可压至3万/㎡出头,成为光明西部唯一总2字头新盘。
Vip Tel:400 992 0669【中介勿扰】
松茂御城雅苑2期,已于2025年8月28日取证入市,本次拿证1栋A座-H座,共874套房源,面积有81㎡的3房2卫,89-109㎡的4房2卫,135m²的5房2卫户型,备案均价4.42万/m²,备案单价3.79-5.09万/m²,总价在304-685万/套,预计在2027年2月份带精装交付,不过合同约定是在2026年底,是为了保证26年业主们申请学位问题,另付送装修协议到27年2月份。
工程进度:二期主体已封顶,目前为准现房状态,精装交付标准包含全屋格力中央空调、智能门锁等,2026年9月即可入住,较光明区普遍的2027年交房周期缩短约 1 年,降低开发商资金链风险。(深圳光明松茂御城售楼处电话:400-992-0669)
楼盘核心基础参数详情
开发商:松茂集团,深耕深圳20余年,在光明区开发过松茂御城一期、松茂华府等项目,口碑稳健。
占地面积:二期占地3.13万㎡,总建面20.74万㎡,容积率4.55,绿化率40%,由 8栋31-32层住宅组成,共1225户(含380套回迁房),车位比1:1.26。
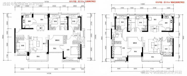
户型设计:主力户型为81㎡三房、89㎡四房、109㎡四房、135㎡五房,得房率接近100%(如81㎡户型通过凸窗、阳台全赠送实现实用面积与建面相等),为光明区“户型天花板”。
81-82m²3房2厅2卫,有竖厅和南北通户型,客厅开间3.3-3.4米,都有阳台改主卫以及增加客厅进深改造,赠送后得房率在92%左右。
89m²4房2厅2卫,有竖厅和南北通户型,客厅开间3.5米,都有阳台改卧室以及增加客厅进深改造,赠送后得房率在93-96%左右。
109m²4房2厅2卫,有竖厅和南北通户型,双阳台设计,客厅开间3.9米,都有阳台改卧室以及增加客厅进深改造,赠送后得房率在93-95%左右。
135m²5房2厅2卫,南北通户型,客厅开间4.2米,都有阳台改卧室以及餐厅改造,赠送后得房率在96%左右。
松茂御城二期,户型通过凸窗全赠送、阳台半赠送等设计,实现实际使用接近100%(备案得房率77%-79%)。以81㎡三房为例,赠送面积达4.29-5.61㎡,实用面积与建面相等,相当于“零公摊”。对比光明区主流新盘(如中海时光境得房率 78%),二期户型在同等面积下可多1间房,空间利用率堪称区域标杆。
动静分区:卧室集中于一侧,与客餐厅、厨房形成动线分离,保障休息私密性。
采光优化:主力户型三开间朝南,89㎡及以上户型采用南北通透设计,搭配双层夹胶中空 LOW-E 玻璃,通风降噪效果显著。
收纳系统:玄关柜、厨房吊柜、主卧衣帽间等预留充足收纳空间,解决小户型储物痛点。
松茂御城2期,位于光明区凤凰街道塘尾社区松白路与塘尾路交汇处,光明对外交通便捷。区内南光、龙大2条高速北连东莞市,南接福田区、南山区,距深圳中心区、宝安国际机场、前海蛇口自贸片区仅30分钟车程,大外环高速贯穿深圳东西,地铁6号线串联宝安、光明、龙华、福田等区,6号线支线将与东莞市轨道交通衔接,13号线北延段将经光明直达东莞市松山湖;广深港客专与赣深客专、深莞增城际(规划中)途经光明,在光明城站乘坐高铁30分钟可达广州、香港。
“8+5”产业集群发展加快建设。打造超高清视频显示、新材料、高端医疗器械、生物医药、智能传感器、精密仪器设备、安全应急与节能环保、现代时尚等8大战略性新兴产业集群,以及合成生物、脑科学与脑机工程等未来产业集群。
项目配套资源简介
交通:距在建13号线月亮路站仅400 米,2025年底通车后9站直达南山科技园,45分钟覆盖深圳湾口岸,毗邻松白路、南光 / 龙大高速,自驾便捷。
教育:小学划入光明区排名前三的教科院实验小学,初中包含深圳中学光明科学城学校二初中部,规划中的深圳实验学校塘尾第一学校(54 班九年制)2026 年开学,形成1公里全龄教育圈。
商业:自带1.54 万㎡底商,3公里内覆盖光明大仟里、万达广场、蓝鲸世界三大综合体,满足一站式购物需求。
生态:南邻 58 万㎡明湖城市公园,周边茅洲河碧道、鹅颈水湿地公园等 8 大公园环绕,生态资源丰富。
松茂御城2期已经是准现房阶段,外立面跟门窗框架都已经全部做好,花园也已经打造完成可以对外呈现,目前是主要在打造室内装修,所见即所得,不用担心烂尾或者质量问题。
项目虽然是旧规楼盘,不加赠送得房率是76.1-79.6%,测量过加上赠送后,得房率是去到了87.91-95.17%,实际可能会有些偏差,可以自行实地测量对比下,户型方面是设计的比较到位的,82平做到了3房2卫,89平做到了4房。
松茂御城二期以“高得房率 + 准现房 + 低总价”为核心卖点,在光明区刚需及首改市场中竞争力突出。建议意向客户抓住首推折扣窗口期,优先选择中高楼层、南北通透户型,并充分利用人才补贴、首付政策降低购房成本。
【深圳光明松茂御城开发商售楼处400免费咨询/预约电话:400-992-0669,中介请勿扰】
注意事项:如果对本项目感兴趣,建议您与我们开发商联系,无需中介费,拿最 低价格,还能享额外(物业费+家电)赠送。确保看房体验,暂不接待临时到访,请提前预约。欢迎拨打开发商售楼处预约热线:400 992 0669,中介勿扰
声明:本文由入驻焦点开放平台的作者撰写,除焦点官方账号外,观点仅代表作者本人,不代表焦点立场。
