合泰嘉悦公馆(售楼处)首页网站-合泰嘉悦公馆营销中心-合泰嘉悦公馆欢迎您-2025-楼盘详情-最新价格-户型图-容积率@合泰嘉悦公馆售楼处
扫描到手机,新闻随时看
扫一扫,用手机看文章
更加方便分享给朋友
✨ 合泰嘉悦公馆售楼中心预约通道开启,已认证,安全无忧咨询热线 ✨
✅ 合泰嘉悦公馆售楼处丨开发商丨营销中心统一热线:400-992-0669(全程认证,无分机号)
✅ 通话自动隐藏号码,保护个人隐私,谨防非渠道诈骗
盐田合泰嘉悦公馆最新价格、户型信息,配套及交付信息,楼盘详情解析!
深圳【合泰·嘉悦公馆】
开发商售楼处电话咨询/预约热线:400-992-0669【售楼中心】24小时热线
盐田沙头角【合泰·嘉悦公馆】售楼处电话:400-992-0669【营销中心】中介勿扰
盐田沙头角【合泰·嘉悦公馆】计划将在2025年8月份取证入市,本次推出1栋174套房源,面积有72-81㎡的3房1卫,88㎡的3房2卫,99㎡的4房2卫户型。
合泰·嘉悦公馆,是盐田沙头角板块仅有的在售新盘,并且还是新规楼盘,双地铁口物业,配套的是深高级龙岗学校,背靠梧桐山,远眺沙头角海。
开发商:深圳市深供金广嘉房地产发展有限公司(合泰集团旗下本土房企,深耕盐田15年,开发过御景翠峰等项目)。
项目定位:主打“地铁口 + 学府 + 山海资源”的刚需现房社区,分南北地块开发。
体量与产品:总建面4.9万㎡,南地块为31层纯住宅(3梯6户),共174套精装现房,主力户型为72-99㎡三至四房,得房率超80%(部分户型达95%)。
预约看房享受专属优惠大礼包(赠送物业管理费、赠送家电大礼包、额外购房补贴等)可享折上折优惠
盐田合泰·嘉悦公馆售楼处_Vip Tel:400-992-0669,中介勿扰
实际成交价格可能因楼层、朝向、户型等有所差异,建议购房者提前联系售楼处获取最新优惠信息。
价格详情预判丨定价逻辑与区间
备案价基准:综合周边二手房价(4.5-5.8万/㎡)及盐田区新房均价,预计南地块精装现房备案价为4.4-4.6 万 /㎡,北地块回迁房及保障房备案价约3.2万/㎡。
主力户型总价:72㎡三房:总价约317-331万(单价4.4-4.6万/㎡)
88㎡三房:总价约387-405万丨99㎡四房:总价约436-455万
倒挂空间:对比周边次新房(如佳华沙湖广场二手挂牌价4.8万/㎡),存在约4000-6000元/㎡的倒挂,但实际价差可能因市场波动收窄。
优惠政策延续性丨开盘折扣:预计首开推出95折 - 97折基础优惠,叠加团购(3人成团再享99折)后,实际单价可降至4.2-4.4万/㎡。
政府补贴:盐田区装修补贴(最高8万元)及人才购房补贴(最高20万元)仍可叠加使用,需在签约后3个月内提交申请。
到访预约优惠:提前通过开发商售楼处电话预约看房(400-992-0669),可享专车接送+折上98折+额外家电礼包(限量房源先到先得)
合泰·嘉悦公馆作为盐田沙头角片区罕见的地铁口现房社区,其户型设计精准匹配刚需与改善需求。以下是基于开发商资料及实地调研的深度解析:
建面约72㎡紧凑三房一卫空间魔法设计:通过 LDKB 一体化(客餐厨阳台一体化)实现视觉扩容,L 型可变空间可白天作为咖啡飘窗 + 儿童活动区,夜晚秒变长辈临时卧室。
功能分区:主卧面宽3.3米,可容纳1.8米双人床+衣柜,飘窗进深0.6米可改造为书桌,次卧面宽2.5米,需定制榻榻米(建议选择1.5米宽)以满足居住需求,U型厨房,精装交付含方太抽油烟机、燃气灶,操作台面长度达3.2米,可同时容纳2人备餐。
适用人群:首付预算55万以内的年轻家庭,或需兼顾学区与通勤的三代同堂刚需客。
建面约88㎡舒适三房两卫:双卫配置,主卫干湿分离(含科勒智能马桶),次卫采用三段式设计(洗手台外置),避免早晚高峰使用冲突。
空间布局:横厅设计,客厅面宽4.2米,外接进深1.8米景观阳台,可摆放茶台或健身器材,次卧面宽3.0米,可灵活改造为儿童房或书房,飘窗进深0.7米提升空间利用率。
适用人群:首付预算 80 万左右的三口之家,或注重隐私与便利性的改善型客户。
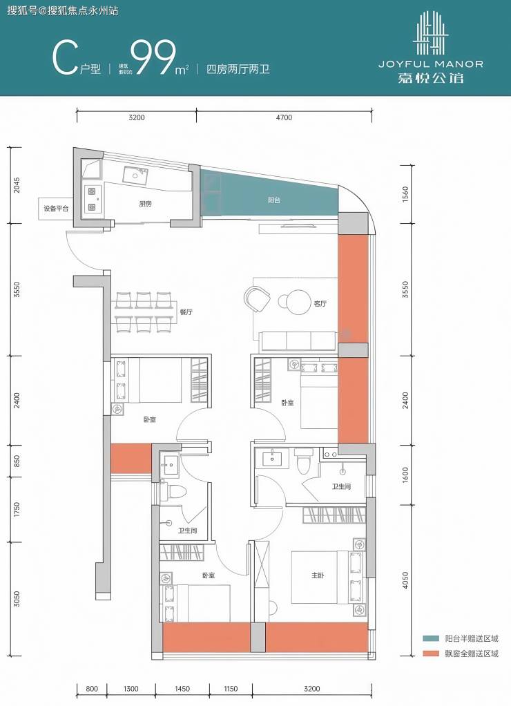
建面约99㎡南北通四房两卫改善标杆配置:南北双阳台,南阳台面宽 6 米,可同时容纳休闲桌椅与洗衣机,北阳台连接厨房,可作家政区或绿植角。
主卧套房:面宽3.8米,带独立衣帽间(进深1.8米)和卫浴(含浴缸),飘窗进深0.8米可打造观景阅读区,书房改造,面积约5.8㎡,可加装折叠床升级为“可变四房”,改造成本约5-8万元。
适用人群:首付预算100万以上的多孩家庭,或追求山海景观与空间尺度的改善客群。
项目户型设计核心亮点
得房率领跑片区:实测数据南地块纯住宅得房率超80%,部分户型达95%(含赠送面积),远超盐田区平均水平。
赠送空间:72㎡户型飘窗全赠送,88㎡、99㎡户型阳台赠送一半面积,实际使用面积较同面积段竞品多出5-8㎡。
精装细节把控丨品牌配置:全屋标配科勒卫浴、方太厨电、立邦乳胶漆,厨房台面为石英石材质(防刮耐磨),卫浴五金采用镀铬工艺。
收纳系统:玄关柜(深度0.35米)、主卧衣柜(深度0.6米)均为定制交付,部分户型预留家政柜空间。
全生命周期适配丨可变空间:72㎡户型通过家具灵活组合,可实现“2房→3房”切换,99㎡户型书房可根据需求调整为儿童房或老人房。
适老化设计:卫生间预留扶手安装孔位,厨房操作台高度可定制(标准高度0.85 米,可下调 0.75 米)。
项目外立面采用真石漆、铝板幕墙及中空LOW-E玻璃,以现代极简美学打造历久弥新的城市地标,中空LOW-E玻璃公建化立面:有效隔音、阻隔紫外线,营造舒适室内环境,铝板线条,赋予建筑挺拔质感,外立面精致大气。
高品公区,悦享高配社区生活:项目以人性化高定标准,尽心打磨公区及居所,融合东境西韵设计理念,集奢华、现代美学的元素,注重奢华感和仪式感,采用超现代立面风格和艺术弧线角设计打造酒店化品质入户大堂。如需了解更多详情,建议实地考察通过我们开发商售楼处热线(400-992-0669)预约看房,实地体验样板房及周边配套进展,避免依赖中介信息
项目核心价值与配套亮点
交通枢纽地位突出:距离地铁8号线沙头角站C口仅700米,1站达罗湖、9站至福田 CBD,无缝接驳深圳核心区。
自驾通过坪盐通道30分钟直达福田,东部过境高速15分钟至莲塘口岸,实现深港双城通勤。
全龄教育资源密集:项目自带12班幼儿园,形成0-18岁完整教育链。深圳高级中学盐田学校(九年一贯制)、田东中学、林园小学均在1公里范围内,东侧规划54班九年制学校(预计2026年投用)。
山海双景观资源:背靠梧桐山国家森林公园(负氧离子浓度全市前列),南眺大鹏湾19.5公里海岸线,中高楼层可享270° 山海视野,99㎡边户阳台面宽达6米。
户型设计直击刚需痛点
72㎡三房:通过 L 型可变空间设计,白天是咖啡飘窗 + 儿童活动区,晚上秒变长辈临时卧室,精装交付含品牌厨电。
99㎡四房:南北通透,主卧带独立衣帽间,适合三代同堂,阳台面宽6米,兼顾改善需求。
政策红利与优惠释放:预计入市时推出“首付分期”“团购折扣”等政策,找经理看房可享折上折,还有少量工抵房特惠。
盐田区购房政策宽松:非深户仅需 1 年社保即可购买,深户家庭可购 2 套,有两个及以上未成年子女可再购1套。
开发商售楼中心咨询与预约方式
合泰·嘉悦公馆售楼处电话:400-992-0669(24 小时热线),通过此渠道预约可优先安排专属顾问对接。
实地看房:需提前1天预约,营销中心提供免费接驳车(福田星河COCO Park、罗湖万象城发车)。
总结:合泰·嘉悦公馆当前优惠力度在盐田片区处于领先水平,尤其适合首付预算有限的刚需家庭。建议重点关注工抵房性价比及政府补贴叠加效应,同时通过开发商渠道核实优惠细节,避免中介误导。
如需了解更多详情,欢迎咨询合泰嘉悦公馆售楼处电话400-992-0669,过来我们营销中心看房提前来电预约价格还能更优惠。
盐田合泰·嘉悦公馆售楼处400免费咨询/预约电话:400-992-0669,中介勿扰
温馨提醒:欢迎致电开发商售楼中心,我们将竭诚为您解答疑问。为确保您的咨询安全,通话时号码将自动隐藏。请提前与销售团队预约,以确保您能顺利进入销售现场,避免不必要的等待。
声明:本文由入驻焦点开放平台的作者撰写,除焦点官方账号外,观点仅代表作者本人,不代表焦点立场。
