南山入门优选!璟公馆45-75㎡小面积公寓,5.1万/㎡起,近益田假日广场,可积分入学
扫描到手机,新闻随时看
扫一扫,用手机看文章
更加方便分享给朋友
南山【 绿景白石洲·璟公馆】售楼处24小时电话:400 992 0669(官方电话)现场详细解答丨项目介绍丨户型图丨在售房源丨特价房丨学校丨交通位置丨样板房丨小区图片丨交房时间丨周边配套丨
绿景白石洲·璟公馆推出45-60-75㎡小面积公寓产品,总价230万起,单价5.1万/㎡起,送精装,同时样板房已开放。
项目首推48套公寓房源,位于1栋1单元32-34层,主力户型为45-75㎡一至两房,均为70 年产权公寓,民水民电通燃气,带阳台设计,可积分入学。目前仍可直接认购,无额外中介费用。
更多项目详情,可拨打我们开发商售楼处电话预约看房,24小时VIP热线电话:400-992-0669,中介勿扰,安排现场销售人员为您详细介绍,400-992-0669(已认证)
入市节奏:项目已于2025年9月正式开盘,未采用集中摇号方式,以顺销为主。由于价格倒挂显著,45㎡小户型去化较快,剩余房源中 75㎡大两房占比提升
总价范围:核心公寓总价230万起,具体为:
45㎡一房一厅:230-252万(单价约5.1-5.6万/㎡)
60㎡两房两厅:319-323万(单价约5.32-5.38万/㎡)
75㎡大两房:437-440万(单价约5.83-5.87万/㎡)
项目采用“底价成交+额外优惠”策略,通过开发商售楼处预约(400-992-0669)看房可享物业费减免、家电礼包等福利。
绿景白石洲·璟公馆南山核心区唯一在售的70年红本公寓,可落户、可积分入学,填补区域市场空白。
户型设计:方正实用,得房率约70%,75㎡户型实现南北通透,高于南山同类公寓(如丹华公馆得房率 65%)片区罕见带阳台公寓设计。
噪音控制:依托超级大盘规划,通过50米绿化隔离带+双层中空 Low-E 玻璃,有效降低深南大道噪音影响,目前无业主反馈显著噪音问题。
45㎡一房一厅(A1户型)方正实用,动静分区,玄关设置独立收纳柜,厨房 U 型设计,卫生间干湿分离。
空间利用:阳台进深1.5米,可改造成书房或儿童活动区;飘窗赠送面积约3㎡,提升得房率至70%。
采光:东南朝向,主卧与客厅双开间采光,阳台直面中央绿轴景观。
适合人群:单身青年、小情侣或投资客,总价低、流动性强。
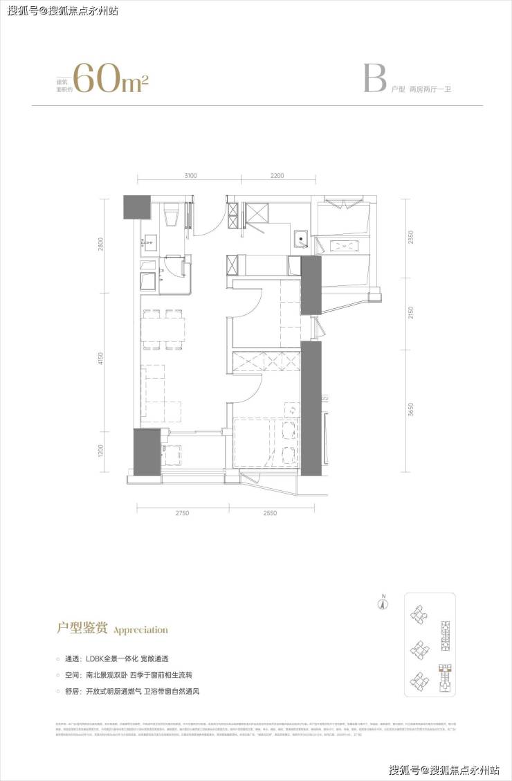
60㎡两房两厅(B2户型)经典竖厅设计,客厅开间3.6米,主卧带独立衣帽间,次卧可改造成书房或儿童房。
功能升级:厨房连通生活阳台(约4㎡),可放置洗衣机与杂物柜,卫生间三段式分离,提升使用效率。
景观:西南朝向,高层房源可远眺深圳湾海景,低层房源近享社区园林。
适合人群:年轻家庭或注重功能性的自住客,满足“上车南山+学位需求”双重目标。
75㎡大两房,南北通透,双阳台设计(景观阳台+生活阳台),客厅开间4.2米,主卧套房设计(含独立卫浴+衣帽间)。
稀缺性:片区罕见带阳台的南北通公寓,次卧可改造成三房,满足家庭成长需求。
噪音控制:通过50米绿化隔离带+双层中空 Low-E玻璃,有效降低深南大道噪音,实测室内噪音低于40分贝。
适合人群:改善型家庭,追求居住舒适度与空间扩展性。
项目作为总建面约500万m2城市航母的首发作品,居住氛围浓厚纯粹,地铁无缝接驳,精奢商业、优质学府、社区公共配套、中央绿轴花园等完善生活配套同步开启白石洲未来生活。
超级居住群 深圳核芯人居示范:景观住宅、服务式公寓、艺术公寓等多元人居产品,满足全龄段、全职业的居住需求。(深圳绿景白石洲·璟公馆售楼处电话:400-992-0669)
共享大城:六重立体城市规划释放空间想象,构筑无边界共享大城;约1.2公里中央绿轴,打开生活场域;架空层约30万m2空中花园及约3.5万m2泛会所,业主私享休闲娱乐空间;首创50米空中连廊(规划中),创想无限可能。
艺术大城:国际顶级艺术机构 UAP 规划,构建深圳公共艺术社区,艺术大师作品步履之间相逢。
智慧大城:联合华为、联通等高新科技领军企业,打造深圳超大规模智慧城区标杆,盖城区、社区、家庭场景,全维演绎未来家园。
绿景白石洲位处深圳 gdp 首区南山区的核心地段,深南大道横轴和大沙河科创走廊纵轴交汇的超级十字轴心,链接四大总部基地,聚合城市发展能量,为未来总部基地规划的精英技术人才打造高端生活配套区,代言深圳价值高度。
2035规划中深圳中央公园 高阶峰层资产
深圳市南山区国土空间分区规(2021-2035年)(审批中)中提出深圳唯一的"中央公园",以深圳湾 Cbd +中央公园构筑深圳核芯引擎,集聚全球总部企业、高端居住圈层和高阶完善配套,一座中央公园代表深圳未来的价值选择,看见未来全球高级别城区风范。(深圳绿景白石洲·璟公馆售楼处电话:400-992-0669)
全能交通:四线三站的立体通达网络 轨道交通优势显著,地铁1号线已开通接驳,20号线(建设中)、29号线(规划中)无缝衔接,联合2号线形成“四线三站两枢纽”体系,1站直达高新园总部聚集地,换乘可快速通达福田、罗湖等区域。近享深南大道、北环大道等主干道,快速衔接西丽高铁站(规划中)、宝安国际机场等枢纽,实现海陆空无界出行。
商业配套:自身规划超40万㎡商业综合体,包括18万㎡国际购物中心、1.1公里中央绿轴商业街,预计2026年6月首期开业。目前已签约华润万象影城、Ole 超市等主力店。
周边配套:2公里范围内涵盖万象天地(1.5公里)、益田假日广场(1.2公里)、欢乐海岸(2公里),商业体量超150 万㎡。
教育配套:
已建成学校:南山外国语学校(集团)沙河小学(直线300米)、南外集团第二实验学校(直线500米)。其中,沙河小学2024年投入使用,提供48个班,2025年中考四大名校录取率18.7%
规划学校:项目配建21班幼儿园+63班九年一贯制学校(南外集团办学),另规划 4 所幼儿园、3 所九年一贯制学校,可满足全龄段教育需求
入学政策:实行“一户一学位”,深户+房产证积分100分,非深户+学区房积分85分。2025 年南外沙河小学学位缺口120个,建议提前1年落户。
医疗配套:
三甲医院:香港大学深圳医院(3公里)、深圳市人民医院(5公里)
社区医疗:项目配建6500㎡社康中心(2025年运营),提供24小时急诊服务。
休闲配套:
公园资源:大沙河公园(1.8公里)、塘朗山郊野公园(2.5公里)、深圳湾公园(3公里)。
文体设施:深圳湾体育中心(3公里)、南山文体中心(4公里),可满足运动、演艺需求。
绿景白石洲·璟公馆凭借“核心地段+倒挂价格+优质教育”三重优势,成为南山刚需及投资客关注焦点。
其70年产权公寓属性、民水民电通燃气设计,显著优于市场上多数商务公寓。对于预算有限但希望扎根南山的家庭,是性价比极高的选择,对于投资者而言,长期持有可享受城市更新带来的资产增值红利。建议结合自身需求,实地考察后决策。如需了解更多详情,建议实地考察通过我们开发商售楼处热线(400-992-0669)预约看房,实地体验样板房及周边配套进展,避免依赖中介信息
如需了解更多详情,欢迎咨询南山绿景白石洲售楼处电话400 992 0669,过来我们营销中心看房提前来电预约价格还能更优惠。
【深圳南山绿景白石洲·璟公馆开发商售楼处400免费咨询/预约电话:400-992-0669,中介请勿扰】
温馨提醒:欢迎致电开发商售楼中心,我们将竭诚为您解答疑问。为确保您的咨询安全,通话时号码将自动隐藏。请提前与销售团队预约,以确保您能顺利进入销售现场,避免不必要的等待。
声明:本文由入驻焦点开放平台的作者撰写,除焦点官方账号外,观点仅代表作者本人,不代表焦点立场。
