深圳润科华府(宝安)首页网站丨润科华府楼盘详情_房价_户型_详情
扫描到手机,新闻随时看
扫一扫,用手机看文章
更加方便分享给朋友
润科华府位于深圳市宝安区航城街道鹤洲中心片区,紧邻洲石路,总占地约36992.76㎡,总建筑面积263934.29㎡。 润科华府由6栋住宅及1栋公寓组成,目前在售公寓486套,面积段为48-67㎡ ;总共1855套,车位1649个。宝安润科华府开发商售楼处电话:400-992-0669(中介勿扰)来电可了解楼盘最新动态、房价、在售房源、交楼时间等信息!

润科华府,位于深圳市宝安区航城街道鹤洲中片区,紧邻洲石路。该项目所在的宝安航城街道鹤洲片区,位于前海及大空港双发展区域的居住区。拥有三山一水的自然资源,周边生活配套成熟,是片区内入市项目
大空港地区地理区位优势明显,它执掌南沙、前海、蛇口三大自贸区要冲,处于广佛肇、深莞惠、珠中江三大城市圈交汇处,又处在广深港发展走廊、东西向发展走廊;此外,大空港地区扼守珠江江口东岸,靠粤港澳大湾区,距南沙、前海自贸区直线距离均约20公里。

基础信息
【项目占地】36992.76㎡
【总 建 面】约27万㎡
【容 积 率】3.25(北区)
【绿 化 率】30%
【总 户 数】1855户(住宅1369,公寓486)
【楼栋总数】7栋
【总 层 高】4-30层
【车 位】1649个
【住宅产权】70年(2014-2084)
【在售户型】住宅户型143㎡尊享套间五房;公寓户型48~67㎡臻装1至2房
【交房时间】住宅2018年中旬(现房);公寓(2019年10月底)
【交房标准】住宅毛坯;公寓精装
【物 业 费】3.5元/㎡/月
【学 区】黄田小学、海湾中学、航城中学(初中部)
【开 发 商】深圳市润科房地产开发有限公司
【物业公司】开发商自主管理
【售楼部热线】400-992-0669
【商 业】自带2.7万㎡集中商业(华润乐购,屈臣氏,中影南方,苏宁,华为签约入驻)、桃源居醇熟配套、人人乐、创梦城商业街
【地 铁】12号线洲石路(600米)

该项目所在的宝安航城街道鹤洲片区,位于前海及大空港双热点核心区域的高尚居住区。能够同时享受到前海自贸区和大空港两大经济热点区域发展的辐射带动。前海片区,住宅需求的缺口达到50万人;空港片区亦将吸纳70万人就业。前海空港片住宅需求势必外溢,前海空港双核的覆盖区域如航城片区,必然将是就业人群居住的首要选择。

航城街道片区内,国内第三大航空T3航站楼投入使用,T4航站楼正在规划;同时,全球最大的国际会展中心11宗配套商业用地和国际会展中心也正在建设中。润科华府的业主仅需10分钟车程,便可享受到T3和全球最大的会展中心的顶级商业配套。
一大批有利于粤港澳大湾区发展的基础设施正加快完善:港珠澳大桥已建成并基本具备通车条件;广深港高铁基本建成,广深高铁已通车,深港高铁正联调联试。同时全国人大审议批准了广深港高铁“一地两检”的通关安排。
3500亿巨资下航城及周边117+N个旧改项目推进顺利,区域内在建项目包括:市海洋新兴产业项目、宝安综合港区项目、国展互通立交项目、国际会展中心。及其商业配套项目、地铁20号线、地铁12号线、截流河项目、综合管廊及市政道路一体化项目等。项目售楼处咨询热线:400-811-3080

片区享有四维立体交通,也是深圳所有区域中唯一一个融合四维交通的项目。宝安国际机场、福永码头以及发达的公路交通将会大大增加片区交通的便利性;以及与本项目无缝接驳的深中通道将会使片 区成为粤港澳大湾区的腹地,目前和项目相邻的鹤洲村已与政府签署了深中通道相关的拆迁协议,未来本片区即是深中一体化进程的核心枢纽;已经于2017年全面动工的地铁 12 号线,其中洲石路站距离项目约600米,极大的增强了项目的交通便捷性,也会使片区价值得到极速提升。

目前宝安区共计106个旧改项目,拆除重建用地总面积约达到725万平米,旧改体量为仅次于龙岗,位居全市第二。宝安的潜力无限。航城街道由华润及万科统筹整改,华润统筹黄田、后瑞、三围、草围等,万科统筹黄麻布、九围、鹤洲规划,两大品牌开发商的进驻必将大力改善片区的居住环境,同时也会大力提升项目的物业价值。

项目坐享三山一水资源,深圳西海岸航城片区有一片都市核心最珍贵的生态资源,有山有水有园——凤凰山、铁岗水库、平峦山公园等。从润科华府出发,举步可达,骑行、漫步,随心可享,怡然自得。

项目自带建面约5000㎡18班的幼儿园;项目所在学区小学,省一级小学,创建于1905年,被评为深圳市绿色学校 ;项目所在学区中学,省一级重点初中,深圳绿色学校,宝安区优质学校 ;宝安区直属学校,是一所集初高中为一体的公立省一级重点学校。

项目自身规划了2.7万方的商业,基本可以满足您的平常的购物需求,业主还可以到对面的人人乐进行购物,所以说项目的商业配套也是非常便利的。



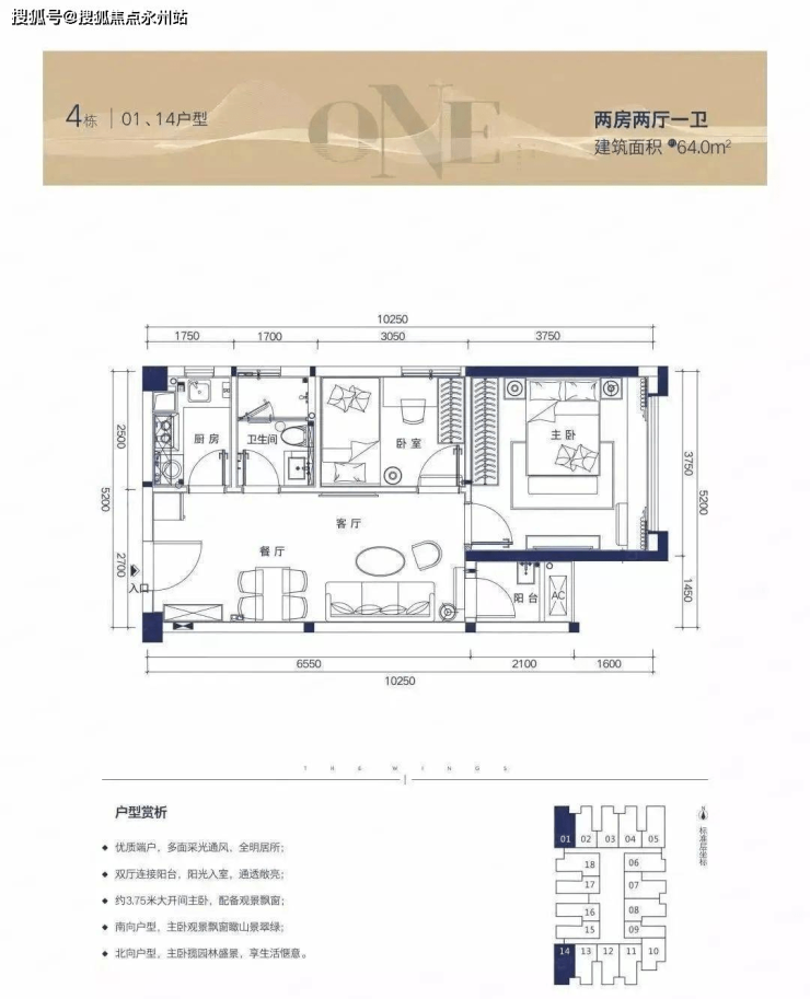
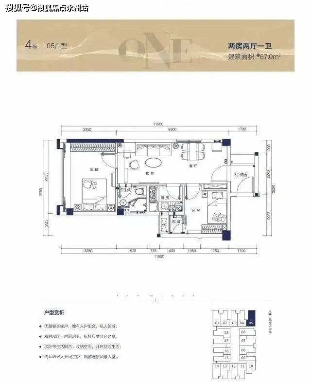
【润科华府】户型图在售产品
【公寓】带阳台,可通燃气,70年产权
公寓梯比:5梯18户 总层高:30层
在卖楼层:4-30楼(4-19楼为商务公寓,20-30楼为商办公寓)

臻裝一房两厅:48 ㎡ (一层4套,朝向:3户朝西,1户朝东)

臻裝两房两厅:59㎡ (一层6套,朝向:3户朝北,3户朝南)

63㎡ (一层1套,朝向:朝东)

64㎡ (一层2套,朝向:1户朝北,1户朝南)

如果看完以上关于我们宝安润科华府项目的介绍后,您还对如下问题想要深入了解的话:
问题如:最新推出的房源备案价格,小区在售的有多少栋楼,各个楼栋户型具体是什么朝向,每一层楼规划的是几梯几户,这一期卖的房小区里面有多少户,容积率多少,楼栋总共多少层,现在卖的户型具体交楼时间,这几种户型剩下的还有那些,小区门口离地铁近吗,该社区是怎么划分学校的,可以申请哪些小学和初中,交房后物业费怎么收?物业管理费每平米每月多少元,交房是精装修还是毛坯,停车位够吗?停车位有多少个?,小区周边未来有什么规划,楼盘展厅、营销中心在哪里?具体什么时候开盘?开盘多少钱一平米,周边配套,楼盘详情,值得买吗,潜力升值如何,升值空间大不大,营销中心地址怎么导航,坐地铁到哪个站下车过来楼盘比较近,周边近期有什么规划,周边商业配套怎么样,拿地批地时间,这几天楼盘现场最新优惠活动情况等。
建议您可以拨打我们楼盘内场400免费咨询电话与售楼处现场销售直接了解。
宝安【润科华府】润科华府开发商售楼处电话:400-992-0669(中介勿扰)
来电可了解楼盘最新动态、房价、在售房源、交楼时间等信息!让你买的放心,住的舒心!
润科华府开发商售楼处直销_欢迎来电预约享受内部折扣_恭迎品鉴
◆提前来电-预约登记尊享售楼处销售专业讲解〢一对一热情服务〢◆
润科华府开发商售楼中心〢预约可享内部优惠〢匠心钜制-恭迎品鉴〢
温馨提示:项目没有所谓的“分机号”注意保护个人隐私!谨防上当!看房请务必提前预约,避免临时无人接待,感谢您的配合!
免责声明🔉:以上信息仅供参考,所有图文资料请以政府最终批文及双方签署的买卖合同为准。本图文内容如无意中侵犯某方权益,请联系我们将第一时间处理。
声明:本文由入驻焦点开放平台的作者撰写,除焦点官方账号外,观点仅代表作者本人,不代表焦点立场。
