深圳金地明峰府怎么样?金地明峰府可以买吗?专业人士这样评价的!
扫描到手机,新闻随时看
扫一扫,用手机看文章
更加方便分享给朋友
金地集团打造全新峯范系产品金地明峰府,并重点推出建面约81-116㎡创新3-4房住宅,满足刚需友好上车。
小区自身规划。就项目规划而言,金地明峰府总用地面积占地面积约2.9万㎡,总建面约17.8万㎡,计容建面约12.1万㎡,规划容积率约4.9。
其中,住宅约10.8万㎡(含约1.4万㎡安居商品房、约2万㎡开发商自持租赁房);商业约7000㎡;幼儿园约3000㎡;其余为常规社区配套如文化活动室、社区健康服务中心、便民服务站等。
项目整体布局沿松白路一路排开,主要由4栋住宅楼,1栋长租公寓,1栋安居房和1座9班幼儿园组成,中间市政道路(当前为“公明田园路”)将配合薯田埔土地整备向南延伸。
即将首推的是项目东侧地块的3栋(即1栋1~3单元)住宅,共计576套房源,为2梯6户及3梯7户的梯户配比。
据了解,项目共规划有机动车泊位数超1600个,总户数拟规划约1580个,车位配置完全能够保证社区全住户的基本车位需求。
交通方面,项目距离约100米即可触达地铁6号线薯田埔站(百度地图测量,仅供参考),地铁口的优势十分突出,可借此打造地铁、公园、商业、居住一体互联的mini TOD生活场景。向西在松岗站与地铁11、12号线(二期建设中,预计2025年通车,实际通车时间以运营方公布的为准)实现三线换乘,快速通达深圳国际会展中心、深圳机场、前海核心等城市重点板块;向南则可通过公明广场站换乘13号线(建设中,预计2024-2025年通车,实际通车时间以运营方公布的为准),打通南山科技园、深圳湾总部群的快速通廊。
生态方面,生态方面,项目周边布局裕湖公园、龟山公园、麒麟山公园、红花山公园、尖岗湖公园等;
文体方面,公明体育中心、红花山体育中心、区图书馆、文化馆、松岗体育中心集聚区域内,未来还将在龟山公园的北侧新建马田文体中心,建设内容包括体育馆、文化站、图书馆等。
商业方面,其中的大仟里,是光明首家建面约15万㎡,集购物、餐饮、休闲、娱乐于一体一站式购物中心。譬如光明中心的蓝鲸世界、万达广场(即将开业);松岗的满纷天地(含杉杉奥特莱斯、麦德龙仓储商超等,即将开业);以及公明中心的大仟里、天虹商场等。
品牌开发商
金地品牌。开发商金地集团,是大家十分熟悉的知名品牌,曾在大本营深圳开发了金地海景、金地翠园、金地翠堤湾、金地香蜜山、金地梅陇镇等优秀的高品质住宅社区。金地集团秉承“科学筑家,智美精工”的产品理念,布局九大业务,遍布国内外280余城,逐步形成了地产开发业务的核心竞争优势,从2016年开始持续6年始终保持千亿房企实力。
创新户型。项目具体将提供建面约81㎡3房2厅1.9卫、92㎡ 3房2厅2卫、116㎡4房2厅2卫,并将采用金地新研发的G-wise绿色健康体系、五芯精装家和创新专利户型三大产品,打造绿色健康的居住场景,届时带装修交付。
其中,户型创新设计上,将通过多方位的场景预设,充分考虑三代居的交互和私密的居家场景。
整体来看,金地明峰府此次全套户型格局方正,通风采光性能良好,大进深半包围阳台提供良好多空能空间。
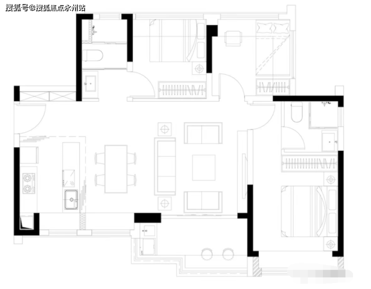
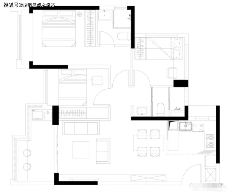
产品户型图约82-116㎡精装美宅!
【82㎡户型图】

【93㎡户型图】


【116㎡户型图】

建筑设计
精工品质。金地明峰府上为金地新研制的峯范系产品,“科学筑家,智美精工”的产品理念体现在诸多细节上。
譬如,项目建筑立面采用大面积玻璃幕墙,整体线条感强烈,美观且轻盈,符合现代都市审美。
阳台局部的玻璃为琥珀色,稍显跳脱的色差,赋予建筑活力元素。并运用技术及投入成本都更高的窄边隐框设计,可以最大化实现玻璃立面的平整和统一,整体打造精致甚至精奢的美感。


金地明峰府开发商售楼处电话:400-992-0669(中介勿扰)
过来营销中心看房,记得提前来电预约,感谢你的配合!
提前预约享受楼盘内场优惠折扣,并安排现场销售一对一服务!
来电可了解楼盘最新动态、房价、在售房源、交楼时间等信息!
免责声明🔉:以上所发布的楼盘相关信息仅供参考,所有图文资料及说明请以最终批文及双方在楼盘现场签署的买卖合同为准;本图文内容如无意中侵犯某方权益,请联系我们将会及时处理。
声明:本文由入驻焦点开放平台的作者撰写,除焦点官方账号外,观点仅代表作者本人,不代表焦点立场。
