前海时代三期(深圳)前海时代三期欢迎您-前海时代三期楼盘详情
扫描到手机,新闻随时看
扫一扫,用手机看文章
更加方便分享给朋友
前海时代三期开发商售楼处电话热线:400-992-0669【营销中心】售楼处最新详情/地址/户型/价格-24小时来电预约
前海桂湾·前海时代三期欢迎您-预约看房,置业顾问一对一对接在售户型图丨项目介绍丨房源丨_周边配套丨详细解答
前海时代位于前海桂湾片区,靠近鲤鱼门地铁站,位置属于前海目前最C位的地方。周边学校公园配套都不缺,一路之隔就是桂湾中心商务区,可以说目前非常宜居也有强投资概念。
项目住宅89㎡3房预计上车总价一千万左右,有部分的倒挂空间,目前片区二手房只有前海时代一二期在挂牌,成交均价在13-15万之间,折算周边供应量打个折,保守倒挂3万多起步。
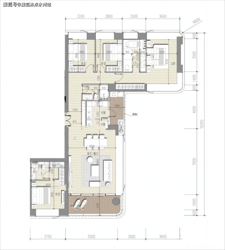
平面图和户型图
89平4房2厅1厨3卫,分布在53栋ABC座,约477套,套内使用率约73%。

180平4房2厅1厨3卫,分布在53栋ABC座高层,约39套双拼单证户型

190平4房2厅1厨3卫

200平4房2厅1厨3卫,一个横厅一个竖厅设计,两梯两户、三梯两户。

250平4房2厅1厨3卫,相比于200户型多了个保姆房,2.4-2.5M景观阳台。

280平4房2厅1厨4卫,楼王栋,套数不多。

项目简介
前海时代位于前海桂湾核心区域,项目共分三期开发,项目总占地约33.6万㎡,总建面110万㎡。

前海时代一期最早2014年开盘,开盘当天超两千人抢房;前海时代二期2017年开盘,当天售罄,自带“日光盘”属性。
三期目前还在建设,公寓样板间已开放,户型为55-125㎡,70年产权带阳台,部分通燃气,住宅预计年底前入市,预计均价11.3万/㎡。
地理位置上,本身就在前海比较北部的位置,紧密挨着宝中、科技园等区域,开车可以快速通达,还有地铁可以直接触达。
区位定位上,前海三湾中,唯有桂湾定位为前海金融核心商业区。整个区域规划用地总面积为365.28万㎡,国际金融城用地为230㎡,占比约63%。

现阶段,我们看到已有很多总部企业入驻办公,商务氛围日渐成熟,金融业属于多金的行业,不可低估其能带来的经济价值。
发展阶段上,桂湾是目前前海最早开始规划和开发建设的区域,目前完成度明显高了许多,有着至少五年的领先优势,居住和配套成熟度上远超前海其他片区,还可以共享紧邻着的宝中齐全的配套。
前海时代一期最早于2014年开盘,开盘当天超两千人抢房,前海时代二期于2017年开盘,当天售罄。
一期为红黑外墙,共5栋。2014年11月前海时代一期开盘,均价4.2万/㎡。开盘推675套房源,吸引了近2000人现场抢房。
2015年12月,前海时代二期CEO公馆开盘。备案价区间在6.5-9.8万/㎡,550套房源当天售罄。
2021年3月,前海时代二期20套尾盘低调开卖,面积在128-254㎡之间,单价区间在8.74-11.05万元/㎡,总价区间在1330万-2803万元/套。
配套情况
交通:项目距离地铁站为1号线鲤鱼门站约720米,距离5号线、9号线前湾站约900米。
路网交通方面,项目紧邻月亮湾大道、滨海隧道(滨海大道地下道路一期工程)梦海大道连接前湾、妈湾、宝安中心,出行便利。
教育:前海时代对口学校为九年制南山实验集团前海港湾学校,一所新开办的学校,目前已开学,学校主要针对前海时代业主。
项目2公里内一所九年制学校正在建设中(未确定引进的学校)。
此外,前海还有3所知名国际学校:荟同学校、英国国王学校深圳分校、深圳哈罗公学及深圳礼德国际学院。
桂湾规划片区内,规划主要的教育设施包括国际学校一所、九年一贯制学校三所、小学一所、幼儿园七所。
商业:项目自带8万平㎡商业,满足日常生活所需,周边商业氛围浓厚,汇聚万象前海、卓悦INTOWN、山姆旗舰店(在建)等品牌商业。

休闲:项目西侧预留有一块公园绿地,另外1.5公里范围内分布有双界河水廊公园、荷兰花卉小镇、前海演绎公园、中山公园等,日常休闲娱乐就近即可满足。
医疗配套方面是桂湾片区唯一的短板,不仅是现在缺,法定图则中也没有综合医院规划,这意味着,将来在桂湾如需就医只能依赖周边片区医疗配套辐射。不过,人家地理位置比较好,毗邻宝中片区。
前海时代三期最大优点是地处桂湾,最繁华的商业、最高端的产业都聚集于此,而且靠近宝中和科技园,可享受已然很成熟完善的配套。
不足之处是,现阶段前海片区人气不足,配套也不够完善。不过,深圳的土豪们都对这个楼盘关注度很高,也不是没有道理。
2020年楼市高峰期,前海时代二期的二手房成交价高达18-20万/㎡,如今成交单价在13-15万之间,如果按照目前吹风均价11.3万/㎡,还是有部分倒挂优势。
温馨提示:看房请提前来电预约,感谢配合!预约来访成功,即享现场当天优惠折扣,可预约现场指定销售专员(中介勿扰)
前海时代三期开发商售楼处咨询/预约热线:400-992-0669(中介勿扰)
(更多项目动态| 欢迎来电咨询 | 请提前预约登记看房 | 1:1销售专业讲解)置业顾问一对一对接,来电尊享受额外优惠
免责声明🔉:以上信息仅供参考,所有图文资料以政府最终批文及双方签署的买卖合同为准。本文内容如果无意中侵犯某方权益,请联系我们将第一时间处理。
声明:本文由入驻焦点开放平台的作者撰写,除焦点官方账号外,观点仅代表作者本人,不代表焦点立场。
