从区域内纯粹的「建筑面积约」95㎡三房两厅两卫精质空间到LDKB动线设计,精研创新的奢阔大阳台,都芯生活,尽揽璀璨,于此精质格调,仅呈于264位昭华里业主。2023年,昭华里将携手华润万象生活,将为龙岗带来更…
以峯范系精奢立面,无界架空层,全龄乐享园林,四重归家体系,以及G-wise健康生活体系,打造81-116㎡3-4房户型,更有1.9卫及L型阳台等创新产品,拥7000㎡社区商业、3000㎡九班制幼儿园、高线时光…
空港新城&光明科学城双芯—地铁口100米·近公园—建面约81-116㎡精装美宅—均价4.1万/㎡带精装交付金地明峰府距离6号线薯田埔站B出口最近处仅有100米!到科学公园和光明站凤凰城站东侧是去年底才开业的光…
金地明峰府限价4.22万+精装约4.5万,最小面积81平,预估首付100即可上车地铁口住宅3房,对刚需十分友好,目前城市面貌一般,周边有多个人才房项目,入住后还是有一定的居住氛围。以上所发布的关于光明金地明峰…
空港科学城双芯·地铁口·从容生活范本—6号线薯田埔站地铁口100m—建面约83-93㎡臻装3-4房且根据2022年最新学区划分,项目位于马田小学、马山头学校的学区范围内;距离项目300米的九年一贯制薯田埔学校…
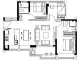
金地集团打造全新峯范系产品金地明峰府,并重点推出建面约81-116㎡创新3-4房住宅,满足刚需友好上车。项目具体将提供建面约81㎡3房2厅1.9卫、92㎡3房2厅2卫、116㎡4房2厅2卫,并将采用金地新研发…
以峯范系精奢立面,无界架空层,全龄乐享园林,四重归家体系,以及G-wise健康生活体系,打造81-116㎡3-4房户型,更有1.9卫及L型阳台等创新产品,拥7000㎡社区商业、3000㎡九班制幼儿园、高线时光…
平湖作为深圳12个市级功能中心之一,凭借中轴区位优势,强势打造“2枢纽3城际4地铁5高速”多维交通体系。重点引入花园城市概念,定制规划社区慢行道系统,打造成为城市公园剧场,并以双慢行道、三处公园、三重休闲空间…
最近两年,在南山科技园、福田CBD等核心地段物业都跌进去20%的情况下,深圳湾1号、半岛城邦、悦府、双玺等一线海景豪宅依然非常坚挺,成交均价还能维持在30万/平的高位,最近,恒二的最新成交甚至突破了37万/平…
交通配套:项目南邻福强路、西临新洲路;周边有2个地铁站,分别是3号线益田站,3/7号线石厦站,均在500米左右的距离,临近福田口岸与皇岗口岸,无缝接驳深港两地,穗莞深城际轨道(建设中)2站直达前海,联通两大深…