【满京华金硕华府-深圳满京华金硕华府】满京华金硕华府楼盘详情/地铁/学校/房价
扫描到手机,新闻随时看
扫一扫,用手机看文章
更加方便分享给朋友
【满京华·金硕华府】是由深圳市满京华置业投资有限公司和深圳市新湖楼村股份合作公司共同合作开发,没有毛坯限价。楼村股份是村委制企业,它是由楼村集体资产管理委员会和部分村民共同持股组建的。
项目前身为光明狮山利益统筹项目,由满京华集团全盘操刀,涵盖有10块用地,总占地面积约10.9万㎡,总建筑面积约32.38万㎡,其中住宅用地有7块,返还用地1块,公共绿化用地2块,
住宅用地有:满京华金硕和府,满京华金硕瑞府,满京华金硕臻府,满京华金硕华府,满京华金硕悦府,满京华金硕嘉府。
满京华金硕华府_售楼处_Vip Tel:400-992-0669 中介勿扰
光明满京华金硕华府于2023年9月12日取证入市,首推2栋1/2单元/3栋,共704套住宅房源,面积89㎡的3房1卫,98-103㎡的3房2卫,120-139㎡的4房2卫户型,备案均价4.65万/㎡,备案单价4.14-5.14万/㎡,总价368-722万/套,计划在2025年12月底前带简装交房!
后面在2023年11月28日再次取证加推,本次推出1栋1/2单元,共434套房源,面积89㎡的3房1卫,98-103㎡的3房2卫,120-139㎡的4房2卫户型,备案均价4.65万/㎡,备案单价4.21-5.16万/㎡,总价414-725万/套。
目前我们打出了9.03折的优惠,折后均价4.19万/平,折后单价3.93-4.78万/平,总价在350-670万/套,项目至今为止已经销控500多套房源,整体去化率约45%,还剩600套房源左右在售,最为畅销的还是103-120-139平的大户型住宅,89平的3房1卫也所剩不多。
05-10地块:满京华金硕华府,总占地面积约2.28万㎡,总建筑面积19.8万㎡,计容建筑面积约13.7万㎡,容积率6.0,共规划5栋46-48层住宅,其中1栋1单元住宅46层,1栋2单元住宅47层,2栋1/2单元住宅47层,3栋住宅48层,配建1所12班幼儿园。
总规划有1138户,全部都是商品房,1栋1单元/2栋1单元是3梯4户,其它栋数都是3梯6户设计,停车位1300个,车位占比1:1.14。
如需了解更多详情,欢迎咨询满京华金硕华府开发商售楼处电话/咨询热线:400-992-0669(中介勿扰),过来我们营销中心看房提前来电预约,而且最终的价格还能享受更多优惠。
(金硕华府)整个小区占地2.3万方,由5栋住宅+1栋幼儿园合围而成;特殊的地块性质,整个小区均是可售商品房,没有回迁房和保障房;其中1栋二单元、2栋一单元3T4户,1栋一单元、2栋二单元、3栋均是3T6户;所有住宅建筑均是超高层,46-48层。
项目有5种户型:89平米的3房2厅1卫竖厅户型共132套,99平米3房2厅2卫竖厅户型共572套,102平米3房2厅2卫横厅户型共132套,120平米4房2厅2卫横厅户型共132套,140平米4房2厅2卫横厅户型共176套;其中,99平米3房2卫2厅是为主力户型。
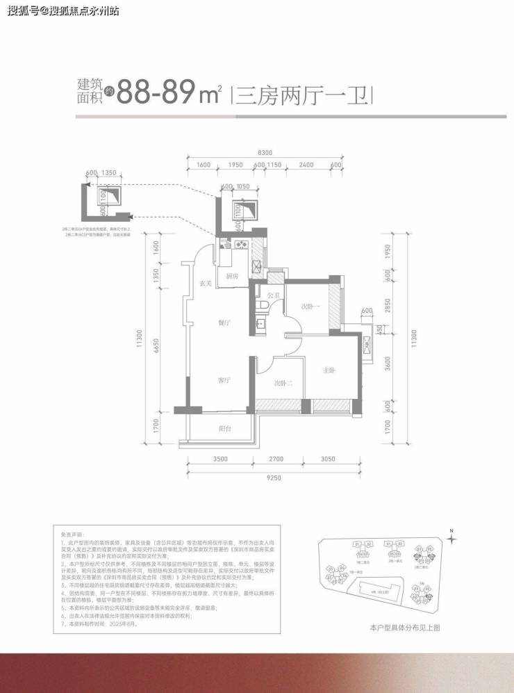
89㎡-89㎡的3房2厅1卫:3房2厅1卫,传统的竖厅动静分区格局;客厅进深8米(不含阳台),开间3.5米,主卧接近12㎡(不含主卫和飘窗);项目两次卧的飘窗均可以打掉,优化飘窗后两次卧的面积在9平米;整个户型的设计有点割裂,89平米的建筑面积,客厅开间可以做到3.5米,主卧以及两次卧(飘窗打掉后)的面积都比较开阔
这种89平米只有一个卫生间的新房,在光明市场可以说是没有竞争力的,所以这种户型只有少量,也不是项目的主力户型,不过从单价来说,这种户型是最优性价比的。
89平米3房1卫整个项目占比很少,分布在3栋06户型东南朝向,靠近内部小路,看学校和马路对面小区,间距比较开阔,采光和视野没有问题,不过最好还是选择中高楼层;2栋二单元02户型西南朝向、06户型东南朝向;其中,02户型看小区花园,看学校,只要楼层比幼儿园高,采光完全没问题,视野更不用担心;06户型同样看学校,同样是看学校2栋二单元的视野肯定比3栋06户型更好。
98㎡-100㎡的3房2厅2卫:传统竖厅的3房2卫户型,竖厅动静分区格局,客厅进深8米(不含阳台),开间3.6米,主卧11.3㎡(不含主卫和飘窗);可以说是88平米户型的加强版,多了一个卫生间,其他各个功能间面积有所增加;两个次卧的飘窗同样可以打掉,优化后两次卧的面积居住比较舒适;对比光明其他产品的3房2卫,可以说是舒适型户型,而且是项目的主打户型。
99平米3房2卫作为项目的主力户型,每一栋楼都有分布;1栋二单元03/05户型,2栋一单元03/05户型均是正南朝向,而且是3T4户,价格肯定是最高的,而且正前方就是3层幼儿园,视野采光没有遮挡;2栋01/07户型,分别是西南和东南朝向,01朝花园看幼儿园,07看深圳小学狮山校区,1栋一单元06/07户型东南朝向看幼儿园,由于学校楼层都比较矮,采光和视野确定性比较高,不会有高层建筑的遮挡,只要比学校的建筑高,相加比很不错;其他户型尽量选择中高楼层。
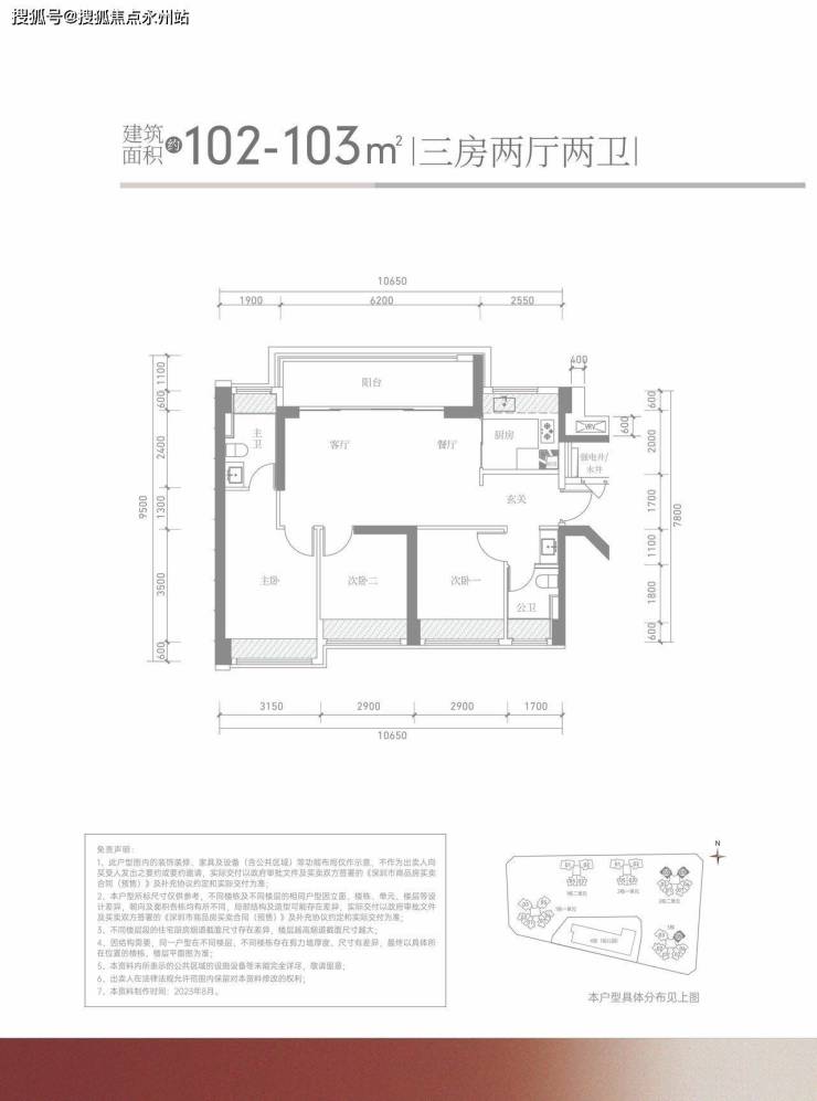
102㎡-103㎡的3房2厅2卫:横厅格局,主打的就是客厅宽大以及良好的通透性,客厅进深6.2米,开间3.7米(不含阳台),还配有长6.2米宽景阳台,这个户型很比较讨喜年轻的购房群体,因为横厅的户型南北通透,特别是深圳夏长冬短的地区;横厅户型还有一个优点,过道的面积少,同等面积空间利用率高,客厅或者房间的面积都稍微大些;
102平米分布在3栋05户型,西北朝向,主阳台看花园,主题视野有2栋一单元主体建筑的遮挡,看不到科学公园的景观;2栋二单元03户型东北朝向,2栋二单元05户型西北朝向,都是看科学公园景观,
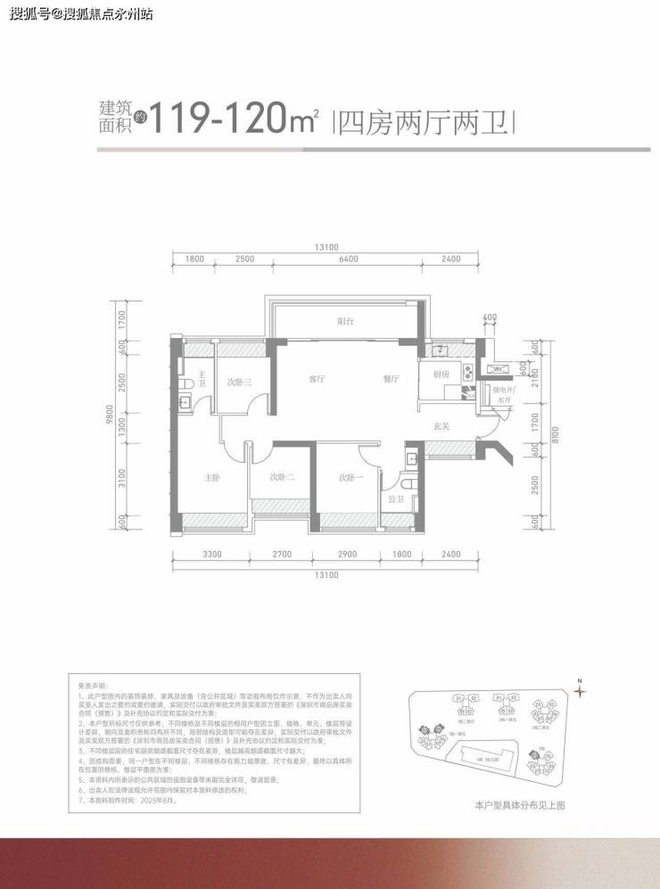
119㎡-120㎡的4房2厅2卫:南北通透横厅格局,客厅进深6.4米(不含阳台),开间3.8米,配有6.4米宽景阳台,户型图中的次卧二和次卧三,不包括飘窗的的情况下是2.5*2.5,飘窗打掉以后卧室有9-10平米,
138㎡-141㎡的4房2厅2卫:4房2厅2卫,横厅设计南北通透,可以说是120平米房的加强版本,户型格局差别不大,最大的改变就是阳台,该户型的阳台连接厨房长8.8米;其他方面就是各个功能间的面积增加。
项目周边配套信息介绍
交通地铁:项目1公里范围内有6号和6号支线(在建)两条地铁,其中距离项目最近的是6号线/6号线支线光明站,步行约800米左右;乘坐6号线在凤凰城站或者上屋可以换成13号线,乘坐6号线支线在上屋站也可以换成13号线。
教育资源:项目自带12班幼儿园,项目周边教育资源丰富,未来周边有大量的住宅,目前项目所属的社区小学有东周小学、华南师范星河小学、修远小学、楼村小学、中山大学附属学校、深圳教科院实验学校;初中有深圳实验光明学校、光明高级中学、华夏中学、公明中学、深圳教科院实验学校、中山大学深圳附属学校。
周边的优质教育资源有:深圳小学光明学校狮山校区、深圳小学光明学校中心校区、深圳外国语光明学校成员学校;项目周边的教育资源丰富,还不缺优质的教育资源。
商业配套:项目自带3万㎡的商业街,可以说满足日常生活需求完全没问题;距离项目1公里范围左右,约6.3万㎡星河coco city(预计年底开业)、约4.3万㎡绿地商业(在建);乘坐地铁2站可以到光明最大的商业中心约13万㎡蓝鲸世界、约4.5万㎡万达广场
文体休闲:家门口规划有科学公园,占地面积约为208万㎡,公园内规划有科学岛、科技馆新馆、西方美术馆等,未来紧邻科技创新文化集群。
除了已经开放运营的虹桥公园、光明文化艺术中心等网红打卡地外,在建的科学公园、深圳科技馆(新馆)、深圳国际美术馆(暂定名)等也在日趋完善,再一次擦亮深圳文化名片,备受全城瞩目。
约13.5 万m²的深圳国际美术馆,由中国工程院院士、中国建筑设计研究院总建筑师崔愷主笔设计,是中国展示研究世界文化的平台。

区域价值:项目位于光明科学城“一心两区”的中心区域,属于光明科学城的中央居住区域。周边的城市面貌全新,目前周边的住宅基本都是在建中,ZF规定周边的建筑基本在2026年之前完工,未来会呈现全新的城市面貌。
项目北侧一路之隔在建的“科学公园”占地面积约208.10万㎡,集生态、科普、健康、娱乐、运动、休闲、游览等功能为一体的大型综合性城市公园,承担着区域绿色核心、绿意引擎的重任。
同时科学公园范围有大量的市政配套正在建设或者筹划中:如深圳国际美术馆(在建)、深圳科技馆新馆(在建)、科学城体育中心等。
总的来说,项目周边的配套只能说比较齐全,而且都在可以接受的范围以内;但是部分配套并不算优秀,具体情况还要根据自身的购房需求而定,比如:地铁距离在800米左右,如果在南山上班,需要转13号线,需要换成地铁,通勤时间是不是在自己接受范围内?如果喜欢一个纯粹的居住环境和大公园,那么项目就很完美符合需求。
如需了解更多本项目信息,请拨打售楼处电话,现场销售会为您详细介绍楼盘。
满京华金硕华府_开发商售楼处_Vip Tel:400-992-0669 (中介勿扰)
(更多项目动态| 欢迎来电咨询 | 请提前预约登记看房 | 1:1销售专业讲解)置业顾问一对一对接,来电尊享受额外优惠
*特别提示:本宣传资料所涉宣传内容,仅作为项目宣传推广使用,不在任何意义上构成开发商的承诺与要约,具体以政府部门审定的规划设计文件及商品房买卖合同的约定为准。本公司有权对宣传内容进行修改、调整,敬请留意最新宣传资料。
声明:本文由入驻焦点开放平台的作者撰写,除焦点官方账号外,观点仅代表作者本人,不代表焦点立场。
