中建鹏宸云筑(售楼处)首页网站-中建鹏宸云筑营销中心-中建鹏宸云筑欢迎您-楼盘详情-最新价格-户型图-容积率@售楼处2025/11/21
扫描到手机,新闻随时看
扫一扫,用手机看文章
更加方便分享给朋友
龙华【中建鹏宸云筑】售楼处24小时电话:400 992 0669(开发商直销)现场详细解答丨项目介绍丨户型图丨在售房源丨特价房丨学校丨交通位置丨样板房丨小区图片丨交房时间丨周边配套丨
龙华『中建鹏宸云筑』西区8栋154套建面约102-139㎡四房取证,这是该项目第5次取证,西区地块首次加推。
预售证情况:8栋已于2025年8月25日取得预售许可证(深房许字 (2025) 龙华 014 号),并于8月26日启动线上登记(i 深圳APP)及冻资(10万元),8月31日正式开盘。
交房时间:8栋预计2028年4月30日带精装交付,配置全屋东芝中央空调,精装标准高于区域同类项目。
到访预约优惠:提前通过开发商售楼处电话预约看房(400-992-0669),可享专车接送+折上98折+额外家电礼包(限量房源先到先得)
价格详情与优惠政策
备案均价:备案均价6.12万元 /㎡,备案单价5.51-6.66万元 /㎡,总价566-928万元/套(含1套174㎡大户型)。
折后价格:开盘享93折优惠,折后均价5.69万元/㎡,折后单价5.13-6.19万元/㎡,总价526-863万元/套。具体户型价格如下:
103㎡户型:91 套,折后总价 526-604 万元,单价 5.1-5.9 万元 /㎡。
118㎡户型:31 套,折后总价 604-668 万元,单价 5.1-5.7 万元 /㎡。
139㎡户型:31 套,折后总价 756-863 万元,单价 5.4-6.2 万元 /㎡,高区单价较低区溢价约15%。
冻资优惠:冻资10万元可锁定开盘折扣,同时可参与砸金蛋活动,最高享3000元豪礼。
中建鹏宸云筑售楼处_Vip Tel:400 992 0669 中介勿扰,预约看房享受专属优惠大礼包(赠送物业管理费、赠送家电大礼包、额外购房补贴等)可享折上折优惠
中建鹏宸云筑,是龙华网红热销项目,曾经历4次开盘,开盘房源合计1015套,折后均价约5.5万,截至目前综合去化约91.5%,实际超95%,这个成绩在当今的市场环境可谓非常优秀,项目好不好?值不值得买?它已经用业绩证明了自身,消费者也用真金白银给出了答案!(深圳龙华中建鹏宸云筑售楼处电话:400 992 0669)
项目由中建集团打造,由总占地面积约4.33万㎡,总建筑面积约31万㎡,计容建筑面积约22.6万㎡,容积率5,绿化率40.01%,分2个地块开发,共由10栋总高32-47F的住宅组成,其中1栋住宅45F,2栋住宅44F,7栋住宅47F,3栋/5栋/6栋/8栋/10栋32F,11栋住宅46F,4栋规划商业,另规划有1所12班制的幼儿园。
整个项目规划户数为1992户,其中东区1016套,西区976套,全部都是规划的商品房,涵盖了多种户型设计。其中,6栋、8栋、9栋和10栋的高层住宅采用2梯5户设计,3栋和5栋为2梯6户,而1栋、2栋、7栋和11栋的超高层住宅则采用3梯6户设计。(深圳龙华中建鹏宸云筑售楼处电话:400-992-0669)
本次将推的是西地块8栋住宅,总高32层,2梯5户设计,总共154套,面积有102-118平的4房2卫,139平的4+1房2卫户型,均为纯四房设计,采用深圳建筑新规标准,综合实用率超100%
到访预约优惠:提前通过开发商售楼处电话预约看房(400-992-0669),可享专车接送+折上98折+额外家电礼包(限量房源先到先得)
103㎡ 3+1 房 2 卫(东南 / 西南朝向):
格局:竖厅设计,入户玄关收纳系统,约 6 米宽阳台连通客厅与次卧,主卧套房带独立卫浴。
亮点:LDKC 一体化(客餐厨阳台连通),分户 S 墙可灵活调整空间,得房率约 81%(不含赠送),实际使用面积达 107.29㎡。
118㎡ 3+1 房 2 卫(南北通透):
格局:横厅设计,约 4.6 米玄关收纳空间,南北双阳台对流,主卧套房带步入式衣帽间。
亮点:约 6.3 米横厅开间,可改造为五房,得房率约 81%(不含赠送),实际使用面积 126.62㎡。
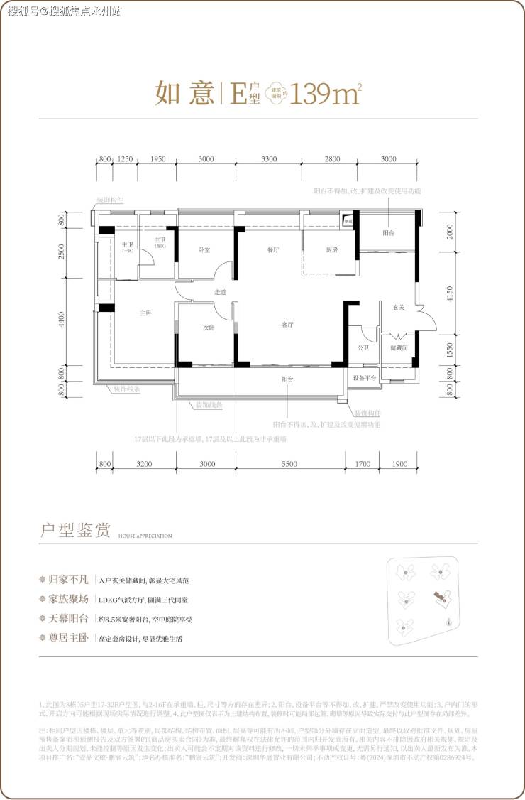
139㎡ 3+2 房 2 卫(南北通透):
格局:竖厅设计,入户玄关储藏间,约 8.5 米宽阔阳台连接客厅与次卧,主卧套房带 270° 飘窗。
亮点:得房率约 81%(不含赠送),实际使用面积 144.57㎡,可满足三代同堂需求。
生活配套信息简介
地铁:距离10号线南坑站C出口约600米,2站达福田冬瓜岭,4站到岗厦北,规划中的 22 号线横岭站约 700 米,预计2028年通车后可实现福田⇌观澜45分钟直达深圳市龙华区政府。
规划学校:北侧规划省一级标准的 72 班九年一贯制学校(预计2026年完工),周边现有华南实验学校(公立)、万科双语学校(民办)。
幼儿园:项目自带 12 班制幼儿园,可实现目送式教育。
核心商圈:500米范围内有8号仓奥特莱斯,1.5公里内覆盖星河 COCO City、龙华印象汇等,3公里可达红山6979、深业上城等高端商业体。
社区商业:项目自带2万㎡商业裙楼,满足日常生鲜、餐饮需求。
自然景观:楼下即民悦公园(升级改造中),近揽民治水库湖景,远眺塘朗山、银湖山,8栋楼王为一线前排无遮挡湖山视野。
文体设施:3 公里范围内有民治体育公园、红木山郊野公园、龙华文化艺术中心等。
龙华中建鹏宸云筑8栋楼王凭借稀缺湖山景观、高使用率户型及完善配套,成为龙华梅林关片区改善置业的标杆项目,具体信息以开发商公告为准,可通过“鹏宸云筑”公众号或售楼处(电话:400-992-0669)获取实时资讯。
如需了解更多详情,欢迎咨询龙华中建鹏宸云筑售楼处电话400 992 0669,过来我们营销中心看房提前来电预约价格还能更优惠。
【深圳中建鹏宸云筑开发商售楼处400免费咨询/预约电话:400-992-0669,中介请勿扰】
温馨提醒:欢迎致电开发商售楼中心,我们将竭诚为您解答疑问。为确保您的咨询安全,通话时号码将自动隐藏。请提前与销售团队预约,以确保您能顺利进入销售现场,避免不必要的等待。
声明:本文由入驻焦点开放平台的作者撰写,除焦点官方账号外,观点仅代表作者本人,不代表焦点立场。
